Handelshuis met absolute topligging en verhuurd bovenliggend appartement in hartje Alken.
€ 545.000
Een pand van Vestio
Favoriet
Jouw zoektocht
Jouw scoretabel voor dit pand
Aan het laden...
Jouw geplande bezichtigingen
Aan het laden...
Overzicht
- 350 m² bewoonbaar
- 232 m² grond
- 3 Slaapkamer(s)
- 2 Badkamer(s)
- 1 Toilet(ten)
Beschrijving
Dit ruime, volledig instapklare handelshuis met bovenliggend appartement bevindt zich op een perceel van 2a 32ca en geniet een uitstekende ligging midden in het centrum van Alken. Dankzij de directe verbinding met de N80 zijn zowel Sint-Truiden als Hasselt snel bereikbaar. Daarnaast liggen diverse winkels, scholen en het openbaar vervoer op wandelafstand.
Op het gelijkvloers bevindt zich momenteel een volledig ingericht restaurant (renovatie van 2019) met een bruikbare oppervlakte van ongeveer 200 m². De indeling omvat een ontvangstruimte, het restaurantgedeelte, een gastentoilet, een professionele keuken en meerdere berg- en stockageruimtes.
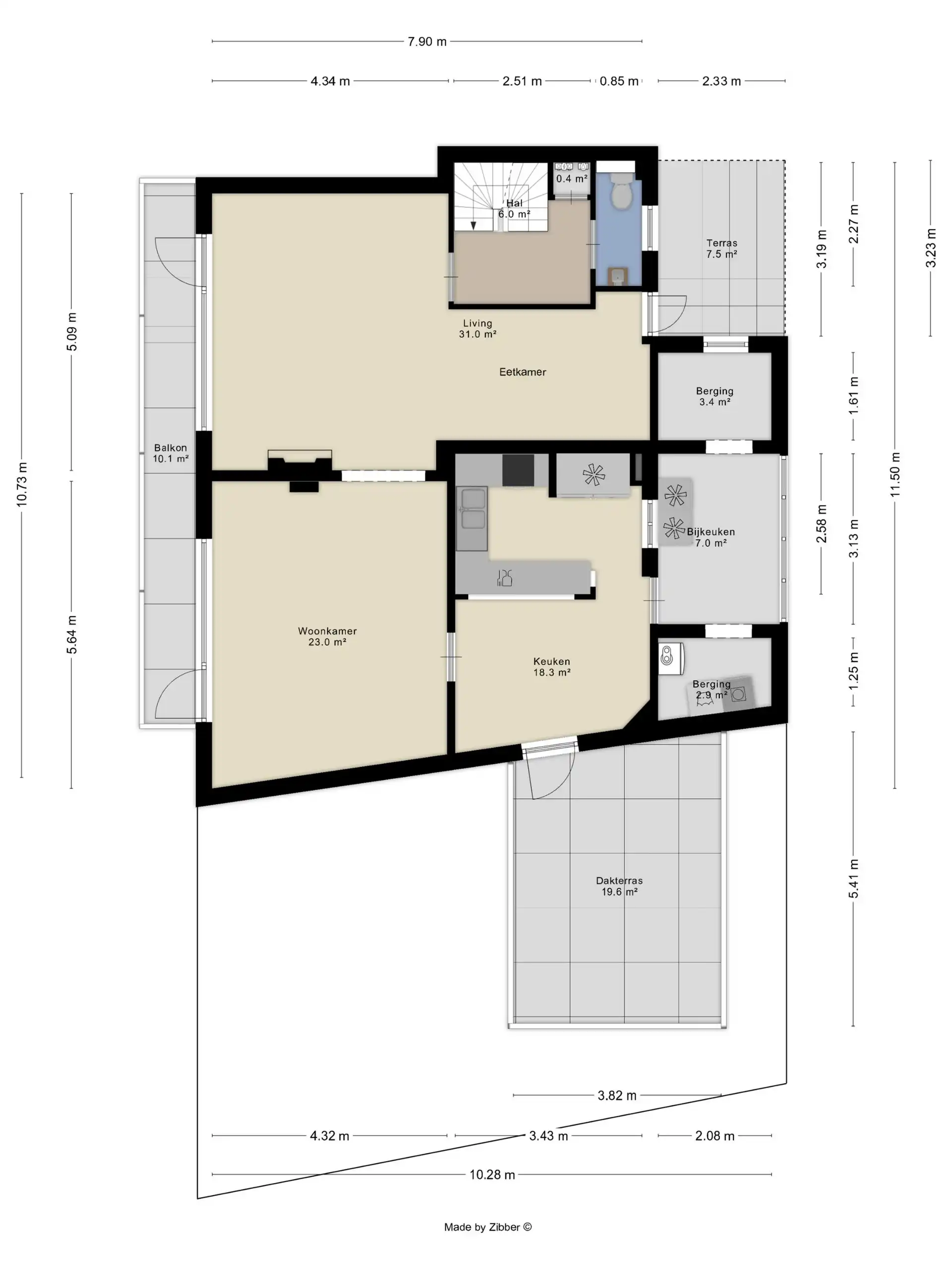
Het bovenliggende appartement heeft een aparte toegang, met een totale bruikbare oppervlakte van 166 m² (volgens EPC), strekt zich uit over twee verdiepingen. Op de eerste verdieping bevinden zich de inkomhal, een apart toilet, een vestiaire, de woonkamer, eetkamer, keuken, twee terrassen en verschillende bergruimtes. De tweede verdieping omvat een nachthal, drie slaapkamers, een dressing en twee badkamers. De zolder is bereikbaar via een vaste trap. Het appartement is momenteel verhuurd aan 975 euro per maand (incl. verbruik water), wat zorgt voor een directe en stabiele opbrengst.
De verkoopprijs is excl. professionele keukenuitrusting en meubilair.
Dit pand biedt tal van troeven, waaronder de vergunde horecabestemming, de sterke ligging in het centrum en de mogelijkheden als projectgrond. Bovendien kan het – mits het verkrijgen van een vergunning – worden omgevormd tot meerdere appartementen.
Benieuwd naar de mogelijkheden van dit pand? Neem dan contact op met Stephanie via stephanie@vestio.com of bel naar 0474 73 64 84 voor een bezichtiging.
Op het gelijkvloers bevindt zich momenteel een volledig ingericht restaurant (renovatie van 2019) met een bruikbare oppervlakte van ongeveer 200 m². De indeling omvat een ontvangstruimte, het restaurantgedeelte, een gastentoilet, een professionele keuken en meerdere berg- en stockageruimtes.
Het bovenliggende appartement heeft een aparte toegang, met een totale bruikbare oppervlakte van 166 m² (volgens EPC), strekt zich uit over twee verdiepingen. Op de eerste verdieping bevinden zich de inkomhal, een apart toilet, een vestiaire, de woonkamer, eetkamer, keuken, twee terrassen en verschillende bergruimtes. De tweede verdieping omvat een nachthal, drie slaapkamers, een dressing en twee badkamers. De zolder is bereikbaar via een vaste trap. Het appartement is momenteel verhuurd aan 975 euro per maand (incl. verbruik water), wat zorgt voor een directe en stabiele opbrengst.
De verkoopprijs is excl. professionele keukenuitrusting en meubilair.
Dit pand biedt tal van troeven, waaronder de vergunde horecabestemming, de sterke ligging in het centrum en de mogelijkheden als projectgrond. Bovendien kan het – mits het verkrijgen van een vergunning – worden omgevormd tot meerdere appartementen.
Benieuwd naar de mogelijkheden van dit pand? Neem dan contact op met Stephanie via stephanie@vestio.com of bel naar 0474 73 64 84 voor een bezichtiging.
Energie
![]() |
- Energieverbruik: 213 kWh/m²/jaar
- E-peil: E0
- Verwarming: Gas
- Beglazing: Standaard dubbel
Op de kaart

Financieel
| Prijs | |
|---|---|
| Kadastraal inkomen (niet geïndexeerd) | € 1.975 |
Berekening kosten
Je aankoopkosten? Die heb je snel berekend via de knop hieronder.
Bijkomende info
Gebouw
| Bouwjaar | 1974 |
|---|---|
| Renovatie jaar | 2019 |
| Staat | Goed onderhouden |
| Bouwcertificaat | Nee |
| Bewoonbaar (m²) | 350 |
| Badkamers | 2 |
| Slaapkamers | 3 |
| Verdiepingen | 0 |
| Garages | 0 |
| Parkeerplaatsen | 0 |
| Toiletten | 1 |
Faciliteiten
| Keuken uitrusting | Goed uitgerust |
|---|---|
| Beglazing | Standaard dubbel |
| Brandstof primaire verwarming | Gas |
| Septische tank | Nee |
Perceel
| Overstromingsgevoelig | Geen |
|---|---|
| P-score | B |
| G-score | A |
| Totale oppervlakte (m²) | 232 |
| Bebouwde oppervlakte (m²) | 0 |
| Oppervlakte terras (m²) | 10 |
Vergunning
| Verkavelingsvergunning | Geen beschikbaar |
|---|
Uitrusting
| Investeringspand | Nee |
|---|---|
| Parking | Nee |
| Garage | Nee |
| Zolder | Ja |
| Opslagruimte | Ja |
| Terras | Ja |
| Lift | Nee |
| Rioolaansluiting | Nee |
| Gasaansluiting | Ja |
| Wateraansluiting | Ja |
| Elektriciteitsaansluiting | Ja |
| Internetaansluiting | Nee |
| Telefoonaansluiting | Nee |
| Zonnepanelen | Nee |
| Zonneboiler | Nee |
| Alarm | Nee |
| Videofoon | Nee |
| Grondwaterput | Nee |
Appartementsblok
| Lift | Nee |
|---|---|
| Intercom | Nee |
Een pand van
Vestio
Vangronsveld & Somers, thuis in ontwikkeling
Vestio staat voor 'Vangronsveld & Somers, thuis in ontwikkeling'. Vestio is actief in de realisatie van residentiële vastgoedprojecten op toplocaties in het binnenland en aan de Belgische kust in Knokke. Daarbij hecht de vastgoedspecialist veel belang aan een goede begeleiding. Vestio biedt ook assistentie bij de projectontwikkeling van woningen, appartementen, retail, verkavelingen, woon- en zorgcentra en de koop en verkoop van bestaand vastgoed. Een totaalaanpak die al meer dan 20 jaar werkt en tot heel wat exclusieve woonprojecten heeft geleid.
VKTK0265-SOC
Leer meer over vastgoed
04 January 2026
Zoek je een kantoor, een magazijn of… iets ertussenin? Bedrijfsvastgoed uitgelegd
05 November 2024
Bedrijfsvastgoed in transitie: ontdek de toekomst van werkplekken
16 October 2024
Opbrengsteigendom: een slim pad naar passief inkomen en vermogensgroei
09 September 2024
