CASCO HALFOPEN BEBOUWING IN MODERNE STIJL MET CARPORT IN ALKEN
€ 295.000
Een pand van De woonmakers
Overzicht
- 216 m² grond
- 4 Slaapkamer(s)
- 2 Badkamer(s)
Beschrijving
In Alken vinden we langs de Koolmeeslaan deze ruwbouwwoning terug. Het centrum van Alken bevindt zich op slechts enkele minuten waardoor allerlei faciliteiten, scholen en winkels vlot bereikbaar zijn. De woning vinden we terug in een residentiële buurt waar men de ideale combinatie heeft gevonden tussen een goede bereikbaarheid en de nodige rust en privacy. We bevinden ons hier op een zeer gunstige locatie met een vlotte verbinding naar het centrum van Hasselt en Sint-Truiden waardoor alle nodige faciliteiten binnen handbereik zijn.
Architectuur en afwerking
De woning wordt in casco staat verkocht waardoor u de mogelijkheid heeft om de woning volledig verder af te werken en in te richten naar uw smaak.
Het dak is reeds geïsoleerd en volledig waterdicht, voor de ventilatie ligt alles klaar enkel nog de installatie plaatsen, alle leidingen en afvoeren liggen klaar en voor de elektriciteit werd alles reeds geslepen.
Het gras werd reeds aan de voor- en achterzijde van het perceel aangelegd. De omheining zal nog volledig aangelegd worden.
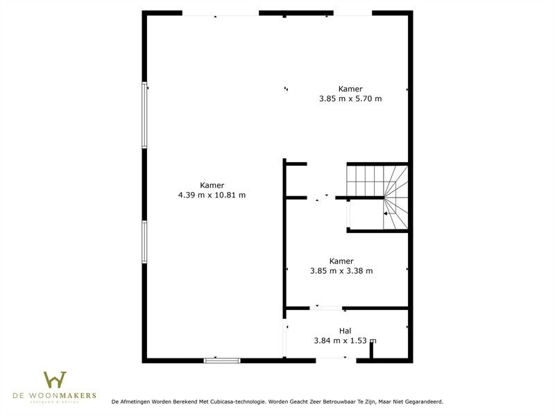
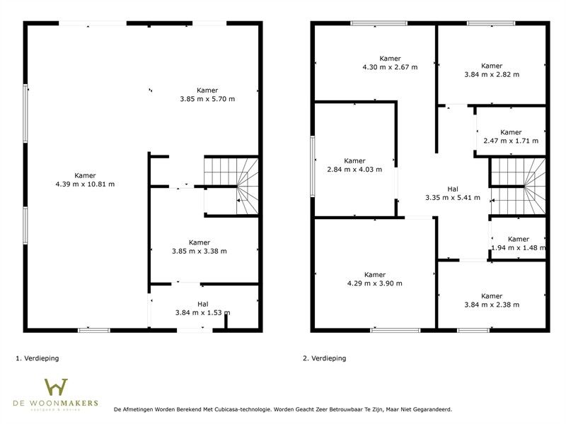
Indeling:
Deze woning heeft een bruto bewoonbare oppervlakte van 216m² en wordt als volgt ingedeeld:
Gelijkvloers: inkomhal met een apart toilet, ruime praktische berging, zithoek, eethoek en ruime eetkeuken met een prachtig zicht op de tuin.
Eerste verdieping: 4 mooie slaapkamers, 2 badkamers en een berging.
Pluspunten:
·rustige locatie maar met een zeer goede bereikbaarheid
·voldoende ruimte zowel binnen als buiten
·mogelijkheid plaatsen van een carport
Ligging
In Alken vinden we langs de Koolmeeslaan deze ruwbouwwoning terug. Het centrum van Alken bevindt zich op slechts enkele minuten waardoor allerlei faciliteiten, scholen en winkels vlot bereikbaar zijn. De woning vinden we terug in een residentiële buurt waar men de ideale combinatie heeft gevonden tussen een goede bereikbaarheid en de nodige rust en privacy. We bevinden ons hier op een zeer gunstige locatie met een vlotte verbinding naar het centrum van Hasselt en Sint-Truiden waardoor alle nodige faciliteiten binnen handbereik zijn.
Architectuur en afwerking
De woning wordt in casco staat verkocht waardoor u de mogelijkheid heeft om de woning volledig verder af te werken en in te richten naar uw smaak.
Het dak is reeds geïsoleerd en volledig waterdicht, voor de ventilatie ligt alles klaar enkel nog de installatie plaatsen, alle leidingen en afvoeren liggen klaar en voor de elektriciteit werd alles reeds geslepen.
Het gras werd reeds aan de voor- en achterzijde van het perceel aangelegd. De omheining zal nog volledig aangelegd worden.
Indeling:
Deze woning heeft een bruto bewoonbare oppervlakte van 216m² en wordt als volgt ingedeeld:
Gelijkvloers: inkomhal met een apart toilet, ruime praktische berging, zithoek, eethoek en ruime eetkeuken met een prachtig zicht op de tuin.
Eerste verdieping: 4 mooie slaapkamers, 2 badkamers en een berging.
Pluspunten:
- rustige locatie maar met een zeer goede bereikbaarheid
- voldoende ruimte zowel binnen als buiten
- mogelijkheid plaatsen van een carport
Energie
- E-peil: E0
- Beglazing: Onbekend
Op de kaart

Financieel
| Prijs |
|---|
Berekening kosten
Je aankoopkosten? Die heb je snel berekent via de knop hieronder.
Bijkomende info
Gebouw
| Verdieping | 0 |
|---|---|
| Badkamers | 2 |
| Slaapkamers | 4 |
| Verdiepingen | 0 |
| Garages | 0 |
| Parkeerplaatsen | 0 |
| Toiletten | 0 |
Faciliteiten
| Septische tank | Nee |
|---|
Perceel
| Overstromingsgevoelig | Geen |
|---|---|
| P-score | A |
| G-score | A |
| Totale oppervlakte (m²) | 216 |
| Bebouwde oppervlakte (m²) | 0 |
Vergunning
| Verkavelingsvergunning | Vergunning beschikbaar |
|---|
Uitrusting
| Investeringspand | Nee |
|---|---|
| Parking | Nee |
| Garage | Nee |
| Lift | Nee |
| Rioolaansluiting | Nee |
| Gasaansluiting | Nee |
| Wateraansluiting | Nee |
| Elektriciteitsaansluiting | Nee |
| Internetaansluiting | Nee |
| Telefoonaansluiting | Nee |
| Zonnepanelen | Nee |
| Zonneboiler | Nee |
| Alarm | Nee |
| Videofoon | Nee |
| Grondwaterput | Nee |