Gelijkvloers nieuwbouwapp. Koersel
€ 316.780
Een pand van SBC Vastgoed
Overzicht
- 84 m² bewoonbaar
- 2 Slaapkamer(s)
Beschrijving
NIEUW 'KoerselPark'
Residentie 'KoerselPark': 21 BEN-appartementen in het centrum van Koersel (achter kerk)
WONEN IN EEN PARK
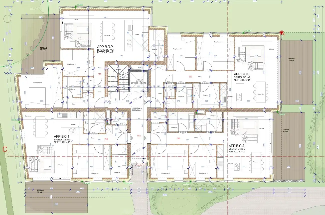
Blok B:
Gelijkvloers appartement B.0.1: ca. 72m2 (1 slpk)
Indeling: inkomhal/nachthal met vestiaireruimte, toilet, leefruimte met open keuken, berging, 1 ruime slaapkamer met ensuite badkamer
West-gericht terras: ca. 18m2, grenzend aan living
Prijs: € 272.970, exclusief kk waaronder registratierechten en BTW*
Gelijkvloers appartement B.0.2: ca. 90m2 (2 slpk)
Indeling: inkomhal met vestiaireruimte, toilet, leefruimte met open keuken, aanpalende berging, nachtgang, ruime slaapkamer 1 met zicht op terras, slaapkamer 2 en badkamer
Terras: ca. 19m2, grenzend aan living en grote slpk
Prijs: € 335.315, exclusief kk waaronder registratierechten en BTW*
Gelijkvloers appartement B.0.3: ca. 90m2 (2 slpk)
Indeling: inkomhal/nachthal met vestiaireruimte en toilet, leefruimte met open keuken, berging, 2 slaapkamers en badkamer
Ruim zonneterras: ca. 19m2, grenzend aan living
Prijs: € 335.315, exclusief kk waaronder registratierechten en BTW*
Gelijkvloers appartement B.0.4: ca. 84m2 (2 slpk)
Indeling: inkomhal/nachthal met vestiaireruimte en toilet, leefruimte met open keuken, berging, 2 slaapkamers en badkamer
Zuid-gericht terras: ca. 20m2, grenzend aan living
Prijs: € 316.780, exclusief kk waaronder registratierechten en BTW*
* VERLAAGD BTW-TARIEF VAN 6% MOGELIJK
En verder:
P-score: A
Bijzondere informatieplicht:
Vergunning uitgereikt-Woongebied-Geen verkavelingsvergunning-Geen voorkooprecht-Geen rechterlijke herstelmaatregel of bestuurlijke maatregel opgelegd
De simulaties van dit project zijn louter indicatief en de inrichting van de interieurbeelden is geen standaardinrichting.
Deze ontwikkelaar biedt u de mogelijkheid om eerst uw woning, appartement, ... te verkopen alvorens een appartement aan te kopen in dit project: bel ons voor bijkomende informatie hierover.
Boek nu je afspraak!
Alle indelingsplannen, beschikbaarheden,….: kijk op www.sbcvastgoed.be of bel ons voor een vrijblijvende afspraak: Sandra 0476217740 of Raoul 0488437501
Residentie 'KoerselPark': 21 BEN-appartementen in het centrum van Koersel (achter kerk)
WONEN IN EEN PARK
Blok B:
Gelijkvloers appartement B.0.1: ca. 72m2 (1 slpk)
Indeling: inkomhal/nachthal met vestiaireruimte, toilet, leefruimte met open keuken, berging, 1 ruime slaapkamer met ensuite badkamer
West-gericht terras: ca. 18m2, grenzend aan living
Prijs: € 272.970, exclusief kk waaronder registratierechten en BTW*
Gelijkvloers appartement B.0.2: ca. 90m2 (2 slpk)
Indeling: inkomhal met vestiaireruimte, toilet, leefruimte met open keuken, aanpalende berging, nachtgang, ruime slaapkamer 1 met zicht op terras, slaapkamer 2 en badkamer
Terras: ca. 19m2, grenzend aan living en grote slpk
Prijs: € 335.315, exclusief kk waaronder registratierechten en BTW*
Gelijkvloers appartement B.0.3: ca. 90m2 (2 slpk)
Indeling: inkomhal/nachthal met vestiaireruimte en toilet, leefruimte met open keuken, berging, 2 slaapkamers en badkamer
Ruim zonneterras: ca. 19m2, grenzend aan living
Prijs: € 335.315, exclusief kk waaronder registratierechten en BTW*
Gelijkvloers appartement B.0.4: ca. 84m2 (2 slpk)
Indeling: inkomhal/nachthal met vestiaireruimte en toilet, leefruimte met open keuken, berging, 2 slaapkamers en badkamer
Zuid-gericht terras: ca. 20m2, grenzend aan living
Prijs: € 316.780, exclusief kk waaronder registratierechten en BTW*
* VERLAAGD BTW-TARIEF VAN 6% MOGELIJK
En verder:
- lift in het gebouw
- ondergrondse parkeerplaatsen en kelderbergingen bijkomend te koop
- uitstekende ligging, in de nabijheid van alle faciliteiten
P-score: A
Bijzondere informatieplicht:
Vergunning uitgereikt-Woongebied-Geen verkavelingsvergunning-Geen voorkooprecht-Geen rechterlijke herstelmaatregel of bestuurlijke maatregel opgelegd
De simulaties van dit project zijn louter indicatief en de inrichting van de interieurbeelden is geen standaardinrichting.
Deze ontwikkelaar biedt u de mogelijkheid om eerst uw woning, appartement, ... te verkopen alvorens een appartement aan te kopen in dit project: bel ons voor bijkomende informatie hierover.
Boek nu je afspraak!
Alle indelingsplannen, beschikbaarheden,….: kijk op www.sbcvastgoed.be of bel ons voor een vrijblijvende afspraak: Sandra 0476217740 of Raoul 0488437501
Energie
- E-peil: E0
- Beglazing: Onbekend
Op de kaart

Financieel
| Prijs |
|---|
Berekening kosten
Je aankoopkosten? Die heb je snel berekent via de knop hieronder.
Bijkomende info
Gebouw
| Bouwjaar | 2025 |
|---|---|
| Staat | Nieuw |
| Bewoonbaar (m²) | 84 |
| Verdieping | 0 |
| Badkamers | 0 |
| Slaapkamers | 2 |
| Verdiepingen | 2 |
| Garages | 0 |
| Parkeerplaatsen | 0 |
| Toiletten | 0 |
Faciliteiten
| Septische tank | Nee |
|---|
Perceel
| Overstromingsgevoelig | Geen |
|---|---|
| P-score | A |
| Bebouwde oppervlakte (m²) | 0 |
| Oppervlakte terras (m²) | 20 |
| Oriëntatie tuin | Zuid |
Vergunning
| Verkavelingsvergunning | Geen beschikbaar |
|---|
Uitrusting
| Investeringspand | Nee |
|---|---|
| Parking | Nee |
| Garage | Nee |
| Terras | Ja |
| Lift | Ja |
| Rioolaansluiting | Nee |
| Gasaansluiting | Nee |
| Wateraansluiting | Nee |
| Elektriciteitsaansluiting | Nee |
| Internetaansluiting | Nee |
| Telefoonaansluiting | Nee |
| Zonnepanelen | Nee |
| Zonneboiler | Nee |
| Alarm | Nee |
| Videofoon | Nee |
| Grondwaterput | Nee |
Appartementsblok
| Aantal verdiepingen | 2 |
|---|---|
| Lift | Ja |
| Intercom | Nee |
Een pand van
SBC Vastgoed
Uw vastgoedmakelaar in Zonhoven en omstreken!
Wij verwelkomen je graag in ons gezellig kantoor aan de Halveweg.
Spring gerust binnen voor een babbel en een glaasje; wij helpen je met veel plezier en enthousiasme met de verkoop of verhuur van je woning, appartement, handelspand, grond, ...
Een projectgrond/opbrengsteigendom verkopen? Ook daarmee kunnen we helpen de juiste contacten te leggen.
Voor een waardebepaling: steeds een verslagje binnen 24U.
Groetjes en tot binnenkort! Sandra & Raoul (een afspraak buiten de kantooruren? 24/7)
KrslPrk-Blok B gelijkvl.
Leer meer over vastgoed
24 November 2025
Uitgezocht voor jouw gemeente: Hoeveel stijgt de waarde van je woning door een renovatie?
22 October 2025
Hoeveel kan ik lenen om een huis te kopen?
11 June 2025
Huis kopen met bouwovertreding? Dit moet je weten
11 May 2025