PERFECT ONDERHOUDEN WONING OP EEN PRACHTIG PERCEEL VAN 1,3 HECTARE IN KOERSEL
€ 950.000
Een pand van Het Vastgoedkantoor
Favoriet
Jouw zoektocht
Jouw scoretabel voor dit pand
Aan het laden...
Jouw geplande bezichtigingen
Aan het laden...
Overzicht
- 302 m² bewoonbaar
- 13573 m² grond
- 3 Slaapkamer(s)
- 2 Badkamer(s)
- 2 Garage(s)
Beschrijving
Perfect onderhouden woning op prachtig perceel van 1,3 ha.
Belangrijkste troeven:
- Rustige toch centrale ligging
- kwalitatief afgewerkt
- Ruime leefruimtes
- Volledig onderkelderd
- Ruim zicht over het perceel
- Grenst tegen de vallei van de zwarte beek
- Zeer veel privacy
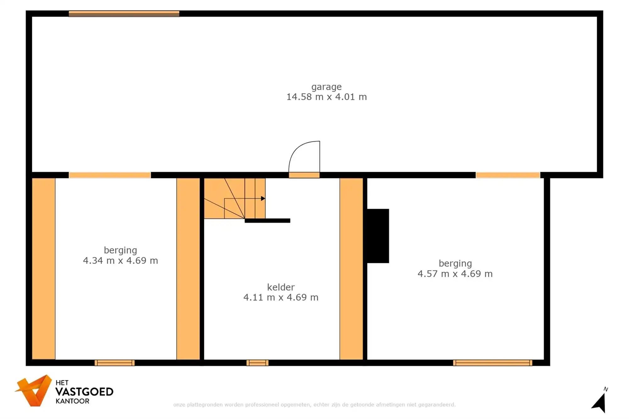
Bekijk zeker ook de grondplannen met de afmetingen. Zo krijgt u van thuis uit al een perfect beeld van wat deze woning te bieden heeft!
Wenst u meer info of een vrijblijvende bezichtiging, contacteer dan ons kantoor op het nummer 011 85 15 15 en wij helpen u graag verder.
Energie
![]() |
- EPC Certificaat: 20250811-0003662740-RES-1
- Energieverbruik: 273 kWh/m²/jaar
- E-peil: E0
- Verwarming: Gas
- Beglazing: Standaard dubbel
Op de kaart

Financieel
| Prijs | |
|---|---|
| Kadastraal inkomen (niet geïndexeerd) | € 0 |
| Kadastraal inkomen (geïndexeerd) | € 0 |
Berekening kosten
Je aankoopkosten? Die heb je snel berekend via de knop hieronder.
Bijkomende info
Gebouw
| Bouwjaar | 1988 |
|---|---|
| Staat | Goed onderhouden |
| Bouwcertificaat | Nee |
| Bewoonbaar (m²) | 302 |
| Verdieping | 0 |
| Badkamers | 2 |
| Slaapkamers | 3 |
| Verdiepingen | 0 |
| Garages | 2 |
| Parkeerplaatsen | 0 |
| Doucheruimtes | 0 |
| Toiletten | 0 |
Faciliteiten
| Keuken uitrusting | Luxueus uitgerust |
|---|---|
| Materiaal ramenomlijstingen | Hout |
| Beglazing | Standaard dubbel |
| Brandstof primaire verwarming | Gas |
| Elektrisch keuringsattest | Nee |
Perceel
| Overstromingsgevoelig | Geen |
|---|---|
| P-score | A |
| G-score | A |
| Voorkeurrecht | Nee |
| Totale oppervlakte (m²) | 13573 |
| Bebouwde oppervlakte (m²) | 0 |
| Tuin oppervlakte (m²) | 0 |
| Oppervlakte terras (m²) | 0 |
Vergunning
| Vergunning | Vergunning beschikbaar |
|---|
Uitrusting
| Investeringspand | Nee |
|---|---|
| Geschikt voor praktijk | Nee |
| Parking | Nee |
| Garage | Ja |
| Thuiskantoor | Nee |
| Kelder | Ja |
| Zolder | Nee |
| Tuin | Nee |
| Terras | Nee |
| Lift | Nee |
| Rioolaansluiting | Ja |
| Gasaansluiting | Ja |
| Wateraansluiting | Ja |
| Elektriciteitsaansluiting | Ja |
| TV aansluiting | Ja |
| Internetaansluiting | Ja |
| Telefoonaansluiting | Ja |
Een pand van
Het Vastgoedkantoor
Het Vastgoedkantoor
Een nieuw begin, Welkom thuis!
LAEREMANSSTRAAT 21 BERINGEN
Leer meer over vastgoed
23 March 2026
Op Spotto zoeken als een pro: 10 slimme tips
21 March 2026
Hoeveel kan ik lenen om een huis te kopen?
01 March 2026
Wanneer heb ik een bouwvergunning of omgevingsvergunning nodig?
17 February 2026
