RECENTE WONING MET 6 SLAAPKAMERS VLAKBIJ CENTRUM KOERSEL
€ 510.000
Een pand van Het Vastgoedkantoor
Overzicht
- 264 m² bewoonbaar
- 427 m² grond
- 6 Slaapkamer(s)
- 1 Badkamer(s)
Overstromingsgevaar gebouw
Overstromingsgevaar perceel
Beschrijving
Recente woning met 6 slaapkamers vlakbij Centrum Koersel
Belangrijkste troeven:
- Ruime woning
- Voldoet aan de moderne eisen
- 6 slaapkamers
- Buiten volledig aangelegd
- Vlakbij Koersel-Centrum
- Volledig onderkelderd
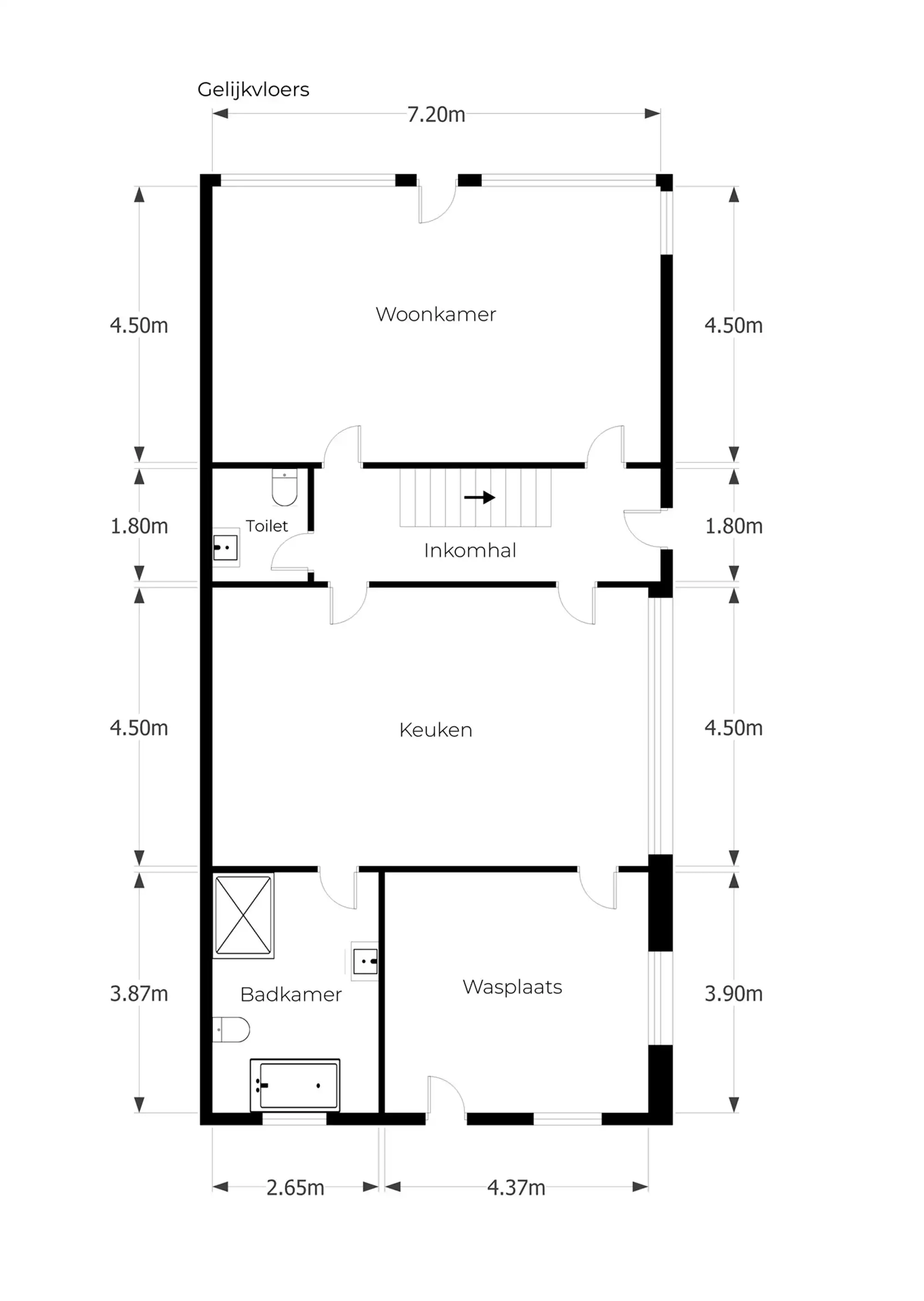
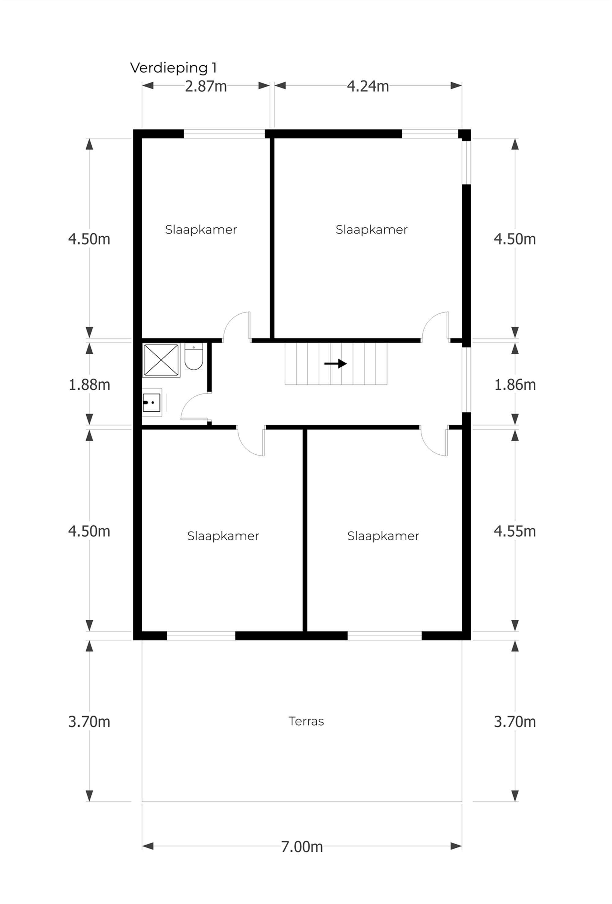
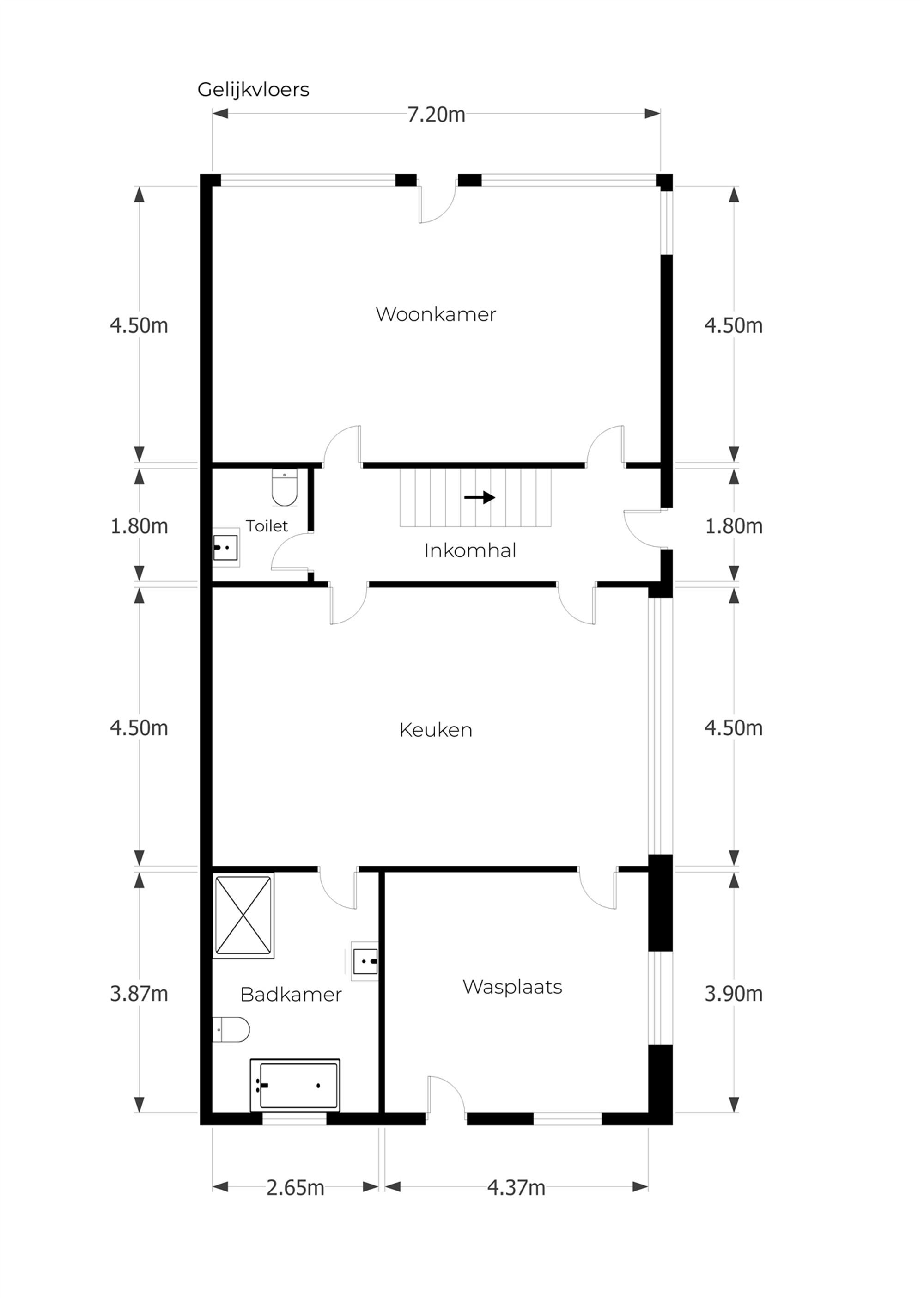
Bekijk zeker ook de grondplannen met de afmetingen. Zo krijgt u van thuis uit al een perfect beeld van wat deze woning te bieden heeft!
Wenst u meer info of een vrijblijvende bezichtiging, contacteer dan ons kantoor op het nummer 011 85 15 15 en wij helpen u graag verder.
Energie
![]() |
- EPC Certificaat: 20231020-0003017184-RES-2
- Energieverbruik: 125 kWh/m²/jaar
- E-peil: E0
- Verwarming: Gas
- Beglazing: Standaard dubbel
Op de kaart

Financieel
| Prijs | |
|---|---|
| Kadastraal inkomen (niet geïndexeerd) | € 1.250 |
| Kadastraal inkomen (geïndexeerd) | € 0 |
Berekening kosten
Je aankoopkosten? Die heb je snel berekent via de knop hieronder.
Bijkomende info
Gebouw
| Bouwjaar | 2018 |
|---|---|
| Bouwcertificaat | Nee |
| Bewoonbaar (m²) | 264 |
| Verdieping | 3 |
| Badkamers | 1 |
| Slaapkamers | 6 |
| Verdiepingen | 0 |
| Garages | 0 |
| Parkeerplaatsen | 2 |
| Doucheruimtes | 1 |
| Toiletten | 0 |
Faciliteiten
| Materiaal ramenomlijstingen | PVC |
|---|---|
| Beglazing | Standaard dubbel |
| Brandstof primaire verwarming | Gas |
| Elektrisch keuringsattest | Nee |
Perceel
| Overstromingsgevoelig | Geen |
|---|---|
| P-score | D |
| G-score | D |
| Voorkeurrecht | Nee |
| Totale oppervlakte (m²) | 427 |
| Bebouwde oppervlakte (m²) | 0 |
| Tuin oppervlakte (m²) | 0 |
| Oppervlakte terras (m²) | 0 |
Vergunning
| Vergunning | Vergunning beschikbaar |
|---|---|
| Verkavelingsvergunning | Geen beschikbaar |
Uitrusting
| Investeringspand | Nee |
|---|---|
| Geschikt voor praktijk | Nee |
| Parking | Ja |
| Garage | Nee |
| Thuiskantoor | Nee |
| Kelder | Ja |
| Zolder | Ja |
| Tuin | Nee |
| Terras | Nee |
| Lift | Nee |
| Rioolaansluiting | Ja |
| Gasaansluiting | Ja |
| Wateraansluiting | Ja |
| Elektriciteitsaansluiting | Ja |
| TV aansluiting | Ja |
| Internetaansluiting | Ja |
| Telefoonaansluiting | Ja |
Een pand van
Het Vastgoedkantoor
Het Vastgoedkantoor
Een nieuw begin, Welkom thuis!
Pieter Vanhoudtstraat 93 Beringen
Leer meer over vastgoed
24 November 2025
Uitgezocht voor jouw gemeente: Hoeveel stijgt de waarde van je woning door een renovatie?
22 October 2025
Hoeveel kan ik lenen om een huis te kopen?
11 June 2025
Huis kopen met bouwovertreding? Dit moet je weten
11 May 2025
