HANDELSHUIS MET RUIM HANDELSPAND EN 2 WOONENTITEITEN OP PERCEEL VAN 9A68CA TE KOERSEL
€ 329.000
Een pand van Het Vastgoedkantoor
Overzicht
- 365 m² bewoonbaar
- 968 m² grond
- 4 Slaapkamer(s)
- 2 Badkamer(s)
Beschrijving
Handelshuis met ruim handelspand en 2 woonentiteiten op perceel van 9a68ca.
Belangrijkste troeven:
- Handelsruimte met 2 woonentiteiten
- Grotendeels gerenoveerd
- Ruime tuin met ruim zicht
- Geschikt voor gemengd gebruik
- Ruim handelsgelijkvloers
- Zeer veel mogelijkheden
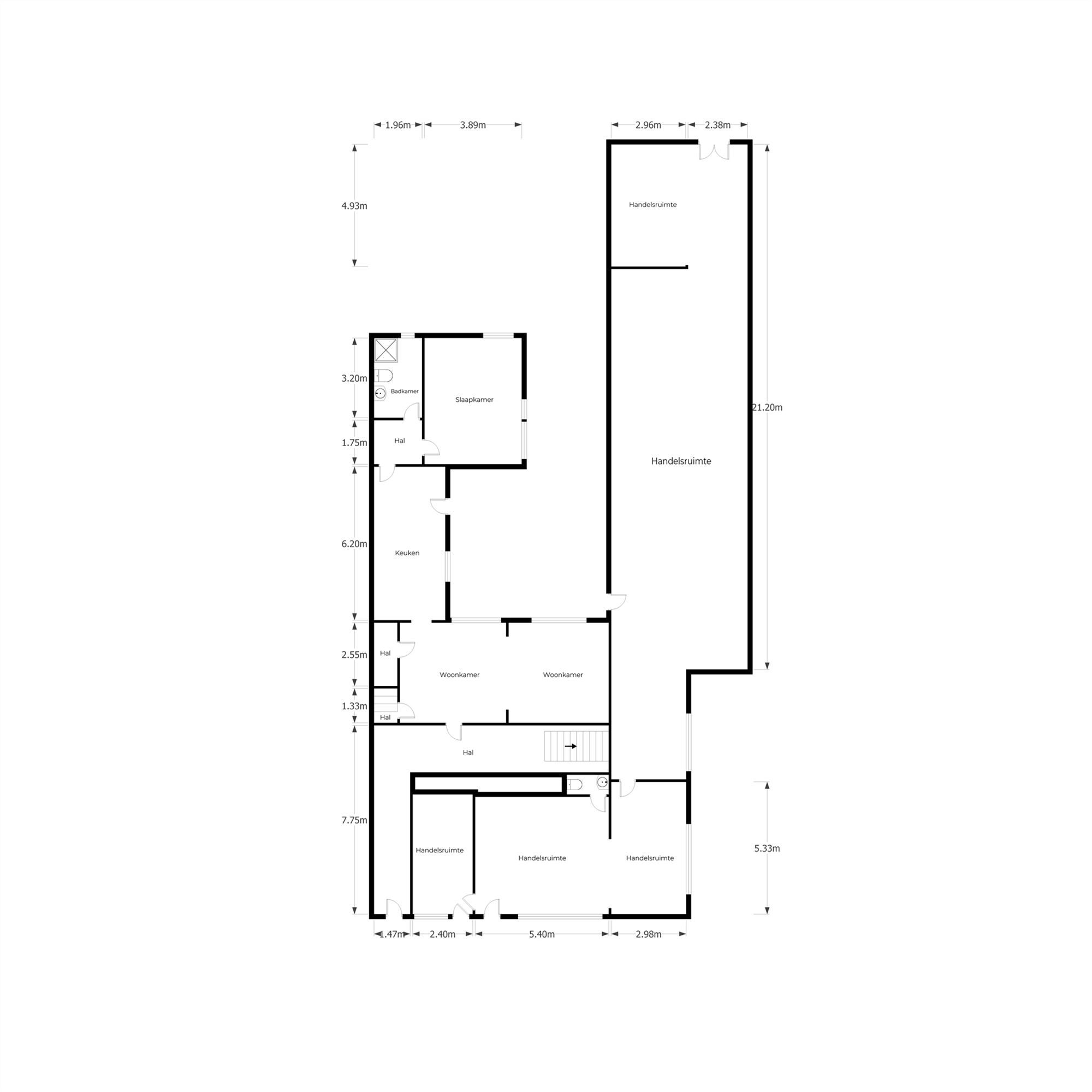
Bekijk zeker ook de grondplannen met de afmetingen. Zo krijgt u van thuis uit al een perfect beeld van wat dit pand te bieden heeft!
Wenst u meer info of een vrijblijvende bezichtiging, contacteer dan ons kantoor op het nummer 011 85 15 15 en wij helpen u graag verder.
Energie
![]() |
- EPC Certificaat: 20250127-0003515090-RES-1
- Energieverbruik: 535 kWh/m²/jaar
- E-peil: E0
- Verwarming: Gas
- Beglazing: Standaard dubbel
Let op, de renovatieverplichting in Vlaanderen verplicht de koper om deze woning na aankoop te renoveren tot een betere energieprestatie. Lees er alles over in dit artikel
Extra budget nodig voor je renovatie?
De overheid helpt je dit pand energetisch te renoveren! Hieronder zie je het premiebedrag dat je mogelijks van de overheid krijgt.
Het huidige EPC-label is:

Op de kaart

Financieel
| Prijs | |
|---|---|
| Kadastraal inkomen (niet geïndexeerd) | € 0 |
| Kadastraal inkomen (geïndexeerd) | € 0 |
Berekening kosten
Je aankoopkosten? Die heb je snel berekent via de knop hieronder.
Bijkomende info
Gebouw
| Bouwjaar | 1958 |
|---|---|
| Bouwcertificaat | Nee |
| Bewoonbaar (m²) | 365 |
| Verdieping | 2 |
| Badkamers | 2 |
| Slaapkamers | 4 |
| Verdiepingen | 0 |
| Garages | 0 |
| Parkeerplaatsen | 0 |
| Doucheruimtes | 0 |
| Toiletten | 0 |
Faciliteiten
| Keuken uitrusting | Luxueus uitgerust |
|---|---|
| Materiaal ramenomlijstingen | PVC |
| Beglazing | Standaard dubbel |
| Brandstof primaire verwarming | Gas |
| Elektrisch keuringsattest | Nee |
Perceel
| Overstromingsgevoelig | Geen |
|---|---|
| P-score | B |
| G-score | A |
| Voorkeurrecht | Nee |
| Totale oppervlakte (m²) | 968 |
| Bebouwde oppervlakte (m²) | 0 |
| Tuin oppervlakte (m²) | 0 |
| Oppervlakte terras (m²) | 0 |
Vergunning
| Vergunning | Vergunning beschikbaar |
|---|
Uitrusting
| Investeringspand | Nee |
|---|---|
| Geschikt voor praktijk | Nee |
| Parking | Nee |
| Garage | Nee |
| Thuiskantoor | Nee |
| Kelder | Ja |
| Zolder | Nee |
| Tuin | Nee |
| Terras | Nee |
| Lift | Nee |
| Rioolaansluiting | Ja |
| Gasaansluiting | Ja |
| Wateraansluiting | Ja |
| Elektriciteitsaansluiting | Ja |
| TV aansluiting | Ja |
| Internetaansluiting | Ja |
| Telefoonaansluiting | Ja |
Een pand van
Het Vastgoedkantoor
Het Vastgoedkantoor
Een nieuw begin, Welkom thuis!
POSTHOORNSTRAAT 59 BERINGEN
Leer meer over vastgoed
24 November 2025
Uitgezocht voor jouw gemeente: Hoeveel stijgt de waarde van je woning door een renovatie?
22 October 2025
Hoeveel kan ik lenen om een huis te kopen?
11 June 2025
Huis kopen met bouwovertreding? Dit moet je weten
11 May 2025



