Nog te bouwen WONING op braakliggende bouwgrond op 7a25
€ 418.000
Een pand van Immo Tessenderlo
Overzicht
- 153 m² bewoonbaar
- 725 m² grond
- 3 Slaapkamer(s)
- 1 Badkamer(s)
- 2 Toilet(ten)
Beschrijving
Woning op bouwgrond van 7,25 are (725 m²)
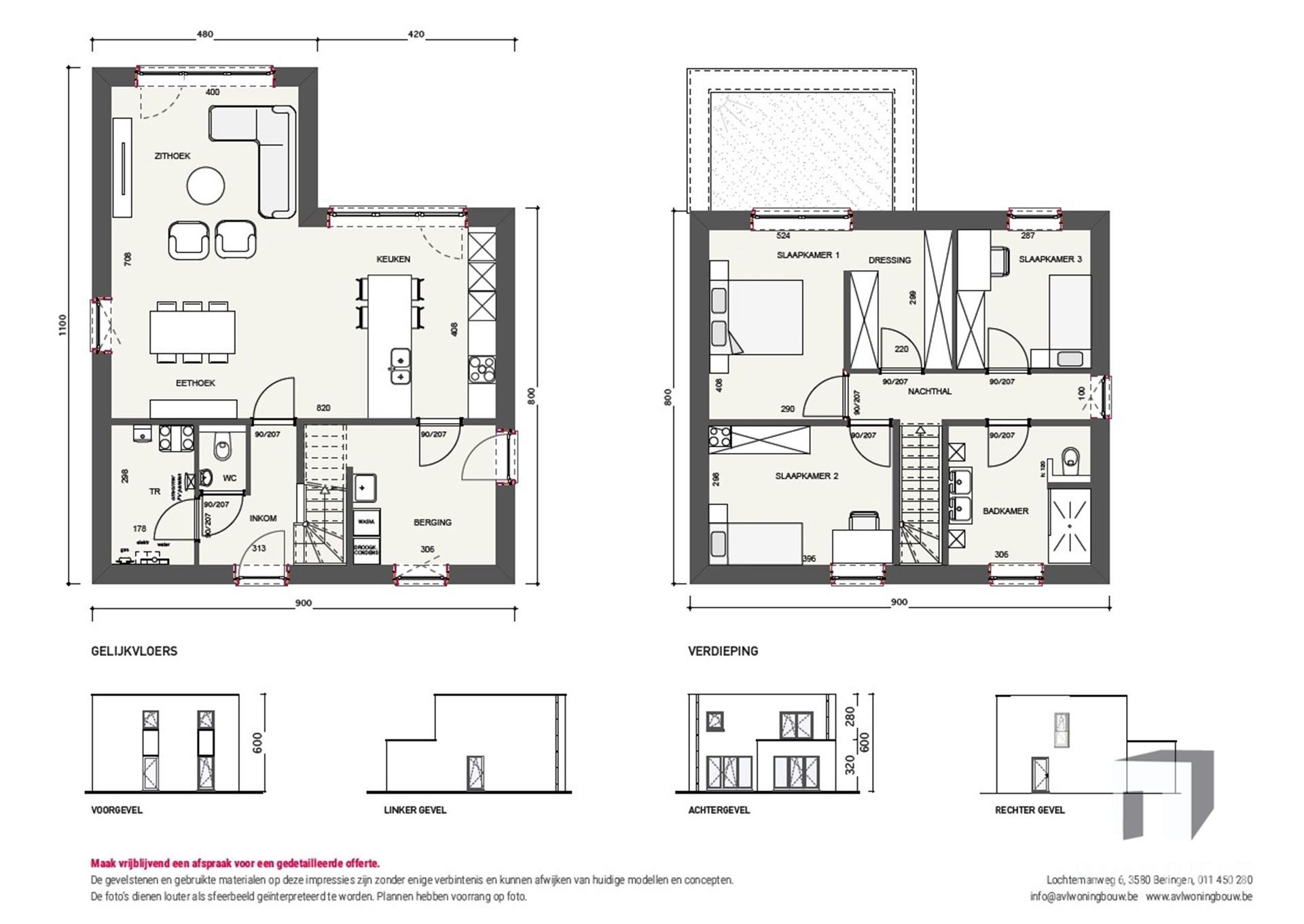
Op de foto's zie je een voorbeeld van een nog te bouwen woning in Beringen en bijhorende plannen.
Meer informatie over de woning:
Deze woning heeft een bewoonbare oppervlakte van 157 m2 met een gevel breedte van 9m. De indeling van de woning is het volgende, de leefruimte die zich op de gelijkvloers bevindt is verbonden met de keuken deze heeft zicht op de tuin. Er is ook een bergruimte aanwezig. Op de tweede verdieping zijn de 3 slaapkamers en de badkamer. Er zijn 2 toiletten aanwezig.
Alle keuzes i.v.m. de afwerking van de woning zijn naar wens bespreekbaar. Ook het ontwerp van de woning is slechts een voorstel en kan volledig met jou op maat uitgewerkt worden.
Woning vrijblijvend aangeboden door AVL woningbouw onder BTW!
Woning is casco aangeboden, dit wil dus zeggen zonder keuken / badkamer / tegels / deuren / trap.
Vanaf casco afwerking biedt de woning u alvast alle zekerheden en garanties en van daaruit kan u zorgeloos verder afwerken. Een volledig afgewerkte woning is natuurlijk ook mogelijk!
Prijs constructie woning excl. bouwgrond:
Casco prijs: 248.000€ excl. kosten*
Sleutel-op-de-deur prijs: 320.000 excl. kosten*
excl. kosten* = BTW, architect, veiligheidscoördinator, nutsvoorzieningen,...
Troef:
Deze woning combineert een rustige, natuurlijke omgeving en een strategische ligging met gemakkelijke toegang tot centrum Paal en snelweg E313.
De PRIJS van de BOUWGROND is 170.000 euro (excl. de nog te bouwen voorgestelde woning)
Geïnteresseerd en wil je graag meer info?
Bel dan: 013 /31 25 22 of mail wendy@immodiest.be
Energie
- E-peil: E0
- Beglazing: Onbekend
Op de kaart

Financieel
| Prijs | |
|---|---|
| Kadastraal inkomen (niet geïndexeerd) | € 0 |
| Kadastraal inkomen (geïndexeerd) | € 0 |
Berekening kosten
Je aankoopkosten? Die heb je snel berekent via de knop hieronder.
Bijkomende info
Gebouw
| Staat | Nieuw |
|---|---|
| Bouwcertificaat | Nee |
| Bewoonbaar (m²) | 153 |
| Verdieping | 2 |
| Gevelbreedte | 9 |
| Badkamers | 1 |
| Slaapkamers | 3 |
| Verdiepingen | 0 |
| Garages | 0 |
| Parkeerplaatsen | 0 |
| Doucheruimtes | 0 |
| Toiletten | 2 |
Faciliteiten
| Elektrisch keuringsattest | Nee |
|---|
Perceel
| Diepte (m) | 41 |
|---|---|
| Breedte (m) | 15 |
| Overstromingsgevoelig | Geen |
| Voorkeurrecht | Nee |
| Totale oppervlakte (m²) | 725 |
| Bebouwde oppervlakte (m²) | 0 |
| Tuin oppervlakte (m²) | 0 |
| Oppervlakte terras (m²) | 0 |
Vergunning
| Vergunning | Geen beschikbaar |
|---|---|
| Verkavelingsvergunning | Vergunning beschikbaar |
Uitrusting
| Investeringspand | Nee |
|---|---|
| Geschikt voor praktijk | Nee |
| Parking | Nee |
| Garage | Nee |
| Thuiskantoor | Nee |
| Kelder | Nee |
| Zolder | Nee |
| Tuin | Nee |
| Terras | Nee |
| Lift | Nee |
| Rioolaansluiting | Nee |
| Gasaansluiting | Nee |
| Wateraansluiting | Nee |
| Elektriciteitsaansluiting | Nee |
| TV aansluiting | Nee |
| Internetaansluiting | Nee |
| Telefoonaansluiting | Nee |