Virtual tour
BERINGEN - Imposante woning op +/-30a + te renoveren woning
€ 765.000
Een pand van Immo De Ras
Favoriet
Jouw zoektocht
Jouw scoretabel voor dit pand
Aan het laden...
Jouw geplande bezichtigingen
Aan het laden...
Overzicht
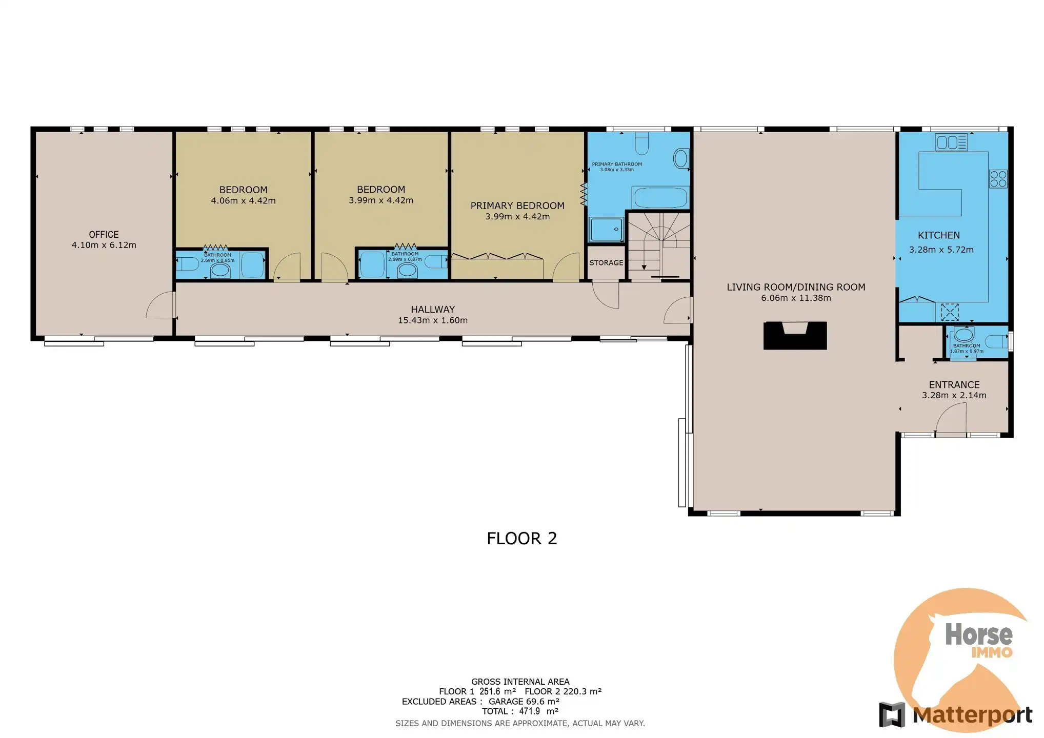
- 470 m² bewoonbaar
- 5844 m² grond
- 3 Slaapkamer(s)
- 3 Badkamer(s)
- 5 Toilet(ten)
- 1 Tuin
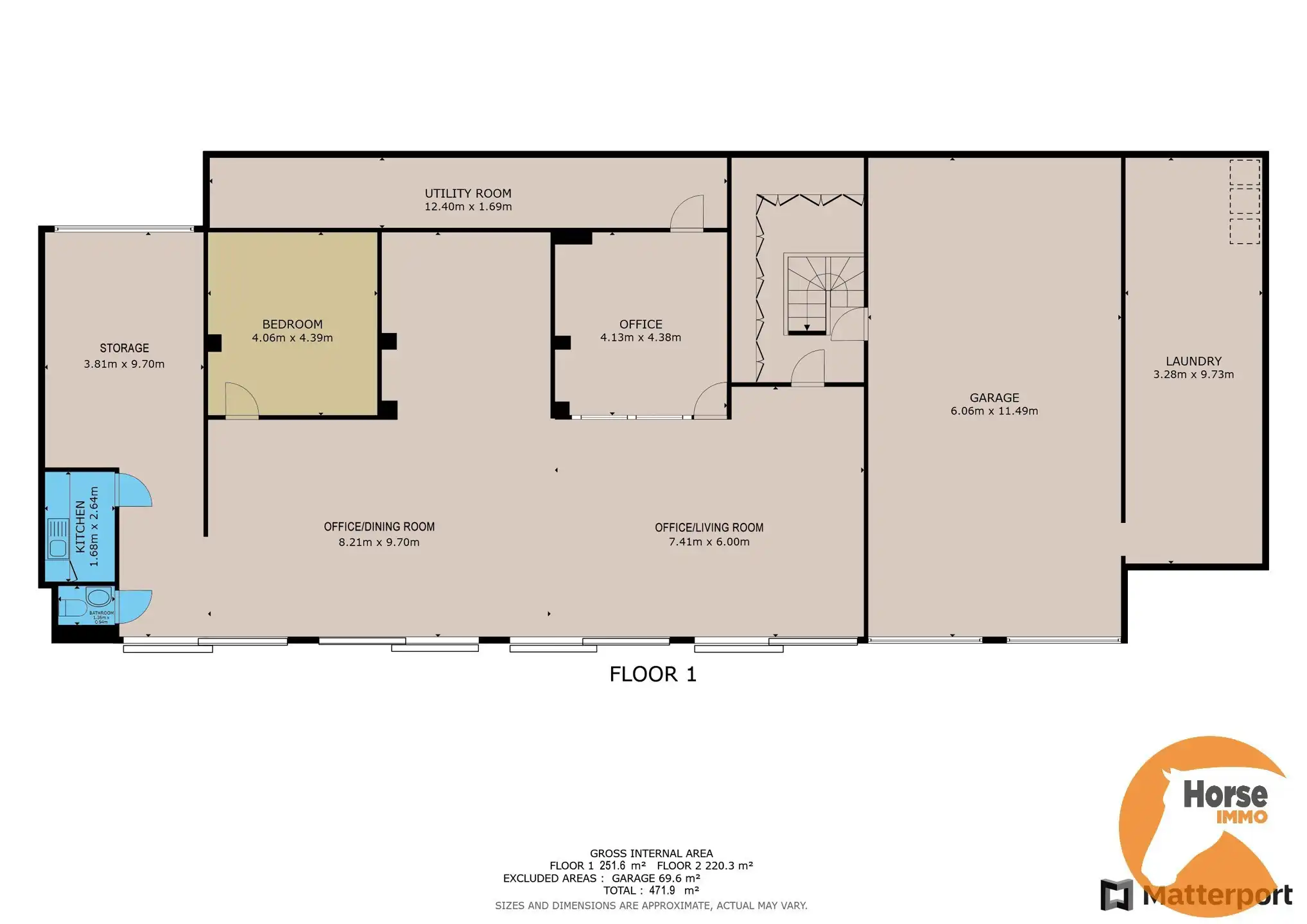
- 4 Garage(s)
Beschrijving
BERINGEN - Deze ruime woning is gelegen in het mooie Beringen en biedt maar liefst 400 m² aan leef - en werkruimte. De eerste verdieping herbergt een gezellig woongedeelte met 3 slaapkamers (waarvan 1 met eigen badkamer en de andere 2 met douchekamer en toilet), kantoorruimte, een grote leefruimte met eetgedeelte en keuken en een ruim terras met prachtig zicht over het perceel.
De woning vraagt wat opfrissing, maar dit betekent ook veel potentieel om de woning helemaal naar eigen wens in te richten!
Het gelijkvloers is flexibel inzetbaar en kan eventueel perfect dienen als toonzaal, praktijkruimte, opslagruimte… de mogelijkheden zijn eindeloos. Dit heeft een oppervlakte van 250 m2 en omvat ook een garage van maar liefst 70m2.
Buiten bevindt zich momenteel een oprijlaan, maar met een perceelgrootte van ruim 30 are is er ruimte genoeg om een schitterende tuin aan te leggen en nog parkeerruimte te voorzien.
Dit perceel is ook gelegen in woongebied met landelijk karakter en heeft voldoende straatbreedte om eventueel verkaveld te worden tot extra bouwplaats(en) naast de bestaande woning, veel potentieel dus!
Verder ook een woning gelegen langs de Stalsesteenweg. Deze werd onbewoonbaar verklaard maar kan na een grondige renovatie perfect dienen om bvb te verhuren, als starterswoning,... Gezien de aanpalende ligging zijn hier veel mogelijkheden.
Interesse? Contacteer ons voor een bezoek op 053/60 65 66 en ontdek de mogelijkheden van deze unieke eigendom!
De woning vraagt wat opfrissing, maar dit betekent ook veel potentieel om de woning helemaal naar eigen wens in te richten!
Het gelijkvloers is flexibel inzetbaar en kan eventueel perfect dienen als toonzaal, praktijkruimte, opslagruimte… de mogelijkheden zijn eindeloos. Dit heeft een oppervlakte van 250 m2 en omvat ook een garage van maar liefst 70m2.
Buiten bevindt zich momenteel een oprijlaan, maar met een perceelgrootte van ruim 30 are is er ruimte genoeg om een schitterende tuin aan te leggen en nog parkeerruimte te voorzien.
Dit perceel is ook gelegen in woongebied met landelijk karakter en heeft voldoende straatbreedte om eventueel verkaveld te worden tot extra bouwplaats(en) naast de bestaande woning, veel potentieel dus!
Verder ook een woning gelegen langs de Stalsesteenweg. Deze werd onbewoonbaar verklaard maar kan na een grondige renovatie perfect dienen om bvb te verhuren, als starterswoning,... Gezien de aanpalende ligging zijn hier veel mogelijkheden.
Interesse? Contacteer ons voor een bezoek op 053/60 65 66 en ontdek de mogelijkheden van deze unieke eigendom!
BERINGEN - Deze ruime woning is gelegen in het mooie Beringen en biedt maar liefst 400 m² aan leef - en werkruimte. De eerste verdieping herbergt een gezellig woongedeelte met 3 slaapkamers (waarvan 1 met eigen badkamer en de andere 2 met douchekamer en toilet), kantoorruimte, een grote leefruimte met eetgedeelte en keuken en een ruim terras met prachtig zicht over het perceel.
De woning vraagt wat opfrissing, maar dit betekent ook veel potentieel om de woning helemaal naar eigen wens in te richten!
Het gelijkvloers is flexibel inzetbaar en kan eventueel perfect dienen als toonzaal, praktijkruimte, opslagruimte… de mogelijkheden zijn eindeloos. Dit heeft een oppervlakte van 250 m2 en omvat ook een garage van maar liefst 70m2.
Buiten bevindt zich momenteel een oprijlaan, maar met een perceelgrootte van ruim 30 are is er ruimte genoeg om een schitterende tuin aan te leggen en nog parkeerruimte te voorzien.
Dit perceel is ook gelegen in woongebied met landelijk karakter en heeft voldoende straatbreedte om eventueel verkaveld te worden tot extra bouwplaats(en) naast de bestaande woning, veel potentieel dus!
Verder ook de woning gelegen langs de Stalsesteenweg. Deze werd onbewoonbaar verklaard maar kan na een grondige renovatie perfect dienen om bvb te verhuren, als starterswoning,... Gezien de aanpalende ligging zijn hier veel mogelijkheden.
Interesse? Contacteer ons voor een bezoek op 053/60 65 66 en ontdek de mogelijkheden van deze unieke eigendom!
De woning vraagt wat opfrissing, maar dit betekent ook veel potentieel om de woning helemaal naar eigen wens in te richten!
Het gelijkvloers is flexibel inzetbaar en kan eventueel perfect dienen als toonzaal, praktijkruimte, opslagruimte… de mogelijkheden zijn eindeloos. Dit heeft een oppervlakte van 250 m2 en omvat ook een garage van maar liefst 70m2.
Buiten bevindt zich momenteel een oprijlaan, maar met een perceelgrootte van ruim 30 are is er ruimte genoeg om een schitterende tuin aan te leggen en nog parkeerruimte te voorzien.
Dit perceel is ook gelegen in woongebied met landelijk karakter en heeft voldoende straatbreedte om eventueel verkaveld te worden tot extra bouwplaats(en) naast de bestaande woning, veel potentieel dus!
Verder ook de woning gelegen langs de Stalsesteenweg. Deze werd onbewoonbaar verklaard maar kan na een grondige renovatie perfect dienen om bvb te verhuren, als starterswoning,... Gezien de aanpalende ligging zijn hier veel mogelijkheden.
Interesse? Contacteer ons voor een bezoek op 053/60 65 66 en ontdek de mogelijkheden van deze unieke eigendom!
Energie
![]() |
- EPC Certificaat: 20250626-0003633019-RES-1
- Energieverbruik: 210 kWh/m²/jaar
Op de kaart

Downloads
- Maatregelenregister B0744.pdf (pdf)
- Maatregelenregister B1038.pdf (pdf)
- Maatregelenregister B0752.pdf (pdf)
- Maatregelenregister B0751-00W.pdf (pdf)
- RechtVanVoorkoop perceel B744.pdf (pdf)
- Overstromingsgevaar perceel B744.pdf (pdf)
- RechtVanVoorkoop perceel B751w.pdf (pdf)
- Overstromingsgevaar perceel B751w.pdf (pdf)
- OngeschiktOnbewoonbaar perceel B751w.pdf (pdf)
- Herstelvorderingen perceel B751w.pdf (pdf)
- Gewestinfo perceel B751w.pdf (pdf)
- STED B751w.pdf (pdf)
- STED B744.pdf (pdf)
- OVAM 751W.pdf (pdf)
- OVAM 744.pdf (pdf)
- EPC_Stalsesteenweg 52_Beringen.pdf (pdf)
- asbestattest Stalsesteenweg 52, 3581 Beringen.pdf (pdf)
- Kadastraal plan huis wit huisje.pdf (pdf)
- STED B1038c.pdf (pdf)
- STED B752c.pdf (pdf)
- OVAM 1038C.pdf (pdf)
- OVAM 752C.pdf (pdf)
- Keuring mazouttank.pdf (pdf)
- EPC_Vossenhoek 1_Beverlo-Beringen.pdf (pdf)
- EK Vossenhoek 1.pdf (pdf)
- sbestattest Vossenhoek 1, 3581 Beringen.pdf (pdf)
- Gewestinfo perceel B752c.pdf (pdf)
- RechtVanVoorkoop perceel B752c.pdf (pdf)
- Overstromingsgevaar perceel B752c.pdf (pdf)
- OnroerendErfgoed perceel B752c.pdf (pdf)
- OnroerendErfgoed perceel B1038c.pdf (pdf)
- Gewestinfo perceel B1038c.pdf (pdf)
- RechtVanVoorkoop perceel B1038c.pdf (pdf)
- Overstromingsgevaar perceel B1038c.pdf (pdf)
Financieel
| Prijs | |
|---|---|
| Kadastraal inkomen (niet geïndexeerd) | € 2.090 |
Berekening kosten
Je aankoopkosten? Die heb je snel berekend via de knop hieronder.
Bijkomende info
Gebouw
| Bouwjaar | 1975 |
|---|---|
| Staat | Goed onderhouden |
| Bewoonbaar (m²) | 470 |
| Gevels | 4 |
| Gevelbreedte | 30 |
| Badkamers | 3 |
| Slaapkamers | 3 |
| Verdiepingen | 1 |
| Garages | 4 |
| Parkeerplaatsen | 2 |
| Doucheruimtes | 2 |
| Toiletten | 5 |
Faciliteiten
| Type vloer | |
|---|---|
| Keuken uitrusting | Goed uitgerust |
| Elektrisch keuringsattest | Nee |
Perceel
| Overstromingsgevoelig | Geen |
|---|---|
| P-score | A |
| G-score | A |
| Voorkeurrecht | Nee |
| Totale oppervlakte (m²) | 5844 |
| Tuin oppervlakte (m²) | 0 |
| Oriëntatie terras | ZuidOost |
Vergunning
| Vergunning | Vergunning beschikbaar |
|---|---|
| Verkavelingsvergunning | Geen beschikbaar |
Uitrusting
| Geschikt voor rolstoelgebruikers | Nee |
|---|---|
| Geschikt voor praktijk | Ja |
| Parking | Ja |
| Garage | Ja |
| Thuiskantoor | Ja |
| Tuin | Ja |
| Terras | Ja |
| Lift | Nee |
| Wateraansluiting | Ja |
| Elektriciteitsaansluiting | Ja |
| Zwembad | Nee |
| Zwemvijver | Nee |
Een pand van
Immo De Ras
IMMO DE RAS
IMMO DE RAS, jouw vastgoedexpert bij het vinden van een nieuwe bestemming voor uw vastgoed. Verkoop en verhuur van huizen, appartementen en gronden. Wij helpen u graag verder met ons groot aanbod te koop in regio Lede, Erpe-Mere, Sint-Lievens-Houtem, Herzele, Zottegem, Wichelen, Wetteren, ... Services: gratis schatting, kopen en verkopen, projectontwikkeling, certificaten en keuringen.
7584356
Leer meer over vastgoed
24 April 2026
Duurzaam gelegen woning? Check je Mobiscore
23 March 2026
Op Spotto zoeken als een pro: 10 slimme tips
21 March 2026
Hoeveel kan ik lenen om een huis te kopen?
01 March 2026
