Virtual tour
BERINGEN - Imposante woning met handelsruimte op +/-30a
€ 599.000
Een pand van Immo De Ras
Overzicht
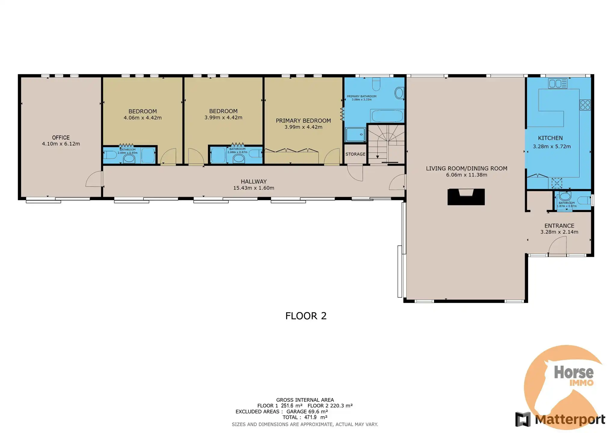
- 400 m² bewoonbaar
- 3028 m² grond
- 3 Slaapkamer(s)
- 3 Badkamer(s)
- 5 Toilet(ten)
- 1 Tuin
- 4 Garage(s)
Beschrijving
BERINGEN - Deze ruime woning is gelegen in het mooie Beringen en biedt maar liefst 400 m² aan leef - en werkruimte. De eerste verdieping herbergt een gezellig woongedeelte met 3 slaapkamers (waarvan 1 met eigen badkamer en de andere 2 met douchekamer en toilet), kantoorruimte, een grote leefruimte met eetgedeelte en keuken en een ruim terras met prachtig zicht over het perceel.
De woning vraagt wat opfrissing, maar dit betekent ook veel potentieel om de woning helemaal naar eigen wens in te richten!
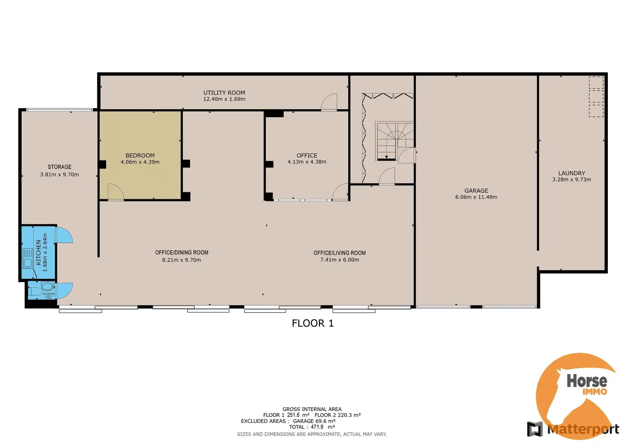
Het gelijkvloers is flexibel inzetbaar en kan eventueel perfect dienen als toonzaal, praktijkruimte, opslagruimte… de mogelijkheden zijn eindeloos. Dit heeft een oppervlakte van 250 m2 en omvat ook een garage van maar liefst 70m2.
Buiten bevindt zich momenteel een oprijlaan, maar met een perceelgrootte van ruim 30 are is er ruimte genoeg om een schitterende tuin aan te leggen en nog parkeerruimte te voorzien.
Dit perceel is ook gelegen in woongebied met landelijk karakter en heeft voldoende straatbreedte om eventueel verkaveld te worden tot extra bouwplaats(en) naast de bestaande woning, veel potentieel dus!
Interesse? Contacteer ons voor een bezoek op 053/60 65 66 en ontdek de mogelijkheden van deze unieke woning!
De woning vraagt wat opfrissing, maar dit betekent ook veel potentieel om de woning helemaal naar eigen wens in te richten!
Het gelijkvloers is flexibel inzetbaar en kan eventueel perfect dienen als toonzaal, praktijkruimte, opslagruimte… de mogelijkheden zijn eindeloos. Dit heeft een oppervlakte van 250 m2 en omvat ook een garage van maar liefst 70m2.
Buiten bevindt zich momenteel een oprijlaan, maar met een perceelgrootte van ruim 30 are is er ruimte genoeg om een schitterende tuin aan te leggen en nog parkeerruimte te voorzien.
Dit perceel is ook gelegen in woongebied met landelijk karakter en heeft voldoende straatbreedte om eventueel verkaveld te worden tot extra bouwplaats(en) naast de bestaande woning, veel potentieel dus!
Interesse? Contacteer ons voor een bezoek op 053/60 65 66 en ontdek de mogelijkheden van deze unieke woning!
BERINGEN - Deze ruime woning is gelegen in het mooie Beringen en biedt maar liefst 400 m² aan leef - en werkruimte. De eerste verdieping herbergt een gezellig woongedeelte met 3 slaapkamers (waarvan 1 met eigen badkamer en de andere 2 met douchekamer en toilet), kantoorruimte, een grote leefruimte met eetgedeelte en keuken en een ruim terras met prachtig zicht over het perceel.
De woning vraagt wat opfrissing, maar dit betekent ook veel potentieel om de woning helemaal naar eigen wens in te richten!
Het gelijkvloers is flexibel inzetbaar en kan eventueel perfect dienen als toonzaal, praktijkruimte, opslagruimte… de mogelijkheden zijn eindeloos. Dit heeft een oppervlakte van 250 m2 en omvat ook een garage van maar liefst 70m2.
Buiten bevindt zich momenteel een oprijlaan, maar met een perceelgrootte van ruim 30 are is er ruimte genoeg om een schitterende tuin aan te leggen en nog parkeerruimte te voorzien.
Dit perceel is ook gelegen in woongebied met landelijk karakter en heeft voldoende straatbreedte om eventueel verkaveld te worden tot extra bouwplaats(en) naast de bestaande woning, veel potentieel dus!
Interesse? Contacteer ons voor een bezoek op 053/60 65 66 en ontdek de mogelijkheden van deze unieke woning!
De woning vraagt wat opfrissing, maar dit betekent ook veel potentieel om de woning helemaal naar eigen wens in te richten!
Het gelijkvloers is flexibel inzetbaar en kan eventueel perfect dienen als toonzaal, praktijkruimte, opslagruimte… de mogelijkheden zijn eindeloos. Dit heeft een oppervlakte van 250 m2 en omvat ook een garage van maar liefst 70m2.
Buiten bevindt zich momenteel een oprijlaan, maar met een perceelgrootte van ruim 30 are is er ruimte genoeg om een schitterende tuin aan te leggen en nog parkeerruimte te voorzien.
Dit perceel is ook gelegen in woongebied met landelijk karakter en heeft voldoende straatbreedte om eventueel verkaveld te worden tot extra bouwplaats(en) naast de bestaande woning, veel potentieel dus!
Interesse? Contacteer ons voor een bezoek op 053/60 65 66 en ontdek de mogelijkheden van deze unieke woning!
Energie
![]() |
- EPC Certificaat: 20250626-0003633019-RES-1
- Energieverbruik: 210 kWh/m²/jaar
Op de kaart

Downloads
- Overstromingsgevaar perceel B1038c.pdf (pdf)
- RechtVanVoorkoop perceel B1038c.pdf (pdf)
- Gewestinfo perceel B1038c.pdf (pdf)
- OnroerendErfgoed perceel B1038c.pdf (pdf)
- OnroerendErfgoed perceel B752c.pdf (pdf)
- Overstromingsgevaar perceel B752c.pdf (pdf)
- RechtVanVoorkoop perceel B752c.pdf (pdf)
- Gewestinfo perceel B752c.pdf (pdf)
- sbestattest Vossenhoek 1, 3581 Beringen.pdf (pdf)
- EK Vossenhoek 1.pdf (pdf)
- EPC_Vossenhoek 1_Beverlo-Beringen.pdf (pdf)
- Keuring mazouttank.pdf (pdf)
- OVAM 752C.pdf (pdf)
- OVAM 1038C.pdf (pdf)
- STED B752c.pdf (pdf)
- STED B1038c.pdf (pdf)
- Kadastraal plan Vossenhoek 1.pdf (pdf)
Financieel
| Prijs | |
|---|---|
| Kadastraal inkomen (niet geïndexeerd) | € 1.603 |
Berekening kosten
Je aankoopkosten? Die heb je snel berekent via de knop hieronder.
Bijkomende info
Gebouw
| Bouwjaar | 1975 |
|---|---|
| Staat | Goed onderhouden |
| Bewoonbaar (m²) | 400 |
| Gevels | 4 |
| Gevelbreedte | 30 |
| Badkamers | 3 |
| Slaapkamers | 3 |
| Verdiepingen | 1 |
| Garages | 4 |
| Parkeerplaatsen | 2 |
| Doucheruimtes | 2 |
| Toiletten | 5 |
Faciliteiten
| Type vloer | |
|---|---|
| Keuken uitrusting | Goed uitgerust |
| Elektrisch keuringsattest | Nee |
Perceel
| Overstromingsgevoelig | Geen |
|---|---|
| P-score | A |
| G-score | A |
| Voorkeurrecht | Nee |
| Totale oppervlakte (m²) | 3028 |
| Tuin oppervlakte (m²) | 0 |
| Oriëntatie terras | ZuidOost |
Vergunning
| Vergunning | Vergunning beschikbaar |
|---|---|
| Verkavelingsvergunning | Geen beschikbaar |
Uitrusting
| Geschikt voor rolstoelgebruikers | Nee |
|---|---|
| Geschikt voor praktijk | Ja |
| Parking | Nee |
| Garage | Ja |
| Thuiskantoor | Ja |
| Tuin | Ja |
| Terras | Ja |
| Lift | Nee |
| Wateraansluiting | Ja |
| Elektriciteitsaansluiting | Ja |
| Zwembad | Nee |
| Zwemvijver | Nee |
Een pand van
Immo De Ras
IMMO DE RAS
IMMO DE RAS, jouw vastgoedexpert bij het vinden van een nieuwe bestemming voor uw vastgoed. Verkoop en verhuur van huizen, appartementen en gronden. Wij helpen u graag verder met ons groot aanbod te koop in regio Lede, Erpe-Mere, Sint-Lievens-Houtem, Herzele, Zottegem, Wichelen, Wetteren, ... Services: gratis schatting, kopen en verkopen, projectontwikkeling, certificaten en keuringen.
7236693
Leer meer over vastgoed
24 November 2025
Uitgezocht voor jouw gemeente: Hoeveel stijgt de waarde van je woning door een renovatie?
22 October 2025
Hoeveel kan ik lenen om een huis te kopen?
11 June 2025
Huis kopen met bouwovertreding? Dit moet je weten
11 May 2025
