Bouwgrond met woningvoorstel in rustige verkaveling
€ 357.000
Een pand van Nancy Aerts Vastgoed
Overzicht
- 144 m² bewoonbaar
- 449 m² grond
- 3 Slaapkamer(s)
- 1 Badkamer(s)
- 2 Toilet(ten)
- 1 Tuin
Beschrijving
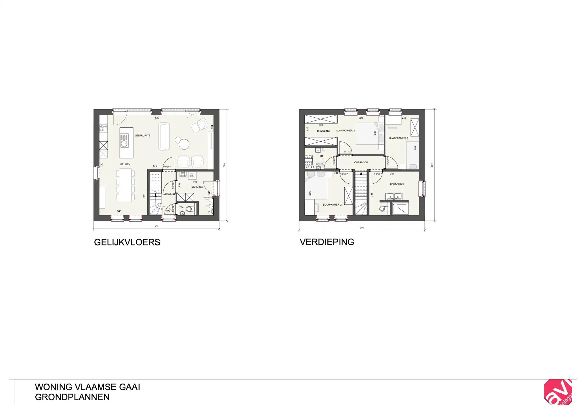
Voor deze bouwgrond werd een modern woningvoorstel uitgewerkt met een bewoonbare oppervlakte van 144 m². Het ontwerp omvat een leefruimte met eet- en zithoek, een ruime open keuken, berging, drie slaapkamers (waarvan één met dressing), een badkamer met douche en een technische ruimte. De woning wordt standaard uitgerust met warmtepomp, vloerverwarming, zonnepanelen en ventilatie D+, met aandacht voor energiezuinig wonen.
Het ontwerp is volledig aanpasbaar: zowel indeling als afwerking kunnen naar wens worden uitgewerkt. Casco of sleutel‑op‑de‑deur is mogelijk.
PRIJS SLEUTEL OP DE DEUR: €357.000
In de Overlanderstraat in Koersel bevindt zich deze bouwgrond van 4a49ca, gelegen in een rustige verkaveling in een doodlopende straat zonder doorgaand verkeer. De aangename oriëntatie en de stille ligging vormen hier een duidelijke meerwaarde voor wie op zoek is naar een evenwichtige woonomgeving.
Het perceel heeft een straatbreedte van 15 meter en een diepte van 31,80 meter aan de ene zijde en 28,76 meter aan de andere zijde. Volgens de geldende bouwvoorschriften wordt er 3 meter afstand voorzien tot de zijdelingse perceelgrens en 5 meter tot de rooilijn, wat bijdraagt aan een open en verzorgd straatbeeld.
Voor deze bouwgrond werd een modern woningvoorstel uitgewerkt met een bewoonbare oppervlakte van 144 m². Het ontwerp omvat een leefruimte met eet- en zithoek, een ruime open keuken en een praktische berging. Daarnaast zijn er drie slaapkamers voorzien, waarvan één met dressing, een badkamer met douche en een technische ruimte. De woning wordt uitgerust met een warmtepomp, vloerverwarming, zonnepanelen en ventilatie D+, met aandacht voor energiezuinig wonen.
Het voorgestelde ontwerp is volledig aanpasbaar. Zowel de indeling als de afwerkingsgraad kunnen afgestemd worden op jouw wensen. Je kan kiezen voor een casco oplevering, waarbij je zelf verder afwerkt, of voor een volledig afgewerkte woning.
Een mooie kans om in Koersel een woning op maat te realiseren op een rustige en goed gelegen locatie.
PRIJS SLEUTEL OP DE DEUR: € 357 000
€ 357 000 excl. alle kosten op grond en constructie
€ 439 000 incl. alle kosten op grond en constructie
Sleutel op de deur afwerking
- EPB A+
- Vloerverwarming en warmtepomp
- Ventilatiesysteem D+
- 8 zonnepanelen
- PVC buitenschrijnwerk
- Afgewerkte keuken
- Sanitaire toestellen
- Tegelvloeren op het gelijkvloers en in de badkamer
- Binnendeuren
- Voegwerken
- Trap in rubberwood
Meer weten? Neem gerust met ons contact op.
Dit project realiseren we in samenwerking met AVL Woningbouw.
Energie
Op de kaart

Financieel
| Prijs |
|---|
Berekening kosten
Je aankoopkosten? Die heb je snel berekend via de knop hieronder.
Bijkomende info
Gebouw
| Staat | Nieuw |
|---|---|
| Bewoonbaar (m²) | 144 |
| Gevels | 4 |
| Gevelbreedte | 9 |
| Badkamers | 1 |
| Slaapkamers | 3 |
| Verdiepingen | 2 |
| Parkeerplaatsen | 0 |
| Toiletten | 2 |
Faciliteiten
| Type vloer | |
|---|---|
| Keuken uitrusting | Luxueus uitgerust |
Perceel
| Overstromingsgevoelig | Geen |
|---|---|
| P-score | A |
| G-score | A |
| Voorkeurrecht | Nee |
| Totale oppervlakte (m²) | 449 |
| Tuin oppervlakte (m²) | 0 |
| Oriëntatie voorgevel | Noordwest |
Vergunning
| Vergunning | Geen beschikbaar |
|---|---|
| Verkavelingsvergunning | Vergunning beschikbaar |
| Bouwovertreding | Geen |
| Bouwovertreding dagvaardiging | Geen |
Uitrusting
| Geschikt voor rolstoelgebruikers | Nee |
|---|---|
| Parking | Ja |
| Garage | Nee |
| Tuin | Ja |
| Terras | Nee |
| Lift | Nee |