Bouwgrond LOT 97 - Ter Dauten
€ 140.000
Een pand van Vestio
Favoriet
Jouw zoektocht
Jouw scoretabel voor dit pand
Aan het laden...
Jouw geplande bezichtigingen
Aan het laden...
Overzicht
- 550 m² grond
Beschrijving
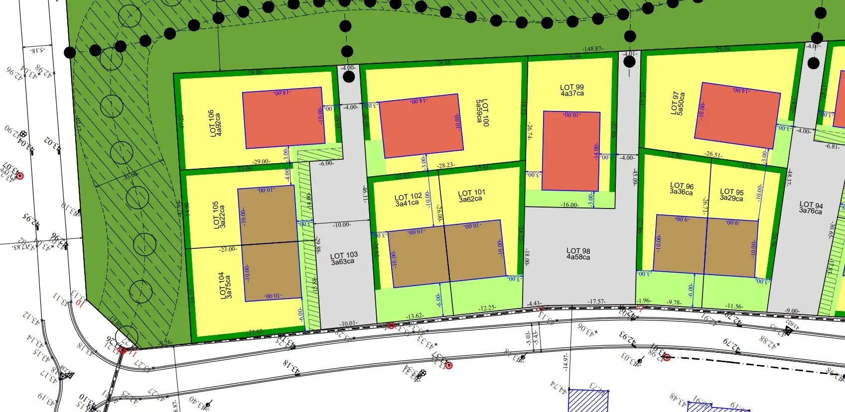
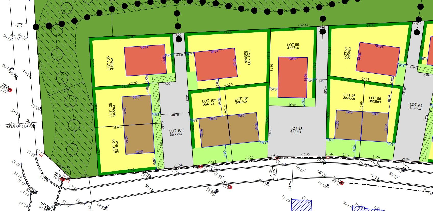
Lot 97 betreft een perceel bouwgrond van 5a 50ca, bestemd voor open bebouwing.
Lot 97 betreft een bouwperceel van 5a 50ca, bestemd voor openbebouwing. Dit lot is gelegen op de Sint-Barbarastraat te Diepenbeek.
De gemiddelde perceelbreedte bedraagt 19m en de gemiddelde perceeldiepte 27m.
Interesse? Neem gerust contact op met ons kantoor voor bijkomende inlichtingen op het nummer 011 80 00 00 of via info@vestio.com
De gemiddelde perceelbreedte bedraagt 19m en de gemiddelde perceeldiepte 27m.
Interesse? Neem gerust contact op met ons kantoor voor bijkomende inlichtingen op het nummer 011 80 00 00 of via info@vestio.com
Energie
- E-peil: E0
- Beglazing: Onbekend
Op de kaart

Financieel
| Prijs |
|---|
Bijkomende info
Perceel
| Overstromingsgevoelig | Geen |
|---|---|
| Totale oppervlakte (m²) | 550 |
Vergunning
| Verkavelingsvergunning | Vergunning beschikbaar |
|---|
Uitrusting
| Investeringspand | Nee |
|---|---|
| Rioolaansluiting | Nee |
| Gasaansluiting | Nee |
| Wateraansluiting | Nee |
| Elektriciteitsaansluiting | Nee |
| Internetaansluiting | Nee |
| Telefoonaansluiting | Nee |
Een pand van
Vestio
Vangronsveld & Somers, thuis in ontwikkeling
Vestio staat voor 'Vangronsveld & Somers, thuis in ontwikkeling'. Vestio is actief in de realisatie van residentiële vastgoedprojecten op toplocaties in het binnenland en aan de Belgische kust in Knokke. Daarbij hecht de vastgoedspecialist veel belang aan een goede begeleiding. Vestio biedt ook assistentie bij de projectontwikkeling van woningen, appartementen, retail, verkavelingen, woon- en zorgcentra en de koop en verkoop van bestaand vastgoed. Een totaalaanpak die al meer dan 20 jaar werkt en tot heel wat exclusieve woonprojecten heeft geleid.
Ter Dauten/lot 97
Leer meer over vastgoed
23 March 2026
Op Spotto zoeken als een pro: 10 slimme tips
21 March 2026
Hoeveel kan ik lenen om een huis te kopen?
01 March 2026
Wanneer heb ik een bouwvergunning of omgevingsvergunning nodig?
17 February 2026