Virtual tour
UNIEK INTREKKLAAR APPARTEMENT
€ 370.000
Een pand van Vastgoedkantoor MARVY
Overzicht
- 143 m² bewoonbaar
- 3 Slaapkamer(s)
- 1 Badkamer(s)
- 2 Toilet(ten)
Overstromingsgevaar gebouw
Overstromingsgevaar perceel
Beschrijving
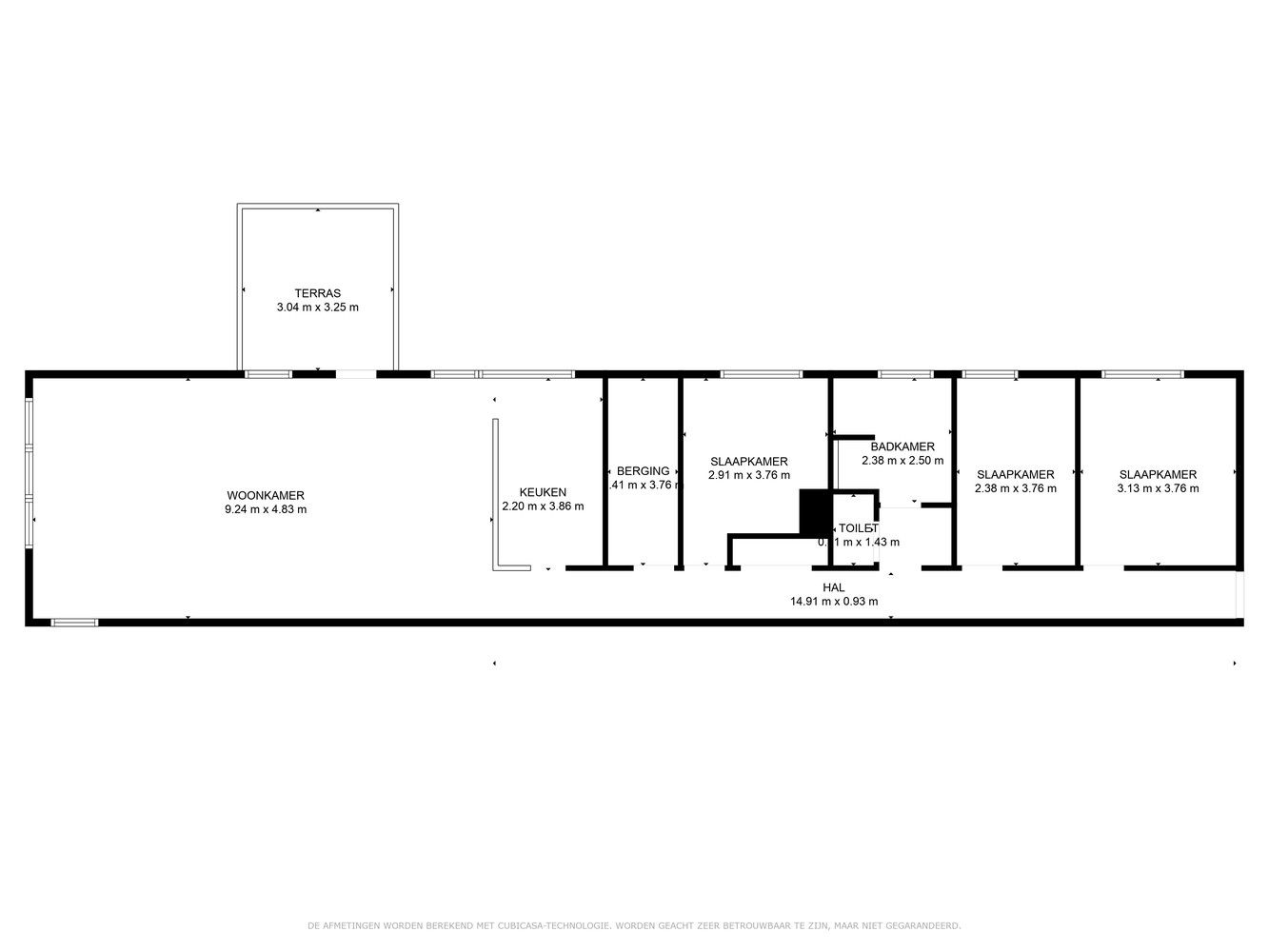
INDELING: ruime inkom-/nachthal, een open en volledig uitgeruste keuken voorzien van kwalitatieve toestellen en een eiland uitgevend op de prachtige woonkamer (+/-9,25 x 4,85m) met grote raampartijen aansluitend op het gezellig terras met zicht op het groen, badkamer ( inloopdouche / toilet / badkamermeubel), cv-berging, gastentoilet , 3 grote slaapkamers allen voorzien van een parketvloer (+/-3,75x 3,15 m) , (+/-3,75 x 2,90m) en (+/- 3,75 x 2,40m).
+ ruime privatieve BERGING (nr 14) eerste verdieping
+ GARAGE BOX (nr11P11)
Dit aangenaam en intrekklaar appartement is gelegen in een groene omgeving, in een oase van rust en toch nabij het centrum van Genk. Het appartement ligt in een uniek complex én heeft een hoogwaardige afwerking met vele extra’s o.a.: alu-inkomdeur met 5-puntsluiting, volledig kwalitatief uitgeruste keuken, gordijnroedes, …
Zowel de lift van het gebouw als het appartement is rolstoeltoegankelijk!
TROEVEN
- Comfortabel en intrekklaar appartement
- Degelijke en hoogwaardige afwerking
- Ruim/ zeer aangenaam terras
- Toplocatie (rustige en groene omgeving)
- Nabij het centrum van Genk
- Op een steenworp gelegen van de Hasseltweg en de Vennestraat
- Voorzien van 6 zonnepanelen goed voor 2600 kWh
Wenst u een virtueel bezoek? Surf dan naar www.marvy.be, selecteer het desbetreffende pand en maak gebruik van de knop 'VIRTUEEL BEZOEK'.
+ ruime privatieve BERGING (nr 14) eerste verdieping
+ GARAGE BOX (nr11P11)
Dit aangenaam en intrekklaar appartement is gelegen in een groene omgeving, in een oase van rust en toch nabij het centrum van Genk. Het appartement ligt in een uniek complex én heeft een hoogwaardige afwerking met vele extra’s o.a.: alu-inkomdeur met 5-puntsluiting, volledig kwalitatief uitgeruste keuken, gordijnroedes, …
Zowel de lift van het gebouw als het appartement is rolstoeltoegankelijk!
TROEVEN
- Comfortabel en intrekklaar appartement
- Degelijke en hoogwaardige afwerking
- Ruim/ zeer aangenaam terras
- Toplocatie (rustige en groene omgeving)
- Nabij het centrum van Genk
- Op een steenworp gelegen van de Hasseltweg en de Vennestraat
- Voorzien van 6 zonnepanelen goed voor 2600 kWh
Wenst u een virtueel bezoek? Surf dan naar www.marvy.be, selecteer het desbetreffende pand en maak gebruik van de knop 'VIRTUEEL BEZOEK'.
Energie
![]() |
- Energieverbruik: 105 kWh/m²/jaar
- E-peil: E0
- Verwarming: Gas
- Beglazing: Standaard dubbel
Op de kaart

Financieel
| Prijs |
|---|
Berekening kosten
Je aankoopkosten? Die heb je snel berekent via de knop hieronder.
Bijkomende info
Gebouw
| Bouwjaar | 2008 |
|---|---|
| Bewoonbaar (m²) | 143 |
| Verdieping | 4 |
| Badkamers | 1 |
| Slaapkamers | 3 |
| Verdiepingen | 0 |
| Garages | 0 |
| Parkeerplaatsen | 0 |
| Toiletten | 2 |
Faciliteiten
| Beglazing | Standaard dubbel |
|---|---|
| Brandstof primaire verwarming | Gas |
| Septische tank | Nee |
Perceel
| P-score | D |
|---|---|
| G-score | D |
| Bebouwde oppervlakte (m²) | 0 |
| Oppervlakte terras (m²) | 0 |
Vergunning
| Verkavelingsvergunning | Vergunning beschikbaar |
|---|
Uitrusting
| Investeringspand | Nee |
|---|---|
| Parking | Nee |
| Garage | Nee |
| Opslagruimte | Ja |
| Terras | Ja |
| Lift | Nee |
| Rioolaansluiting | Nee |
| Gasaansluiting | Ja |
| Wateraansluiting | Ja |
| Elektriciteitsaansluiting | Ja |
| Internetaansluiting | Nee |
| Telefoonaansluiting | Nee |
| Zonnepanelen | Nee |
| Zonneboiler | Nee |
| Alarm | Nee |
| Videofoon | Nee |
| Grondwaterput | Nee |
Appartementsblok
| Lift | Nee |
|---|---|
| Intercom | Nee |
Een pand van
Vastgoedkantoor MARVY
Vastgoedkantoor MARVY - Keigoed in vastgoed!
Meer dan 50 jaar vastgoedervaring in Genk en rand kan het verschil maken!
Wij staan u graag vrijblijvend te woord om u te overtuigen van onze meerwaarde.
Wij vernemen het graag , u kan ons bereiken op 089/36.45.50 (tussen 9u en 12u) of via info@marvy.be
VD10/2025 (VD42/2024)
Leer meer over vastgoed
Nieuw
24 November 2025
Uitgezocht voor jouw gemeente: Hoeveel stijgt de waarde van je woning door een renovatie?
22 October 2025
Hoeveel kan ik lenen om een huis te kopen?
11 June 2025
Huis kopen met bouwovertreding? Dit moet je weten
11 May 2025
