Nieuw
IDEAAL INVESTERINGSAPPARTEMENT MET GOED RENDEMENT
€ 240.000
Een pand van Vestio
Overzicht
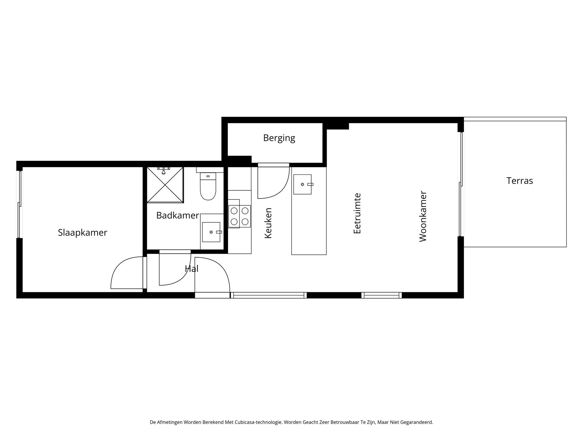
- 58 m² bewoonbaar
- 1 Slaapkamer(s)
- 1 Badkamer(s)
Beschrijving
IDEAAL INVESTERINGSAPPARTEMENT MET GOED RENDEMENT
Dit recente, gelijkvloerse appartement is gelegen in Residentie Emiel, een modern complex uit 2020 op een centrale locatie te Genk. Het appartement leent zicht perfect als investering aangezien het reeds meer dan 4 jaren verhuurd is aan een trouwe huurder met een mooi rendement van maar liefst 3,82%.
Dankzij het E-peil van slechts 33 kan het appartement absoluut energiezuinig genoemd worden en volledig klaar voor de toekomst. Het is dan ook uitgerust met vloerverwarming, een ventilatiesysteem met een uiterst laag verbruik als resultaat. Het appartement is opgedeeld in een leefruimte aan de achterzijde uitgerust met een moderne keuken en dankzij de grote raampartijen is er heel wat natuurlijke lichtinval. Via het schuifraam heeft u bovendien toegang tot het achtergelegen terras waar u dankzij de zuidwestelijke zonoriëntatie van ’s middags tot ’s avonds kan genieten van de overvloedige zon.
Voorts is het appartement voorzien van een inkomhal, een wasplaats / keukenberging, een badkamer en een slaapkamer. Extra opbergruimte is er voorhanden in de private kelderberging en een ondergrondse autostaanplaats is ook inbegrepen in de prijs. Bovendien is er in de kelderverdieping ook nog een ruime, gemeenschappelijke fietsenberging aanwezig.
Enkele TROEVEN van dit appartement opgelijst:
+ Goed rendement 3,82% : huurprijs 934,38 euro (859,38 + 75)
+ Recente, moderne residentie
+ Gelijkvloers appartement met zuidwestelijk georiënteerd terras
+ Autostaanplaats + kelderberging inbegrepen
+ Aankoop onder registratierechten ( 2 of 12 % )
+ Reeds meer dan 4 jaar verhuurd aan trouwe huurder
+ Energiezuinig: E-peil van slechts 33
+ Zonnepanelen aangesloten op het gemeenschappelijk verbruik.
+ Voorzien van vloerverwarming en ventilatiesysteem
Kortom, een ideale investering voor wie op zoek is naar een recent appartement met rendement vanaf dag 1! Meer info? Contacteer Maarten Delbroek via maarten@vestio.com of bel naar 0471/034804.
Dit recente, gelijkvloerse appartement is gelegen in Residentie Emiel, een modern complex uit 2020 op een centrale locatie te Genk. Het appartement leent zicht perfect als investering aangezien het reeds meer dan 4 jaren verhuurd is aan een trouwe huurder met een mooi rendement van maar liefst 3,82%.
Dankzij het E-peil van slechts 33 kan het appartement absoluut energiezuinig genoemd worden en volledig klaar voor de toekomst. Het is dan ook uitgerust met vloerverwarming, een ventilatiesysteem met een uiterst laag verbruik als resultaat. Het appartement is opgedeeld in een leefruimte aan de achterzijde uitgerust met een moderne keuken en dankzij de grote raampartijen is er heel wat natuurlijke lichtinval. Via het schuifraam heeft u bovendien toegang tot het achtergelegen terras waar u dankzij de zuidwestelijke zonoriëntatie van ’s middags tot ’s avonds kan genieten van de overvloedige zon.
Voorts is het appartement voorzien van een inkomhal, een wasplaats / keukenberging, een badkamer en een slaapkamer. Extra opbergruimte is er voorhanden in de private kelderberging en een ondergrondse autostaanplaats is ook inbegrepen in de prijs. Bovendien is er in de kelderverdieping ook nog een ruime, gemeenschappelijke fietsenberging aanwezig.
Enkele TROEVEN van dit appartement opgelijst:
+ Goed rendement 3,82% : huurprijs 934,38 euro (859,38 + 75)
+ Recente, moderne residentie
+ Gelijkvloers appartement met zuidwestelijk georiënteerd terras
+ Autostaanplaats + kelderberging inbegrepen
+ Aankoop onder registratierechten ( 2 of 12 % )
+ Reeds meer dan 4 jaar verhuurd aan trouwe huurder
+ Energiezuinig: E-peil van slechts 33
+ Zonnepanelen aangesloten op het gemeenschappelijk verbruik.
+ Voorzien van vloerverwarming en ventilatiesysteem
Kortom, een ideale investering voor wie op zoek is naar een recent appartement met rendement vanaf dag 1! Meer info? Contacteer Maarten Delbroek via maarten@vestio.com of bel naar 0471/034804.
Energie
- E-peil: E0
- Verwarming: Gas
- Beglazing: Standaard dubbel
Op de kaart

Financieel
Prijs | |
---|---|
Kadastraal inkomen (niet geïndexeerd) | € 652 |
Berekening kosten
Je aankoopkosten? Die heb je snel berekent via de knop hieronder.
Bijkomende info
Gebouw
Bouwjaar | 2020 |
---|---|
Staat | Goed onderhouden |
Bewoonbaar (m²) | 58 |
Verdieping | 0 |
Badkamers | 1 |
Slaapkamers | 1 |
Verdiepingen | 0 |
Garages | 0 |
Parkeerplaatsen | 0 |
Toiletten | 0 |
Faciliteiten
Beglazing | Standaard dubbel |
---|---|
Brandstof primaire verwarming | Gas |
Septische tank | Nee |
Perceel
Overstromingsgevoelig | Geen |
---|---|
P-score | A |
G-score | A |
Bebouwde oppervlakte (m²) | 0 |
Oriëntatie tuin | Zuidwest |
Vergunning
Verkavelingsvergunning | Geen beschikbaar |
---|
Uitrusting
Investeringspand | Nee |
---|---|
Parking | Nee |
Garage | Nee |
Lift | Ja |
Rioolaansluiting | Ja |
Gasaansluiting | Ja |
Wateraansluiting | Ja |
Elektriciteitsaansluiting | Ja |
Internetaansluiting | Nee |
Telefoonaansluiting | Nee |
Zonnepanelen | Ja |
Zonneboiler | Nee |
Alarm | Nee |
Videofoon | Ja |
Grondwaterput | Nee |
Appartementsblok
Lift | Ja |
---|---|
Intercom | Nee |
Een pand van
Vestio
Vangronsveld & Somers, thuis in ontwikkeling
Vestio staat voor 'Vangronsveld & Somers, thuis in ontwikkeling'. Vestio is actief in de realisatie van residentiële vastgoedprojecten op toplocaties in het binnenland en aan de Belgische kust in Knokke. Daarbij hecht de vastgoedspecialist veel belang aan een goede begeleiding. Vestio biedt ook assistentie bij de projectontwikkeling van woningen, appartementen, retail, verkavelingen, woon- en zorgcentra en de koop en verkoop van bestaand vastgoed. Een totaalaanpak die al meer dan 20 jaar werkt en tot heel wat exclusieve woonprojecten heeft geleid.
VKTK0505-MD
Leer meer over vastgoed
11 June 2025
Huis kopen met bouwovertreding? Dit moet je weten
11 May 2025
Renoveren? Vraag je Mijn VerbouwPremie aan
22 April 2025
Je allereerste renovatieproject selecteren én budgetteren: met de praktische hulp van Spotto
17 February 2025