Appartement 1.02 + Autostaanplaats
€ 421.785,5
Een pand van Nina Bruno Vastgoed
Favoriet
Jouw zoektocht
Jouw scoretabel voor dit pand
Aan het laden...
Jouw geplande bezichtigingen
Aan het laden...
Overzicht
- 113 m² bewoonbaar
- 113 m² grond
- 2 Slaapkamer(s)
- 1 Badkamer(s)
Overstromingsgevaar gebouw
Overstromingsgevaar perceel
Beschrijving
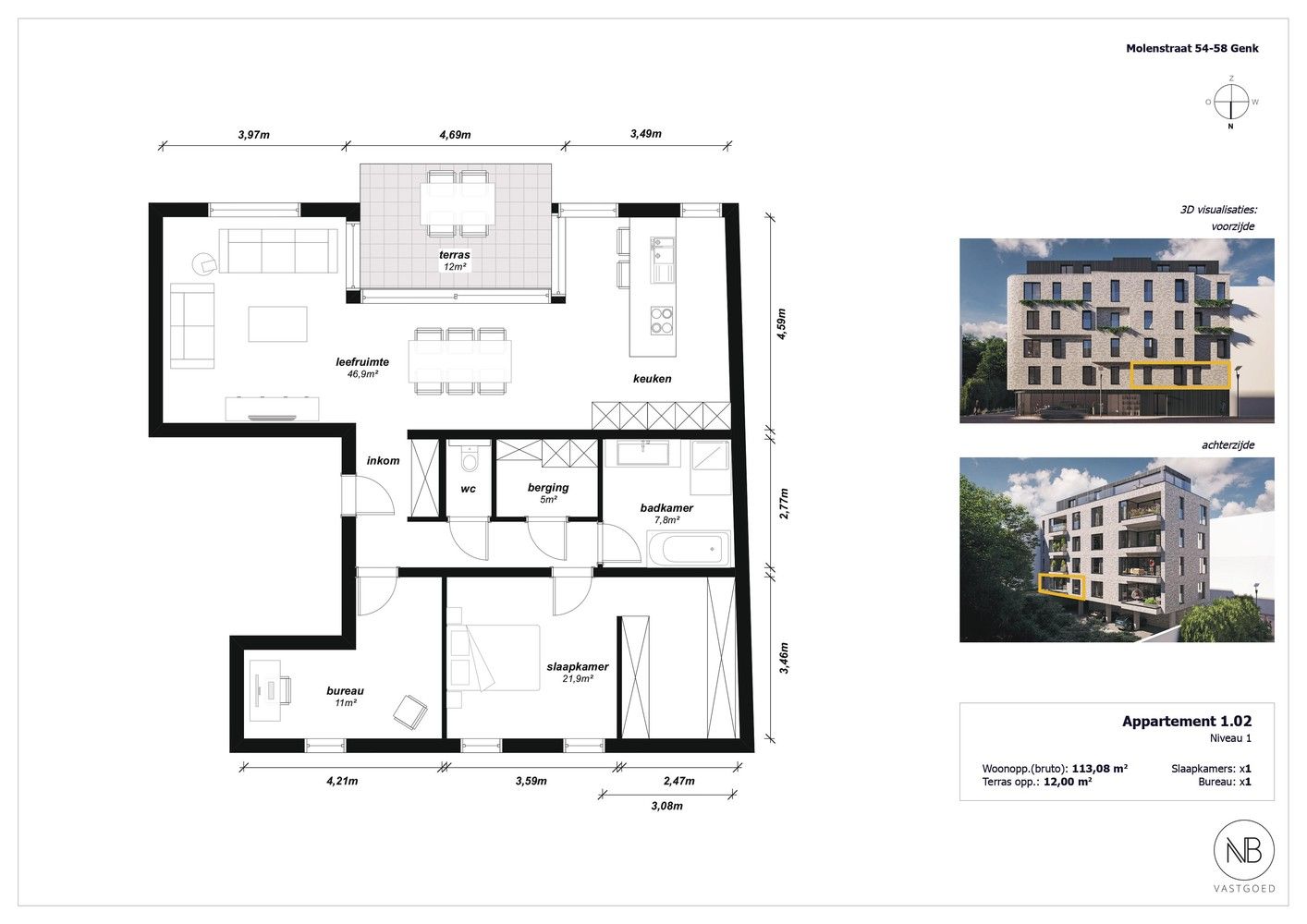
Dit appartement is gelegen op de eerste verdieping en heeft een bewoonbare oppervlakte van 113,08 m². Het appartement is voorzien van 1 slaapkamer, een aparte bureauruimte en een ruim terras.
Het project bestaat uit 9 energiezuinige en hoogwaardig afgewerkte appartementen, waarvan één penthouse, met elk hun eigen terras en 1 handelspand. De appartementen hebben een bewoonbare oppervlakte tussen 110 m² en 143 m².
De residentie heeft een private inkomhal, met lift. Het project beschikt over een overdekte parkeerruimte, een gemeenschappelijke fietsenstalling en gemeenschappelijke ondergrondse afvalcontainers.
Bij elk appartement hoort een private autostaanplaats, het handelspand heeft er 2. De autostaanplaats is eveneens inbegrepen in de verkoopprijs. Het project wordt opgebouwd met de meest moderne technieken waaronder vloerverwarming ondersteund door een lucht/water warmtepomp met passieve koeling en zonnepanelen, wat resulteert in een E-peil van 20 of lager.
De vermelde prijzen op onze website zijn berekend aan 21% btw. Indien u voldoet aan de wettelijke voorwaarden, kan dit project echter aangekocht worden aan het verlaagde btw-tarief van 6% (totale prijs 453.509,10 euro excl. kosten).
Klik hier voor de verkoopbrochure!
Wilt u mooi wonen in het centrum van Genk? Contactgegevens: 089 20 34 34 of info@ninabrunovastgoed.be.
Het project bestaat uit 9 energiezuinige en hoogwaardig afgewerkte appartementen, waarvan één penthouse, met elk hun eigen terras en 1 handelspand. De appartementen hebben een bewoonbare oppervlakte tussen 110 m² en 143 m².
De residentie heeft een private inkomhal, met lift. Het project beschikt over een overdekte parkeerruimte, een gemeenschappelijke fietsenstalling en gemeenschappelijke ondergrondse afvalcontainers.
Bij elk appartement hoort een private autostaanplaats, het handelspand heeft er 2. De autostaanplaats is eveneens inbegrepen in de verkoopprijs. Het project wordt opgebouwd met de meest moderne technieken waaronder vloerverwarming ondersteund door een lucht/water warmtepomp met passieve koeling en zonnepanelen, wat resulteert in een E-peil van 20 of lager.
De vermelde prijzen op onze website zijn berekend aan 21% btw. Indien u voldoet aan de wettelijke voorwaarden, kan dit project echter aangekocht worden aan het verlaagde btw-tarief van 6% (totale prijs 453.509,10 euro excl. kosten).
Klik hier voor de verkoopbrochure!
Wilt u mooi wonen in het centrum van Genk? Contactgegevens: 089 20 34 34 of info@ninabrunovastgoed.be.
Dit appartement is gelegen op de eerste verdieping en heeft een bewoonbare oppervlakte van 113,08 m². Het appartement is voorzien van 1 slaapkamer, een aparte bureauruimte en een ruim terras.
Het project bestaat uit 9 energiezuinige en hoogwaardig afgewerkte appartementen, waarvan één penthouse, met elk hun eigen terras en 1 handelspand. De appartementen hebben een bewoonbare oppervlakte tussen 110 m² en 143 m².
De residentie heeft een private inkomhal, met lift. Het project beschikt over een overdekte parkeerruimte, een gemeenschappelijke fietsenstalling en gemeenschappelijke ondergrondse afvalcontainers.
Bij elk appartement hoort een private autostaanplaats, het handelspand heeft er 2. De autostaanplaats is eveneens inbegrepen in de verkoopprijs. Het project wordt opgebouwd met de meest moderne technieken waaronder vloerverwarming ondersteund door een lucht/water warmtepomp met passieve koeling en zonnepanelen, wat resulteert in een E-peil van 20 of lager.
De vermelde prijzen op onze website zijn berekend aan 21% btw. Indien u voldoet aan de wettelijke voorwaarden, kan dit project echter aangekocht worden aan het verlaagde btw-tarief van 6% (totale prijs 453.509,10 euro excl. kosten).
Klik hier voor de verkoopbrochure!
Wilt u mooi wonen in het centrum van Genk? Neem dan contact met ons op voor een afspraak via 089 20 34 34 of info@ninabrunovastgoed.be.
Het project bestaat uit 9 energiezuinige en hoogwaardig afgewerkte appartementen, waarvan één penthouse, met elk hun eigen terras en 1 handelspand. De appartementen hebben een bewoonbare oppervlakte tussen 110 m² en 143 m².
De residentie heeft een private inkomhal, met lift. Het project beschikt over een overdekte parkeerruimte, een gemeenschappelijke fietsenstalling en gemeenschappelijke ondergrondse afvalcontainers.
Bij elk appartement hoort een private autostaanplaats, het handelspand heeft er 2. De autostaanplaats is eveneens inbegrepen in de verkoopprijs. Het project wordt opgebouwd met de meest moderne technieken waaronder vloerverwarming ondersteund door een lucht/water warmtepomp met passieve koeling en zonnepanelen, wat resulteert in een E-peil van 20 of lager.
De vermelde prijzen op onze website zijn berekend aan 21% btw. Indien u voldoet aan de wettelijke voorwaarden, kan dit project echter aangekocht worden aan het verlaagde btw-tarief van 6% (totale prijs 453.509,10 euro excl. kosten).
Klik hier voor de verkoopbrochure!
Wilt u mooi wonen in het centrum van Genk? Neem dan contact met ons op voor een afspraak via 089 20 34 34 of info@ninabrunovastgoed.be.
Energie
- E-peil: E30
- Beglazing: Standaard dubbel
Op de kaart

Financieel
| Prijs |
|---|
Bijkomende info
Gebouw
| Bouwjaar | 2024 |
|---|---|
| Staat | Goed onderhouden |
| Bewoonbaar (m²) | 113 |
| Verdieping | 1 |
| Badkamers | 1 |
| Slaapkamers | 2 |
| Verdiepingen | 0 |
| Garages | 0 |
| Parkeerplaatsen | 0 |
| Toiletten | 0 |
Faciliteiten
| Keuken uitrusting | Goed uitgerust |
|---|---|
| Beglazing | Standaard dubbel |
| Septische tank | Nee |
Perceel
| Overstromingsgevoelig | Geen |
|---|---|
| P-score | D |
| G-score | D |
| Totale oppervlakte (m²) | 113 |
| Bebouwde oppervlakte (m²) | 0 |
| Oppervlakte terras (m²) | 12 |
Vergunning
| Verkavelingsvergunning | Geen beschikbaar |
|---|
Uitrusting
| Investeringspand | Nee |
|---|---|
| Parking | Nee |
| Garage | Nee |
| Opslagruimte | Ja |
| Terras | Ja |
| Lift | Nee |
| Rioolaansluiting | Ja |
| Gasaansluiting | Nee |
| Wateraansluiting | Ja |
| Elektriciteitsaansluiting | Ja |
| Internetaansluiting | Ja |
| Telefoonaansluiting | Nee |
| Zonnepanelen | Nee |
| Zonneboiler | Nee |
| Alarm | Nee |
| Videofoon | Ja |
| Grondwaterput | Nee |
Appartementsblok
| Lift | Nee |
|---|---|
| Intercom | Nee |
Een pand van
Nina Bruno Vastgoed
Nina Bruno Vastgoed - Uw (T)huis is onze zorg
Hulp nodig bij de zoektocht naar een nieuwe woning? Of zoek je begeleiding bij de verkoop van je woning? Het Nina Bruno Vastgoed team begeleidt jou met uitgebreide kennis van zaken in de complexe wereld van het vastgoed. Als kandidaat koper of verkoper staan we je graag met professioneel advies bij.
Graag meer informatie over al onze diensten?
Cosimo - 1.02
Leer meer over vastgoed
23 March 2026
Op Spotto zoeken als een pro: 10 slimme tips
21 March 2026
Hoeveel kan ik lenen om een huis te kopen?
01 March 2026
Wanneer heb ik een bouwvergunning of omgevingsvergunning nodig?
17 February 2026