ZEER RUIM APPARTEMENT AAN DE STADSRAND
€ 210.000
Een pand van Vastgoedkantoor MARVY
Overzicht
- 100 m² bewoonbaar
- 2 Slaapkamer(s)
- 1 Badkamer(s)
- 1 Toilet(ten)
Beschrijving
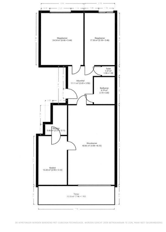
INDELING
Dit ruime appartement tussen het groen is de ideale plek om te genieten van rust en ruimte, doch nabij het centrum.
Indeling: zeer ruime inkomhal, lichtrijke woonkamer (+/- 8,30 x 4,60 m) uitgevend op het ruime terras met zicht op het groen, geïnstalleerde keuken, berging, badkamer, toilet, 2 ruime SLAAPKAMERS (+/- 5,40 x 3,20m) en (+/- 5,40 x 4,50 m).
+ Ruim overdekt TERRAS (+/- 7 x 1,6m) overgoten met zon met uitzicht op het groen
+ Bovengrondse GARAGE (+/- 7 x 3m) nr. 17
+ Diverse parkeergelegenheid rondom het gebouw
Het ruime terras baadt in het zonlicht, waardoor u optimaal kunt genieten van de zon en het uitzicht op het groen.
Gelegen op een aangename locatie in de onmiddellijke nabijheid van scholen, diverse supermarkten, de BasicFit, de bakker, Molenvijverpark,… en tevens op een boogscheut verwijderd van Genk-centrum. Vlotte verbinding naar As, Zutendaal, de N75 en de E314
Kortom, een ruim appartement gelegen in een oase van rust nabij het centrum.
TROEVEN
OPEN HUIZEN DAG: zaterdag 06/12/2025 van 11:00-12:00u.
Schrijf je in via ons mailadres: info@marvy.be
Dit ruime appartement tussen het groen is de ideale plek om te genieten van rust en ruimte, doch nabij het centrum.
Indeling: zeer ruime inkomhal, lichtrijke woonkamer (+/- 8,30 x 4,60 m) uitgevend op het ruime terras met zicht op het groen, geïnstalleerde keuken, berging, badkamer, toilet, 2 ruime SLAAPKAMERS (+/- 5,40 x 3,20m) en (+/- 5,40 x 4,50 m).
+ Ruim overdekt TERRAS (+/- 7 x 1,6m) overgoten met zon met uitzicht op het groen
+ Bovengrondse GARAGE (+/- 7 x 3m) nr. 17
+ Diverse parkeergelegenheid rondom het gebouw
Het ruime terras baadt in het zonlicht, waardoor u optimaal kunt genieten van de zon en het uitzicht op het groen.
Gelegen op een aangename locatie in de onmiddellijke nabijheid van scholen, diverse supermarkten, de BasicFit, de bakker, Molenvijverpark,… en tevens op een boogscheut verwijderd van Genk-centrum. Vlotte verbinding naar As, Zutendaal, de N75 en de E314
Kortom, een ruim appartement gelegen in een oase van rust nabij het centrum.
TROEVEN
- Appartement met veel daglicht
- Ruim terras
- Bovengrondse garage
- Diverse parkeergelegenheid voor de deur
- Gelegen in een groene omgeving nabij Genk Centrum
OPEN HUIZEN DAG: zaterdag 06/12/2025 van 11:00-12:00u.
Schrijf je in via ons mailadres: info@marvy.be
Energie
- E-peil: E0
- Beglazing: Onbekend
Op de kaart

Financieel
| Prijs |
|---|
Berekening kosten
Je aankoopkosten? Die heb je snel berekent via de knop hieronder.
Bijkomende info
Gebouw
| Bouwjaar | 1977 |
|---|---|
| Bewoonbaar (m²) | 100 |
| Verdieping | 2 |
| Badkamers | 1 |
| Slaapkamers | 2 |
| Verdiepingen | 0 |
| Garages | 0 |
| Parkeerplaatsen | 0 |
| Toiletten | 1 |
Faciliteiten
| Septische tank | Nee |
|---|
Perceel
| P-score | A |
|---|---|
| G-score | A |
| Bebouwde oppervlakte (m²) | 0 |
| Oppervlakte terras (m²) | 0 |
Vergunning
| Verkavelingsvergunning | Geen beschikbaar |
|---|
Uitrusting
| Investeringspand | Nee |
|---|---|
| Parking | Nee |
| Garage | Nee |
| Opslagruimte | Ja |
| Terras | Ja |
| Lift | Nee |
| Rioolaansluiting | Nee |
| Gasaansluiting | Nee |
| Wateraansluiting | Nee |
| Elektriciteitsaansluiting | Nee |
| Internetaansluiting | Nee |
| Telefoonaansluiting | Nee |
| Zonnepanelen | Nee |
| Zonneboiler | Nee |
| Alarm | Nee |
| Videofoon | Nee |
| Grondwaterput | Nee |
Appartementsblok
| Lift | Nee |
|---|---|
| Intercom | Nee |
Een pand van
Vastgoedkantoor MARVY
Vastgoedkantoor MARVY - Keigoed in vastgoed!
Meer dan 50 jaar vastgoedervaring in Genk en rand kan het verschil maken!
Wij staan u graag vrijblijvend te woord om u te overtuigen van onze meerwaarde.
Wij vernemen het graag , u kan ons bereiken op 089/36.45.50 (tussen 9u en 12u) of via info@marvy.be
VD29/2025
Leer meer over vastgoed
24 November 2025
Uitgezocht voor jouw gemeente: Hoeveel stijgt de waarde van je woning door een renovatie?
22 October 2025
Hoeveel kan ik lenen om een huis te kopen?
11 June 2025
Huis kopen met bouwovertreding? Dit moet je weten
11 May 2025