Nieuw
Bemeubeld en instapklaar appartement vlakbij Genk centrum
€ 275.000
Een pand van Frère Vastgoed
Overzicht
- 96.7 m² bewoonbaar
- 2 Slaapkamer(s)
- 1 Badkamer(s)
- 1 Toilet(ten)
- 1 Garage(s)
Beschrijving
Welkom op de Weg naar As 121 bus 63 in Genk.
Bent u op zoek naar een instapklaar en gemeubeld appartement in Genk?
Zoekt u een investeringsappartement dat u meteen wenst te verhuren?
Dan is dit appartement precies wat u zoekt!
Ontdek dit uniek appartement alvast via de virtuele rondleiding:
👉 https://player.vimeo.com/video/1129851661
Dit prachtig appartement werd doorheen de jaren vernieuwd, waaronder:
Badkamer, Toilet, vloeren (2024), convectoren (2024), stroom (2024).
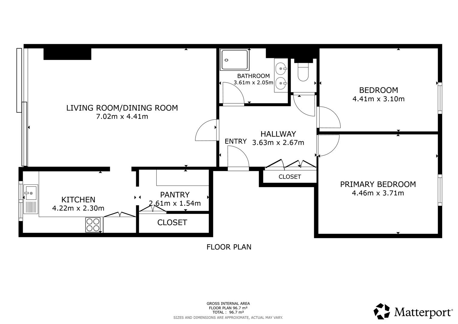
De netto bewoonbare oppervlakte bedraagt 96,70 m² exclusief het overdekt terras.
Troeven van het appartement
✔ Bemeubeld appartement (mogelijkheid tot aankoop meubilair)
✔ Instapklaar
✔ Conforme stroomkeuring
✔ Gunstige EPC score (C label)
✔ Asbestveilig
✔ Terras aanwezig
✔ 2 slaapkamers
✔ Gelegen op wandelafstand van het centrum
Indeling
3de verdiep: 96,70 m²
Het appartement is gelegen op het derde verdiep en is functioneel ingedeeld.
Samenstelling:
Gelijkvloers:
Garagebox met sectionale poort.
Documenten
Het EPC-verslag, de elektrische keuring, het asbestattest kan u eenvoudig downloaden in bijlage.
Interesse in een bezichtiging?
Bel ons via 089 391 555 of mail naar info@frerevastgoed.be.
* Opmetingen van de binnenmaten zijn indicatief en kunnen licht afwijken.
Bent u op zoek naar een instapklaar en gemeubeld appartement in Genk?
Zoekt u een investeringsappartement dat u meteen wenst te verhuren?
Dan is dit appartement precies wat u zoekt!
Ontdek dit uniek appartement alvast via de virtuele rondleiding:
👉 https://player.vimeo.com/video/1129851661
Dit prachtig appartement werd doorheen de jaren vernieuwd, waaronder:
Badkamer, Toilet, vloeren (2024), convectoren (2024), stroom (2024).
De netto bewoonbare oppervlakte bedraagt 96,70 m² exclusief het overdekt terras.
Troeven van het appartement
✔ Bemeubeld appartement (mogelijkheid tot aankoop meubilair)
✔ Instapklaar
✔ Conforme stroomkeuring
✔ Gunstige EPC score (C label)
✔ Asbestveilig
✔ Terras aanwezig
✔ 2 slaapkamers
✔ Gelegen op wandelafstand van het centrum
Indeling
3de verdiep: 96,70 m²
Het appartement is gelegen op het derde verdiep en is functioneel ingedeeld.
Samenstelling:
- Inkomhal
- Gezellige woon- en eetkamer
- Ingerichte keuken
- Toilet
- Geïnstalleerde badkamer
- Slaapkamer 1
- Slaapkamer 2
- Terras
Gelijkvloers:
Garagebox met sectionale poort.
Documenten
Het EPC-verslag, de elektrische keuring, het asbestattest kan u eenvoudig downloaden in bijlage.
Interesse in een bezichtiging?
Bel ons via 089 391 555 of mail naar info@frerevastgoed.be.
* Opmetingen van de binnenmaten zijn indicatief en kunnen licht afwijken.
Energie
![]() |
- EPC Certificaat: 20230731-0002954332-RES-1
- Energieverbruik: 234 kWh/m²/jaar
- E-peil: E0
- Beglazing: Onbekend
Op de kaart

Financieel
| Prijs |
|---|
Berekening kosten
Je aankoopkosten? Die heb je snel berekent via de knop hieronder.
Bijkomende info
Gebouw
| Bouwjaar | 1977 |
|---|---|
| Renovatie jaar | 2024 |
| Staat | Goed onderhouden |
| Bewoonbaar (m²) | 96.7 |
| Verdieping | 4 |
| Badkamers | 1 |
| Slaapkamers | 2 |
| Verdiepingen | 0 |
| Garages | 1 |
| Parkeerplaatsen | 0 |
| Toiletten | 1 |
Faciliteiten
| Septische tank | Nee |
|---|
Perceel
| Overstromingsgevoelig | Geen |
|---|---|
| P-score | A |
| G-score | A |
| Bebouwde oppervlakte (m²) | 0 |
| Oppervlakte terras (m²) | 0 |
Vergunning
| Verkavelingsvergunning | Geen beschikbaar |
|---|
Uitrusting
| Investeringspand | Nee |
|---|---|
| Parking | Nee |
| Garage | Ja |
| Opslagruimte | Ja |
| Terras | Ja |
| Lift | Nee |
| Rioolaansluiting | Ja |
| Gasaansluiting | Nee |
| Wateraansluiting | Ja |
| Elektriciteitsaansluiting | Ja |
| Internetaansluiting | Ja |
| Telefoonaansluiting | Ja |
| Zonnepanelen | Nee |
| Zonneboiler | Nee |
| Alarm | Nee |
| Videofoon | Ja |
| Grondwaterput | Nee |
Appartementsblok
| Lift | Nee |
|---|---|
| Intercom | Ja |
Een pand van
Frère Vastgoed
Welkom bij Frère Vastgoed.
Frère Vastgoed is uw partner bij de verkoop, verhuur of aankoop van elk type vastgoed.
Het verkopen, verhuren of aankopen van vastgoed is een ingewikkeld proces.
Frère Vastgoed helpt u graag met een resultaatgerichte en persoonlijke begeleiding bij één van de belangrijkste transacties in uw leven.
Weg naar As 121 bus 63
Leer meer over vastgoed
24 November 2025
Uitgezocht voor jouw gemeente: Hoeveel stijgt de waarde van je woning door een renovatie?
22 October 2025
Hoeveel kan ik lenen om een huis te kopen?
11 June 2025
Huis kopen met bouwovertreding? Dit moet je weten
11 May 2025
