Nieuw
Nieuwbouw duplex met terras (zonder btw!) instapklaar
€ 310.000
Een pand van BC Immo
Favoriet
Jouw zoektocht
Jouw scoretabel voor dit pand
Aan het laden...
Jouw geplande bezichtigingen
Aan het laden...
Overzicht
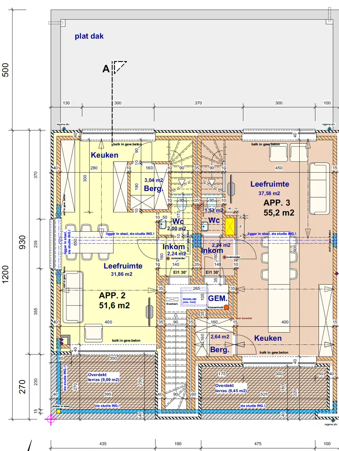
- 110 m² bewoonbaar
- 1562 m² grond
- 2 Slaapkamer(s)
- 1 Badkamer(s)
- 2 Toilet(ten)
Beschrijving
Ruim duplexappartement met terras (2% registratierechten, geen 21% btw)
Dit ruime duplexappartement maakt deel uit van een kleinschalige nieuwbouwresidentie met slechts drie wooneenheden, wat zorgt voor een rustige en aangename woonomgeving met voldoende privacy en een uitgesproken huiselijk karakter.
Gelegen in Boxberg, een residentiële wijk vlak achter de Hasseltweg, met het domein Bokrijk op wandelafstand. Winkels, scholen, openbaar vervoer en de E314 zijn vlot bereikbaar, met een snelle verbinding naar zowel het centrum van Genk als Hasselt.
Met een bewoonbare oppervlakte van ca. 110 m² biedt dit duplexappartement een doordachte indeling over twee verdiepingen, wat zorgt voor een echt huisgevoel. De open en lichtrijke leefruimte met grote raampartijen creëert een aangename sfeer en sluit naadloos aan op de volledig uitgeruste keuken.
Op de bovenverdieping bevinden zich twee volwaardige slaapkamers en een moderne badkamer met inloopdouche en hoogwaardige sanitaire afwerking. Verder beschikt het appartement over een afzonderlijk toilet en een praktische berging.
Het inpandige terras van ca. 9 m² vormt een aangename buitenruimte die het hele jaar door bruikbaar is en extra wooncomfort biedt. Een autostaanplaats is inbegrepen.
Het appartement wordt volledig afgewerkt aangeboden en is instapklaar. De laatste afwerkingen worden momenteel afgerond, waardoor u hier op korte termijn kan intrekken zonder bijkomende werken.
Energiezuinig wonen staat centraal met een warmtepomp, en ventilatiesysteem D (EPC-label A), wat resulteert in een lage energiekost en toekomstgericht wooncomfort.
Vraagprijs: 310.000 EUR.
Een belangrijk financieel voordeel is dat deze aankoop onder registratierechten gebeurt en niet onder het btw-stelsel, wat een aanzienlijke besparing oplevert ten opzichte van 21% btw op nieuwbouw.
Interesse? Contacteer BC Immo via info@bcimmo.be
of 0476 85 86 00.
Dit ruime duplexappartement maakt deel uit van een kleinschalige nieuwbouwresidentie met slechts drie wooneenheden, wat zorgt voor een rustige en aangename woonomgeving met voldoende privacy en een uitgesproken huiselijk karakter.
Gelegen in Boxberg, een residentiële wijk vlak achter de Hasseltweg, met het domein Bokrijk op wandelafstand. Winkels, scholen, openbaar vervoer en de E314 zijn vlot bereikbaar, met een snelle verbinding naar zowel het centrum van Genk als Hasselt.
Met een bewoonbare oppervlakte van ca. 110 m² biedt dit duplexappartement een doordachte indeling over twee verdiepingen, wat zorgt voor een echt huisgevoel. De open en lichtrijke leefruimte met grote raampartijen creëert een aangename sfeer en sluit naadloos aan op de volledig uitgeruste keuken.
Op de bovenverdieping bevinden zich twee volwaardige slaapkamers en een moderne badkamer met inloopdouche en hoogwaardige sanitaire afwerking. Verder beschikt het appartement over een afzonderlijk toilet en een praktische berging.
Het inpandige terras van ca. 9 m² vormt een aangename buitenruimte die het hele jaar door bruikbaar is en extra wooncomfort biedt. Een autostaanplaats is inbegrepen.
Het appartement wordt volledig afgewerkt aangeboden en is instapklaar. De laatste afwerkingen worden momenteel afgerond, waardoor u hier op korte termijn kan intrekken zonder bijkomende werken.
Energiezuinig wonen staat centraal met een warmtepomp, en ventilatiesysteem D (EPC-label A), wat resulteert in een lage energiekost en toekomstgericht wooncomfort.
Vraagprijs: 310.000 EUR.
Een belangrijk financieel voordeel is dat deze aankoop onder registratierechten gebeurt en niet onder het btw-stelsel, wat een aanzienlijke besparing oplevert ten opzichte van 21% btw op nieuwbouw.
Interesse? Contacteer BC Immo via info@bcimmo.be
of 0476 85 86 00.
Kleinschalige nieuwbouwresidentie met 3 appartementen (zonder btw!)
In een rustige en residentiële woonomgeving in Boxberg, vlak achter de Hasseltweg en op wandelafstand van het domein Bokrijk, bevindt zich deze kleinschalige nieuwbouwresidentie bestaande uit slechts drie appartementen.
Dankzij de beperkte omvang geniet u hier van een aangename woonkwaliteit met extra rust, privacy en een meer huiselijk karakter, wat zelden voorkomt in klassieke appartementsgebouwen. Bovendien blijven de gemeenschappelijke kosten beperkt.
Alle appartementen worden volledig afgewerkt aangeboden en zijn instapklaar. De laatste afwerkingen worden momenteel afgerond, waardoor u op korte termijn kan intrekken zonder lange wachttijden.
Er werd sterk ingezet op energiezuinigheid en wooncomfort, met onder meer een warmtepomp, vloerverwarming en een ventilatiesysteem D (EPC-label A).
Een belangrijk financieel voordeel is dat de aankoop gebeurt onder registratierechten (2%) en niet onder het btw-stelsel, wat een aanzienlijke besparing betekent.
Interesse in dit project?
Contacteer BC Immo voor meer informatie of een bezichtiging via info@bcimmo.be
of 0476 85 86 00.
In een rustige en residentiële woonomgeving in Boxberg, vlak achter de Hasseltweg en op wandelafstand van het domein Bokrijk, bevindt zich deze kleinschalige nieuwbouwresidentie bestaande uit slechts drie appartementen.
Dankzij de beperkte omvang geniet u hier van een aangename woonkwaliteit met extra rust, privacy en een meer huiselijk karakter, wat zelden voorkomt in klassieke appartementsgebouwen. Bovendien blijven de gemeenschappelijke kosten beperkt.
Alle appartementen worden volledig afgewerkt aangeboden en zijn instapklaar. De laatste afwerkingen worden momenteel afgerond, waardoor u op korte termijn kan intrekken zonder lange wachttijden.
Er werd sterk ingezet op energiezuinigheid en wooncomfort, met onder meer een warmtepomp, vloerverwarming en een ventilatiesysteem D (EPC-label A).
Een belangrijk financieel voordeel is dat de aankoop gebeurt onder registratierechten (2%) en niet onder het btw-stelsel, wat een aanzienlijke besparing betekent.
Interesse in dit project?
Contacteer BC Immo voor meer informatie of een bezichtiging via info@bcimmo.be
of 0476 85 86 00.
Energie
![]() |
- EPC Certificaat: 71016-G-OMV_2023065685/EP15119/SV/A001/D01/SD002
- Energieverbruik: 24 kWh/m²/jaar
Op de kaart

Financieel
| Prijs |
|---|
Bijkomende info
Gebouw
| Staat | Nieuw |
|---|---|
| Bewoonbaar (m²) | 110 |
| Verdieping | 1 |
| Gevels | 2 |
| Badkamers | 1 |
| Slaapkamers | 2 |
| Verdiepingen | 2 |
| Parkeerplaatsen | 0 |
| Toiletten | 2 |
Faciliteiten
| Type vloer | |
|---|---|
| Keuken uitrusting | Luxueus uitgerust |
| Elektrisch keuringsattest | Ja |
Perceel
| Totale oppervlakte (m²) | 1562 |
|---|---|
| Tuin oppervlakte (m²) | 0 |
Vergunning
| Vergunning | Vergunning beschikbaar |
|---|---|
| Verkavelingsvergunning | Geen beschikbaar |
| Bouwovertreding | Geen |
| Bouwovertreding dagvaardiging | Geen |
Uitrusting
| Parking | Ja |
|---|---|
| Garage | Nee |
| Tuin | Nee |
| Terras | Ja |
Een pand van
BC Immo
BC Immo, de sleutel tot uw geluk!
BC Immo is gespecialiseerd in verkoop en verhuur van woningen, appartementen en gronden.
Dankzij onze professionele aanpak zorgen we voor een succesvol verkoop/verhuur.
Duplex rechts
Leer meer over vastgoed
23 March 2026
Op Spotto zoeken als een pro: 10 slimme tips
21 March 2026
Hoeveel kan ik lenen om een huis te kopen?
01 March 2026
Wanneer heb ik een bouwvergunning of omgevingsvergunning nodig?
17 February 2026
