Projectgrond met uitstekende ligging!
€ 469.000
Een pand van Alterimmo
Overzicht
Beschrijving
Projectgrond
- Scherpe vraagprijs!
- Uitstekend gelegen nabij bedrijfs- en opleiding site Thorpark in Genk!
- Uiterst geschikt voor nieuwbouwproject met appartementen en/of studio's, met eventueel bedrijfsruimtes op gelijkvloers.
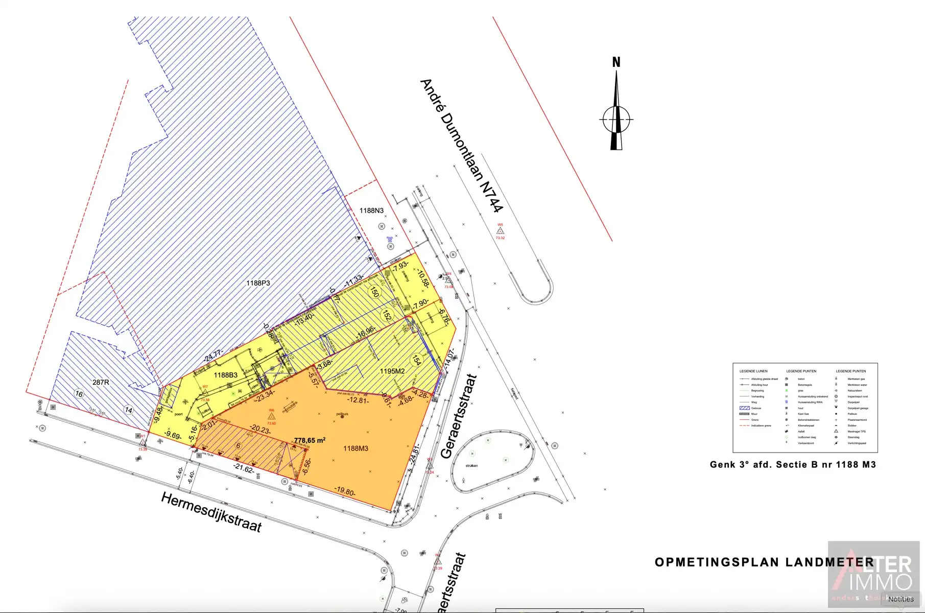
- Grondoppervlakte 778,65m2
- Mogelijkheid wederverkoop wooneenheden aan 6% BTW voor rechthebbenden!
Algemeen:
Deze uitstekend gelegen projectgrond is volledig in woongebied gelegen en biedt enorm veel mogelijkheden!
Deze unieke projectgrond is (nog) bebouwd met een oud gebouw (thans 2 studio's en 4 garages) goed voor afbraak, en biedt dus de opportuniteit om nieuwe wooneenheden te verkopen aan verlaagd tarief van 6% BTW voor rechthebbenden!
Recente opmeting en haalbaarheidsstudie aanwezig: zie bijlage (onder rubriek "plan")
Totaal potentiëel bouwvolume volgens deze studie tot max. ca. 2.500 m2 - in optimaal geval min. ca. 1.500-2.000 m2 bouwvolume met 4 bouwlagen (incl. dakverdieping)!
Ligging:
- Projectgrond is gelegen op een steenworp van Thorpark in Genk op de hoek van Hermesdijkstraat-Geraertsstraat en André Dumontlaan (Oud Waterschei)
- De E-314 ligt op een afstand van slechts 1,5 km!
TROEVEN:
- uitstekende ligging nabij Thorpark, bedrijven, winkels en grote verbindingswegen!
- projectgrond met ruim potentieel: min. 1.500-2.000 m2 aan bouwvolume zou zeker haalbaar moeten zijn
- uiterst scherpe vraagprijs gelet op potentieël bouwvolume!
- mogelijkheid verkoop wooneenheden aan lager tarief van 6% BTW na afbraak bestaand gebouw
- een ideale belegging op toekomstige termijn met het oog op een globale ontwikkeling met de 2 aanpalende grondpercelen met nog véél groter en rendabeler bouwpotentiëel!
***VOOR SNELLE BESLISSERS!***
- Scherpe vraagprijs!
- Uitstekend gelegen nabij bedrijfs- en opleiding site Thorpark in Genk!
- Uiterst geschikt voor nieuwbouwproject met appartementen en/of studio's, met eventueel bedrijfsruimtes op gelijkvloers.
- Grondoppervlakte 778,65m2
- Mogelijkheid wederverkoop wooneenheden aan 6% BTW voor rechthebbenden!
Algemeen:
Deze uitstekend gelegen projectgrond is volledig in woongebied gelegen en biedt enorm veel mogelijkheden!
Deze unieke projectgrond is (nog) bebouwd met een oud gebouw (thans 2 studio's en 4 garages) goed voor afbraak, en biedt dus de opportuniteit om nieuwe wooneenheden te verkopen aan verlaagd tarief van 6% BTW voor rechthebbenden!
Recente opmeting en haalbaarheidsstudie aanwezig: zie bijlage (onder rubriek "plan")
Totaal potentiëel bouwvolume volgens deze studie tot max. ca. 2.500 m2 - in optimaal geval min. ca. 1.500-2.000 m2 bouwvolume met 4 bouwlagen (incl. dakverdieping)!
Ligging:
- Projectgrond is gelegen op een steenworp van Thorpark in Genk op de hoek van Hermesdijkstraat-Geraertsstraat en André Dumontlaan (Oud Waterschei)
- De E-314 ligt op een afstand van slechts 1,5 km!
TROEVEN:
- uitstekende ligging nabij Thorpark, bedrijven, winkels en grote verbindingswegen!
- projectgrond met ruim potentieel: min. 1.500-2.000 m2 aan bouwvolume zou zeker haalbaar moeten zijn
- uiterst scherpe vraagprijs gelet op potentieël bouwvolume!
- mogelijkheid verkoop wooneenheden aan lager tarief van 6% BTW na afbraak bestaand gebouw
- een ideale belegging op toekomstige termijn met het oog op een globale ontwikkeling met de 2 aanpalende grondpercelen met nog véél groter en rendabeler bouwpotentiëel!
***VOOR SNELLE BESLISSERS!***
Energie
- E-peil: E0
- Beglazing: Onbekend
Op de kaart

Financieel
| Prijs |
|---|
Bijkomende info
Perceel
| Diepte (m) | 24 |
|---|---|
| Breedte (m) | 41 |
Vergunning
| Verkavelingsvergunning | Geen beschikbaar |
|---|
Uitrusting
| Investeringspand | Ja |
|---|---|
| Rioolaansluiting | Nee |
| Gasaansluiting | Nee |
| Wateraansluiting | Nee |
| Elektriciteitsaansluiting | Nee |
| Internetaansluiting | Nee |
| Telefoonaansluiting | Nee |
Een pand van
Alterimmo
Alterimmo, anders thuiskomen!
Alterimmo, een brandname voor 'Anders thuiskomen' in letterlijke en figuurlijke zin!
Het team van vastgoedprofessionals is gespecialiseerd in de verkoop van vastgoed.
Alterimmo beschikt over 30 jaar juridische en 20 jaar commerciële en technische vastgoedervaring!
Iedere eigendom is uniek en verdient een professionele aanpak!
25/125
Leer meer over vastgoed
01 March 2026
Wanneer heb ik een bouwvergunning of omgevingsvergunning nodig?
17 February 2026
Hoe breng ik een bod uit op een woning?
24 November 2025
Uitgezocht voor jouw gemeente: Hoeveel stijgt de waarde van je woning door een renovatie?
22 October 2025