Nieuw
Vergund projectgrond voor 8 eenheden op PRACHTIGE LIGGING
€ 439.000
Een pand van Sensimmo
Overzicht
- 965 m² grond
- 1 Tuin
Beschrijving
Deze projectgrond is prachtig gelegen op een ruim braakliggend perceel met een riante perceelbreedte van +-45m, in het verlengde van de welbekende Andre Dumontlaan te Genk. Strategisch zeer goed gelegen, op enkele minuten van het stadcentrum van Genk, de verbindingswegen naar de autosnelwegen EE313/E314, allerlei commerciële faciliteiten, scholen, stadion KRC Genk etc.
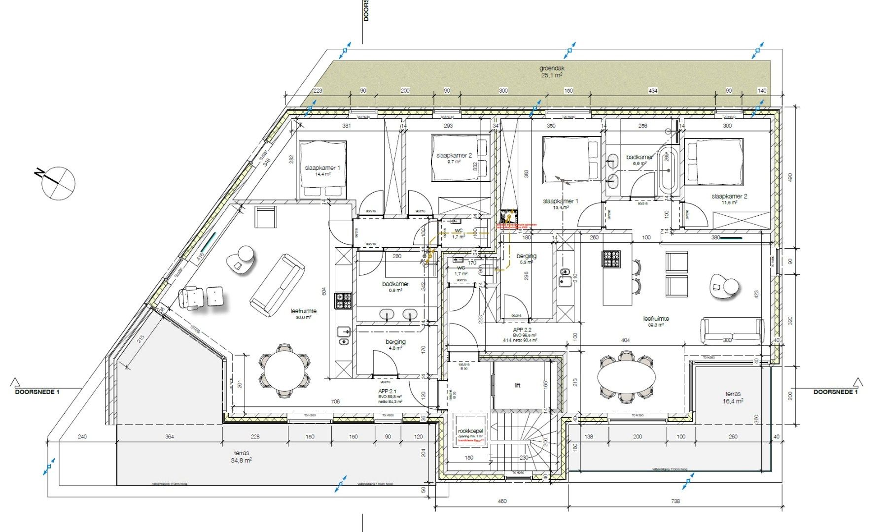
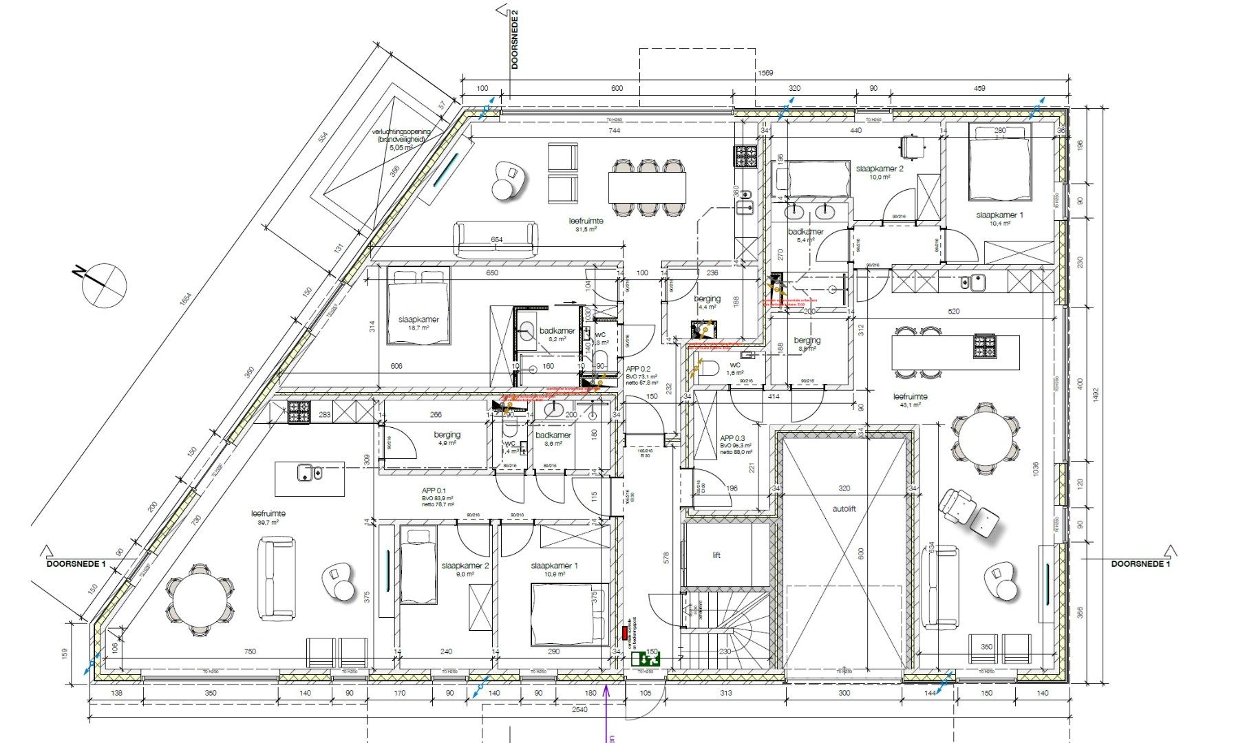
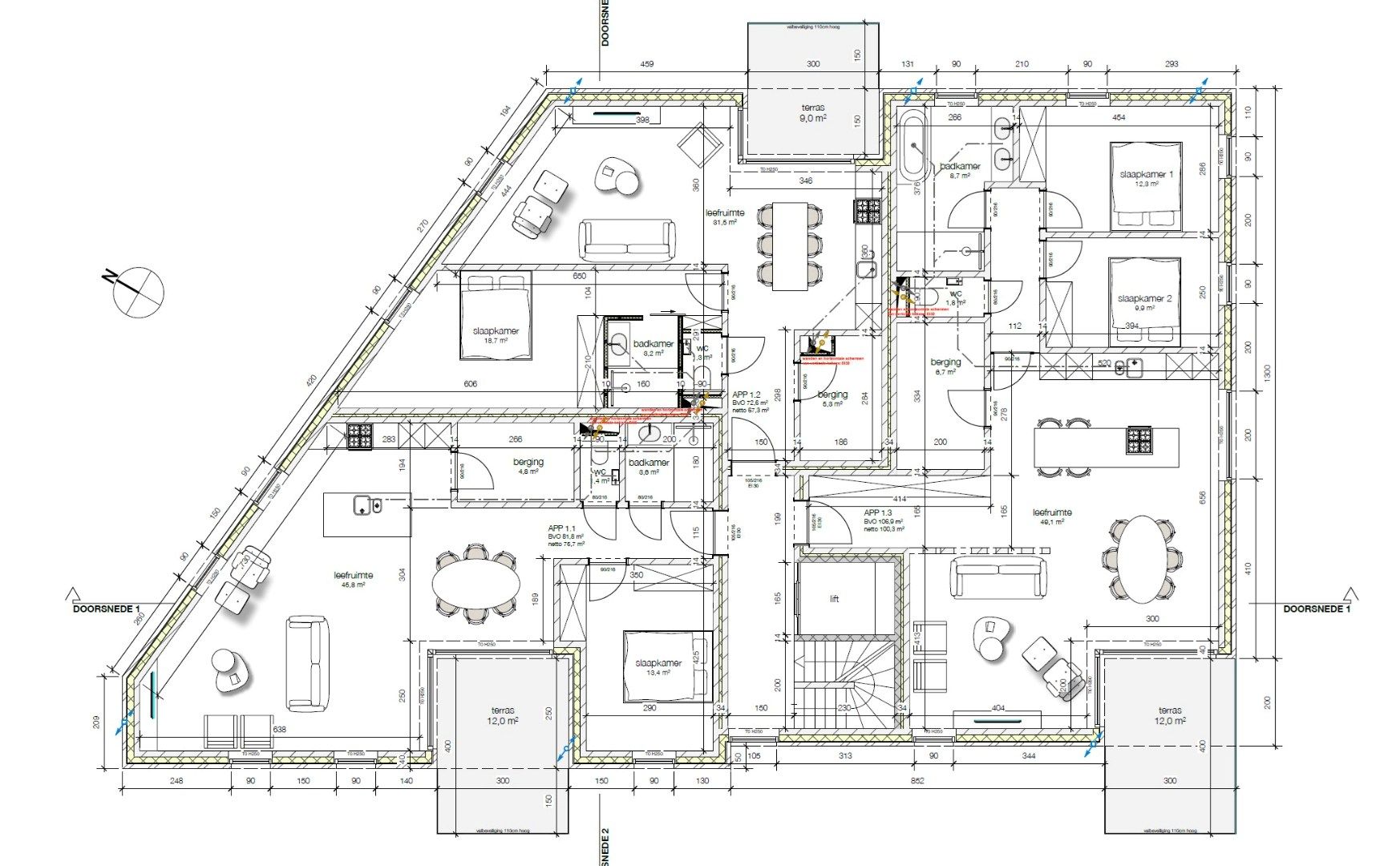
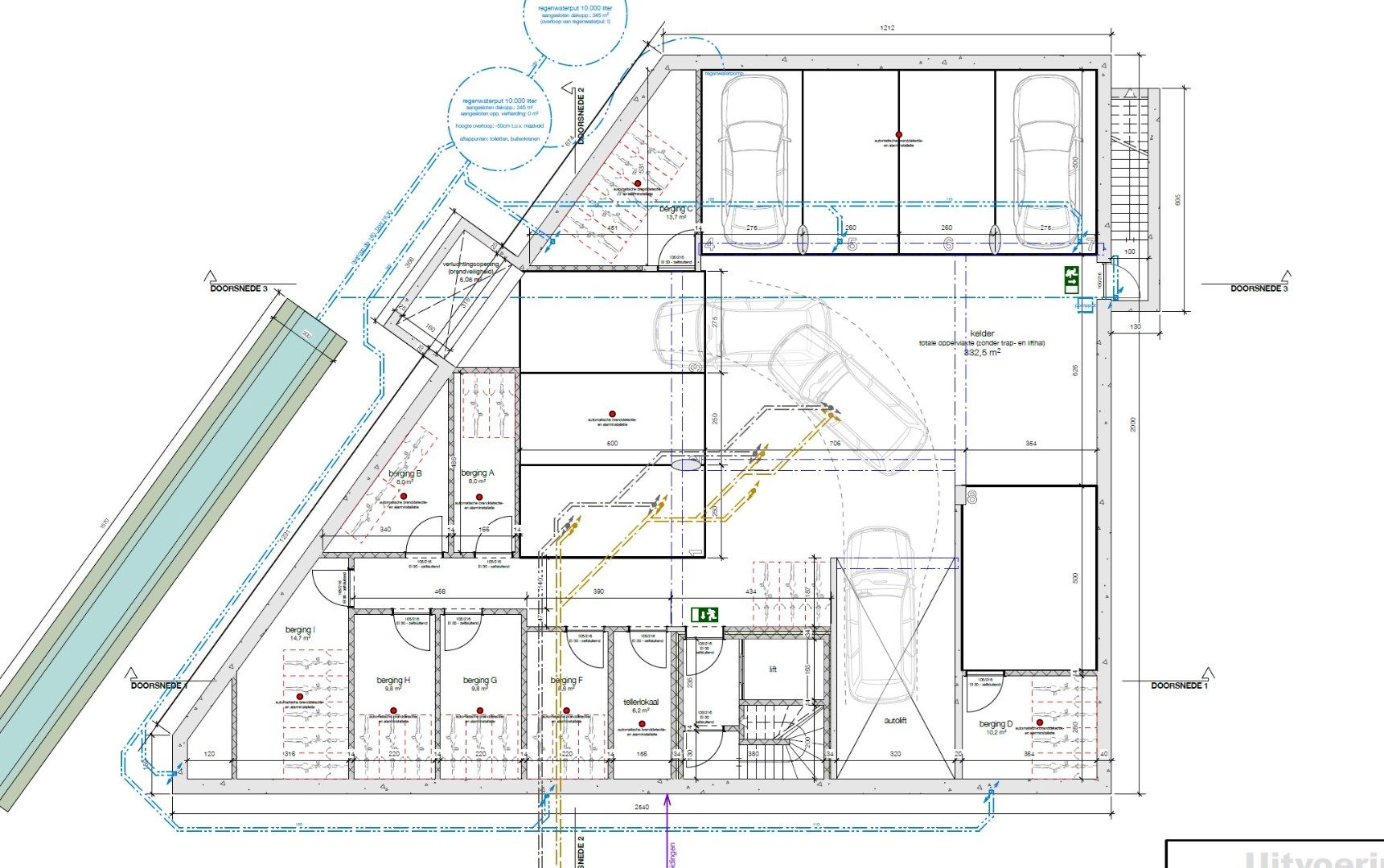
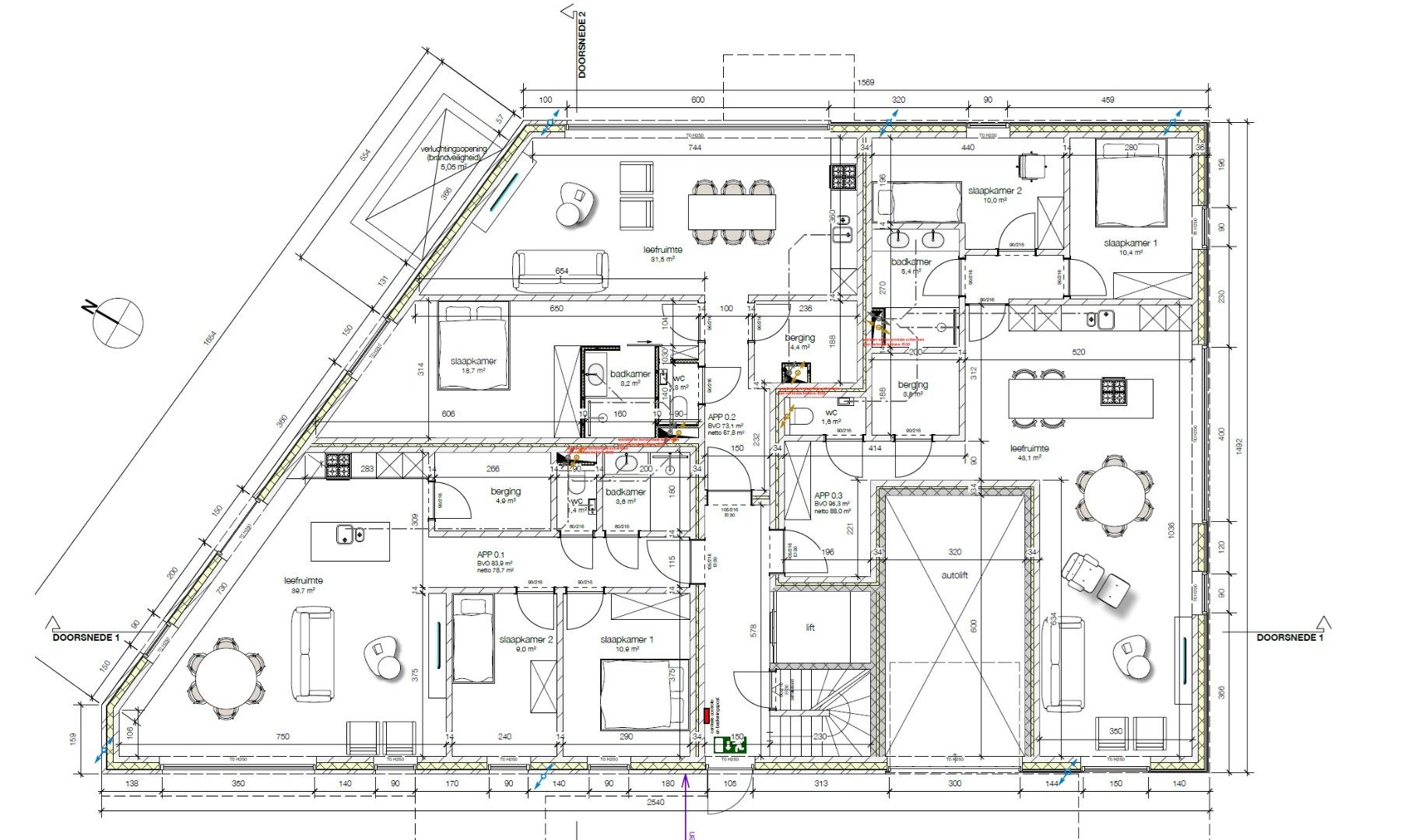
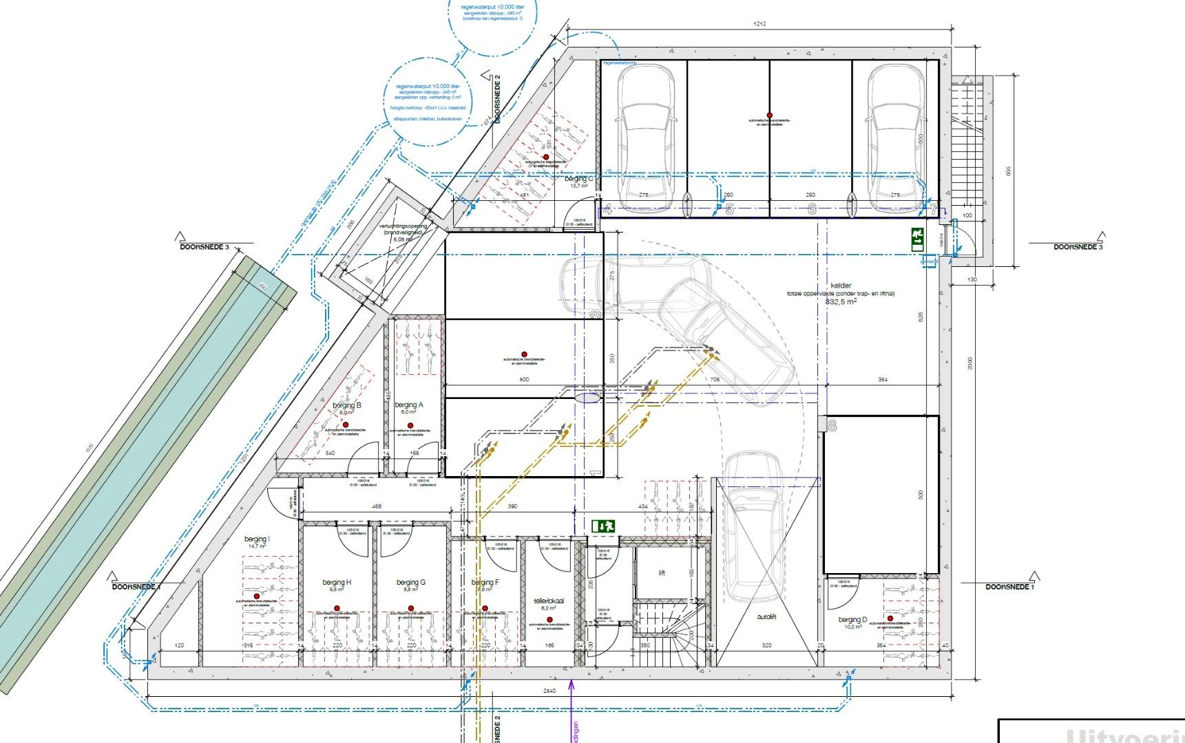
De projectgrond is definitief vergund en onmiddellijk uitvoerbaar voor het bouwen van 8 eenheden met parkeerkelder dat bestemd is voor parking en kelderberging. Met een vergunde gevelbreedte van +-25m zal dit projectgrond zeker een eyecatcher worden.
Alle voorbereidende werken voor het bouwen van deze prachtige project zijn reeds uitgevoerd en is daarmee startklaar. De prijs is aldus inclusief de vergunde plannen, stabiliteitsstudie, meetstaat, EPB startverklaring, geotechnisch verslag, bovendien is de boscompensatiepremie reeds betaald! Kortom een startklaar project voor de ontwikkelaar die gelijk wil beginnen zonder tijd te verliezen en weet wat hij krijgt!
Waar wacht u nog op? Aarzel niet ons te contacteren voor meer info op kantoor. Tel: 089/20.90.88.
De projectgrond is definitief vergund en onmiddellijk uitvoerbaar voor het bouwen van 8 eenheden met parkeerkelder dat bestemd is voor parking en kelderberging. Met een vergunde gevelbreedte van +-25m zal dit projectgrond zeker een eyecatcher worden.
Alle voorbereidende werken voor het bouwen van deze prachtige project zijn reeds uitgevoerd en is daarmee startklaar. De prijs is aldus inclusief de vergunde plannen, stabiliteitsstudie, meetstaat, EPB startverklaring, geotechnisch verslag, bovendien is de boscompensatiepremie reeds betaald! Kortom een startklaar project voor de ontwikkelaar die gelijk wil beginnen zonder tijd te verliezen en weet wat hij krijgt!
Waar wacht u nog op? Aarzel niet ons te contacteren voor meer info op kantoor. Tel: 089/20.90.88.
Energie
- Verwarming: Geen
- Beglazing: Onbekend
Op de kaart

Financieel
| Prijs | |
|---|---|
| Kadastraal inkomen (niet geïndexeerd) | € 0 |
Berekening kosten
Je aankoopkosten? Die heb je snel berekent via de knop hieronder.
Bijkomende info
Gebouw
| Is beschermd | Nee |
|---|
Perceel
| Voorkeurrecht | Nee |
|---|---|
| Totale oppervlakte (m²) | 965 |
Vergunning
| Vergunning | Vergunning beschikbaar |
|---|---|
| Verkavelingsvergunning | Geen beschikbaar |
| Bouwovertreding dagvaardiging | Geen |
| Type gebied | Stedelijk |
Uitrusting
| Meerdere eigenaars | Nee |
|---|---|
| Rioolaansluiting | Nee |
| Gasaansluiting | Nee |
| Wateraansluiting | Nee |
| Elektriciteitsaansluiting | Nee |
| TV aansluiting | Nee |
| Internetaansluiting | Nee |
Een pand van
Sensimmo
Sensimmo Vastgoed - gevoel voor wonen
Sensimmo bestaat uit een zeer enthousiast team van medewerkers! Ieder van hen beschikt over een grote dosis professionele ervaring, juridische kennis en doorzettingsvermogen. Zij gaan voluit voor een kwalitatieve aanpak van de verkoop van uw woning, uw levensinvestering!
3622
Leer meer over vastgoed
Nieuw
24 November 2025
Uitgezocht voor jouw gemeente: Hoeveel stijgt de waarde van je woning door een renovatie?
22 October 2025
Hoeveel kan ik lenen om een huis te kopen?
11 June 2025
Huis kopen met bouwovertreding? Dit moet je weten
11 May 2025