Nieuw
RUIME WONING MET 5 SLAAPKAMERS OP 10,85 ARE TE BOXBERGHEIDE
€ 425.000
Een pand van Vestio
Overzicht
- 220 m² bewoonbaar
- 1085 m² grond
- 5 Slaapkamer(s)
- 2 Badkamer(s)
- 1 Toilet(ten)
Beschrijving
RUIME WONING MET 5 SLAAPKAMERS OP 10,85 ARE TE BOXBERGHEIDE
Deze zeer ruime woning treffen we aan langs de Boxbergstraat in het populaire Boxbergheide te Genk. Een toplocatie met goede bereikbaarheid naar zowel winkels, scholen, restaurants als het centrum van Genk en de omliggende gemeentes Hasselt en Zonhoven. De woning werd gebouwd in 1956 maar werd in 2023 grotendeels gerenoveerd.
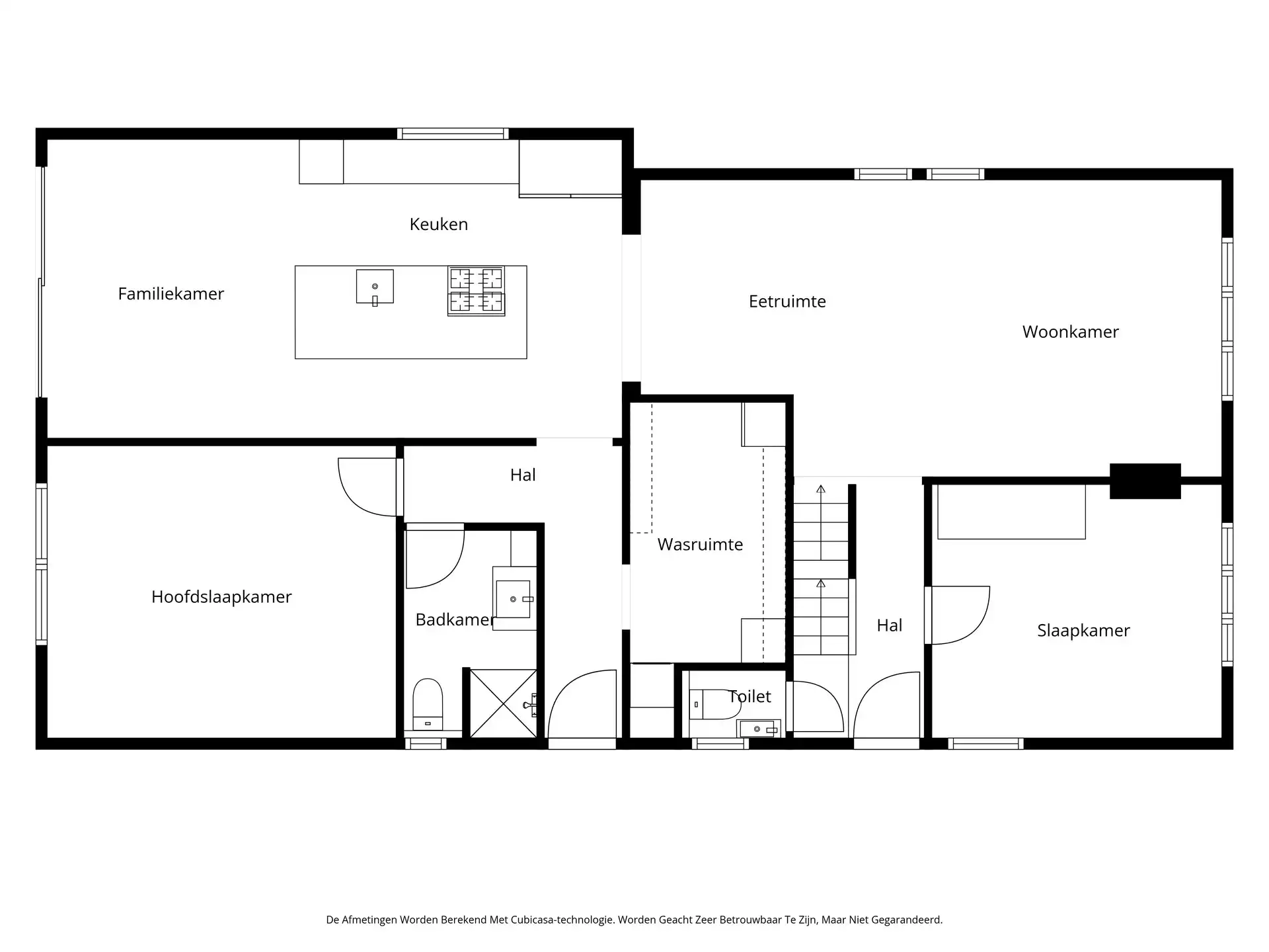
Deze woning beschikt gelijkvloers over een zeer ruim leefgedeelte van meer dan 60 m² opgedeeld in een zithoek, een eetplaats en een grote, moderne keuken in de nieuwe achterbouw. Voorts zijn er nog 2 slaapkamers, een badkamer, een wasplaats, inkomhal en gastentoilet voorhanden.
Verspreid over de tweede verdieping beschikt de woning over nog 3 extra slaapkamers, een tweede badkamer, een berging en een overloop. Extra opbergruimte is er voorzien op de zolderverdieping of in de kelder.
De woning is gelegen op een zeer ruim perceel van 10,85 are waar u de tuin nog kan aanleggen / inrichten naar eigen smaak.
Enkele TROEVEN van dit appartement opgelijst:
+ Grotendeels gerenoveerd in 2023
+ Ruime woning met 5 slaapkamers en 2 badkamers
+ Energiezuinig: EPC is slechts 219!
+ Toplocatie in Boxberg!
+ Ruim perceel 10,85 are
+ Rolluiken voorzien
+ Volledige achterbouw gebouwd in 2023
Kortom, een zeer ruime woning op een toplocatie te Boxberg die mits wat verdere afwerkingen misschien wel jouw droomwoning wordt!? Meer info? Neem contact op met Maarten Delbroek via maarten@vestio.com of bel naar 0471/034804.
Deze zeer ruime woning treffen we aan langs de Boxbergstraat in het populaire Boxbergheide te Genk. Een toplocatie met goede bereikbaarheid naar zowel winkels, scholen, restaurants als het centrum van Genk en de omliggende gemeentes Hasselt en Zonhoven. De woning werd gebouwd in 1956 maar werd in 2023 grotendeels gerenoveerd.
Deze woning beschikt gelijkvloers over een zeer ruim leefgedeelte van meer dan 60 m² opgedeeld in een zithoek, een eetplaats en een grote, moderne keuken in de nieuwe achterbouw. Voorts zijn er nog 2 slaapkamers, een badkamer, een wasplaats, inkomhal en gastentoilet voorhanden.
Verspreid over de tweede verdieping beschikt de woning over nog 3 extra slaapkamers, een tweede badkamer, een berging en een overloop. Extra opbergruimte is er voorzien op de zolderverdieping of in de kelder.
De woning is gelegen op een zeer ruim perceel van 10,85 are waar u de tuin nog kan aanleggen / inrichten naar eigen smaak.
Enkele TROEVEN van dit appartement opgelijst:
+ Grotendeels gerenoveerd in 2023
+ Ruime woning met 5 slaapkamers en 2 badkamers
+ Energiezuinig: EPC is slechts 219!
+ Toplocatie in Boxberg!
+ Ruim perceel 10,85 are
+ Rolluiken voorzien
+ Volledige achterbouw gebouwd in 2023
Kortom, een zeer ruime woning op een toplocatie te Boxberg die mits wat verdere afwerkingen misschien wel jouw droomwoning wordt!? Meer info? Neem contact op met Maarten Delbroek via maarten@vestio.com of bel naar 0471/034804.
Energie
![]() |
- Energieverbruik: 219 kWh/m²/jaar
- E-peil: E0
- Verwarming: Gas
- Beglazing: Standaard dubbel
Op de kaart

Financieel
| Prijs | |
|---|---|
| Kadastraal inkomen (niet geïndexeerd) | € 751 |
Berekening kosten
Je aankoopkosten? Die heb je snel berekend via de knop hieronder.
Bijkomende info
Gebouw
| Bouwjaar | 1956 |
|---|---|
| Renovatie jaar | 2023 |
| Bewoonbaar (m²) | 220 |
| Badkamers | 2 |
| Slaapkamers | 5 |
| Verdiepingen | 0 |
| Garages | 0 |
| Parkeerplaatsen | 0 |
| Toiletten | 1 |
Faciliteiten
| Beglazing | Standaard dubbel |
|---|---|
| Brandstof primaire verwarming | Gas |
| Septische tank | Nee |
Perceel
| Overstromingsgevoelig | Geen |
|---|---|
| P-score | A |
| G-score | A |
| Totale oppervlakte (m²) | 1085 |
| Bebouwde oppervlakte (m²) | 0 |
| Oriëntatie tuin | Noordwest |
Vergunning
| Verkavelingsvergunning | Vergunning beschikbaar |
|---|
Uitrusting
| Investeringspand | Nee |
|---|---|
| Parking | Nee |
| Garage | Nee |
| Kelder | Ja |
| Zolder | Ja |
| Opslagruimte | Ja |
| Lift | Nee |
| Rioolaansluiting | Ja |
| Gasaansluiting | Ja |
| Wateraansluiting | Ja |
| Elektriciteitsaansluiting | Ja |
| Internetaansluiting | Ja |
| Telefoonaansluiting | Nee |
| Zonnepanelen | Nee |
| Zonneboiler | Nee |
| Alarm | Nee |
| Videofoon | Nee |
| Grondwaterput | Nee |
Een pand van
Vestio
Vangronsveld & Somers, thuis in ontwikkeling
Vestio staat voor 'Vangronsveld & Somers, thuis in ontwikkeling'. Vestio is actief in de realisatie van residentiële vastgoedprojecten op toplocaties in het binnenland en aan de Belgische kust in Knokke. Daarbij hecht de vastgoedspecialist veel belang aan een goede begeleiding. Vestio biedt ook assistentie bij de projectontwikkeling van woningen, appartementen, retail, verkavelingen, woon- en zorgcentra en de koop en verkoop van bestaand vastgoed. Een totaalaanpak die al meer dan 20 jaar werkt en tot heel wat exclusieve woonprojecten heeft geleid.
VKTK0513-MD
Leer meer over vastgoed
24 November 2025
Uitgezocht voor jouw gemeente: Hoeveel stijgt de waarde van je woning door een renovatie?
22 October 2025
Hoeveel kan ik lenen om een huis te kopen?
11 June 2025
Huis kopen met bouwovertreding? Dit moet je weten
11 May 2025
