Renovatiewoning op topligging
โฌ 255.000
Een pand van Jemar.be
Jouw zoektocht
Overzicht
- 274 mยฒ bewoonbaar
- 4 Slaapkamer(s)
- 1 Badkamer(s)
- 3 Toilet(ten)
Beschrijving
Renovatiewoning op topligging op 5 minuten van het centrum van Genk
Op een gunstige locatie, op slechts vijf minuten van het centrum van Genk, bieden wij deze gesloten bebouwing met drie volwaardige verdiepingen aan. Deze woning vormt een uitstekende basis voor wie op zoek is naar een renovatieproject dat volledig naar eigen smaak kan worden afgewerkt.
De huidige eigenaar heeft reeds ingrijpende voorbereidende werken uitgevoerd en de woning volledig tot casco herleid. Daarnaast werd het dak volledig vernieuwd en geรฏsoleerd, wat een belangrijke structurele meerwaarde biedt. In de beschikbare fotos is tevens een ontwerpvoorstel opgenomen dat een duidelijk beeld geeft van de mogelijke indeling en afwerking.
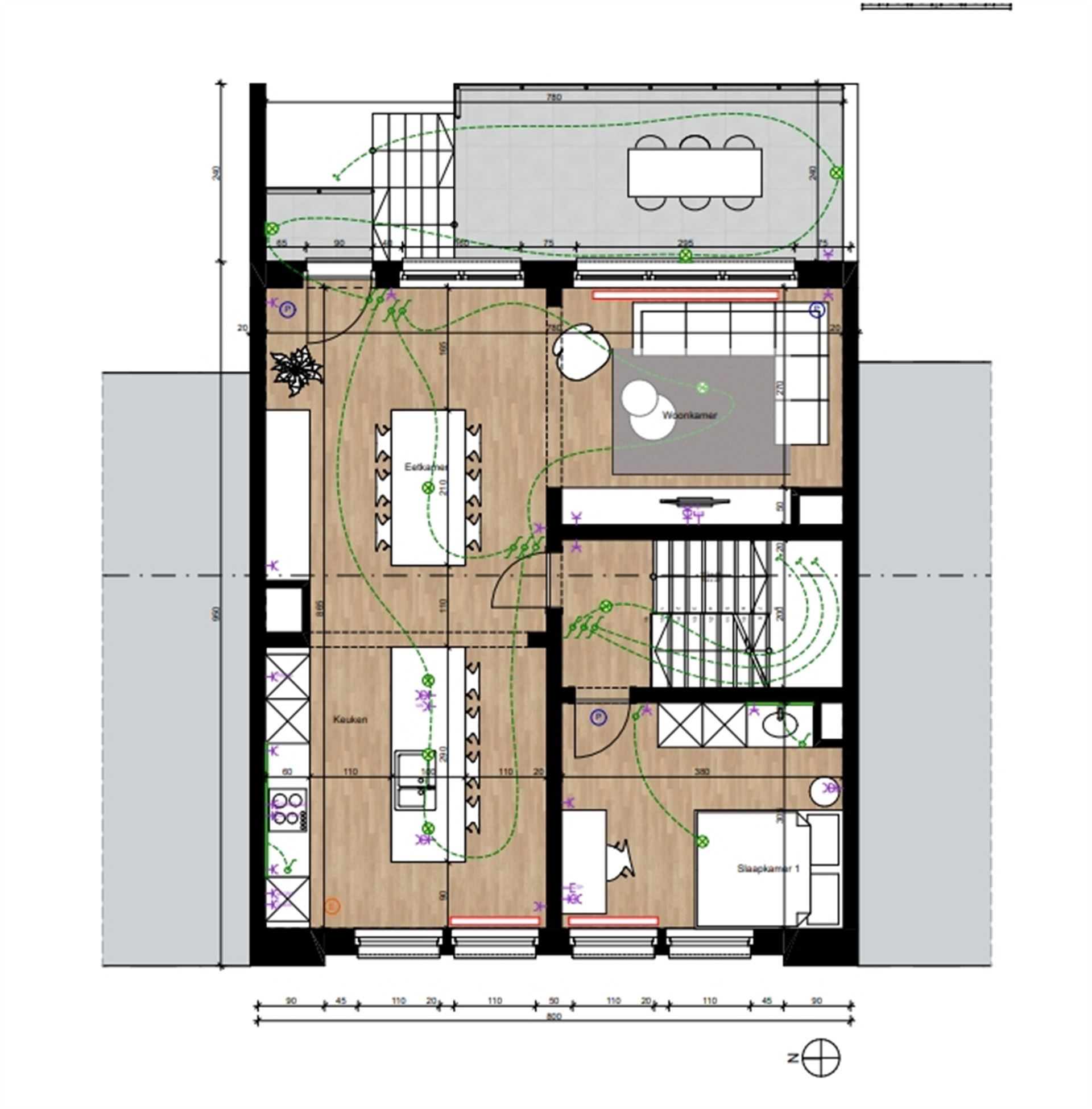
Indeling van de woning:
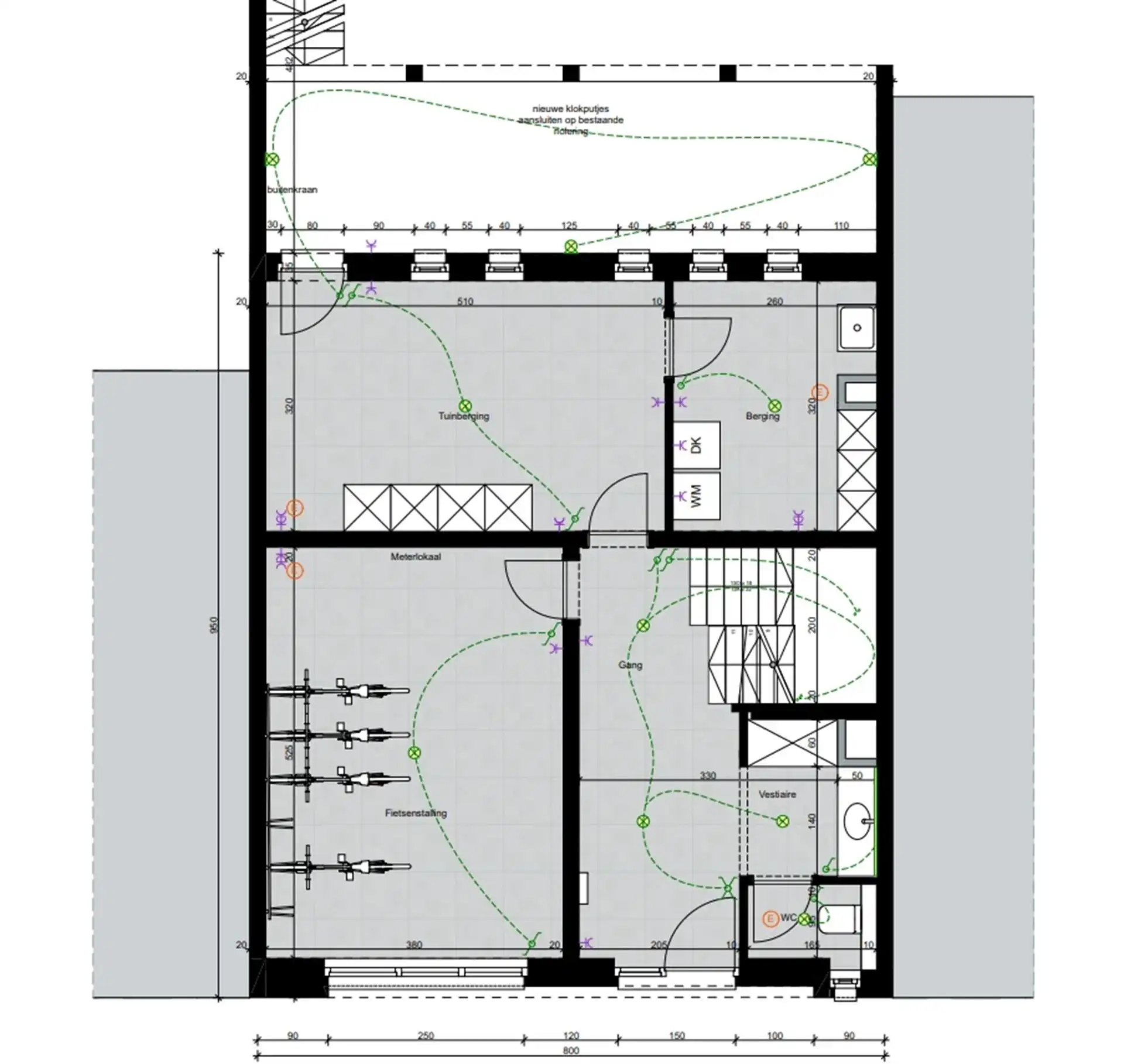
Gelijkvloers:
Garage met aparte inkom, evenals een afzonderlijke doorgang die via een vaste trap toegang geeft tot de bovenliggende verdiepingen. Op het gelijkvloers is ruimte voorzien voor een tuinberging en een extra berging. De tuin is bovendien rechtstreeks bereikbaar via een deur.
Eerste verdieping:
Mogelijkheid tot het creรซren van een ruime en lichtrijke leefruimte met aangenaam zicht op zowel de straat als de tuin. Daarnaast is hier plaats voor een extra slaapkamer of een badkamer met douche en toilet.
Tweede verdieping:
Ingericht voor drie volwaardige slaapkamers en een badkamer met ligbad, wat zorgt voor een comfortabele en functionele gezinsindeling.
Volgens het ontwerp is hier ruimte voorzien voor een vierde slaapkamer met een bijkomend toilet, waardoor de woning in totaal vier slaapkamers kan tellen.
Deze woning is uitermate geschikt voor koppels die op zoek zijn naar een uitdagend renovatieproject om een woning volledig naar eigen smaak te creรซren en technisch in orde te brengen. Daarnaast vormt dit pand ook een interessante opportuniteit voor investeerders, dankzij de gunstige ligging nabij het centrum en de flexibele indelingsmogelijkheden.
Voor bijkomende informatie of een bezichtiging, kunt u ons vrijblijvend contacteren.
Energie
![]() |
- EPC Certificaat: 20250124-0003512815-RES-1
- Energieverbruik: 392 kWh/mยฒ/jaar
- E-peil: E0
- Verwarming: Gas
- Beglazing: Standaard dubbel
Extra budget nodig voor je renovatie?

Op de kaart

Financieel
| Prijs | |
|---|---|
| Kadastraal inkomen (niet geรฏndexeerd) | โฌ 681 |
| Kadastraal inkomen (geรฏndexeerd) | โฌ 0 |
Berekening kosten
Je aankoopkosten? Die heb je snel berekend via de knop hieronder.
Bijkomende info
Gebouw
| Bouwcertificaat | Nee |
|---|---|
| Bewoonbaar (mยฒ) | 274 |
| Verdieping | 3 |
| Gevelbreedte | 8.2 |
| Badkamers | 1 |
| Slaapkamers | 4 |
| Verdiepingen | 0 |
| Garages | 0 |
| Parkeerplaatsen | 1 |
| Doucheruimtes | 1 |
| Toiletten | 3 |
Faciliteiten
| Beglazing | Standaard dubbel |
|---|---|
| Brandstof primaire verwarming | Gas |
| Elektrisch keuringsattest | Nee |
Perceel
| Overstromingsgevoelig | Geen |
|---|---|
| P-score | A |
| G-score | A |
| Voorkeurrecht | Nee |
| Bebouwde oppervlakte (mยฒ) | 0 |
| Tuin oppervlakte (mยฒ) | 0 |
| Oppervlakte terras (mยฒ) | 0 |
Vergunning
| Vergunning | Vergunning beschikbaar |
|---|
Uitrusting
| Investeringspand | Nee |
|---|---|
| Geschikt voor praktijk | Nee |
| Parking | Ja |
| Garage | Nee |
| Thuiskantoor | Nee |
| Kelder | Nee |
| Zolder | Nee |
| Tuin | Nee |
| Terras | Nee |
| Lift | Nee |
| Rioolaansluiting | Nee |
| Gasaansluiting | Nee |
| Wateraansluiting | Nee |
| Elektriciteitsaansluiting | Nee |
| TV aansluiting | Nee |
| Internetaansluiting | Nee |
| Telefoonaansluiting | Nee |


