RUSTIG GELEGEN WONING MET 4 SLAAPKAMERS
€ 248.000
Een pand van Vestio
Favoriet
Jouw zoektocht
Jouw scoretabel voor dit pand
Aan het laden...
Jouw geplande bezichtigingen
Aan het laden...
Overzicht
- 175 m² bewoonbaar
- 540 m² grond
- 4 Slaapkamer(s)
- 1 Badkamer(s)
- 1 Garage(s)
Beschrijving
RUSTIG GELEGEN WONING MET 4 SLAAPKAMERS
Deze verrassend ruime woning is gelegen langs de rustige Staatstuinwijk in Winterslag. Een centrale locatie met een goede verbinding met het centrum van Genk en de nabijgelegen winkels.
Ondanks dat de woning valt onder de renovatieverplichting biedt het huis een zeer goede basis om de woning naar uw wensen aan te passen. Zo werd het dak recent vernieuwd en werd de verwarmingsketel vervangen. Om een idee te krijgen van de investeringen die nodig zijn om deze woning energiezuiniger kan u het renovatierapport downloaden op onze website.
Bekijkt u dit pand via een aanverwante website? Bekijk dan zeker de volledige beschrijving, indeling en alle foto’s op de website van Vestio:
https://www.vestio.com/huis/te-koop/genk-3600/3699/n-a
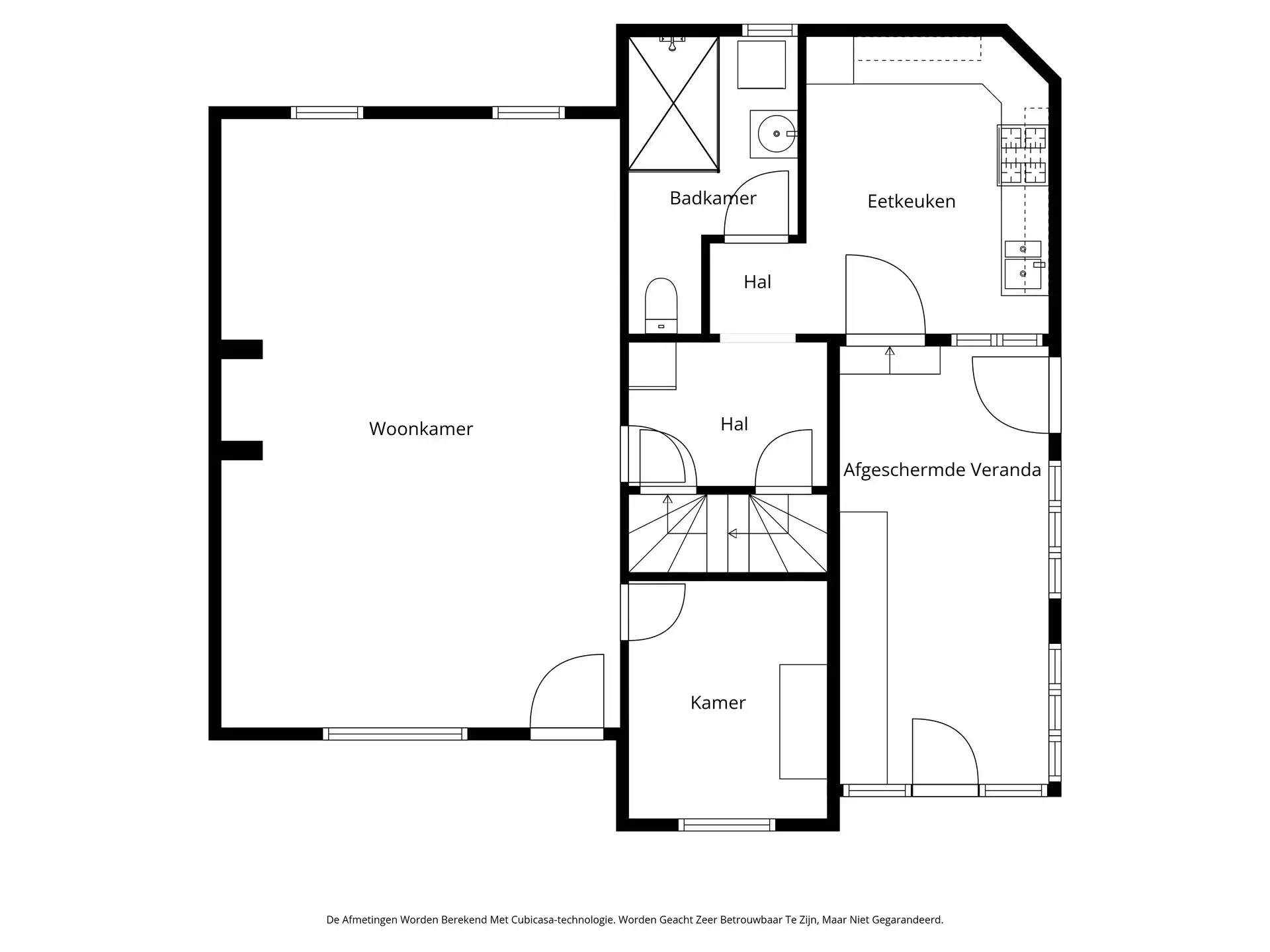
Gelijkvloers bestaat de woning uit een zeer ruime living met een plafondhoogte van maar liefst 2,90 m wat het ruimtegevoel nog vergroot. Voorts zijn er een bureau, een centrale hal, een badkamer, goed uitgeruste keuken en een veranda.
Verspreid over de eerste verdieping zijn er vervolgens nog 4 slaapkamers en een overloop voorhanden. Extra bergruimte is er voorhanden in de kelderberging. De woning is gelegen op een westelijk georiënteerd perceel van 5,40 are waar u van ’s middags tot ’s avonds kan genieten van de overvloedige zon.
Enkele TROEVEN van deze woning opgelijst:
+ Dak is vernieuwd
+ Recente verwarmingsketel
+ Rustige locatie tegenover het groen
+ Westelijk georiënteerd perceel 5,40 are
+ Ruime woning met 4 slaapkamers
+ Hoge plafonds (2,90m) in de living
Kortom, een degelijke woning boordevol potentieel! Meer info? Contacteer Maarten Delbroek via maarten@vestio.com of bel naar 0471/034804.
Deze verrassend ruime woning is gelegen langs de rustige Staatstuinwijk in Winterslag. Een centrale locatie met een goede verbinding met het centrum van Genk en de nabijgelegen winkels.
Ondanks dat de woning valt onder de renovatieverplichting biedt het huis een zeer goede basis om de woning naar uw wensen aan te passen. Zo werd het dak recent vernieuwd en werd de verwarmingsketel vervangen. Om een idee te krijgen van de investeringen die nodig zijn om deze woning energiezuiniger kan u het renovatierapport downloaden op onze website.
Bekijkt u dit pand via een aanverwante website? Bekijk dan zeker de volledige beschrijving, indeling en alle foto’s op de website van Vestio:
https://www.vestio.com/huis/te-koop/genk-3600/3699/n-a
Gelijkvloers bestaat de woning uit een zeer ruime living met een plafondhoogte van maar liefst 2,90 m wat het ruimtegevoel nog vergroot. Voorts zijn er een bureau, een centrale hal, een badkamer, goed uitgeruste keuken en een veranda.
Verspreid over de eerste verdieping zijn er vervolgens nog 4 slaapkamers en een overloop voorhanden. Extra bergruimte is er voorhanden in de kelderberging. De woning is gelegen op een westelijk georiënteerd perceel van 5,40 are waar u van ’s middags tot ’s avonds kan genieten van de overvloedige zon.
Enkele TROEVEN van deze woning opgelijst:
+ Dak is vernieuwd
+ Recente verwarmingsketel
+ Rustige locatie tegenover het groen
+ Westelijk georiënteerd perceel 5,40 are
+ Ruime woning met 4 slaapkamers
+ Hoge plafonds (2,90m) in de living
Kortom, een degelijke woning boordevol potentieel! Meer info? Contacteer Maarten Delbroek via maarten@vestio.com of bel naar 0471/034804.
Energie
![]() |
- Energieverbruik: 882 kWh/m²/jaar
- E-peil: E0
- Beglazing: Enkel
Let op, de renovatieverplichting in Vlaanderen verplicht de koper om deze woning na aankoop te renoveren tot een betere energieprestatie. Lees er alles over in dit artikel
Extra budget nodig voor je renovatie?
De overheid helpt je dit pand energetisch te renoveren! Hieronder zie je het premiebedrag dat je mogelijks van de overheid krijgt.
Het huidige EPC-label is:

Op de kaart

Financieel
| Prijs | |
|---|---|
| Kadastraal inkomen (niet geïndexeerd) | € 493 |
Berekening kosten
Je aankoopkosten? Die heb je snel berekend via de knop hieronder.
Bijkomende info
Gebouw
| Bouwjaar | 1930 |
|---|---|
| Bewoonbaar (m²) | 175 |
| Badkamers | 1 |
| Slaapkamers | 4 |
| Verdiepingen | 0 |
| Garages | 1 |
| Parkeerplaatsen | 0 |
| Toiletten | 0 |
Faciliteiten
| Beglazing | Enkel |
|---|---|
| Septische tank | Nee |
Perceel
| Overstromingsgevoelig | Geen |
|---|---|
| P-score | A |
| G-score | A |
| Totale oppervlakte (m²) | 540 |
| Bebouwde oppervlakte (m²) | 0 |
| Oriëntatie tuin | West |
Vergunning
| Verkavelingsvergunning | Geen beschikbaar |
|---|
Uitrusting
| Investeringspand | Nee |
|---|---|
| Parking | Nee |
| Garage | Ja |
| Thuiskantoor | Ja |
| Kelder | Ja |
| Lift | Nee |
| Rioolaansluiting | Ja |
| Gasaansluiting | Nee |
| Wateraansluiting | Nee |
| Elektriciteitsaansluiting | Nee |
| Internetaansluiting | Nee |
| Telefoonaansluiting | Nee |
| Zonnepanelen | Nee |
| Zonneboiler | Nee |
| Alarm | Nee |
| Videofoon | Nee |
| Grondwaterput | Nee |
Een pand van
Vestio
Vangronsveld & Somers, thuis in ontwikkeling
Vestio staat voor 'Vangronsveld & Somers, thuis in ontwikkeling'. Vestio is actief in de realisatie van residentiële vastgoedprojecten op toplocaties in het binnenland en aan de Belgische kust in Knokke. Daarbij hecht de vastgoedspecialist veel belang aan een goede begeleiding. Vestio biedt ook assistentie bij de projectontwikkeling van woningen, appartementen, retail, verkavelingen, woon- en zorgcentra en de koop en verkoop van bestaand vastgoed. Een totaalaanpak die al meer dan 20 jaar werkt en tot heel wat exclusieve woonprojecten heeft geleid.
VKTK0515-MD
Leer meer over vastgoed
23 March 2026
Op Spotto zoeken als een pro: 10 slimme tips
21 March 2026
Hoeveel kan ik lenen om een huis te kopen?
01 March 2026
Wanneer heb ik een bouwvergunning of omgevingsvergunning nodig?
17 February 2026



