Nieuw
Te renoveren woning (G.B.) met 3 slpkrs te Genk
€ 215.000
Een pand van Frère Vastgoed
Overzicht
- 116.23 m² bewoonbaar
- 530 m² grond
- 3 Slaapkamer(s)
- 1 Badkamer(s)
Beschrijving
Deze woning kan u terugvinden op de Torenlaan 11 in Genk (Zwartberg).
Bent u opzoek naar een te renoveren starterswoning in Genk?
Dan is deze woning iets voor u!
Deze woning maakt deel uit van de rijke geschiedenis van de steenkoolmijnen.
De Hoevenzavellaan, Vennestraat en Stalenstraat zijn vlakbij gelegen.
Supermarkten, handelszaken en verschillende gezellige horecazaken zijn gemakkelijk te bereiken.
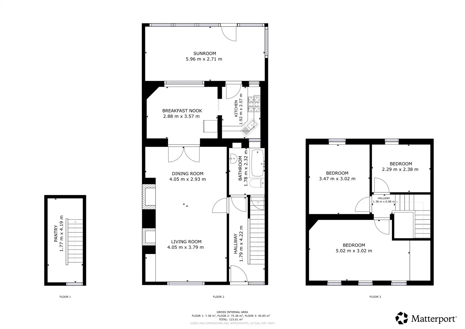
De indeling is als volgt:
U betreedt de woning aan de voorkant waarlangs u toegang heeft tot de inkomhal.
Van hieruit bereikt u de woon- en eetkamer. De keuken situeert zich langs de eetkamer.
De keuken is voorzien van een gasfornuis, oven en spoelbak.
Aan de achterzijde vindt u de veranda terug dewelke uitgeeft op het gezellig tuintje waar het heerlijk vertoeven is in de zomer.
De tuin is voorzien van aparte toegang en beschikt over 2 garages.
De badkamer is gelegen op het gelijkvloers en is voorzien van een ligbad, toilet en enkel lavabomeubel.
Op het eerste verdiep beschikt u over 3 slaapkamers.
Tevens is er in de woning een kleine provisiekelder aanwezig.
Als bijlage kan u het energieprestatiecertificaat, het asbestattest en het indelingsplan terugvinden.
Wenst u meer informatie of een bezichtiging in te plannen?
Bel ons gerust op het nummer 089 391 555 of contacteer ons op info@frerevastgoed.be
Bent u opzoek naar een te renoveren starterswoning in Genk?
Dan is deze woning iets voor u!
Deze woning maakt deel uit van de rijke geschiedenis van de steenkoolmijnen.
De Hoevenzavellaan, Vennestraat en Stalenstraat zijn vlakbij gelegen.
Supermarkten, handelszaken en verschillende gezellige horecazaken zijn gemakkelijk te bereiken.
De indeling is als volgt:
U betreedt de woning aan de voorkant waarlangs u toegang heeft tot de inkomhal.
Van hieruit bereikt u de woon- en eetkamer. De keuken situeert zich langs de eetkamer.
De keuken is voorzien van een gasfornuis, oven en spoelbak.
Aan de achterzijde vindt u de veranda terug dewelke uitgeeft op het gezellig tuintje waar het heerlijk vertoeven is in de zomer.
De tuin is voorzien van aparte toegang en beschikt over 2 garages.
De badkamer is gelegen op het gelijkvloers en is voorzien van een ligbad, toilet en enkel lavabomeubel.
Op het eerste verdiep beschikt u over 3 slaapkamers.
Tevens is er in de woning een kleine provisiekelder aanwezig.
Als bijlage kan u het energieprestatiecertificaat, het asbestattest en het indelingsplan terugvinden.
Wenst u meer informatie of een bezichtiging in te plannen?
Bel ons gerust op het nummer 089 391 555 of contacteer ons op info@frerevastgoed.be
Energie
![]() |
- EPC Certificaat: 20251120-0003737140-RES-1
- Energieverbruik: 1014 kWh/m²/jaar
- E-peil: E0
- Verwarming: Elektriciteit
- Beglazing: Onbekend
Let op, de renovatieverplichting in Vlaanderen verplicht de koper om deze woning na aankoop te renoveren tot een betere energieprestatie. Lees er alles over in dit artikel
Extra budget nodig voor je renovatie?
De overheid helpt je dit pand energetisch te renoveren! Hieronder zie je het premiebedrag dat je mogelijks van de overheid krijgt.
Het huidige EPC-label is:

Op de kaart

Financieel
| Prijs | |
|---|---|
| Kadastraal inkomen (niet geïndexeerd) | € 287 |
Berekening kosten
Je aankoopkosten? Die heb je snel berekent via de knop hieronder.
Bijkomende info
Gebouw
| Bouwjaar | 1930 |
|---|---|
| Staat | Te renoveren |
| Is beschermd | Nee |
| Bouwcertificaat | Nee |
| Bewoonbaar (m²) | 116.23 |
| Gevelbreedte | 6.3 |
| Badkamers | 1 |
| Slaapkamers | 3 |
| Verdiepingen | 0 |
| Garages | 0 |
| Parkeerplaatsen | 0 |
| Toiletten | 0 |
Faciliteiten
| Brandstof primaire verwarming | Elektriciteit |
|---|---|
| Septische tank | Nee |
Perceel
| Breedte (m) | 6 |
|---|---|
| Overstromingsgevoelig | Geen |
| P-score | A |
| G-score | A |
| Totale oppervlakte (m²) | 530 |
| Bebouwde oppervlakte (m²) | 0 |
| Oriëntatie tuin | Noordwest |
Vergunning
| Verkavelingsvergunning | Geen beschikbaar |
|---|
Uitrusting
| Investeringspand | Nee |
|---|---|
| Parking | Nee |
| Garage | Nee |
| Kelder | Ja |
| Zolder | Ja |
| Lift | Nee |
| Rioolaansluiting | Ja |
| Gasaansluiting | Nee |
| Wateraansluiting | Ja |
| Elektriciteitsaansluiting | Ja |
| Internetaansluiting | Ja |
| Telefoonaansluiting | Ja |
| Zonnepanelen | Nee |
| Zonneboiler | Nee |
| Alarm | Nee |
| Videofoon | Nee |
| Grondwaterput | Nee |
Een pand van
Frère Vastgoed
Welkom bij Frère Vastgoed.
Frère Vastgoed is uw partner bij de verkoop, verhuur of aankoop van elk type vastgoed.
Het verkopen, verhuren of aankopen van vastgoed is een ingewikkeld proces.
Frère Vastgoed helpt u graag met een resultaatgerichte en persoonlijke begeleiding bij één van de belangrijkste transacties in uw leven.
Torenlaan 11, Genk 26.
Leer meer over vastgoed
24 November 2025
Uitgezocht voor jouw gemeente: Hoeveel stijgt de waarde van je woning door een renovatie?
22 October 2025
Hoeveel kan ik lenen om een huis te kopen?
11 June 2025
Huis kopen met bouwovertreding? Dit moet je weten
11 May 2025



