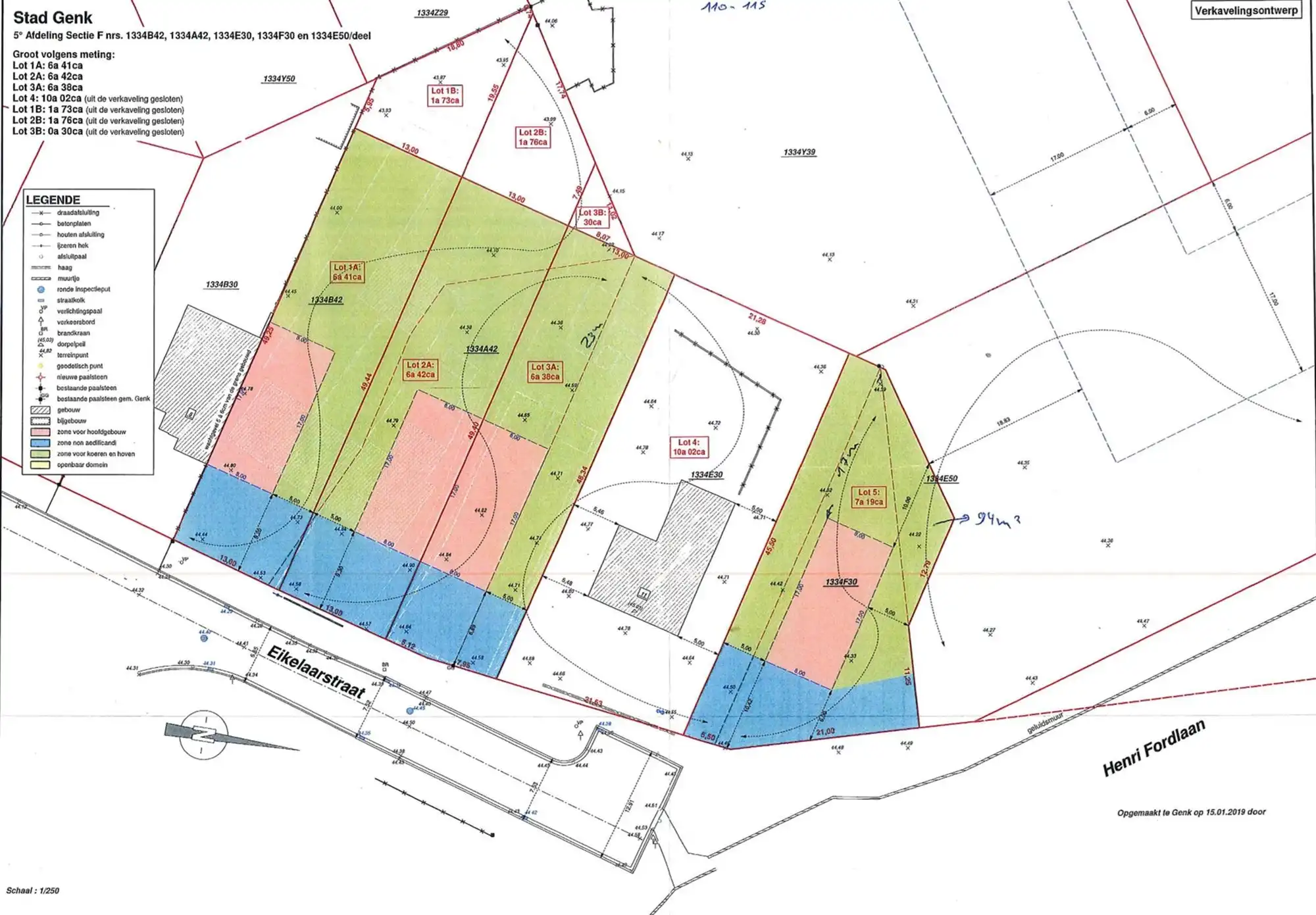
RUIME BOUWGROND VOOR EEN HOB VAN 8A18CA OP CENTRALE LIGGING IN GENK
€ 175.000
Een pand van Het Vastgoedkantoor
Favoriet
Jouw zoektocht
Jouw scoretabel voor dit pand
Aan het laden...
Jouw geplande bezichtigingen
Aan het laden...
Overzicht
- 818 m² grond
Beschrijving
Ruime bouwgrond voor een HOB woning van 8 are 18 ca op centrale ligging in Genk.
Belangrijkste troeven:
- Lot 2A & lot 2B
- 8 are 18 ca totaal
- Centrale ligging
- Reeds verkaveld
- 13m straatbreedte
- Gebouw wordt afgebroken door de verkoper
Bekijk zeker ook de grondplannen met de afmetingen.
Wenst u meer info of een vrijblijvende afspraak, contacteer dan ons kantoor op het nummer 011 85 15 15 en wij helpen u graag verder.
Energie
- E-peil: E0
- Beglazing: Onbekend
Op de kaart

Financieel
| Prijs | |
|---|---|
| Kadastraal inkomen (niet geïndexeerd) | € 0 |
| Kadastraal inkomen (geïndexeerd) | € 0 |
Berekening kosten
Je aankoopkosten? Die heb je snel berekend via de knop hieronder.
Bijkomende info
Gebouw
| Bouwcertificaat | Nee |
|---|
Perceel
| Breedte (m) | 13 |
|---|---|
| Overstromingsgevoelig | Geen |
| P-score | A |
| Voorkeurrecht | Nee |
| Totale oppervlakte (m²) | 818 |
Vergunning
| Vergunning | Vergunning beschikbaar |
|---|---|
| Verkavelingsvergunning | Vergunning beschikbaar |
Uitrusting
| Investeringspand | Nee |
|---|---|
| Rioolaansluiting | Ja |
| Gasaansluiting | Ja |
| Wateraansluiting | Ja |
| Elektriciteitsaansluiting | Ja |
| TV aansluiting | Ja |
| Internetaansluiting | Ja |
| Telefoonaansluiting | Ja |
Een pand van
Het Vastgoedkantoor
Het Vastgoedkantoor
Een nieuw begin, Welkom thuis!
EIKELAARSTRAAT 9 GENK
Leer meer over vastgoed
23 March 2026
Op Spotto zoeken als een pro: 10 slimme tips
21 March 2026
Hoeveel kan ik lenen om een huis te kopen?
01 March 2026
Wanneer heb ik een bouwvergunning of omgevingsvergunning nodig?
17 February 2026