In optie
Ruime bouwgrond van 13a 73ca met diverse ontwikkelingsmogelijkheden in Genk-Sledderlo
€ 249.000
Een pand van Consimmo Vastgoed
Favoriet
Jouw zoektocht
Jouw scoretabel voor dit pand
Aan het laden...
Jouw geplande bezichtigingen
Aan het laden...
Overzicht
- 1372 m² grond
Beschrijving
Bent u op zoek naar een bouwgrond met uitzonderlijke mogelijkheden in Genk? Deze bouwgrond van maar liefst 13a 73ca, gelegen in de Sledderlo 11 te Genk, biedt u tal van ontwikkelingsopties en vormt een unieke opportuniteit voor zowel particulieren als ontwikkelaars.
Ligging
De grond is rustig gelegen in Sledderlo, een groene en residentiële wijk van Genk, met een vlotte verbinding naar het centrum, de Zuiderring en de Oosterring. Ook het Ziekenhuis Oost-Limburg (ZOL), scholen, winkels, openbaar vervoer en natuurgebieden bevinden zich in de nabije omgeving. Dankzij deze combinatie van rust, bereikbaarheid en voorzieningen is dit een locatie met sterke toekomstwaarde.
Mogelijkheden
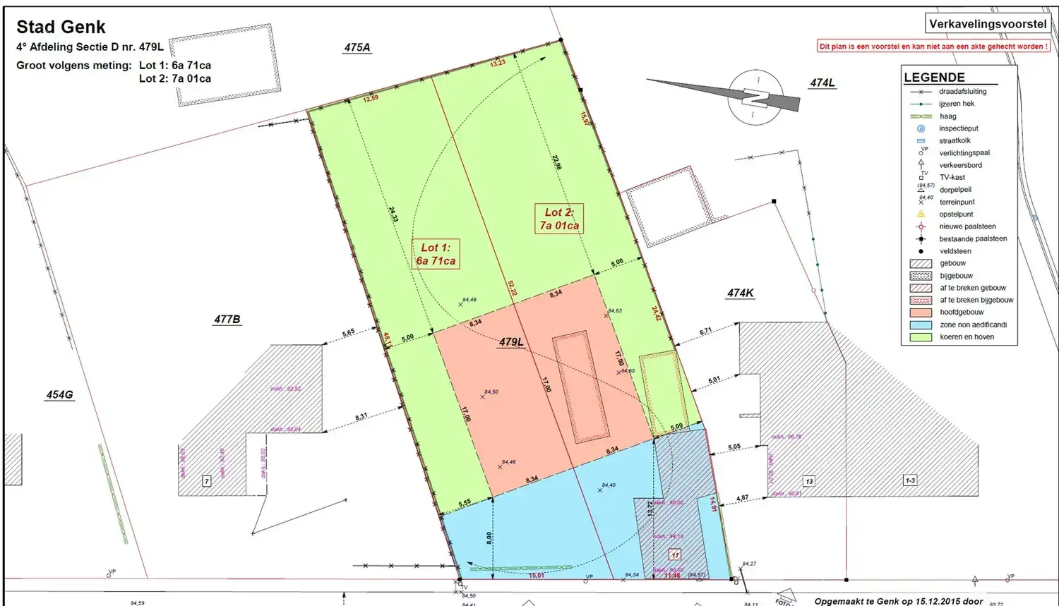
Deze bouwgrond biedt uitzonderlijke flexibiliteit in ontwikkeling. Volgende bouwmogelijkheden zijn toegelaten:
- Open bebouwing
- Twee halfopen bebouwingen (lot 1 & lot 2 in verkavelingsvoorstel)
- Vier appartementen (reeds positief stedenbouwkundig advies ontvangen)
Straatbreedte is 26,94 meter. Zie opmetingsplan voor alle afmetingen van het perceel.
Ontwerpplannen zijn beschikbaar en kunnen bij interesse worden ingezien. Hierdoor kan u meteen richting concrete realisatie of ontwikkeling denken.
Voorwaarden
De bestaande woning op het perceel dient gesloopt te worden. De verkoop gebeurt onder registratierechten (2% gunsttarief bij eigen woning functie – indien aan alle wettelijke voorwaarden wordt voldaan – of 12% standaardtarief).
Belangrijk voordeel:
Wie na de afbraak kiest voor nieuwbouw, komt in aanmerking voor het gunsttarief van 6% btw voor sloop en heropbouw, in plaats van 21% btw. Dit maakt nieuwbouw op deze locatie aanzienlijk voordeliger en financieel aantrekkelijk.
Interesse?
Bent u op zoek naar een bouwgrond met veelzijdige mogelijkheden, een groene omgeving én een sterke bereikbaarheid? Neem dan snel contact op via 089 69 30 01 of info@consimmo.be voor meer informatie of een plaatsbezoek.
Ligging
De grond is rustig gelegen in Sledderlo, een groene en residentiële wijk van Genk, met een vlotte verbinding naar het centrum, de Zuiderring en de Oosterring. Ook het Ziekenhuis Oost-Limburg (ZOL), scholen, winkels, openbaar vervoer en natuurgebieden bevinden zich in de nabije omgeving. Dankzij deze combinatie van rust, bereikbaarheid en voorzieningen is dit een locatie met sterke toekomstwaarde.
Mogelijkheden
Deze bouwgrond biedt uitzonderlijke flexibiliteit in ontwikkeling. Volgende bouwmogelijkheden zijn toegelaten:
- Open bebouwing
- Twee halfopen bebouwingen (lot 1 & lot 2 in verkavelingsvoorstel)
- Vier appartementen (reeds positief stedenbouwkundig advies ontvangen)
Straatbreedte is 26,94 meter. Zie opmetingsplan voor alle afmetingen van het perceel.
Ontwerpplannen zijn beschikbaar en kunnen bij interesse worden ingezien. Hierdoor kan u meteen richting concrete realisatie of ontwikkeling denken.
Voorwaarden
De bestaande woning op het perceel dient gesloopt te worden. De verkoop gebeurt onder registratierechten (2% gunsttarief bij eigen woning functie – indien aan alle wettelijke voorwaarden wordt voldaan – of 12% standaardtarief).
Belangrijk voordeel:
Wie na de afbraak kiest voor nieuwbouw, komt in aanmerking voor het gunsttarief van 6% btw voor sloop en heropbouw, in plaats van 21% btw. Dit maakt nieuwbouw op deze locatie aanzienlijk voordeliger en financieel aantrekkelijk.
Interesse?
Bent u op zoek naar een bouwgrond met veelzijdige mogelijkheden, een groene omgeving én een sterke bereikbaarheid? Neem dan snel contact op via 089 69 30 01 of info@consimmo.be voor meer informatie of een plaatsbezoek.
IN OPTIE!
Bent u op zoek naar een bouwgrond met uitzonderlijke mogelijkheden in Genk? Deze bouwgrond van maar liefst 13a 73ca, gelegen in de Sledderlo 11 te Genk, biedt u tal van ontwikkelingsopties en vormt een unieke opportuniteit voor zowel particulieren als ontwikkelaars.
Ligging
De grond is rustig gelegen in Sledderlo, een groene en residentiële wijk van Genk, met een vlotte verbinding naar het centrum, de Zuiderring en de Oosterring. Ook het Ziekenhuis Oost-Limburg (ZOL), scholen, winkels, openbaar vervoer en natuurgebieden bevinden zich in de nabije omgeving. Dankzij deze combinatie van rust, bereikbaarheid en voorzieningen is dit een locatie met sterke toekomstwaarde.
Mogelijkheden
Deze bouwgrond biedt uitzonderlijke flexibiliteit in ontwikkeling. Volgende bouwmogelijkheden zijn toegelaten:
- Open bebouwing
- Twee halfopen bebouwingen (lot 1 & lot 2 in verkavelingsvoorstel)
- Vier appartementen (reeds positief stedenbouwkundig advies ontvangen)
Straatbreedte is 26,94 meter. Zie opmetingsplan voor alle afmetingen van het perceel.
Ontwerpplannen zijn beschikbaar en kunnen bij interesse worden ingezien. Hierdoor kan u meteen richting concrete realisatie of ontwikkeling denken.
Voorwaarden
De bestaande woning op het perceel dient gesloopt te worden. De verkoop gebeurt onder registratierechten (2% gunsttarief bij eigen woning functie – indien aan alle wettelijke voorwaarden wordt voldaan – of 12% standaardtarief).
Belangrijk voordeel:
Wie na de afbraak kiest voor nieuwbouw, komt in aanmerking voor het gunsttarief van 6% btw voor sloop en heropbouw, in plaats van 21% btw. Dit maakt nieuwbouw op deze locatie aanzienlijk voordeliger en financieel aantrekkelijk.
Interesse?
Bent u op zoek naar een bouwgrond met veelzijdige mogelijkheden, een groene omgeving én een sterke bereikbaarheid? Neem dan snel contact op via 089 69 30 01 of info@consimmo.be voor meer informatie of een plaatsbezoek.
Bent u op zoek naar een bouwgrond met uitzonderlijke mogelijkheden in Genk? Deze bouwgrond van maar liefst 13a 73ca, gelegen in de Sledderlo 11 te Genk, biedt u tal van ontwikkelingsopties en vormt een unieke opportuniteit voor zowel particulieren als ontwikkelaars.
Ligging
De grond is rustig gelegen in Sledderlo, een groene en residentiële wijk van Genk, met een vlotte verbinding naar het centrum, de Zuiderring en de Oosterring. Ook het Ziekenhuis Oost-Limburg (ZOL), scholen, winkels, openbaar vervoer en natuurgebieden bevinden zich in de nabije omgeving. Dankzij deze combinatie van rust, bereikbaarheid en voorzieningen is dit een locatie met sterke toekomstwaarde.
Mogelijkheden
Deze bouwgrond biedt uitzonderlijke flexibiliteit in ontwikkeling. Volgende bouwmogelijkheden zijn toegelaten:
- Open bebouwing
- Twee halfopen bebouwingen (lot 1 & lot 2 in verkavelingsvoorstel)
- Vier appartementen (reeds positief stedenbouwkundig advies ontvangen)
Straatbreedte is 26,94 meter. Zie opmetingsplan voor alle afmetingen van het perceel.
Ontwerpplannen zijn beschikbaar en kunnen bij interesse worden ingezien. Hierdoor kan u meteen richting concrete realisatie of ontwikkeling denken.
Voorwaarden
De bestaande woning op het perceel dient gesloopt te worden. De verkoop gebeurt onder registratierechten (2% gunsttarief bij eigen woning functie – indien aan alle wettelijke voorwaarden wordt voldaan – of 12% standaardtarief).
Belangrijk voordeel:
Wie na de afbraak kiest voor nieuwbouw, komt in aanmerking voor het gunsttarief van 6% btw voor sloop en heropbouw, in plaats van 21% btw. Dit maakt nieuwbouw op deze locatie aanzienlijk voordeliger en financieel aantrekkelijk.
Interesse?
Bent u op zoek naar een bouwgrond met veelzijdige mogelijkheden, een groene omgeving én een sterke bereikbaarheid? Neem dan snel contact op via 089 69 30 01 of info@consimmo.be voor meer informatie of een plaatsbezoek.
Energie
![]() |
- EPC Certificaat: 20241016-0003415504-RES-1
- Energieverbruik: 500 kWh/m²/jaar
- E-peil: E0
- Verwarming: Gas
- Beglazing: Standaard dubbel
Let op, de renovatieverplichting in Vlaanderen verplicht de koper om deze woning na aankoop te renoveren tot een betere energieprestatie. Lees er alles over in dit artikel
Op de kaart

Financieel
| Prijs | |
|---|---|
| Kadastraal inkomen (niet geïndexeerd) | € 704 |
Berekening kosten
Je aankoopkosten? Die heb je snel berekend via de knop hieronder.
Bijkomende info
Perceel
| Breedte (m) | 26 |
|---|---|
| Overstromingsgevoelig | Geen |
| P-score | B |
| Totale oppervlakte (m²) | 1372 |
Vergunning
| Verkavelingsvergunning | Geen beschikbaar |
|---|
Uitrusting
| Investeringspand | Nee |
|---|---|
| Rioolaansluiting | Nee |
| Gasaansluiting | Ja |
| Wateraansluiting | Ja |
| Elektriciteitsaansluiting | Ja |
| Internetaansluiting | Nee |
| Telefoonaansluiting | Nee |
Een pand van
Consimmo Vastgoed
Welkom bij Consimmo Vastgoed
In de steeds haastigere wereld waarin we leven hebben we nood aan een plek waar we tot rust kunnen komen, een plek waar we ons thuis kunnen voelen, zonder zorgen onze dagen kunnen slijten met de mensen die we graag hebben. Dat is precies wat wij van Consimmo Vastgoed voor u willen: gemoedsrust.
Ook bij het verkopen van uw woning snappen wij dat u op beide oren wilt kunnen slapen. Dat u zich geen zorgen moet maken over papierwerk, juridische rompslomp of het vinden van een geschikte koper. Leg daarom gerust het lot van uw eigendom in onze handen!
Bij Consimmo Vastgoed doen wij er alles aan om u te ontzorgen, van de juiste woning tot de juiste koper ervan!
348b
Leer meer over vastgoed
23 March 2026
Op Spotto zoeken als een pro: 10 slimme tips
21 March 2026
Hoeveel kan ik lenen om een huis te kopen?
01 March 2026
Wanneer heb ik een bouwvergunning of omgevingsvergunning nodig?
17 February 2026
