Verkocht Nieuw
Nieuwbouwappartement van 65,02m² met één slaapkamer
Een pand van Nicole Janssen bvba
Overzicht
- 65.02 m² bewoonbaar
- 1 Slaapkamer(s)
- 1 Badkamer(s)
Beschrijving
Residentie De Mispelaer ligt in het bruisend hart van Maasmechelen, een gemeente met daarenboven veel bos- en heidegebied. De verschillende in- en uitvalswegen van de gemeente zorgen er voor dat de centra van Maastricht, Genk, Hasselt, Maaseik of Aken vlot bereikbaar zijn.
De ruime en lichte appartementen, alle met terras, worden ontsloten via brede galerijen die uitkijken op een binnentuin op het dak van de winkel. De tuin, het bijhorende zonneterras en de aanpalende ontmoetingsruimte zijn alleen toegankelijk voor bewoners en hun bezoekers. Een ideale plek voor een gezellige babbel of een spelletje kaarten of petanque.
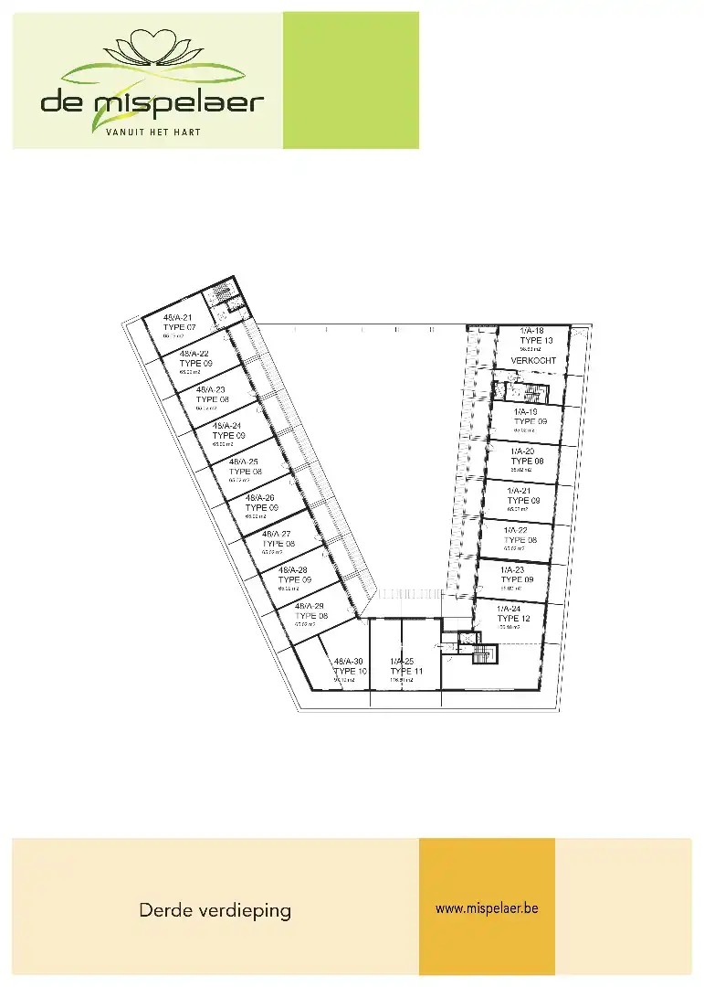
=> Derde verdieping (appartement 3.51)
- Inkomhal
- Leefruimte met keuken
- Eén slaapkamer
- Badkamer
- Terras van 13,43m² aan de straatzijde en 13,89m² aan de tuinzijde
=> Kelder
- Onder het complex bevindt zich een ondergrondse parkeergarage waar een parkeerplaats en een kelderberging kan aangekocht worden
=> Kenmerken
- Akoestische- en thermische isolatie
- Aluminium ramen met superisolerende beglazing
- Individueel instelbare vloerverwarming
- Koeling (vloerkoeling)
- Ventilatiesysteem Type D
- Lift en videofoon
- Rolstoeltoegankelijk
- Drempelloos terras
De ruime en lichte appartementen, alle met terras, worden ontsloten via brede galerijen die uitkijken op een binnentuin op het dak van de winkel. De tuin, het bijhorende zonneterras en de aanpalende ontmoetingsruimte zijn alleen toegankelijk voor bewoners en hun bezoekers. Een ideale plek voor een gezellige babbel of een spelletje kaarten of petanque.
=> Derde verdieping (appartement 3.51)
- Inkomhal
- Leefruimte met keuken
- Eén slaapkamer
- Badkamer
- Terras van 13,43m² aan de straatzijde en 13,89m² aan de tuinzijde
=> Kelder
- Onder het complex bevindt zich een ondergrondse parkeergarage waar een parkeerplaats en een kelderberging kan aangekocht worden
=> Kenmerken
- Akoestische- en thermische isolatie
- Aluminium ramen met superisolerende beglazing
- Individueel instelbare vloerverwarming
- Koeling (vloerkoeling)
- Ventilatiesysteem Type D
- Lift en videofoon
- Rolstoeltoegankelijk
- Drempelloos terras
Energie
- Beglazing: Hoog efficient dubbel
Op de kaart

Financieel
| Prijs | |
|---|---|
| Kadastraal inkomen (niet geïndexeerd) | € 0 |
| Kadastraal inkomen (geïndexeerd) | € 0 |
Bijkomende info
Gebouw
| Is beschermd | Nee |
|---|---|
| Bewoonbaar (m²) | 65.02 |
| Badkamers | 1 |
| Slaapkamers | 1 |
Ruimtes
| Terras | 27.32 m² |
|---|
Faciliteiten
| Materiaal ramenomlijstingen | Aluminium |
|---|---|
| Beglazing | Hoog efficient dubbel |
| Luiken | Nee |
| Primaire verwarming | Vloerverwarming |
| Warm water type | Geen verwarming |
Perceel
| Oppervlakte terras (m²) | 27 |
|---|
Uitrusting
| Meerdere eigenaars | Nee |
|---|---|
| Geschikt als kangoeroewoning | Nee |
| Geschikt voor rolstoelgebruikers | Nee |
| Geschikt voor praktijk | Nee |
| Volledig onderkelderd | Nee |
| Parking | Nee |
| Garage | Nee |
| Thuiskantoor | Nee |
| Kelder | Nee |
| Zolder | Nee |
| Opslagruimte | Nee |
| Tuin | Nee |
| Terras | Ja |
| Lift | Nee |
| Rioolaansluiting | Ja |
| Gasaansluiting | Nee |
| Wateraansluiting | Ja |
| Elektriciteitsaansluiting | Ja |
| TV aansluiting | Nee |
| Internetaansluiting | Nee |
| Zonnepanelen | Nee |
| Zonneboiler | Nee |
| Alarm | Nee |
| Zwembad | Nee |
| Jacuzzi | Nee |
| Toonzaal | Nee |
| Ventilatie | Nee |
Appartementsblok
| Lift | Nee |
|---|---|
| Intercom | Nee |
Een pand van
Nicole Janssen bvba
Nicole Janssen - de beste weg naar beter wonen.
Van plan om uw eigendom nu of later te verkopen? Begin dat niet zonder eerst bij vastgoedkantoor Nicole Janssen langs te gaan. Met plezier kom ik ter plaatse voor een schatting van uw eigendom. Dit is volledig gratis en verplicht u tot niets. Al vertel ik u er graag bij welke meerwaarde mijn vastgoedkantoor voor u betekent.
Bel 089 - 56 57 06, stuur een bericht of kom langs op ons kantoor in de Koning Albertlaan 6 in Maaseik (gratis parking voor de deur).
APP0652
Leer meer over vastgoed
01 March 2026
Wanneer heb ik een bouwvergunning of omgevingsvergunning nodig?
17 February 2026
Hoe breng ik een bod uit op een woning?
24 November 2025
Uitgezocht voor jouw gemeente: Hoeveel stijgt de waarde van je woning door een renovatie?
22 October 2025