Penthouse op de 2de verdieping
€ 299.000
Een pand van Nicole Janssen bvba
Favoriet
Jouw zoektocht
Jouw scoretabel voor dit pand
Aan het laden...
Jouw geplande bezichtigingen
Aan het laden...
Overzicht
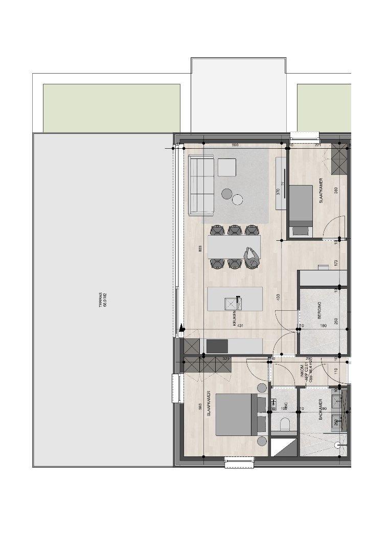
- 86.4 m² bewoonbaar
- 2 Slaapkamer(s)
- 1 Badkamer(s)
- 1 Toilet(ten)
Beschrijving
Woonerf Rijkspark bestaat in totaal uit 111 luxueuze appartementen verdeeld over 6 afzonderlijke appartementsgebouwen, welke in het centrum van Maasmechelen gelegen zijn.
Wonen in een exclusief woonpark waar u geniet van een centrale ligging in het hart van Maasmechelen met directe verbinding met openbaar vervoer.
=> Penthouse C2.1 (Novavest)
- Inkomhal
- Leefruimte
- Keuken
- Berging
- Apart toilet
- Twee slaapkamers
- Badkamer
- Terras van 42,50m²
=> High-end afwerking
- Luxueuze afwerking met exclusieve moodboards (zeer hoogwaardige afwerking)
- Prachtige keukens voorzien van hoge comforteisen: granieten werkblad, 6 toestellen van Whirlpool, AEG of gelijkwaardig
- Exclusieve vloeren: 60cm op 60cm indien gewenst gekleurd ingevoegd of exclusieve parketvloeren (zonder meerprijs)
- Gecertificeerde wandtegels van 25cm op 65cm (mooie ruime keuze)
- Voor de badkamer heeft u keuze uit vier exclusieve moodboards met mooie en volledige selectie van sanitair
- Het appartement wordt volledig geschilderd opgeleverd
=> Exclusieve duurzaamheid, E-peil E10
- Superzuinige Viessmann warmtepomp in combinatie met zonnepanelen
- Subliem leefcomfort d.m.v. vloerverwarming en vloerkoeling is super comfortabel in elke seizoen en beter comfort door minder warmteverlies en tocht
- Uitgebalanceerd ventilatiesysteem type D zorgt voor continu gezond binnenklimaat in het appartement
- Mogelijkheid extra voorwaarden bij eventuele banklening
=> Ruime ondergrondse parking
- Optioneel individuele laadpunten voor elektrische wagens/fietsen
- Parkeerplaatsen (verplicht 1 parking per appartement bij te kopen)
- Keuze uit ruime bergingen (verplicht 1 berging per appartement bij te kopen)
- Geïntegreerde ruime fietsenstallingen (verplicht min. 2 per appartement bij te kopen)
- Deelwagen beschikbaar
Wonen in een exclusief woonpark waar u geniet van een centrale ligging in het hart van Maasmechelen met directe verbinding met openbaar vervoer.
=> Penthouse C2.1 (Novavest)
- Inkomhal
- Leefruimte
- Keuken
- Berging
- Apart toilet
- Twee slaapkamers
- Badkamer
- Terras van 42,50m²
=> High-end afwerking
- Luxueuze afwerking met exclusieve moodboards (zeer hoogwaardige afwerking)
- Prachtige keukens voorzien van hoge comforteisen: granieten werkblad, 6 toestellen van Whirlpool, AEG of gelijkwaardig
- Exclusieve vloeren: 60cm op 60cm indien gewenst gekleurd ingevoegd of exclusieve parketvloeren (zonder meerprijs)
- Gecertificeerde wandtegels van 25cm op 65cm (mooie ruime keuze)
- Voor de badkamer heeft u keuze uit vier exclusieve moodboards met mooie en volledige selectie van sanitair
- Het appartement wordt volledig geschilderd opgeleverd
=> Exclusieve duurzaamheid, E-peil E10
- Superzuinige Viessmann warmtepomp in combinatie met zonnepanelen
- Subliem leefcomfort d.m.v. vloerverwarming en vloerkoeling is super comfortabel in elke seizoen en beter comfort door minder warmteverlies en tocht
- Uitgebalanceerd ventilatiesysteem type D zorgt voor continu gezond binnenklimaat in het appartement
- Mogelijkheid extra voorwaarden bij eventuele banklening
=> Ruime ondergrondse parking
- Optioneel individuele laadpunten voor elektrische wagens/fietsen
- Parkeerplaatsen (verplicht 1 parking per appartement bij te kopen)
- Keuze uit ruime bergingen (verplicht 1 berging per appartement bij te kopen)
- Geïntegreerde ruime fietsenstallingen (verplicht min. 2 per appartement bij te kopen)
- Deelwagen beschikbaar
Energie
- Verwarming: Geen
- Beglazing: Onbekend
Op de kaart

Financieel
| Prijs | |
|---|---|
| Kadastraal inkomen (niet geïndexeerd) | € 0 |
| Kadastraal inkomen (geïndexeerd) | € 0 |
Bijkomende info
Gebouw
| Bouwjaar | 2024 |
|---|---|
| Is beschermd | Nee |
| Bewoonbaar (m²) | 86.4 |
| Badkamers | 1 |
| Slaapkamers | 2 |
| Toiletten | 1 |
Ruimtes
| Terras | 42.5 m² |
|---|
Faciliteiten
| Luiken | Nee |
|---|---|
| Primair verwarmingstype | Geen verwarming |
| Brandstof primaire verwarming | Geen |
| Warm water type | Geen verwarming |
Perceel
| Overstromingsgevoelig | Geen |
|---|---|
| P-score | B |
| G-score | B |
| Voorkeurrecht | Nee |
| Oppervlakte terras (m²) | 42 |
Vergunning
| Vergunning | Vergunning beschikbaar |
|---|---|
| Verkavelingsvergunning | Geen beschikbaar |
| Bouwovertreding dagvaardiging | Geen |
Uitrusting
| Meerdere eigenaars | Nee |
|---|---|
| Geschikt als kangoeroewoning | Nee |
| Geschikt voor rolstoelgebruikers | Nee |
| Geschikt voor praktijk | Nee |
| Volledig onderkelderd | Nee |
| Parking | Nee |
| Garage | Nee |
| Thuiskantoor | Nee |
| Kelder | Nee |
| Zolder | Nee |
| Opslagruimte | Ja |
| Tuin | Nee |
| Terras | Ja |
| Lift | Ja |
| Rioolaansluiting | Ja |
| Gasaansluiting | Nee |
| Wateraansluiting | Ja |
| Elektriciteitsaansluiting | Ja |
| TV aansluiting | Nee |
| Internetaansluiting | Nee |
| Zonnepanelen | Ja |
| Zonneboiler | Nee |
| Alarm | Nee |
| Zwembad | Nee |
| Jacuzzi | Nee |
| Toonzaal | Nee |
| Ventilatie | Nee |
Appartementsblok
| Lift | Ja |
|---|---|
| Intercom | Nee |
Een pand van
Nicole Janssen bvba
Nicole Janssen - de beste weg naar beter wonen.
Van plan om uw eigendom nu of later te verkopen? Begin dat niet zonder eerst bij vastgoedkantoor Nicole Janssen langs te gaan. Met plezier kom ik ter plaatse voor een schatting van uw eigendom. Dit is volledig gratis en verplicht u tot niets. Al vertel ik u er graag bij welke meerwaarde mijn vastgoedkantoor voor u betekent.
Bel 089 - 56 57 06, stuur een bericht of kom langs op ons kantoor in de Koning Albertlaan 6 in Maaseik (gratis parking voor de deur).
APP0848
Leer meer over vastgoed
24 April 2026
Duurzaam gelegen woning? Check je Mobiscore
23 March 2026
Op Spotto zoeken als een pro: 10 slimme tips
21 March 2026
Hoeveel kan ik lenen om een huis te kopen?
01 March 2026