Te renoveren woning op een doodlopende straat
โฌ 199.000
Een pand van Jemar.be
Overzicht
- 135 mยฒ bewoonbaar
- 509 mยฒ grond
- 3 Slaapkamer(s)
- 1 Badkamer(s)
- 1 Tuin
Beschrijving
Betaalbare renovatiewoning in het hart van Leut. Rustig gelegen met tal van mogelijkheden!
Bent u op zoek naar een renovatieproject op een toplocatie? Deze halfopen bebouwing in de rustige Steenakkerstraat 60, Leut, biedt een unieke kans om uw droomwoning te creรซren! Gelegen in een doodlopende straat, pal aan een prachtige fiets- en wandelroute langs de Maas, is deze woning perfect voor liefhebbers van rust en natuur.
Kenmerken van de woning:
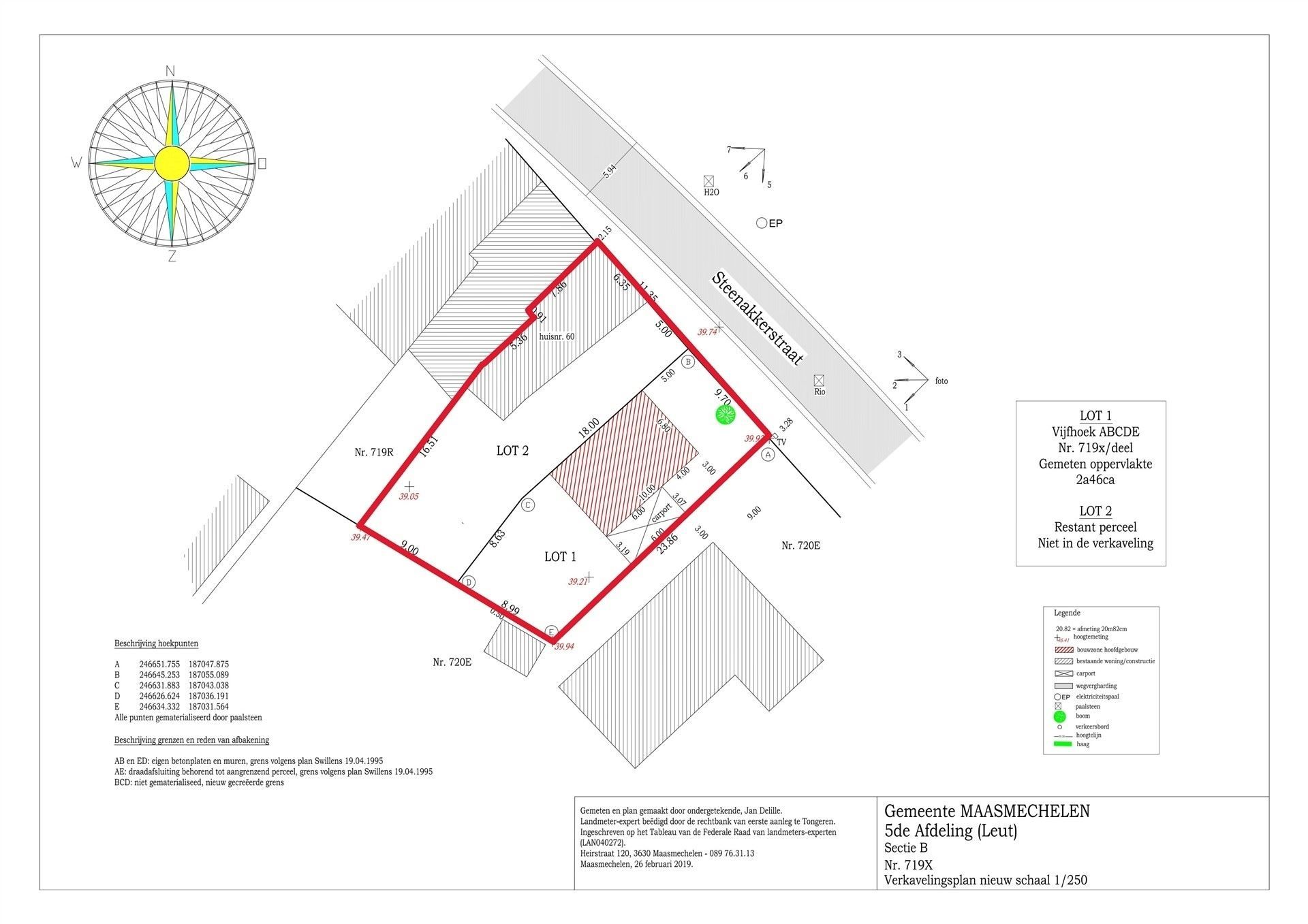
- Perceel: 5a 09ca
- Woonoppervlakte: ca.135 mยฒ
- Indeling:
- Inkomhal met toegang tot de leefruimte en vaste trap naar de verdieping
- Ruime leefruimte in twee delen, aansluitend op de keuken
- Keuken met plaats voor eettafel en toegang tot het naastliggende terras/ inrit
- Verdieping: 3 slaapkamers (waarvan 1 met doorgang naar een andere kamer) en badkamer
- Extra's:
Kleine kelder
Dak vernieuwd in 2015
Isolatie aanwezig op zoldervloer
Verwarming op aardgas (vernieuwd ca. 5 jaar geleden)
PVC ramen met dubbele beglazing
Opmerking: De woning heeft een totaalrenovatie nodig. De elektrische keuring is niet conform, er is geen toilet aanwezig en de tussenvloeren zijn in hout.
Een uitstekende kans voor renovatie & investeerders!
Interesse? Contacteer Iris via Iris@jemar.be of 0483 11 08 75 voor meer info of een bezichtiging!
โDit pand kan onderhevig zijn aan de renovatieverplichting die door de Vlaamse overheid wordt opgelegd voor residentiรซle gebouwen. Consulteer voor meer informatie de website van het Vlaams Energie- en Klimaatagentschap via https://www.energiesparen.be/renovatieverplichting-residenti%C3%ABle-gebouwen-2023โ
Energie
![]() |
- EPC Certificaat: 20250404-0003570686-res-1
- Energieverbruik: 447 kWh/mยฒ/jaar
- E-peil: E0
- Verwarming: Gas
- Beglazing: Standaard dubbel
Extra budget nodig voor je renovatie?

Op de kaart

Financieel
Prijs | |
---|---|
Kadastraal inkomen (niet geรฏndexeerd) | โฌ 456 |
Kadastraal inkomen (geรฏndexeerd) | โฌ 0 |
Berekening kosten
Je aankoopkosten? Die heb je snel berekent via de knop hieronder.
Bijkomende info
Gebouw
Bouwjaar | 1954 |
---|---|
Staat | Op te frissen |
Bouwcertificaat | Nee |
Bewoonbaar (mยฒ) | 135 |
Verdieping | 0 |
Badkamers | 1 |
Slaapkamers | 3 |
Verdiepingen | 0 |
Garages | 0 |
Parkeerplaatsen | 0 |
Doucheruimtes | 0 |
Toiletten | 0 |
Faciliteiten
Materiaal ramenomlijstingen | PVC |
---|---|
Beglazing | Standaard dubbel |
Brandstof primaire verwarming | Gas |
Elektrisch keuringsattest | Nee |
Perceel
Overstromingsgevoelig | Geen |
---|---|
P-score | A |
G-score | A |
Voorkeurrecht | Nee |
Totale oppervlakte (mยฒ) | 509 |
Bebouwde oppervlakte (mยฒ) | 0 |
Tuin oppervlakte (mยฒ) | 0 |
Oppervlakte terras (mยฒ) | 0 |
Oriรซntatie tuin | Zuidwest |
Vergunning
Vergunning | Geen beschikbaar |
---|---|
Verkavelingsvergunning | Vergunning beschikbaar |
Type gebied | Stedelijk |
Uitrusting
Investeringspand | Nee |
---|---|
Geschikt voor praktijk | Nee |
Parking | Nee |
Garage | Nee |
Thuiskantoor | Nee |
Kelder | Ja |
Zolder | Ja |
Tuin | Ja |
Terras | Nee |
Lift | Nee |
Rioolaansluiting | Nee |
Gasaansluiting | Nee |
Wateraansluiting | Nee |
Elektriciteitsaansluiting | Nee |
TV aansluiting | Nee |
Internetaansluiting | Nee |
Telefoonaansluiting | Nee |