Open bebouwing met gegoten kelder
โฌ 329.000
Een pand van Jemar.be
Overzicht
- 235 mยฒ bewoonbaar
- 1307 mยฒ grond
Beschrijving
Bouwgrond voor open bebouwing 13a07ca te Maasmechelen
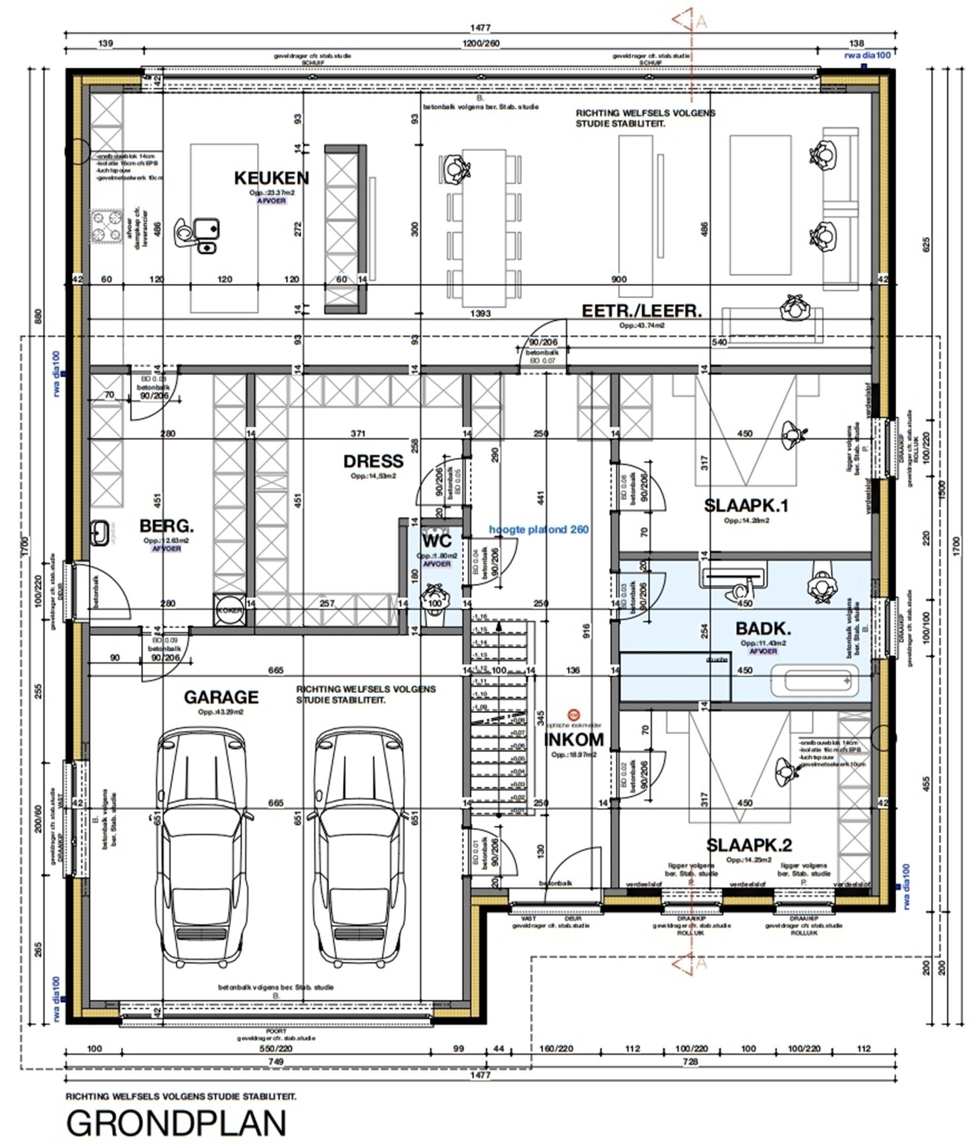
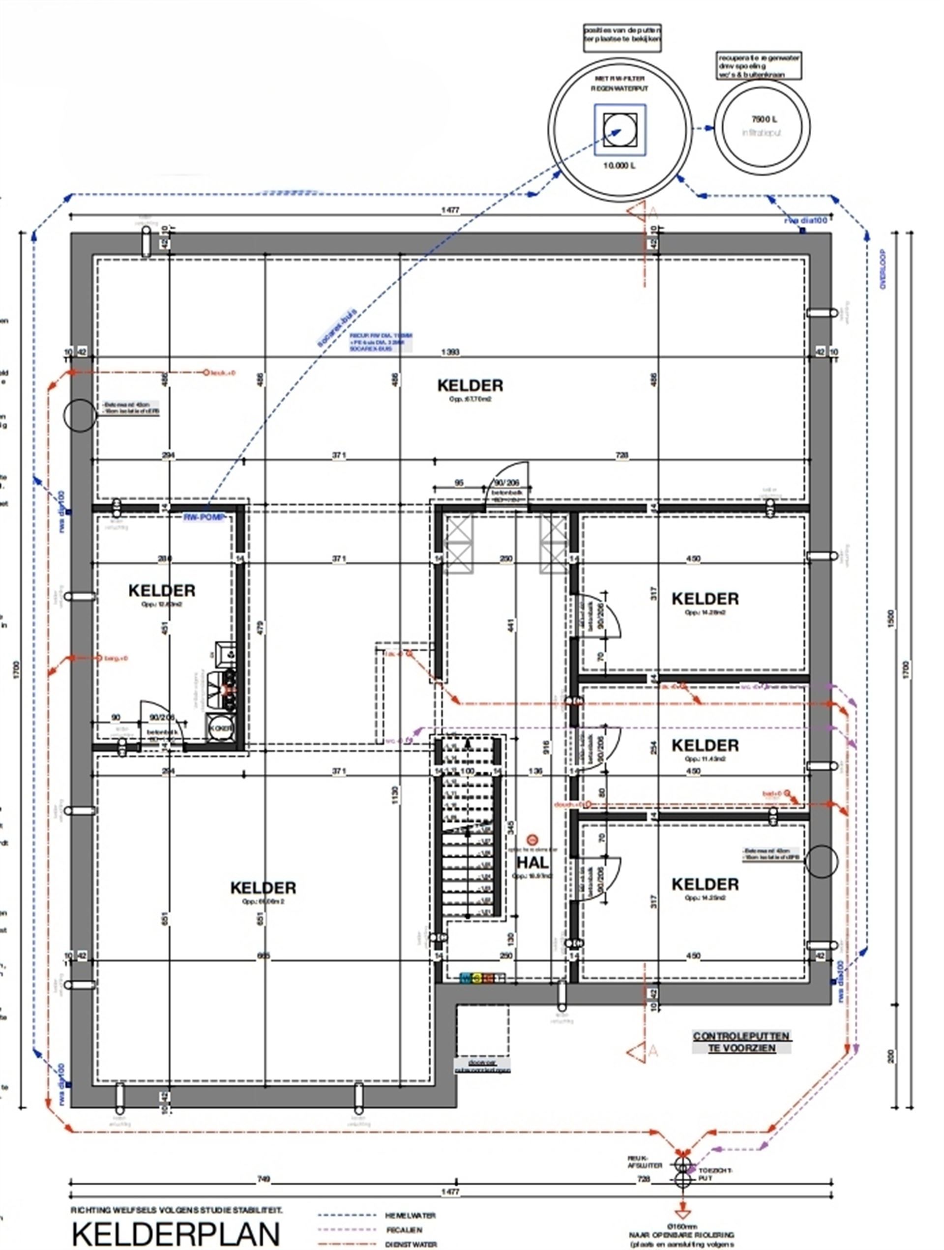
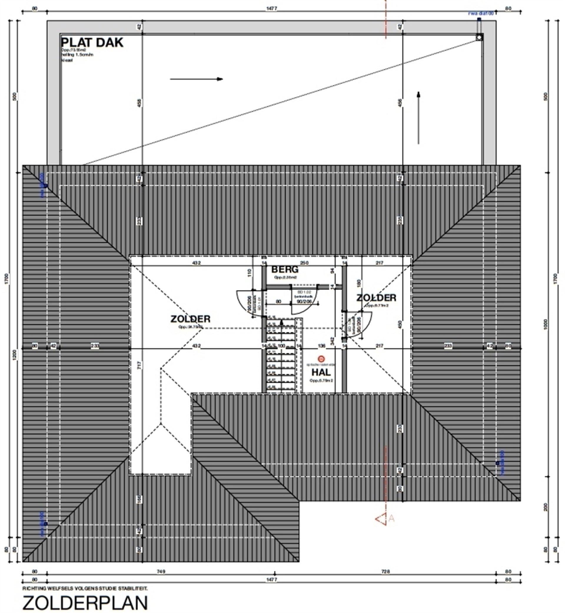
Op dit ruime perceel van 13a07ca, gelegen in een rustige, groene omgeving, kan u een open bebouwing realiseren. De kelder is reeds gebouwd en de vergunning voor een eengezinswoning met bijgebouw werd afgeleverd op 21/04/2023. De plannen zijn beschikbaar voor inzage.
Troeven:
- Ruim perceel in groene, rustige buurt
- Kelder reeds aanwezig
- Vergunning woning + bijgebouw goedgekeurd
- Plannen beschikbaar
Bouwvoorschriften:
- Bestemming: woongebied met open bebouwing
- Bouwdiepte: max. 17 m (gelijkvloers), 12 m (verdieping)
- Bouwhoogte: max. 2 bouwlagen + dak
- Dakvorm: zadeldak (helling 30ยฐ45ยฐ)
- Afstand zijkanten: min. 3 m
- Bijgebouw: max. 40 mยฒ, achter de bouwlijn, min. 1 m van perceelsgrens
- Omheining: max. 1 m vooraan, 2 m aan zijkanten/achteraan
Stedenbouwkundige voorwaarden (vergunning 21/04/2023):
- Enkel aangeduide verharding toegelaten; overige delen blijven tuinzone
- Boom in voortuin moet behouden blijven
- Terreinaanpassingen enkel aan woning, zonder hinder voor buren
- Hemelwater op eigen terrein infiltreren of afvoeren
- Inrit max. 3 m breed aan rooilijn
- Regenwaterput verplicht
- Voor aansluiting riolering/hemelwater: contacteer Fluvius (gescheiden stelsel).
Voor verdere informatie of een bezichtiging, neem contact op met Iris via iris@jemar.be of bel 0483 11 08 75.
Energie
- E-peil: E0
- Beglazing: Onbekend
Op de kaart

Downloads
Financieel
| Prijs | |
|---|---|
| Kadastraal inkomen (niet geรฏndexeerd) | โฌ 7 |
| Kadastraal inkomen (geรฏndexeerd) | โฌ 0 |
Berekening kosten
Je aankoopkosten? Die heb je snel berekent via de knop hieronder.
Bijkomende info
Gebouw
| Bouwcertificaat | Nee |
|---|
Perceel
| Diepte (m) | 71 |
|---|---|
| Breedte (m) | 25 |
| Overstromingsgevoelig | Geen |
| P-score | B |
| Voorkeurrecht | Nee |
| Totale oppervlakte (mยฒ) | 1307 |
Vergunning
| Vergunning | Aanvraag ingediend |
|---|---|
| Verkavelingsvergunning | Aanvraag ingediend |
Uitrusting
| Investeringspand | Nee |
|---|---|
| Rioolaansluiting | Nee |
| Gasaansluiting | Nee |
| Wateraansluiting | Nee |
| Elektriciteitsaansluiting | Nee |
| TV aansluiting | Nee |
| Internetaansluiting | Nee |
| Telefoonaansluiting | Nee |
Een pand van
Jemar.be
Jemar, al 30 jaar uw vastgoedkantoren in Limburg.
Hier bij Jemar, blijft een ๐ฝ๐ฒ๐ฟ๐๐ผ๐ผ๐ป๐น๐ถ๐ท๐ธ๐ฒ ๐ฎ๐ฎ๐ป๐ฝ๐ฎ๐ธ onze prioriteit. We verzamelden intussen een stevige brok expertise. Je kan bij ons dus met elke vraag terecht.
We begeleiden je van A tot Z bij de ๐๐ฒ๐ฟ๐ธ๐ผ๐ผ๐ฝ ๐ผ๐ณ ๐๐ฒ๐ฟ๐ต๐๐ฟ๐ถ๐ป๐ด van je woning, helpen je in de zoektocht naar je ideale woonst, staan je met raad en daad bij met ๐ฐ๐ผ๐ฟ๐ฟ๐ฒ๐ฐ๐ ๐๐ฒ๐ฟ๐๐ฒ๐ธ๐ฒ๐ฟ๐ถ๐ป๐ด๐๐ฎ๐ฑ๐๐ถ๐ฒ๐ en onze ๐ถ๐ป ๐ต๐ผ๐๐๐ฒ ๐ธ๐ฟ๐ฒ๐ฑ๐ถ๐ฒ๐๐๐ฝ๐ฒ๐ฐ๐ถ๐ฎ๐น๐ถ๐๐๐ฒ zoekt naar een oplossing op maat voor de financiering van je aankoop, zelfs als je niet via ons aankoopt.
Ons team van meer dan 20 medewerkers staat met veel enthousiasme voor je klaar.
HEIRSTRAAT 109 MAASMECHELEN
Leer meer over vastgoed
24 November 2025
Uitgezocht voor jouw gemeente: Hoeveel stijgt de waarde van je woning door een renovatie?
22 October 2025
Hoeveel kan ik lenen om een huis te kopen?
11 June 2025
Huis kopen met bouwovertreding? Dit moet je weten
11 May 2025