Nieuw
Open bebouwing met gegoten kelder
€ 329.000
Een pand van Jemar.be
Overzicht
- 235 m² bewoonbaar
- 1307 m² grond
Beschrijving
Bouwgrond voor open bebouwing 13a07ca te Vucht
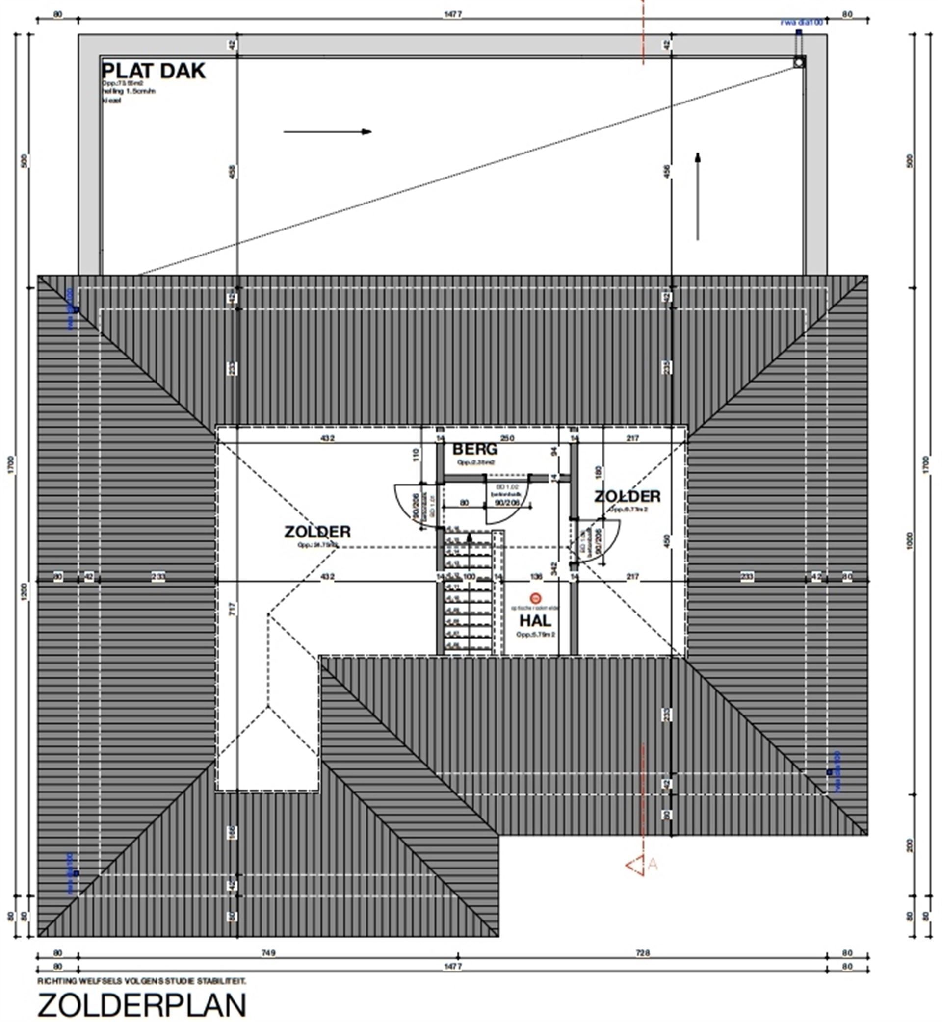
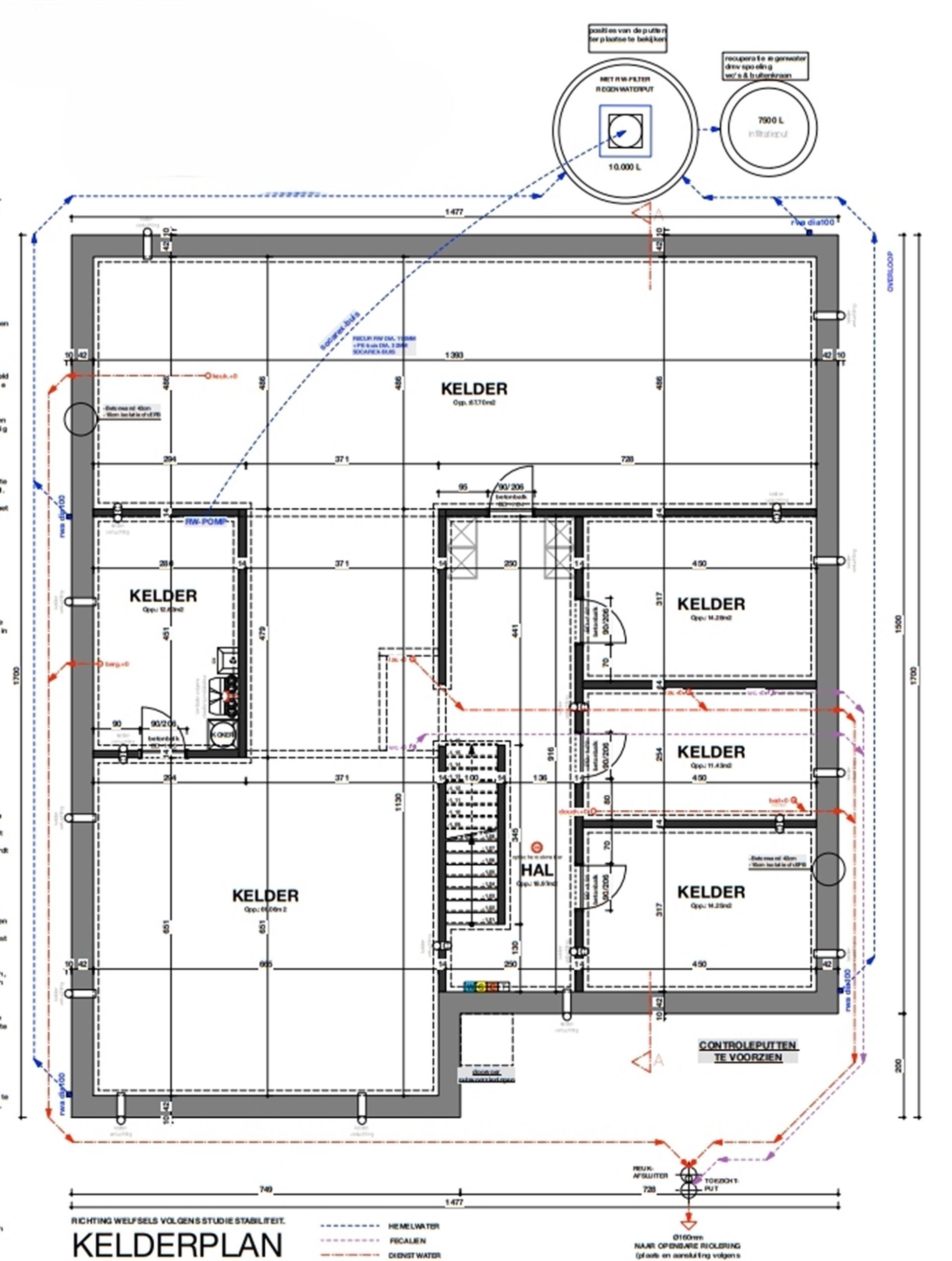
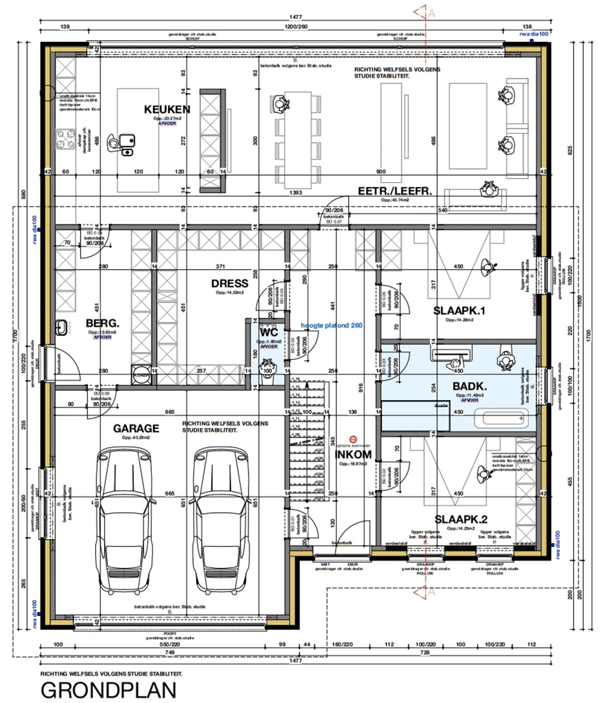
Op dit ruime perceel van 13a07ca, gelegen in een rustige, groene omgeving, kan u een open bebouwing realiseren. De kelder is reeds gebouwd en de vergunning voor een eengezinswoning met bijgebouw werd afgeleverd op 21/04/2023. De plannen zijn beschikbaar voor inzage.
Troeven:
- Ruim perceel in groene, rustige buurt
- Kelder reeds aanwezig
- Vergunning woning + bijgebouw goedgekeurd
- Plannen beschikbaar
Bouwvoorschriften:
- Bestemming: woongebied met open bebouwing
- Bouwdiepte: max. 17 m (gelijkvloers), 12 m (verdieping)
- Bouwhoogte: max. 2 bouwlagen + dak
- Dakvorm: zadeldak (helling 30°45°)
- Afstand zijkanten: min. 3 m
- Bijgebouw: max. 40 m², achter de bouwlijn, min. 1 m van perceelsgrens
- Omheining: max. 1 m vooraan, 2 m aan zijkanten/achteraan
Stedenbouwkundige voorwaarden (vergunning 21/04/2023):
- Enkel aangeduide verharding toegelaten; overige delen blijven tuinzone
- Boom in voortuin moet behouden blijven
- Terreinaanpassingen enkel aan woning, zonder hinder voor buren
- Hemelwater op eigen terrein infiltreren of afvoeren
- Inrit max. 3 m breed aan rooilijn
- Regenwaterput verplicht
- Voor aansluiting riolering/hemelwater: contacteer Fluvius (gescheiden stelsel).
Voor verdere informatie of een bezichtiging, neem contact op met Iris via iris@jemar.be of bel 0483 11 08 75.
Energie
- E-peil: E0
- Beglazing: Onbekend
Op de kaart

Financieel
Prijs | |
---|---|
Kadastraal inkomen (niet geïndexeerd) | € 7 |
Kadastraal inkomen (geïndexeerd) | € 0 |
Berekening kosten
Je aankoopkosten? Die heb je snel berekent via de knop hieronder.
Bijkomende info
Gebouw
Bouwcertificaat | Nee |
---|
Perceel
Diepte (m) | 71 |
---|---|
Breedte (m) | 25 |
Overstromingsgevoelig | Geen |
P-score | B |
Voorkeurrecht | Nee |
Totale oppervlakte (m²) | 1307 |
Vergunning
Vergunning | Aanvraag ingediend |
---|---|
Verkavelingsvergunning | Aanvraag ingediend |
Uitrusting
Investeringspand | Nee |
---|---|
Rioolaansluiting | Nee |
Gasaansluiting | Nee |
Wateraansluiting | Nee |
Elektriciteitsaansluiting | Nee |
TV aansluiting | Nee |
Internetaansluiting | Nee |
Telefoonaansluiting | Nee |
Een pand van
Jemar.be
Jemar, al 30 jaar uw vastgoedkantoren in Limburg.
Hier bij Jemar, blijft een 𝗽𝗲𝗿𝘀𝗼𝗼𝗻𝗹𝗶𝗷𝗸𝗲 𝗮𝗮𝗻𝗽𝗮𝗸 onze prioriteit. We verzamelden intussen een stevige brok expertise. Je kan bij ons dus met elke vraag terecht.
We begeleiden je van A tot Z bij de 𝘃𝗲𝗿𝗸𝗼𝗼𝗽 𝗼𝗳 𝘃𝗲𝗿𝗵𝘂𝗿𝗶𝗻𝗴 van je woning, helpen je in de zoektocht naar je ideale woonst, staan je met raad en daad bij met 𝗰𝗼𝗿𝗿𝗲𝗰𝘁 𝘃𝗲𝗿𝘇𝗲𝗸𝗲𝗿𝗶𝗻𝗴𝘀𝗮𝗱𝘃𝗶𝗲𝘀 en onze 𝗶𝗻 𝗵𝗼𝘂𝘀𝗲 𝗸𝗿𝗲𝗱𝗶𝗲𝘁𝘀𝗽𝗲𝗰𝗶𝗮𝗹𝗶𝘀𝘁𝗲 zoekt naar een oplossing op maat voor de financiering van je aankoop, zelfs als je niet via ons aankoopt.
Ons team van meer dan 20 medewerkers staat met veel enthousiasme voor je klaar.
HEIRSTRAAT 109 MAASMECHELEN
Leer meer over vastgoed
11 June 2025
Huis kopen met bouwovertreding? Dit moet je weten
11 May 2025
Renoveren? Vraag je Mijn VerbouwPremie aan
22 April 2025
Je allereerste renovatieproject selecteren én budgetteren: met de praktische hulp van Spotto
17 February 2025