Laatste van 4 moderne nieuwbouwwoningen met 3 slaapkamers en een dubbele carport, residentieel en landelijk gelegen te Maasmechelen-Boorsem
€ 387.000
Een pand van Eurinvesco
Favoriet
Jouw zoektocht
Jouw scoretabel voor dit pand
Aan het laden...
Jouw geplande bezichtigingen
Aan het laden...
Overzicht
- 162 m² bewoonbaar
- 582 m² grond
- 3 Slaapkamer(s)
- 1 Badkamer(s)
- 2 Toilet(ten)
Beschrijving
Te koop: Laatste van 4 moderne, energiezuinige nieuwbouwwoningen met warmtepomp, zonnepanelen en een dubbele carport, residentieel en landelijk gelegen te Maasmechelen-Boorsem.
Deze woning wordt instapklaar opgeleverd, inclusief vloeren, binnendeuren, keuken en sanitair (conform lastenboek). Afwerking nog te bepalen door koper, woningen zijn momenteel casco.
Mogelijkheid om een garage of tuinberging te plaatsen.
Energiezuinig: EPC-label A (E-peil E14), vloerverwarming met warmtepomp, zonnepanelen.
LOT 1 - VERKOCHT
LOT 2 - VERKOCHT
LOT 3 - TE KOOP: 5a 48ca
LOT 4 - VERKOCHT
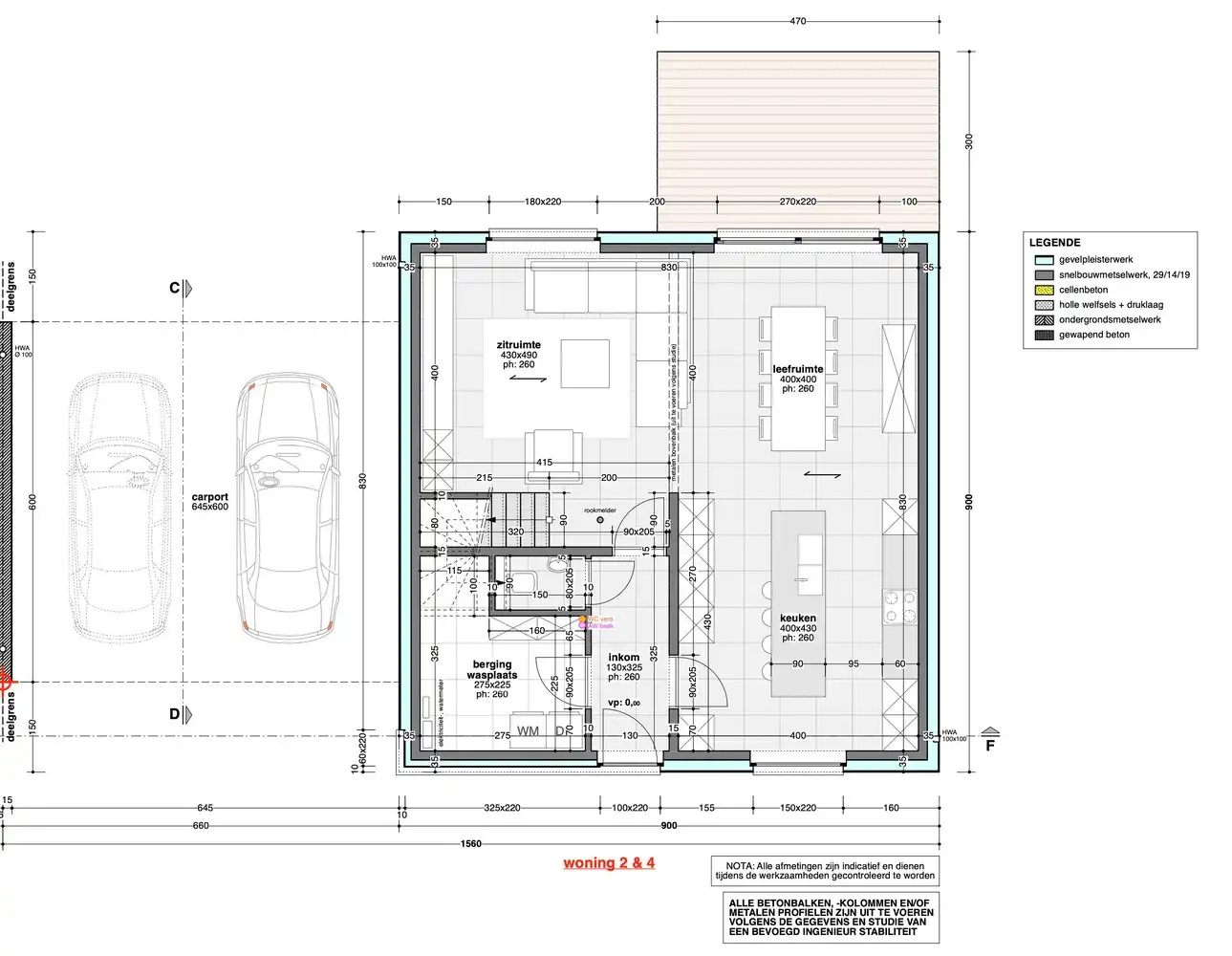
INDELING :
Begane grond 81 m² (vloerverwarming) :
- Inkomhal met gastentoilet (hangtoilet + wasbakje)
- Ruime L-vormige living (50 m²) met schuifraam naar de achtertuin
- Luxe eilandkeuken voorzien van keramische kookplaat, dampkap, oven, vaatwasser, spoelbak en koelkast
- Berging (2,75 x 2,25) met wasmachine-aansluiting en meterkast
- Carport voor 2 wagens
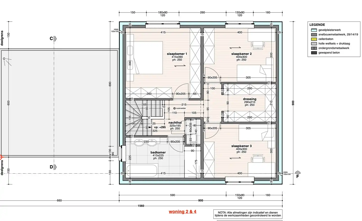
Verdieping 81 m² :
- Luxe badkamer voorzien van ligbad, douche, meubel met 2 wastafels en spiegel
- Separaat toilet (hangtoilet + wasbakje)
- 3 Slaapkamers (16 m², 12 m² en 12 m²)
- Dressingruimte
Oplevering conform lastenboek (zie downloads) :
- binnenmuren behangklaar gepleisterd
- plafonds voorzien van spuitpleister
- inclusief vloeren, keukenopstelling, badkamer (ligbad, douche en dubbele wastafel) en 2 wc's naar keuze, conform budget voorzien in lastenboek
- houten trap
Extra's : warmtepomp, vloerverwarming (begane grond en badkamer), regenwaterput 5.000 ltr, pvc kozijnen met isolerende beglazing, ventilatiesysteem D, 2460Wp zonnepanelen
Prijs : € 387.000,- excl onderstaande kosten, pas te betalen bij akte
Bijkomende kosten : eventueel meerwerken, tuinaanleg, notariskosten, registratierecht à 12% op grondprijs (€ 100.000,-), btw à 21% op constructiewaarde (€ 287.000,-), aansluitingskosten riolering/water/elektra, kosten opmeting en verkaveling
Oplevering : 4 à 5 maanden na ondertekening verkoopovereenkomst
Deze woning wordt instapklaar opgeleverd, inclusief vloeren, binnendeuren, keuken en sanitair (conform lastenboek). Afwerking nog te bepalen door koper, woningen zijn momenteel casco.
Mogelijkheid om een garage of tuinberging te plaatsen.
Energiezuinig: EPC-label A (E-peil E14), vloerverwarming met warmtepomp, zonnepanelen.
LOT 1 - VERKOCHT
LOT 2 - VERKOCHT
LOT 3 - TE KOOP: 5a 48ca
LOT 4 - VERKOCHT
INDELING :
Begane grond 81 m² (vloerverwarming) :
- Inkomhal met gastentoilet (hangtoilet + wasbakje)
- Ruime L-vormige living (50 m²) met schuifraam naar de achtertuin
- Luxe eilandkeuken voorzien van keramische kookplaat, dampkap, oven, vaatwasser, spoelbak en koelkast
- Berging (2,75 x 2,25) met wasmachine-aansluiting en meterkast
- Carport voor 2 wagens
Verdieping 81 m² :
- Luxe badkamer voorzien van ligbad, douche, meubel met 2 wastafels en spiegel
- Separaat toilet (hangtoilet + wasbakje)
- 3 Slaapkamers (16 m², 12 m² en 12 m²)
- Dressingruimte
Oplevering conform lastenboek (zie downloads) :
- binnenmuren behangklaar gepleisterd
- plafonds voorzien van spuitpleister
- inclusief vloeren, keukenopstelling, badkamer (ligbad, douche en dubbele wastafel) en 2 wc's naar keuze, conform budget voorzien in lastenboek
- houten trap
Extra's : warmtepomp, vloerverwarming (begane grond en badkamer), regenwaterput 5.000 ltr, pvc kozijnen met isolerende beglazing, ventilatiesysteem D, 2460Wp zonnepanelen
Prijs : € 387.000,- excl onderstaande kosten, pas te betalen bij akte
Bijkomende kosten : eventueel meerwerken, tuinaanleg, notariskosten, registratierecht à 12% op grondprijs (€ 100.000,-), btw à 21% op constructiewaarde (€ 287.000,-), aansluitingskosten riolering/water/elektra, kosten opmeting en verkaveling
Oplevering : 4 à 5 maanden na ondertekening verkoopovereenkomst
Energie
![]() |
- Energieverbruik: 14 kWh/m²/jaar
- E-peil: E0
- Beglazing: Onbekend
Op de kaart

Financieel
| Prijs |
|---|
Berekening kosten
Je aankoopkosten? Die heb je snel berekend via de knop hieronder.
Bijkomende info
Gebouw
| Bouwjaar | 2024 |
|---|---|
| Staat | Nieuw |
| Bewoonbaar (m²) | 162 |
| Badkamers | 1 |
| Slaapkamers | 3 |
| Verdiepingen | 0 |
| Garages | 0 |
| Parkeerplaatsen | 0 |
| Toiletten | 2 |
Faciliteiten
| Septische tank | Nee |
|---|
Perceel
| Overstromingsgevoelig | Geen |
|---|---|
| P-score | B |
| G-score | A |
| Totale oppervlakte (m²) | 582 |
| Bebouwde oppervlakte (m²) | 0 |
Vergunning
| Verkavelingsvergunning | Geen beschikbaar |
|---|
Uitrusting
| Investeringspand | Nee |
|---|---|
| Parking | Nee |
| Garage | Nee |
| Opslagruimte | Ja |
| Lift | Nee |
| Rioolaansluiting | Nee |
| Gasaansluiting | Nee |
| Wateraansluiting | Nee |
| Elektriciteitsaansluiting | Nee |
| Internetaansluiting | Nee |
| Telefoonaansluiting | Nee |
| Zonnepanelen | Nee |
| Zonneboiler | Nee |
| Alarm | Nee |
| Videofoon | Nee |
| Grondwaterput | Ja |
Een pand van
Eurinvesco
Eurinvesco is een bekende naam in regio Lanaken en omstreken. Door onze jarenlange ervaring en kennis beschikken we over een omvangrijk netwerk en dit aan beide kanten van de Maas.
Selling the good life
Wonen en geluk, het is zo nauw met elkaar verbonden. Wij verkopen niet zomaar een huis, maar een 'thuis'. Een bijzondere plek met een ziel, waar lief en leed gedeeld zijn, herinneringen gecreëerd zijn, waar mensen zich thuis voelen en genieten van het leven. Wat je voelt en denkt, verliezen we daarbij nooit uit het oog.
Het verkopen van een woning vergt een aantal wezenlijke competenties. Buiten het emotioneel aanvoelen van een klant, bestaat er ook de rationele kant aan de verkoop van een huis. Het proces van verkoopbegeleiding is er een van voelen en denken. Een heldere communicatie met onze klanten is essentieel in onze branche. We doen er alles aan om iedereen persoonlijk en goed te bedienen. Ons hart ligt bij het vinden van de juiste match tussen hetgeen wij aanbieden en datgene waarnaar de klant op zoek is. Selling the good life is de essentie van ons vak.
Bampstraat 43
Leer meer over vastgoed
23 March 2026
Op Spotto zoeken als een pro: 10 slimme tips
21 March 2026
Hoeveel kan ik lenen om een huis te kopen?
01 March 2026
Wanneer heb ik een bouwvergunning of omgevingsvergunning nodig?
17 February 2026
