Grond te koop
€ 125.000
Hagendorenstraat - 3640 Kinrooi
Een pand van N78 Vastgoed
Favoriet
Jouw zoektocht
Jouw scoretabel voor dit pand
Aan het laden...
Jouw geplande bezichtigingen
Aan het laden...
Overzicht
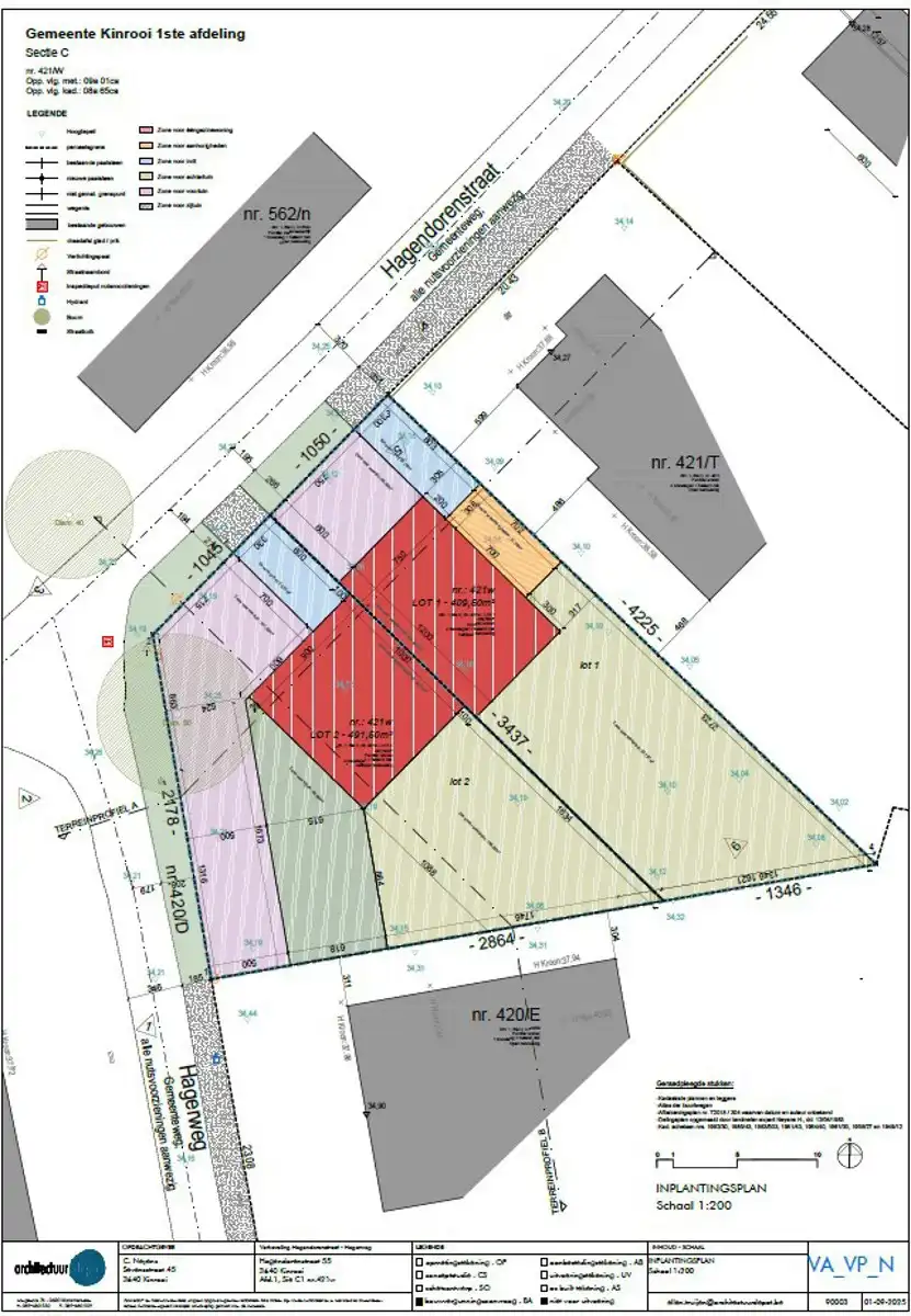
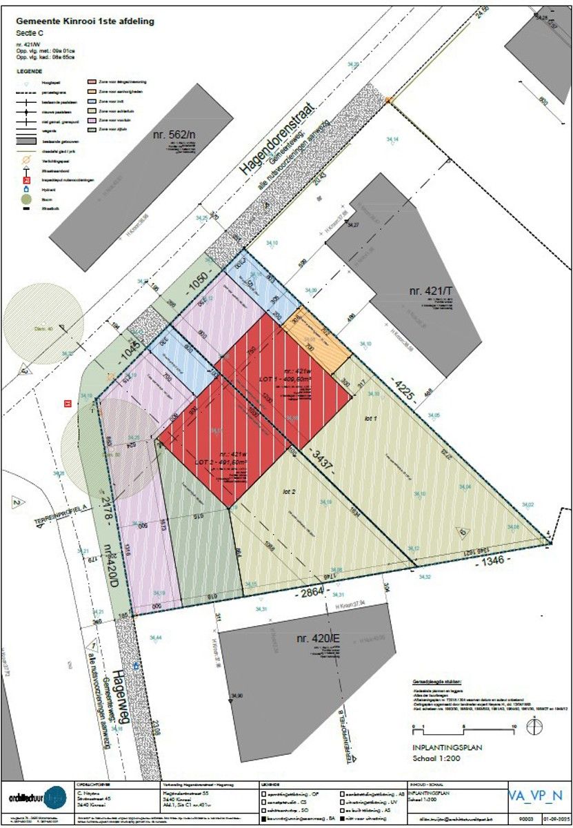
- 491 m² grond
Beschrijving
BOUWGROND VOOR HALFOPEN BEBOUWING (LOT 2) OP EEN PERCEEL VAN 4A91CA TE KINROOI.
TROEVEN
- Gelegen in een rustige omgeving nabij het centrum van Kinrooi.
- Mogelijkheid om een hedendaagse, karaktervolle woning met tuin te bouwen.
- Bebouwing: 9m breedte.
VERKAVELING
- Verkavelingsvergunning in aanvraag/ procedure nog lopende: verkoop onder voorbehoud van het bekomen van deze verkavelingsvergunning.
- Verkavelingsplan op aanvraag.
RENDER
- De afgebeelde render is slechts indicatief en moet zeker niet als bindend worden beschouwd!
EXTRA INFO
- Voor meer info kunt u best een afspraak maken op ons kantoor:+32 (0)89 86 18 88 of info@N78vastgoed.be.
Bekijkt u deze advertentie via een aanverwante vastgoedsite, surf dan zeker naar onze website www.N78vastgoed.be voor een uitgebreide beschrijving en foto's. Meer info: +32 (0)89 86 18 88 of info@N78vastgoed.be.
TROEVEN
- Gelegen in een rustige omgeving nabij het centrum van Kinrooi.
- Mogelijkheid om een hedendaagse, karaktervolle woning met tuin te bouwen.
- Bebouwing: 9m breedte.
VERKAVELING
- Verkavelingsvergunning in aanvraag/ procedure nog lopende: verkoop onder voorbehoud van het bekomen van deze verkavelingsvergunning.
- Verkavelingsplan op aanvraag.
RENDER
- De afgebeelde render is slechts indicatief en moet zeker niet als bindend worden beschouwd!
EXTRA INFO
- Voor meer info kunt u best een afspraak maken op ons kantoor:+32 (0)89 86 18 88 of info@N78vastgoed.be.
Bekijkt u deze advertentie via een aanverwante vastgoedsite, surf dan zeker naar onze website www.N78vastgoed.be voor een uitgebreide beschrijving en foto's. Meer info: +32 (0)89 86 18 88 of info@N78vastgoed.be.
Energie
Financieel
| Prijs | |
|---|---|
| Kadastraal inkomen (niet geïndexeerd) | € 2 |
Berekening kosten
Je aankoopkosten? Die heb je snel berekend via de knop hieronder.
Bijkomende info
Perceel
| P-score | A |
|---|---|
| Voorkeurrecht | Nee |
| Totale oppervlakte (m²) | 491 |
Vergunning
| Vergunning | Geen beschikbaar |
|---|---|
| Verkavelingsvergunning | Geen beschikbaar |
| Bouwovertreding | Geen |
| Bouwovertreding dagvaardiging | Geen |
| Type gebied | Landelijk |
Een pand van
N78 Vastgoed
N78 VASTGOED: DÉ GIDS IN UW VASTGOEDVERHAAL
N78 Vastgoed is hét aanspreekpunt voor vastgoedverkoop en -advies in het Maasland. Wij zijn een jong en enthousiast team dat vanuit vertrouwen en professionaliteit haar klanten bijstaat in het héle vastgoedverhaal.
Wij zijn gespecialiseerd in de verkoop en verhuur van residentieel vastgoed (woningen, appartementen, bouwgronden) en bedrijfsvastgoed (kantoren, industriële en commerciële panden. Ook kan u bij ons terecht voor advies rond en verkoop van nieuwbouwprojecten en projectgronden.
VOOR PARTICULIEREN: HUIS KOPEN OF VERKOPEN?
Wij weten dat een huis kopen of verkopen veel meer is dan onderhandelen over de beste prijs. Wij gaan veel verder dan de loutere verkoop door een totaal ‘ontzorgingspakket’ voor de klanten te voorzien. Dat wil zeggen: professionele begeleiding van A tot Z, van waardeschatting tot ondertekening van de akte. Het dagelijks enthousiasme, de juridische kennis, de praktijkervaring en de marktkennis maken ons tot de ideale vertrouwenspartner voor iedere vastgoedtransactie. Daarom zien bijvoorbeeld notarissen in ons een ideale partner.
VOOR ONDERNEMERS: BEDRIJFSPAND (VER)KOPEN OF (VER)HUREN?
Ondernemers die een bedrijfspand willen kopen of verkopen kunnen bij ons terecht voor advies over de markt. Door de ruime marktkennis zijn wij als een van de weinige makelaars in Limburg gespecialiseerd in bedrijfsvastgoed.
VOOR ONTWIKKELAARS: NIEUWBOUWPROJECTEN TOT EEN SUCCES MAKEN?
Projectontwikkelaars vinden in ons een gedreven sparringpartner die vanuit de ervaring en kennis meedenkt om nieuwbouwprojecten tot een succes te maken. Wij weten wat de vraagmarkt wil en zetten deze kennis om in onmisbare adviezen voor projectontwikkelaars.
6839420
Leer meer over vastgoed
23 March 2026
Op Spotto zoeken als een pro: 10 slimme tips
21 March 2026
Hoeveel kan ik lenen om een huis te kopen?
01 March 2026
Wanneer heb ik een bouwvergunning of omgevingsvergunning nodig?
17 February 2026