Gezinswoning met praktijkruimte
€ 385.000
Een pand van Nicole Janssen bvba
Overzicht
- 286 m² bewoonbaar
- 574 m² grond
- 4 Slaapkamer(s)
- 1 Badkamer(s)
- 2 Toilet(ten)
- 1 Tuin
- 1 Garage(s)
Beschrijving
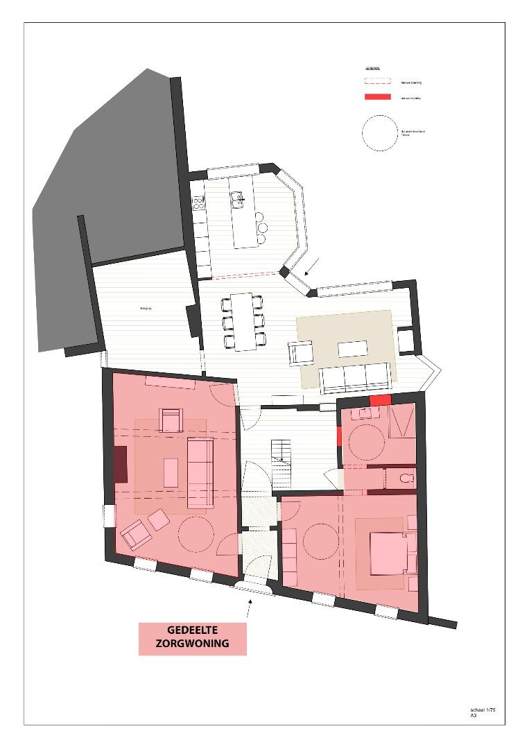
Deze gezinswoning is ruim en praktisch ingedeeld. Zo heeft de woning vier slaapkamers, een praktijkruimte en kelder. Het huis werd voorheen gebruikt als dokterspraktijk waardoor er ook een mogelijkheid is om deze om te vormen naar een zorgwoning (zie plannetje bij afbeeldingen). Deze woning is vlot bereikbaar gelegen net buiten het centrum van Dilsen-Stokkem.
Commercieel is dit ook een erg gunstige locatie en de ligging vlakbij de Nederlandse grens maken dit pand ook extra interessant.
=> Gelijkvloers
- Inkomhal met authentieke binnendeur en gastentoilet met fonteintje
- Eetkamer met open haard
- Keuken is praktisch ingedeeld en voorzien van het nodige comfort
- Leefruimte met authentieke houten schouwmantel
- Berging/wasplaats met vaste kastenwand en spoelbak
- Praktijkruimte ingericht met vaste kastenwand
- Wachtruimte/bureel
=> Verdieping
- Vier slaapkamers met vloerbekleding
- Badkamer met douche, ligbad en twee wastafels in meubel
=> Indeling
- Gelijkvloers: inkomhal, woonkamer, keuken, eetkamer, praktijkruimte met wachtruimte, apart toilet, berging/wasplaats
- Verdieping: vier slaapkamers, badkamer, apart toilet
- Zolder: opbergruimte
- Kelder: opbergruimte
Commercieel is dit ook een erg gunstige locatie en de ligging vlakbij de Nederlandse grens maken dit pand ook extra interessant.
=> Gelijkvloers
- Inkomhal met authentieke binnendeur en gastentoilet met fonteintje
- Eetkamer met open haard
- Keuken is praktisch ingedeeld en voorzien van het nodige comfort
- Leefruimte met authentieke houten schouwmantel
- Berging/wasplaats met vaste kastenwand en spoelbak
- Praktijkruimte ingericht met vaste kastenwand
- Wachtruimte/bureel
=> Verdieping
- Vier slaapkamers met vloerbekleding
- Badkamer met douche, ligbad en twee wastafels in meubel
=> Indeling
- Gelijkvloers: inkomhal, woonkamer, keuken, eetkamer, praktijkruimte met wachtruimte, apart toilet, berging/wasplaats
- Verdieping: vier slaapkamers, badkamer, apart toilet
- Zolder: opbergruimte
- Kelder: opbergruimte
Energie
![]() |
- EPC Certificaat: 20240930-0003024638-RES-2
- Verwarming: Gas
- Beglazing: Standaard dubbel
Extra budget nodig voor je renovatie?
De overheid helpt je dit pand energetisch te renoveren! Hieronder zie je het premiebedrag dat je mogelijks van de overheid krijgt.
Het huidige EPC-label is:

Op de kaart

Financieel
| Prijs | |
|---|---|
| Kadastraal inkomen (niet geïndexeerd) | € 0 |
| Kadastraal inkomen (geïndexeerd) | € 0 |
Berekening kosten
Je aankoopkosten? Die heb je snel berekent via de knop hieronder.
Bijkomende info
Gebouw
| Bouwjaar | 1850 |
|---|---|
| Is beschermd | Nee |
| Bewoonbaar (m²) | 286 |
| Badkamers | 1 |
| Slaapkamers | 4 |
| Garages | 1 |
| Toiletten | 2 |
Faciliteiten
| Materiaal ramenomlijstingen | Hout |
|---|---|
| Beglazing | Standaard dubbel |
| Luiken | Nee |
| Primair verwarmingstype | Centrale verwarming |
| Brandstof primaire verwarming | Gas |
Perceel
| Overstromingsgevoelig | Geen |
|---|---|
| P-score | A |
| G-score | A |
| Voorkeurrecht | Nee |
| Totale oppervlakte (m²) | 574 |
| Oriëntatie tuin | Zuid |
Vergunning
| Vergunning | Vergunning beschikbaar |
|---|---|
| Verkavelingsvergunning | Vergunning beschikbaar |
| Bouwovertreding dagvaardiging | Geen |
| Type gebied | Landelijk |
Uitrusting
| Meerdere eigenaars | Nee |
|---|---|
| Geschikt als kangoeroewoning | Nee |
| Geschikt voor rolstoelgebruikers | Nee |
| Geschikt voor praktijk | Nee |
| Volledig onderkelderd | Nee |
| Parking | Nee |
| Garage | Ja |
| Thuiskantoor | Nee |
| Kelder | Ja |
| Zolder | Ja |
| Opslagruimte | Nee |
| Tuin | Ja |
| Terras | Nee |
| Lift | Nee |
| Rioolaansluiting | Ja |
| Gasaansluiting | Ja |
| Wateraansluiting | Ja |
| Elektriciteitsaansluiting | Ja |
| TV aansluiting | Nee |
| Internetaansluiting | Nee |
| Zonnepanelen | Nee |
| Zonneboiler | Nee |
| Alarm | Nee |
| Zwembad | Nee |
| Jacuzzi | Nee |
| Toonzaal | Nee |
| Ventilatie | Nee |
Een pand van
Nicole Janssen bvba
Nicole Janssen - de beste weg naar beter wonen.
Van plan om uw eigendom nu of later te verkopen? Begin dat niet zonder eerst bij vastgoedkantoor Nicole Janssen langs te gaan. Met plezier kom ik ter plaatse voor een schatting van uw eigendom. Dit is volledig gratis en verplicht u tot niets. Al vertel ik u er graag bij welke meerwaarde mijn vastgoedkantoor voor u betekent.
Bel 089 - 56 57 06, stuur een bericht of kom langs op ons kantoor in de Koning Albertlaan 6 in Maaseik (gratis parking voor de deur).
WON1689
Leer meer over vastgoed
24 November 2025
Uitgezocht voor jouw gemeente: Hoeveel stijgt de waarde van je woning door een renovatie?
22 October 2025
Hoeveel kan ik lenen om een huis te kopen?
11 June 2025
Huis kopen met bouwovertreding? Dit moet je weten
11 May 2025


