Gelijkvloers appartement met tuin
€ 259.000
Een pand van Vastgoedkantoor MARVY
Favoriet
Jouw zoektocht
Jouw scoretabel voor dit pand
Aan het laden...
Jouw geplande bezichtigingen
Aan het laden...
Overzicht
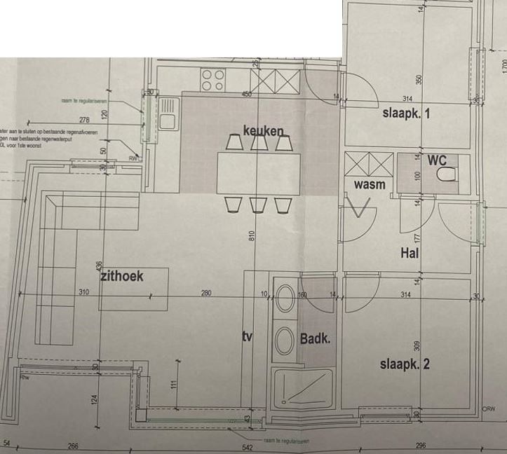
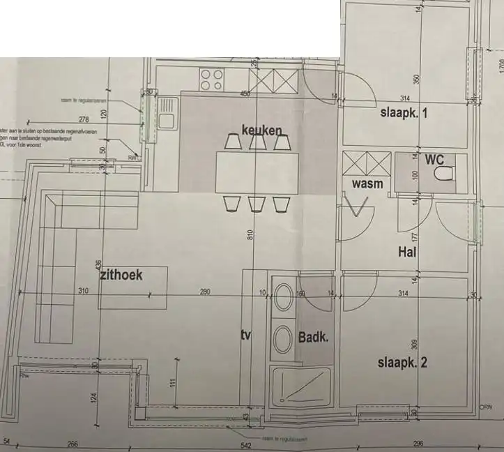
- 95 m² bewoonbaar
- 2 Slaapkamer(s)
- 1 Badkamer(s)
- 1 Toilet(ten)
Beschrijving
OMSCHRIJVING:
Prachtig en uniek gelijkvloers twee-slaapkamer appartement. Aangename woonbeleving, centraal doch rustig gelegen aan een natuurgebied. Beleving van een woonhuis o.w.v.: de eigen oprit, toegang, carport, tuinberging, tuin / terras,…
INDELING:
zeer ruime inkomhal voorzien van inbouwkasten, apart toilet, aangename woonkamer (+/- 5,90 x 4,40m) met veel daglicht, open keuken ( 4,50 x 3,40m), berging aansluitend aan de keuken, badkamer (ligbad - dubbel lavabo-badkamermeubel),
2 ruime SLAAPKAMERS ( +/- 3,10 x 3,15m) en (+/-3,5x 3,15m)
+ VOORTUIN
+ CARPORT
+ TUINBERGING
TROEVEN:
Gelegen in een zéér kleinschalige residentie, bestaande uit slechts twee appartementen. Dit zorgt voor de beleving van een woonhuis, met de nodige privacy. Wonen in een rustige landelijke omgeving. Ideaal wie rust wil combineren met bereikbaarheid. Verder zijn er diverse natuurgebieden in de buurt.
Het appartement is verhuurd sedert 2011.
Prachtig en uniek gelijkvloers twee-slaapkamer appartement. Aangename woonbeleving, centraal doch rustig gelegen aan een natuurgebied. Beleving van een woonhuis o.w.v.: de eigen oprit, toegang, carport, tuinberging, tuin / terras,…
INDELING:
zeer ruime inkomhal voorzien van inbouwkasten, apart toilet, aangename woonkamer (+/- 5,90 x 4,40m) met veel daglicht, open keuken ( 4,50 x 3,40m), berging aansluitend aan de keuken, badkamer (ligbad - dubbel lavabo-badkamermeubel),
2 ruime SLAAPKAMERS ( +/- 3,10 x 3,15m) en (+/-3,5x 3,15m)
+ VOORTUIN
+ CARPORT
+ TUINBERGING
TROEVEN:
- Volledig instapklaar (elektriciteit reeds conform en nieuwe aardgaswandketel)
- Gelijkvloers / Ruim appartement
- Gerenoveerd (behoudens de keuken voor het behoud van de authentieke sfeer)
- Prachtige ligging aan de rand van een natuurgebied, doch centraal gelegen.
- Vlotte verbinding naar Genk, Maaseik en Maasmechelen
- Beleving van een woonhuis
Gelegen in een zéér kleinschalige residentie, bestaande uit slechts twee appartementen. Dit zorgt voor de beleving van een woonhuis, met de nodige privacy. Wonen in een rustige landelijke omgeving. Ideaal wie rust wil combineren met bereikbaarheid. Verder zijn er diverse natuurgebieden in de buurt.
Het appartement is verhuurd sedert 2011.
Energie
![]() |
- Energieverbruik: 240 kWh/m²/jaar
- E-peil: E0
- Beglazing: Onbekend
Op de kaart

Financieel
| Prijs |
|---|
Berekening kosten
Je aankoopkosten? Die heb je snel berekend via de knop hieronder.
Bijkomende info
Gebouw
| Bouwjaar | 1987 |
|---|---|
| Renovatie jaar | 2011 |
| Bewoonbaar (m²) | 95 |
| Badkamers | 1 |
| Slaapkamers | 2 |
| Verdiepingen | 0 |
| Garages | 0 |
| Parkeerplaatsen | 0 |
| Toiletten | 1 |
Faciliteiten
| Septische tank | Nee |
|---|
Perceel
| P-score | A |
|---|---|
| G-score | A |
| Bebouwde oppervlakte (m²) | 0 |
Vergunning
| Verkavelingsvergunning | Geen beschikbaar |
|---|
Uitrusting
| Investeringspand | Nee |
|---|---|
| Parking | Nee |
| Garage | Nee |
| Opslagruimte | Ja |
| Lift | Nee |
| Rioolaansluiting | Nee |
| Gasaansluiting | Ja |
| Wateraansluiting | Ja |
| Elektriciteitsaansluiting | Ja |
| Internetaansluiting | Nee |
| Telefoonaansluiting | Nee |
| Zonnepanelen | Nee |
| Zonneboiler | Nee |
| Alarm | Nee |
| Videofoon | Nee |
| Grondwaterput | Nee |
Appartementsblok
| Lift | Nee |
|---|---|
| Intercom | Nee |
Een pand van
Vastgoedkantoor MARVY
Vastgoedkantoor MARVY - Keigoed in vastgoed!
Meer dan 50 jaar vastgoedervaring in Genk en rand kan het verschil maken!
Wij staan u graag vrijblijvend te woord om u te overtuigen van onze meerwaarde.
Wij vernemen het graag , u kan ons bereiken op 089/36.45.50 (tussen 9u en 12u) of via info@marvy.be
VD17/2026 (VD50/2025)
Leer meer over vastgoed
23 March 2026
Op Spotto zoeken als een pro: 10 slimme tips
21 March 2026
Hoeveel kan ik lenen om een huis te kopen?
01 March 2026
Wanneer heb ik een bouwvergunning of omgevingsvergunning nodig?
17 February 2026
