Ruime casco-nieuwbouwwoning met 3 slpk'ers op een perceel van 4a 17ca
€ 355.000
Een pand van Frère Vastgoed
Overzicht
- 172.56 m² bewoonbaar
- 417 m² grond
- 3 Slaapkamer(s)
- 1 Badkamer(s)
- 2 Toilet(ten)
Beschrijving
Welkom op de Dreesstraat 8A in Opglabbeek.
Bent u opzoek naar een moderne en duurzame nieuwbouwwoning op een rustige locatie die u volledig naar eigen smaak kan afwerken? Dan is deze woning zeker iets voor u!
Deze woning vinden wij terug in Louwel, vlakbij het centrum van Opglabbeek.
De woning ligt op een perceel van 4a 17ca en biedt een bewoonbare oppervlakte van 172,56 m², uitbreidbaar tot 212,23 m² dankzij de zolderruimte.
Binnen geniet u van een praktische indeling met drie ruime slaapkamers met de mogelijkheid om dit uit te breiden tot vijf slaapkamers.
Casco: 355.000 (excl. kosten) + € 42.600 (RR) = € 397.600 (incl. kosten)
Bij een casco oplevering ontvangt u de woning wind- en waterdicht, inclusief ruwbouw, dak en ramen.
U heeft zelf de volledige vrijheid om de woning naar eigen smaak en budget af te werken.
TROEVEN:
+ 3 (5) slaapkamers
+ Aangename tuin aan de achterkant
+ Kindvriendelijke locatie
+ Duurzaam wonen (BEN-woning)
+ Aankoop onder registratierechten
+ Zuidelijk georiënteerd
+ ...
De indeling is als volgt:
Gelijkvloers:
Via de inkomhal komen we langs het gastentoilet terecht in de ruime woonkamer met open keuken.
Verder bevindt er zich achter de keuken een ruime berging/wasplaats.
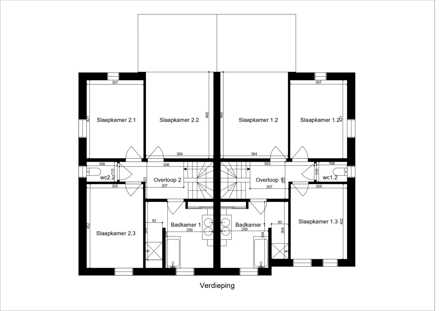
Verdieping 1:
Drie ruime slaapkamers, toilet, een ruime overloop en badkamer.
Deze indeling biedt voldoende ruimte en comfort voor het hele gezin.
Verdieping 2:
Polyvalente zolderruimte die eventueel omgevormd kan worden tot 2 extra slaapkamers.
De verkoop geschiedt onder het verkooprecht (12%).
In bijlage vindt u de grondplannen van de woning nog terug.
Wenst u een bezichtiging of meer informatie?
Neem gerust contact met ons op via het nummer 089 391 555 of stuur een mail naar info@frerevastgoed.be
Bent u opzoek naar een moderne en duurzame nieuwbouwwoning op een rustige locatie die u volledig naar eigen smaak kan afwerken? Dan is deze woning zeker iets voor u!
Deze woning vinden wij terug in Louwel, vlakbij het centrum van Opglabbeek.
De woning ligt op een perceel van 4a 17ca en biedt een bewoonbare oppervlakte van 172,56 m², uitbreidbaar tot 212,23 m² dankzij de zolderruimte.
Binnen geniet u van een praktische indeling met drie ruime slaapkamers met de mogelijkheid om dit uit te breiden tot vijf slaapkamers.
Casco: 355.000 (excl. kosten) + € 42.600 (RR) = € 397.600 (incl. kosten)
Bij een casco oplevering ontvangt u de woning wind- en waterdicht, inclusief ruwbouw, dak en ramen.
U heeft zelf de volledige vrijheid om de woning naar eigen smaak en budget af te werken.
TROEVEN:
+ 3 (5) slaapkamers
+ Aangename tuin aan de achterkant
+ Kindvriendelijke locatie
+ Duurzaam wonen (BEN-woning)
+ Aankoop onder registratierechten
+ Zuidelijk georiënteerd
+ ...
De indeling is als volgt:
Gelijkvloers:
Via de inkomhal komen we langs het gastentoilet terecht in de ruime woonkamer met open keuken.
Verder bevindt er zich achter de keuken een ruime berging/wasplaats.
Verdieping 1:
Drie ruime slaapkamers, toilet, een ruime overloop en badkamer.
Deze indeling biedt voldoende ruimte en comfort voor het hele gezin.
Verdieping 2:
Polyvalente zolderruimte die eventueel omgevormd kan worden tot 2 extra slaapkamers.
De verkoop geschiedt onder het verkooprecht (12%).
In bijlage vindt u de grondplannen van de woning nog terug.
Wenst u een bezichtiging of meer informatie?
Neem gerust contact met ons op via het nummer 089 391 555 of stuur een mail naar info@frerevastgoed.be
Energie
- E-peil: E0
- Beglazing: Standaard dubbel
Op de kaart

Financieel
Prijs |
---|
Bijkomende info
Gebouw
Bouwjaar | 2025 |
---|---|
Bewoonbaar (m²) | 172.56 |
Badkamers | 1 |
Slaapkamers | 3 |
Verdiepingen | 0 |
Garages | 0 |
Parkeerplaatsen | 0 |
Toiletten | 2 |
Faciliteiten
Beglazing | Standaard dubbel |
---|---|
Septische tank | Nee |
Perceel
Overstromingsgevoelig | Geen |
---|---|
P-score | A |
G-score | A |
Totale oppervlakte (m²) | 417 |
Bebouwde oppervlakte (m²) | 0 |
Oriëntatie tuin | Zuid |
Vergunning
Verkavelingsvergunning | Geen beschikbaar |
---|
Uitrusting
Investeringspand | Nee |
---|---|
Parking | Nee |
Garage | Nee |
Zolder | Ja |
Opslagruimte | Ja |
Lift | Nee |
Rioolaansluiting | Nee |
Gasaansluiting | Nee |
Wateraansluiting | Nee |
Elektriciteitsaansluiting | Nee |
Internetaansluiting | Nee |
Telefoonaansluiting | Nee |
Zonnepanelen | Nee |
Zonneboiler | Nee |
Alarm | Nee |
Videofoon | Nee |
Grondwaterput | Nee |
Een pand van
Frère Vastgoed
Welkom bij Frère Vastgoed.
Frère Vastgoed is uw partner bij de verkoop, verhuur of aankoop van elk type vastgoed.
Het verkopen, verhuren of aankopen van vastgoed is een ingewikkeld proces.
Frère Vastgoed helpt u graag met een resultaatgerichte en persoonlijke begeleiding bij één van de belangrijkste transacties in uw leven.
Dreesstraat 8A, Opglabbbeek
Leer meer over vastgoed
11 June 2025
Huis kopen met bouwovertreding? Dit moet je weten
11 May 2025
Renoveren? Vraag je Mijn VerbouwPremie aan
22 April 2025
Je allereerste renovatieproject selecteren én budgetteren: met de praktische hulp van Spotto
17 February 2025