Open bebouwing met 3 slpkrs op TOP locatie in Opglabbeek
€ 575.000
Een pand van Frère Vastgoed
Overzicht
- 211.1 m² bewoonbaar
- 2814 m² grond
- 3 Slaapkamer(s)
- 2 Badkamer(s)
- 1 Toilet(ten)
- 1 Garage(s)
Beschrijving
Welkom op de Elf-Septemberlaan 37 in Opglabbeek.
Bent u op zoek naar een ruime open bebouwing op een rustige en unieke locatie?
Bent u op zoek naar een woning, dewelke u kan gebruiken als gelijkvloerse woning?
Bent u op zoek naar een woning met ruimte voor een thuispraktijk of een bureel?
Dan is deze bijzondere woning precies wat u zoekt!
Deze karaktervolle woning, met een totale bruikbare oppervlakte van maar liefst 328,90 m², is gebouwd in 1984 op een perceel van 28a 14ca.
Ontdek deze bijzondere woning alvast via de virtuele rondleiding:
👉 https://player.vimeo.com/video/1128836136
Troeven van de woning:
✔ Zeer gunstige ligging,
✔ Ruim perceel: 28a 14ca
✔ Woonoppervlakte: 211,10 m²
✔ Bruikbare oppervlakte: 328,90 m²
✔ Een volledig omheind perceel
✔ 34 zonnepanelen aanwezig met groenestroomcertificaten
✔ Professioneel alarmsysteem
✔ Rolluiken en screens
✔ Conforme stroomkeuring
✔ Asbestveilige woning
✔ C-label : geen renovatieverplichting
✔ 2 badkamers
✔ Mogelijkheid om van de 2 inpandige garages een bureel/kantoor te maken
Indeling
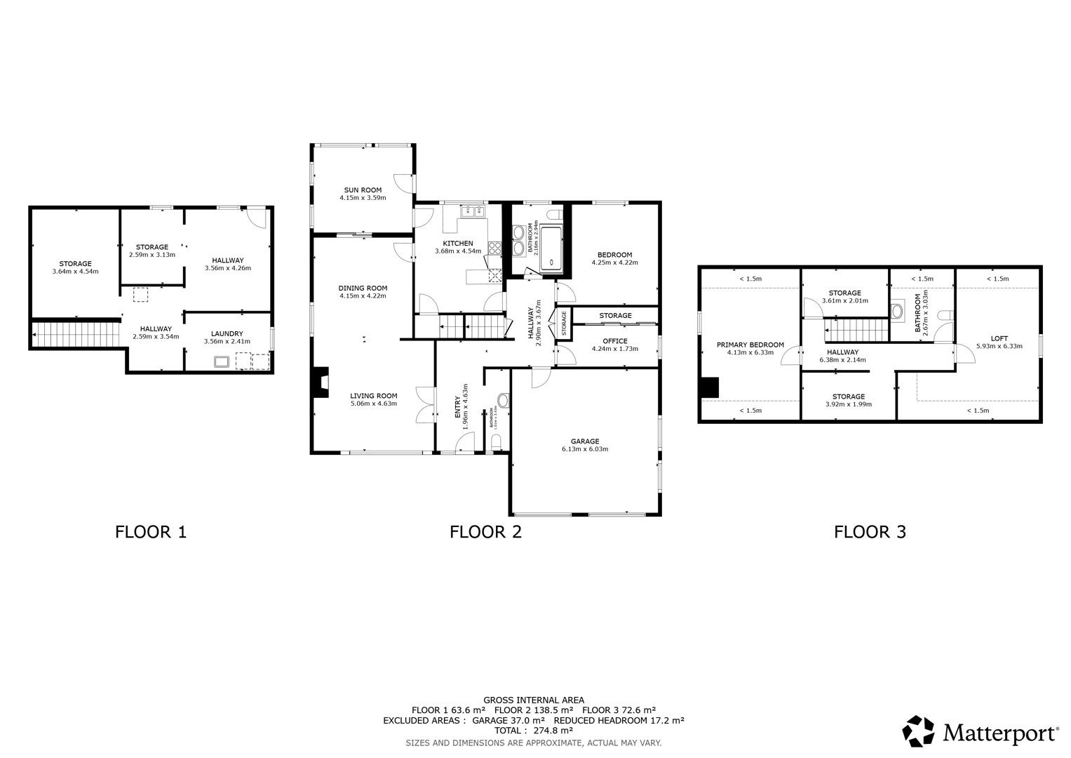
Kelder : 63,60 m²
De woning is grotendeels onderkelderd en biedt een ruime, droge kelder die ideaal kan dienen als bergruimte, wasruimte, wijnkelder of hobbyruimte. De kelder is zowel bereikbaar via een vaste trap vanuit de inkomhal en via de buitenzijde.
Gelijkvloers: 175,50 m²
Het gelijkvloers is functioneel ingedeeld en geniet van veel lichtinval.
Samenstelling:
De aanwezigheid van een slaapkamer en een badkamer op het gelijkvloers maakt de woning tevens geschikt voor levenslang wonen.
Verdiep: 72,60 m²
De verdieping is bereikbaar via een vaste trap en omvat een ruime nachthal met mogelijkheden voor extra inrichting (bijvoorbeeld bureelhoek of hobbyruimte).
Samenstelling:
De aanwezigheid van twee ruime slaapkamers en een badkamer maakt de woning geschikt voor gezinnen of meerdere bewoners.
Tuin:
Het perceel is volledig omheind en biedt een aangename en rustige buitenruimte.
Daarenboven is het perceel achterom bereikbaar via een toegangspoortje.
De tuin is aangelegd met gazon en beplanting, en beschikt over een ruim terras waar u in alle privacy kan genieten van het buitenleven. Achteraan bevindt zich een praktisch bijgebouw voor opslag of hobbygebruik. Het bijgebouw is volledig in eik opgetrokken.
De tuin is is zuid/westelijk zon georiënteerd.
Documenten
Het EPC-verslag, de elektrische keuring en de grondplannen kan u eenvoudig downloaden in bijlage.
Interesse in een bezichtiging?
Bel ons via 089 391 555 of mail naar info@frerevastgoed.be.
* Opmetingen van de binnenmaten zijn indicatief en kunnen licht afwijken.
Bent u op zoek naar een ruime open bebouwing op een rustige en unieke locatie?
Bent u op zoek naar een woning, dewelke u kan gebruiken als gelijkvloerse woning?
Bent u op zoek naar een woning met ruimte voor een thuispraktijk of een bureel?
Dan is deze bijzondere woning precies wat u zoekt!
Deze karaktervolle woning, met een totale bruikbare oppervlakte van maar liefst 328,90 m², is gebouwd in 1984 op een perceel van 28a 14ca.
Ontdek deze bijzondere woning alvast via de virtuele rondleiding:
👉 https://player.vimeo.com/video/1128836136
Troeven van de woning:
✔ Zeer gunstige ligging,
✔ Ruim perceel: 28a 14ca
✔ Woonoppervlakte: 211,10 m²
✔ Bruikbare oppervlakte: 328,90 m²
✔ Een volledig omheind perceel
✔ 34 zonnepanelen aanwezig met groenestroomcertificaten
✔ Professioneel alarmsysteem
✔ Rolluiken en screens
✔ Conforme stroomkeuring
✔ Asbestveilige woning
✔ C-label : geen renovatieverplichting
✔ 2 badkamers
✔ Mogelijkheid om van de 2 inpandige garages een bureel/kantoor te maken
Indeling
Kelder : 63,60 m²
De woning is grotendeels onderkelderd en biedt een ruime, droge kelder die ideaal kan dienen als bergruimte, wasruimte, wijnkelder of hobbyruimte. De kelder is zowel bereikbaar via een vaste trap vanuit de inkomhal en via de buitenzijde.
Gelijkvloers: 175,50 m²
Het gelijkvloers is functioneel ingedeeld en geniet van veel lichtinval.
Samenstelling:
- Inkomhal met apart toilet
- Gezellige woonkamer met zicht op de tuin
- Aansluitende veranda met directe toegang tot het overdekt terras van 27 m²
- Volledig ingerichte keuken
- Eerste badkamer met douche en wastafel
- Gelijkvloerse slaapkamer (ook geschikt als bureel of praktijkruimte)
- Berging/voorraadruimte met inbouwkasten
- Dubbele inpandige garage met automatische poorten
De aanwezigheid van een slaapkamer en een badkamer op het gelijkvloers maakt de woning tevens geschikt voor levenslang wonen.
Verdiep: 72,60 m²
De verdieping is bereikbaar via een vaste trap en omvat een ruime nachthal met mogelijkheden voor extra inrichting (bijvoorbeeld bureelhoek of hobbyruimte).
Samenstelling:
- Nachthal
- Tweede badkamer met enkele lavabo
- Slaapkamer 2
- Slaapkamer 3
De aanwezigheid van twee ruime slaapkamers en een badkamer maakt de woning geschikt voor gezinnen of meerdere bewoners.
Tuin:
Het perceel is volledig omheind en biedt een aangename en rustige buitenruimte.
Daarenboven is het perceel achterom bereikbaar via een toegangspoortje.
De tuin is aangelegd met gazon en beplanting, en beschikt over een ruim terras waar u in alle privacy kan genieten van het buitenleven. Achteraan bevindt zich een praktisch bijgebouw voor opslag of hobbygebruik. Het bijgebouw is volledig in eik opgetrokken.
De tuin is is zuid/westelijk zon georiënteerd.
Documenten
Het EPC-verslag, de elektrische keuring en de grondplannen kan u eenvoudig downloaden in bijlage.
Interesse in een bezichtiging?
Bel ons via 089 391 555 of mail naar info@frerevastgoed.be.
* Opmetingen van de binnenmaten zijn indicatief en kunnen licht afwijken.
Energie
![]() |
- EPC Certificaat: 20220710-0002638593-RES-1
- Energieverbruik: 263 kWh/m²/jaar
- E-peil: E0
- Beglazing: Standaard dubbel
Op de kaart

Financieel
| Prijs | |
|---|---|
| Kadastraal inkomen (niet geïndexeerd) | € 1.065 |
Berekening kosten
Je aankoopkosten? Die heb je snel berekent via de knop hieronder.
Bijkomende info
Gebouw
| Bouwjaar | 1984 |
|---|---|
| Staat | Goed onderhouden |
| Bewoonbaar (m²) | 211.1 |
| Badkamers | 2 |
| Slaapkamers | 3 |
| Verdiepingen | 0 |
| Garages | 1 |
| Parkeerplaatsen | 0 |
| Toiletten | 1 |
Faciliteiten
| Keuken uitrusting | Goed uitgerust |
|---|---|
| Beglazing | Standaard dubbel |
| Septische tank | Nee |
Perceel
| P-score | A |
|---|---|
| G-score | A |
| Totale oppervlakte (m²) | 2814 |
| Bebouwde oppervlakte (m²) | 328 |
| Oriëntatie tuin | Zuidwest |
Vergunning
| Verkavelingsvergunning | Geen beschikbaar |
|---|
Uitrusting
| Investeringspand | Nee |
|---|---|
| Parking | Nee |
| Garage | Ja |
| Thuiskantoor | Ja |
| Kelder | Ja |
| Lift | Nee |
| Rioolaansluiting | Ja |
| Gasaansluiting | Ja |
| Wateraansluiting | Nee |
| Elektriciteitsaansluiting | Ja |
| Internetaansluiting | Ja |
| Telefoonaansluiting | Ja |
| Zonnepanelen | Ja |
| Zonneboiler | Nee |
| Alarm | Nee |
| Videofoon | Nee |
| Grondwaterput | Nee |
Een pand van
Frère Vastgoed
Welkom bij Frère Vastgoed.
Frère Vastgoed is uw partner bij de verkoop, verhuur of aankoop van elk type vastgoed.
Het verkopen, verhuren of aankopen van vastgoed is een ingewikkeld proces.
Frère Vastgoed helpt u graag met een resultaatgerichte en persoonlijke begeleiding bij één van de belangrijkste transacties in uw leven.
Elf-Septemberlaan 37, Opglabbeek
Leer meer over vastgoed
24 November 2025
Uitgezocht voor jouw gemeente: Hoeveel stijgt de waarde van je woning door een renovatie?
22 October 2025
Hoeveel kan ik lenen om een huis te kopen?
11 June 2025
Huis kopen met bouwovertreding? Dit moet je weten
11 May 2025
