Nieuw
RUSTIG GELEGEN, GELIJKVLOERSE WONING VLAKBIJ CENTRUM OPGLABBEEK
€ 368.000
Een pand van Vestio
Overzicht
- 157 m² bewoonbaar
- 652 m² grond
- 3 Slaapkamer(s)
- 1 Badkamer(s)
- 1 Toilet(ten)
Beschrijving
RUSTIG GELEGEN, GELIJKVLOERSE WONING VLAKBIJ CENTRUM OPGLABBEEK
Deze goed onderhouden woning is gelegen langs de rustige Hoekstraat op wandelafstand van het centrum van Opglabbeek. Een uiterst rustige locatie met een goede bereikbaarheid met scholen, winkels, restaurants en de omliggende gemeentes Genk, As en Maaseik.
De woning werd gebouwd in 1978 maar werd doorheen de jaren nog gerenoveerd. Zo werden de vloeren deels vernieuwd en een nieuwe keuken en badkamer geïnstalleerd. Dankzij het perfecte onderhoud is deze woning absoluut instapklaar te noemen.
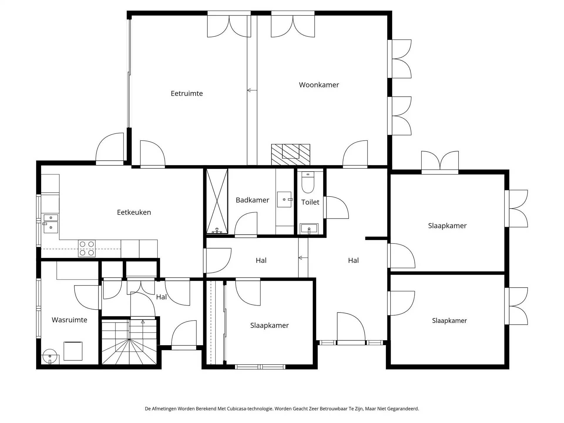
Het huis beschikt over een ruime living van meer dan 40 m² waar het dankzij de grote raampartijen zeer lichtrijk is. Aanpalend is er een moderne keuken voorzien van alle moderne comfort. Voorts zijn er nog 3 slaapkamers, een inkomhal, nachtgang, gastentoilet, een wasruimte en een recent gerenoveerde badkamer.
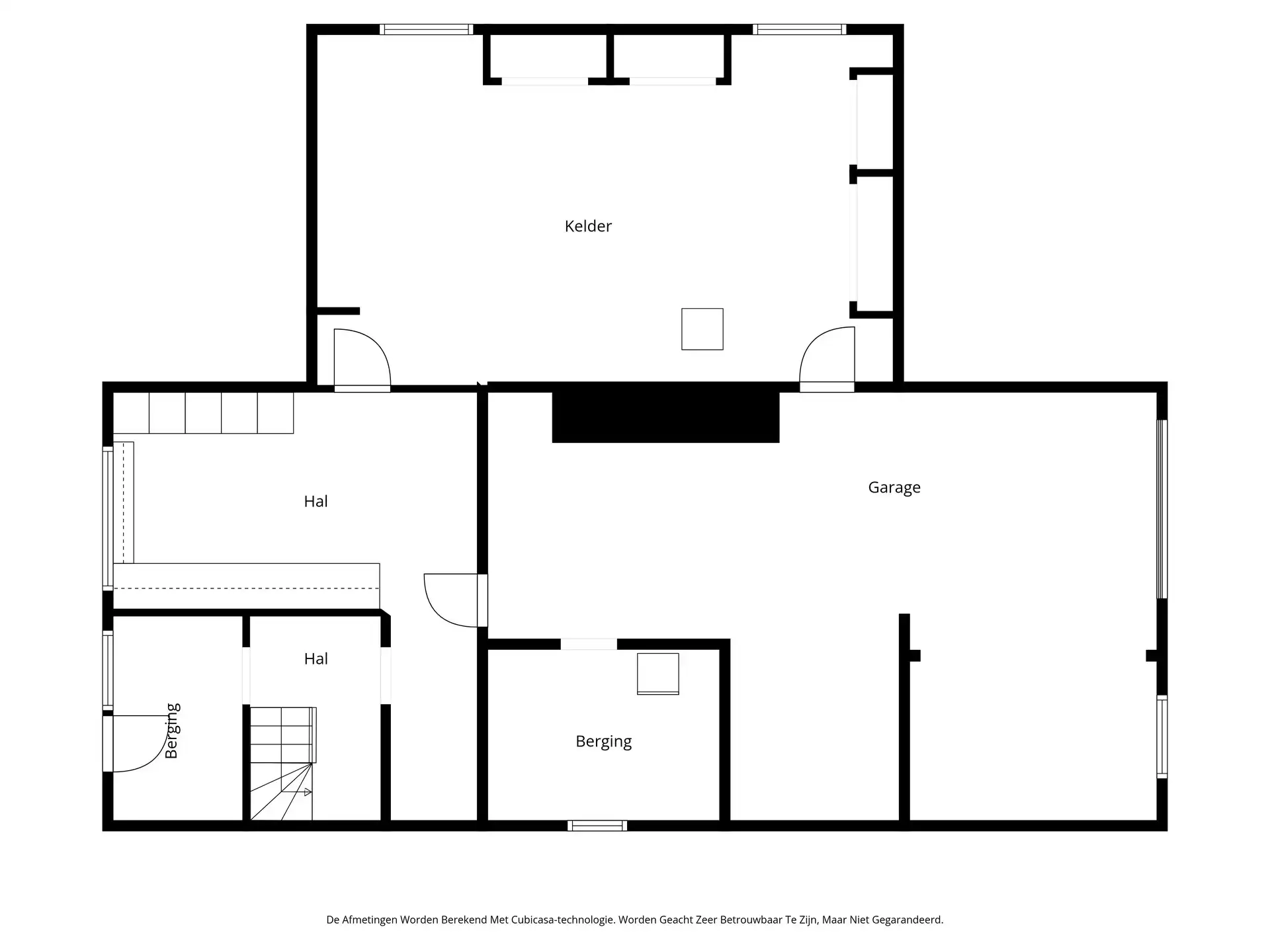
Aangezien de woning volledig onderkelderd is, is er aan opbergruimte geen gebrek. Hier beschikt u over een ruime, inpandige garage met plaats voor 2 wagens en tal van kelderbergingen. Extra opbergruimte is voorhanden op de zolderverdieping.
De woning is gelegen op een perceel van 6,52 are voorzien van volwassen planten en struiken. Vanop uw terras kan u bijgevolg in alle privacy genieten van de rustige omgeving.
Enkele TROEVEN van deze woning opgelijst:
+ Toplocatie in rustige straat nabij centrum
+ Goed onderhouden en instapklaar
+ Gerenoveerde keuken, badkamer en vloeren
+ Dak + spouw geïsoleerd
+ Volledig onderkelderd
+ Overal automatische rolluiken voorzien
+ Grote raampartijen / veel lichtinval
+ Geen renovatieverplichting
Kortom, een goed onderhouden, gelijkvloerse woning op een zeer rustige locatie aan het centrum van Opglabbeek. Meer info? Contacteer Maarten Delbroek via maarten@vestio.com of bel nar 0471/034804.
Deze goed onderhouden woning is gelegen langs de rustige Hoekstraat op wandelafstand van het centrum van Opglabbeek. Een uiterst rustige locatie met een goede bereikbaarheid met scholen, winkels, restaurants en de omliggende gemeentes Genk, As en Maaseik.
De woning werd gebouwd in 1978 maar werd doorheen de jaren nog gerenoveerd. Zo werden de vloeren deels vernieuwd en een nieuwe keuken en badkamer geïnstalleerd. Dankzij het perfecte onderhoud is deze woning absoluut instapklaar te noemen.
Het huis beschikt over een ruime living van meer dan 40 m² waar het dankzij de grote raampartijen zeer lichtrijk is. Aanpalend is er een moderne keuken voorzien van alle moderne comfort. Voorts zijn er nog 3 slaapkamers, een inkomhal, nachtgang, gastentoilet, een wasruimte en een recent gerenoveerde badkamer.
Aangezien de woning volledig onderkelderd is, is er aan opbergruimte geen gebrek. Hier beschikt u over een ruime, inpandige garage met plaats voor 2 wagens en tal van kelderbergingen. Extra opbergruimte is voorhanden op de zolderverdieping.
De woning is gelegen op een perceel van 6,52 are voorzien van volwassen planten en struiken. Vanop uw terras kan u bijgevolg in alle privacy genieten van de rustige omgeving.
Enkele TROEVEN van deze woning opgelijst:
+ Toplocatie in rustige straat nabij centrum
+ Goed onderhouden en instapklaar
+ Gerenoveerde keuken, badkamer en vloeren
+ Dak + spouw geïsoleerd
+ Volledig onderkelderd
+ Overal automatische rolluiken voorzien
+ Grote raampartijen / veel lichtinval
+ Geen renovatieverplichting
Kortom, een goed onderhouden, gelijkvloerse woning op een zeer rustige locatie aan het centrum van Opglabbeek. Meer info? Contacteer Maarten Delbroek via maarten@vestio.com of bel nar 0471/034804.
Energie
![]() |
- Energieverbruik: 387 kWh/m²/jaar
- E-peil: E0
- Verwarming: Pellets
- Beglazing: Standaard dubbel
Extra budget nodig voor je renovatie?
De overheid helpt je dit pand energetisch te renoveren! Hieronder zie je het premiebedrag dat je mogelijks van de overheid krijgt.
Het huidige EPC-label is:

Op de kaart

Financieel
| Prijs | |
|---|---|
| Kadastraal inkomen (niet geïndexeerd) | € 1.033 |
Berekening kosten
Je aankoopkosten? Die heb je snel berekend via de knop hieronder.
Bijkomende info
Gebouw
| Bouwjaar | 1978 |
|---|---|
| Staat | Goed onderhouden |
| Bewoonbaar (m²) | 157 |
| Badkamers | 1 |
| Slaapkamers | 3 |
| Verdiepingen | 0 |
| Garages | 0 |
| Parkeerplaatsen | 0 |
| Toiletten | 1 |
Faciliteiten
| Beglazing | Standaard dubbel |
|---|---|
| Brandstof primaire verwarming | Pellets |
| Septische tank | Nee |
Perceel
| Overstromingsgevoelig | Geen |
|---|---|
| P-score | C |
| G-score | A |
| Totale oppervlakte (m²) | 652 |
| Bebouwde oppervlakte (m²) | 0 |
| Oriëntatie tuin | Oost |
Vergunning
| Verkavelingsvergunning | Vergunning beschikbaar |
|---|
Uitrusting
| Investeringspand | Nee |
|---|---|
| Parking | Nee |
| Garage | Nee |
| Kelder | Ja |
| Zolder | Ja |
| Lift | Nee |
| Rioolaansluiting | Ja |
| Gasaansluiting | Nee |
| Wateraansluiting | Ja |
| Elektriciteitsaansluiting | Ja |
| Internetaansluiting | Nee |
| Telefoonaansluiting | Nee |
| Zonnepanelen | Nee |
| Zonneboiler | Nee |
| Alarm | Nee |
| Videofoon | Nee |
| Grondwaterput | Nee |
Een pand van
Vestio
Vangronsveld & Somers, thuis in ontwikkeling
Vestio staat voor 'Vangronsveld & Somers, thuis in ontwikkeling'. Vestio is actief in de realisatie van residentiële vastgoedprojecten op toplocaties in het binnenland en aan de Belgische kust in Knokke. Daarbij hecht de vastgoedspecialist veel belang aan een goede begeleiding. Vestio biedt ook assistentie bij de projectontwikkeling van woningen, appartementen, retail, verkavelingen, woon- en zorgcentra en de koop en verkoop van bestaand vastgoed. Een totaalaanpak die al meer dan 20 jaar werkt en tot heel wat exclusieve woonprojecten heeft geleid.
VKTK0518-MD
Leer meer over vastgoed
01 March 2026
Wanneer heb ik een bouwvergunning of omgevingsvergunning nodig?
17 February 2026
Hoe breng ik een bod uit op een woning?
24 November 2025
Uitgezocht voor jouw gemeente: Hoeveel stijgt de waarde van je woning door een renovatie?
22 October 2025


