Moderne en energiezuinige nieuwbouwwoning te koop!
Een pand van Nina Bruno Vastgoed
Favoriet
Jouw zoektocht
Jouw scoretabel voor dit pand
Aan het laden...
Jouw geplande bezichtigingen
Aan het laden...
Overzicht
- 151 m² bewoonbaar
- 257 m² grond
- 2 Slaapkamer(s)
Beschrijving
Met de oprichting van het nieuwbouw woonproject, gelegen op de Weg naar Opoeteren te Oudsbergen, kan sfeervol en betaalbaar wonen een droom zijn die werkelijkheid wordt!
Aan de Weg naar Opoeteren ter hoogte van huisnummer 215 worden 3 energiezuinige, duurzame maar vooral betaalbare woningen gebouwd. De woningen situeren zich in de deelgemeente Louwel, op de verbindingsweg tussen Opglabbeek en Opoeteren.
Binnen een straal van 3km bevinden zich tal van faciliteiten : zoals supermarkten, horeca sport- en zorgfaciliteiten. De Duinengorden, de Oudsberg en de toegangspoort van het Nationaal Park Hoge Kempen liggen op een bootscheut van deze 3 woningen waar u te voet, te fiets of te paard naartoe kan.
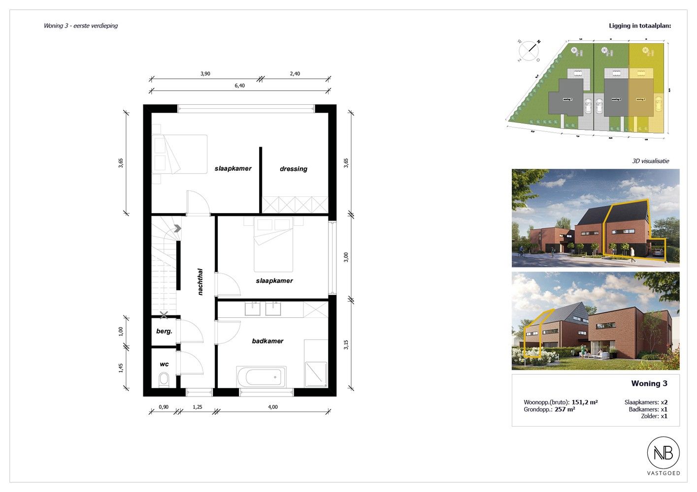
Deze woning is ontworpen volgens een hedendaagse en tijdloze architectuur. De woning heeft een bewoonbare oppervlakte van ca. 151,20 m² , een nog af te werken zolder van 58.80 m² en is gelegen op een perceel van 2.57 are.
De woning is hoogwaardig afgewerkt en uitgerust met:
- vloerverwarming op basis van een warmtepompinstallatie
- zonnepanelen met een vermogen van 2200 WP.
- domotica
De woning wordt afgewerkt naar de hedendaagse energienorm, zijnde E30 of lager. Waardoor je kan genieten van een vermindering van 50% van de onroerende voorheffing gedurende 5 jaar! Je kan de afwerking van de woning zoals de keuken, de badkamer, vloeren en deuren nog zelf kiezen volgens de budgetten vermeld in het lastenboek.
De tuin wordt aangelegd, ingezaaid en voorzien van een omheining op de perceelgrens. De inrit wordt voorzien van betonklinkers. Het terras wordt voorzien van een terrastegel.
Het vinden van een woning die voldoet aan uw eisen en noden is niet gemakkelijk. Graag willen wij u hierbij helpen. Neem contact met ons op via 089 20 34 34!
Aan de Weg naar Opoeteren ter hoogte van huisnummer 215 worden 3 energiezuinige, duurzame maar vooral betaalbare woningen gebouwd. De woningen situeren zich in de deelgemeente Louwel, op de verbindingsweg tussen Opglabbeek en Opoeteren.
Binnen een straal van 3km bevinden zich tal van faciliteiten : zoals supermarkten, horeca sport- en zorgfaciliteiten. De Duinengorden, de Oudsberg en de toegangspoort van het Nationaal Park Hoge Kempen liggen op een bootscheut van deze 3 woningen waar u te voet, te fiets of te paard naartoe kan.
Deze woning is ontworpen volgens een hedendaagse en tijdloze architectuur. De woning heeft een bewoonbare oppervlakte van ca. 151,20 m² , een nog af te werken zolder van 58.80 m² en is gelegen op een perceel van 2.57 are.
De woning is hoogwaardig afgewerkt en uitgerust met:
- vloerverwarming op basis van een warmtepompinstallatie
- zonnepanelen met een vermogen van 2200 WP.
- domotica
De woning wordt afgewerkt naar de hedendaagse energienorm, zijnde E30 of lager. Waardoor je kan genieten van een vermindering van 50% van de onroerende voorheffing gedurende 5 jaar! Je kan de afwerking van de woning zoals de keuken, de badkamer, vloeren en deuren nog zelf kiezen volgens de budgetten vermeld in het lastenboek.
De tuin wordt aangelegd, ingezaaid en voorzien van een omheining op de perceelgrens. De inrit wordt voorzien van betonklinkers. Het terras wordt voorzien van een terrastegel.
Het vinden van een woning die voldoet aan uw eisen en noden is niet gemakkelijk. Graag willen wij u hierbij helpen. Neem contact met ons op via 089 20 34 34!
Energie
- E-peil: E30
- Verwarming: Elektriciteit
- Beglazing: Standaard dubbel
Op de kaart

Financieel
| Prijs |
|---|
Bijkomende info
Gebouw
| Bouwjaar | 2023 |
|---|---|
| Staat | Nieuw |
| Bewoonbaar (m²) | 151 |
| Gevelbreedte | 10 |
| Badkamers | 0 |
| Slaapkamers | 2 |
| Verdiepingen | 0 |
| Garages | 0 |
| Parkeerplaatsen | 0 |
| Toiletten | 0 |
Faciliteiten
| Keuken uitrusting | Goed uitgerust |
|---|---|
| Beglazing | Standaard dubbel |
| Brandstof primaire verwarming | Elektriciteit |
| Septische tank | Nee |
Perceel
| Overstromingsgevoelig | Geen |
|---|---|
| P-score | C |
| G-score | C |
| Totale oppervlakte (m²) | 257 |
| Bebouwde oppervlakte (m²) | 75 |
| Oppervlakte terras (m²) | 20 |
| Oriëntatie tuin | Noordwest |
Vergunning
| Verkavelingsvergunning | Vergunning beschikbaar |
|---|
Uitrusting
| Investeringspand | Nee |
|---|---|
| Parking | Nee |
| Garage | Nee |
| Zolder | Ja |
| Terras | Ja |
| Lift | Nee |
| Rioolaansluiting | Ja |
| Gasaansluiting | Nee |
| Wateraansluiting | Ja |
| Elektriciteitsaansluiting | Ja |
| Internetaansluiting | Ja |
| Telefoonaansluiting | Nee |
| Zonnepanelen | Ja |
| Zonneboiler | Nee |
| Alarm | Nee |
| Videofoon | Nee |
| Grondwaterput | Ja |
Een pand van
Nina Bruno Vastgoed
Nina Bruno Vastgoed - Uw (T)huis is onze zorg
Hulp nodig bij de zoektocht naar een nieuwe woning? Of zoek je begeleiding bij de verkoop van je woning? Het Nina Bruno Vastgoed team begeleidt jou met uitgebreide kennis van zaken in de complexe wereld van het vastgoed. Als kandidaat koper of verkoper staan we je graag met professioneel advies bij.
Graag meer informatie over al onze diensten?
OWNO3C
Leer meer over vastgoed
23 March 2026
Op Spotto zoeken als een pro: 10 slimme tips
21 March 2026
Hoeveel kan ik lenen om een huis te kopen?
01 March 2026
Wanneer heb ik een bouwvergunning of omgevingsvergunning nodig?
17 February 2026