Moderne en energiezuinige nieuwbouwwoning te koop!
Een pand van Nina Bruno Vastgoed
Overzicht
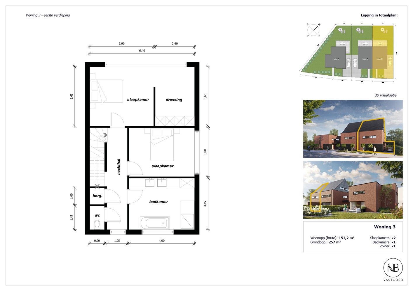
- 151 m² bewoonbaar
- 257 m² grond
- 2 Slaapkamer(s)
- 1 Badkamer(s)
- 2 Toilet(ten)
Beschrijving
!! NIEUWBOUWZONDAG: BEZOEK DIT PROJECT OP ZONDAG 19 OKTOBER TUSSEN 11u EN 12u30 !!
Met de realisatie van dit stijlvolle nieuwbouwproject aan de Weg naar Opoeteren in Oudsbergen wordt sfeervol en betaalbaar wonen werkelijkheid. Op huisnummer 215 zijn drie energiezuinige en duurzame woningen gebouwd, waarvan deze halfopen bebouwing nog te koop is. De ligging is bijzonder gunstig: gelegen in de charmante deelgemeente Louwel, tussen Opglabbeek en Opoeteren. Binnen een straal van drie kilometer vindt u supermarkten, horecazaken, sportfaciliteiten en zorgdiensten. Bovendien bevinden natuurparels zoals de Duinengordel, de Oudsberg en de toegangspoort tot het Nationaal Park Hoge Kempen zich op wandel- of fietsafstand – ideaal voor wie houdt van rust, natuur en buitenleven.
De woning combineert een tijdloze architectuur met een moderne, hoogwaardige afwerking en is volledig instapklaar. Met een bewoonbare oppervlakte van circa 151 m² en een afgewerkte zolder van 58 m² op een perceel van 3a 87ca biedt ze alle comfort voor een eigentijdse levensstijl. De woning is uitgerust met vloerverwarming op basis van een energiezuinige warmtepomp, zonnepanelen met een vermogen van 2200 WP en een domoticasysteem dat het wooncomfort verhoogt.
Binnenin vindt u een volledig uitgeruste moderne keuken met een centraal kookeiland – de perfecte plek om te koken, eten en samen te komen. De ruime badkamer straalt luxe uit en beschikt over een ligbad, een inloopdouche en een dubbele lavabo. De woning telt 2 volwaardige slaapkamers, waarvan één voorzien is van een aparte dressingruimte – een absolute meerwaarde voor wie houdt van ruimte en comfort. Bovendien is er een volledig afgewerkte zolderruimte die perfect kan dienen als 3e slaapkamer.
Ook buiten is alles tot in de puntjes afgewerkt. De tuin werd volledig ingezaaid en aangelegd, voorzien van een omheining op de perceelgrens. Het terras is afgewerkt met stijlvolle terrastegels, en de oprit is aangelegd in onderhoudsvriendelijke betonklinkers.
Dankzij het lage E-peil (E30 of lager) geniet u bovendien van een vermindering van 50% op de onroerende voorheffing gedurende de eerste vijf jaar – een extra financiële troef bovenop het comfort en de duurzaamheid die deze woning te bieden heeft.
Kortom, deze afgewerkte woning combineert energiezuinig wonen met hedendaags comfort, een doordachte indeling en een uitstekende ligging. Een ideale kans voor wie zorgeloos en stijlvol wil wonen in het hart van Oudsbergen.
Een woning vinden die écht bij u past, is niet altijd eenvoudig. Wij helpen u graag verder! Bel ons op 089 20 34 34 voor meer informatie.
Met de realisatie van dit stijlvolle nieuwbouwproject aan de Weg naar Opoeteren in Oudsbergen wordt sfeervol en betaalbaar wonen werkelijkheid. Op huisnummer 215 zijn drie energiezuinige en duurzame woningen gebouwd, waarvan deze halfopen bebouwing nog te koop is. De ligging is bijzonder gunstig: gelegen in de charmante deelgemeente Louwel, tussen Opglabbeek en Opoeteren. Binnen een straal van drie kilometer vindt u supermarkten, horecazaken, sportfaciliteiten en zorgdiensten. Bovendien bevinden natuurparels zoals de Duinengordel, de Oudsberg en de toegangspoort tot het Nationaal Park Hoge Kempen zich op wandel- of fietsafstand – ideaal voor wie houdt van rust, natuur en buitenleven.
De woning combineert een tijdloze architectuur met een moderne, hoogwaardige afwerking en is volledig instapklaar. Met een bewoonbare oppervlakte van circa 151 m² en een afgewerkte zolder van 58 m² op een perceel van 3a 87ca biedt ze alle comfort voor een eigentijdse levensstijl. De woning is uitgerust met vloerverwarming op basis van een energiezuinige warmtepomp, zonnepanelen met een vermogen van 2200 WP en een domoticasysteem dat het wooncomfort verhoogt.
Binnenin vindt u een volledig uitgeruste moderne keuken met een centraal kookeiland – de perfecte plek om te koken, eten en samen te komen. De ruime badkamer straalt luxe uit en beschikt over een ligbad, een inloopdouche en een dubbele lavabo. De woning telt 2 volwaardige slaapkamers, waarvan één voorzien is van een aparte dressingruimte – een absolute meerwaarde voor wie houdt van ruimte en comfort. Bovendien is er een volledig afgewerkte zolderruimte die perfect kan dienen als 3e slaapkamer.
Ook buiten is alles tot in de puntjes afgewerkt. De tuin werd volledig ingezaaid en aangelegd, voorzien van een omheining op de perceelgrens. Het terras is afgewerkt met stijlvolle terrastegels, en de oprit is aangelegd in onderhoudsvriendelijke betonklinkers.
Dankzij het lage E-peil (E30 of lager) geniet u bovendien van een vermindering van 50% op de onroerende voorheffing gedurende de eerste vijf jaar – een extra financiële troef bovenop het comfort en de duurzaamheid die deze woning te bieden heeft.
Kortom, deze afgewerkte woning combineert energiezuinig wonen met hedendaags comfort, een doordachte indeling en een uitstekende ligging. Een ideale kans voor wie zorgeloos en stijlvol wil wonen in het hart van Oudsbergen.
Een woning vinden die écht bij u past, is niet altijd eenvoudig. Wij helpen u graag verder! Bel ons op 089 20 34 34 voor meer informatie.
!! NIEUWBOUWZONDAG: BEZOEK DIT PROJECT OP ZONDAG 19 OKTOBER TUSSEN 11u EN 12u30 !!
Met de realisatie van dit stijlvolle nieuwbouwproject aan de Weg naar Opoeteren in Oudsbergen wordt sfeervol en betaalbaar wonen werkelijkheid. Op huisnummer 215 zijn drie energiezuinige en duurzame woningen gebouwd, waarvan deze halfopen bebouwing nog te koop is. De ligging is bijzonder gunstig: gelegen in de charmante deelgemeente Louwel, tussen Opglabbeek en Opoeteren. Binnen een straal van drie kilometer vindt u supermarkten, horecazaken, sportfaciliteiten en zorgdiensten. Bovendien bevinden natuurparels zoals de Duinengordel, de Oudsberg en de toegangspoort tot het Nationaal Park Hoge Kempen zich op wandel- of fietsafstand – ideaal voor wie houdt van rust, natuur en buitenleven.
De woning combineert een tijdloze architectuur met een moderne, hoogwaardige afwerking en is volledig instapklaar. Met een bewoonbare oppervlakte van circa 151 m² en een afgewerkte zolder van 58 m² op een perceel van 3a 87ca biedt ze alle comfort voor een eigentijdse levensstijl. De woning is uitgerust met vloerverwarming op basis van een energiezuinige warmtepomp, zonnepanelen met een vermogen van 2200 WP en een domoticasysteem dat het wooncomfort verhoogt.
Binnenin vindt u een volledig uitgeruste moderne keuken met een centraal kookeiland – de perfecte plek om te koken, eten en samen te komen. De ruime badkamer straalt luxe uit en beschikt over een ligbad, een inloopdouche en een dubbele lavabo. De woning telt 2 volwaardige slaapkamers, waarvan één voorzien is van een aparte dressingruimte – een absolute meerwaarde voor wie houdt van ruimte en comfort. Bovendien is er een volledig afgewerkte zolderruimte die perfect kan dienen als 3e slaapkamer.
Ook buiten is alles tot in de puntjes afgewerkt. De tuin werd volledig ingezaaid en aangelegd, voorzien van een omheining op de perceelgrens. Het terras is afgewerkt met stijlvolle terrastegels, en de oprit is aangelegd in onderhoudsvriendelijke betonklinkers.
Dankzij het lage E-peil (E30 of lager) geniet u bovendien van een vermindering van 50% op de onroerende voorheffing gedurende de eerste vijf jaar – een extra financiële troef bovenop het comfort en de duurzaamheid die deze woning te bieden heeft.
Kortom, deze afgewerkte woning combineert energiezuinig wonen met hedendaags comfort, een doordachte indeling en een uitstekende ligging. Een ideale kans voor wie zorgeloos en stijlvol wil wonen in het hart van Oudsbergen.
Een woning vinden die écht bij u past, is niet altijd eenvoudig. Wij helpen u graag verder! Bel ons op 089 20 34 34 voor meer informatie.
Met de realisatie van dit stijlvolle nieuwbouwproject aan de Weg naar Opoeteren in Oudsbergen wordt sfeervol en betaalbaar wonen werkelijkheid. Op huisnummer 215 zijn drie energiezuinige en duurzame woningen gebouwd, waarvan deze halfopen bebouwing nog te koop is. De ligging is bijzonder gunstig: gelegen in de charmante deelgemeente Louwel, tussen Opglabbeek en Opoeteren. Binnen een straal van drie kilometer vindt u supermarkten, horecazaken, sportfaciliteiten en zorgdiensten. Bovendien bevinden natuurparels zoals de Duinengordel, de Oudsberg en de toegangspoort tot het Nationaal Park Hoge Kempen zich op wandel- of fietsafstand – ideaal voor wie houdt van rust, natuur en buitenleven.
De woning combineert een tijdloze architectuur met een moderne, hoogwaardige afwerking en is volledig instapklaar. Met een bewoonbare oppervlakte van circa 151 m² en een afgewerkte zolder van 58 m² op een perceel van 3a 87ca biedt ze alle comfort voor een eigentijdse levensstijl. De woning is uitgerust met vloerverwarming op basis van een energiezuinige warmtepomp, zonnepanelen met een vermogen van 2200 WP en een domoticasysteem dat het wooncomfort verhoogt.
Binnenin vindt u een volledig uitgeruste moderne keuken met een centraal kookeiland – de perfecte plek om te koken, eten en samen te komen. De ruime badkamer straalt luxe uit en beschikt over een ligbad, een inloopdouche en een dubbele lavabo. De woning telt 2 volwaardige slaapkamers, waarvan één voorzien is van een aparte dressingruimte – een absolute meerwaarde voor wie houdt van ruimte en comfort. Bovendien is er een volledig afgewerkte zolderruimte die perfect kan dienen als 3e slaapkamer.
Ook buiten is alles tot in de puntjes afgewerkt. De tuin werd volledig ingezaaid en aangelegd, voorzien van een omheining op de perceelgrens. Het terras is afgewerkt met stijlvolle terrastegels, en de oprit is aangelegd in onderhoudsvriendelijke betonklinkers.
Dankzij het lage E-peil (E30 of lager) geniet u bovendien van een vermindering van 50% op de onroerende voorheffing gedurende de eerste vijf jaar – een extra financiële troef bovenop het comfort en de duurzaamheid die deze woning te bieden heeft.
Kortom, deze afgewerkte woning combineert energiezuinig wonen met hedendaags comfort, een doordachte indeling en een uitstekende ligging. Een ideale kans voor wie zorgeloos en stijlvol wil wonen in het hart van Oudsbergen.
Een woning vinden die écht bij u past, is niet altijd eenvoudig. Wij helpen u graag verder! Bel ons op 089 20 34 34 voor meer informatie.
Energie
- E-peil: E30
- Verwarming: Elektriciteit
- Beglazing: Standaard dubbel
Op de kaart

Financieel
Prijs |
---|
Bijkomende info
Gebouw
Bouwjaar | 2023 |
---|---|
Staat | Nieuw |
Bewoonbaar (m²) | 151 |
Gevelbreedte | 10 |
Badkamers | 1 |
Slaapkamers | 2 |
Verdiepingen | 0 |
Garages | 0 |
Parkeerplaatsen | 0 |
Toiletten | 2 |
Faciliteiten
Keuken uitrusting | Goed uitgerust |
---|---|
Beglazing | Standaard dubbel |
Brandstof primaire verwarming | Elektriciteit |
Septische tank | Nee |
Perceel
Overstromingsgevoelig | Geen |
---|---|
P-score | C |
G-score | C |
Totale oppervlakte (m²) | 257 |
Bebouwde oppervlakte (m²) | 75 |
Oriëntatie tuin | Noordwest |
Vergunning
Verkavelingsvergunning | Vergunning beschikbaar |
---|
Uitrusting
Investeringspand | Nee |
---|---|
Parking | Nee |
Garage | Nee |
Zolder | Ja |
Opslagruimte | Ja |
Lift | Nee |
Rioolaansluiting | Ja |
Gasaansluiting | Nee |
Wateraansluiting | Ja |
Elektriciteitsaansluiting | Ja |
Internetaansluiting | Ja |
Telefoonaansluiting | Nee |
Zonnepanelen | Ja |
Zonneboiler | Nee |
Alarm | Nee |
Videofoon | Nee |
Grondwaterput | Ja |
Een pand van
Nina Bruno Vastgoed
Nina Bruno Vastgoed - Uw (T)huis is onze zorg
Hulp nodig bij de zoektocht naar een nieuwe woning? Of zoek je begeleiding bij de verkoop van je woning? Het Nina Bruno Vastgoed team begeleidt jou met uitgebreide kennis van zaken in de complexe wereld van het vastgoed. Als kandidaat koper of verkoper staan we je graag met professioneel advies bij.
Graag meer informatie over al onze diensten?
OWNO3CCC
Leer meer over vastgoed
11 June 2025
Huis kopen met bouwovertreding? Dit moet je weten
11 May 2025
Renoveren? Vraag je Mijn VerbouwPremie aan
22 April 2025
Je allereerste renovatieproject selecteren én budgetteren: met de praktische hulp van Spotto
17 February 2025