Nieuwbouw
€ 400.000
Een pand van Jemar.be
Overzicht
- 183.26 m² bewoonbaar
- 406 m² grond
- 3 Slaapkamer(s)
- 1 Badkamer(s)
- 2 Toilet(ten)
Beschrijving
Moderne, energiezuinige nieuwbouwwoning (casco+) in Oudsbergen
In de Wolfsstraat te Oudsbergen staat deze stijlvolle halfopen nieuwbouwwoning, gebouwd met oog voor kwaliteit, duurzaamheid en wooncomfort.
Ligging:
Op wandel- en fietsafstand van winkels, scholen en sportclubs, vlak bij Sentower Park en het centrum van Opglabbeek. Dankzij de nabijgelegen bushaltes en autosnelweg bent u snel in Genk, Bree en omliggende steden.
Indeling:
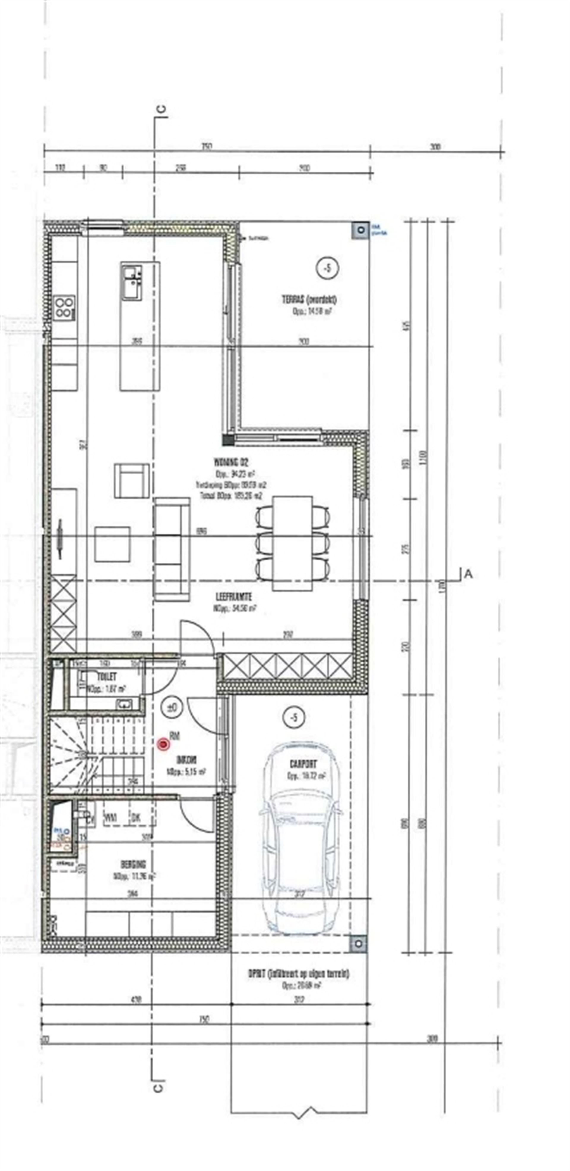
Gelijkvloers: inkomhal met toilet, ruime leefruimte met toegang tot terras, berging en carport.
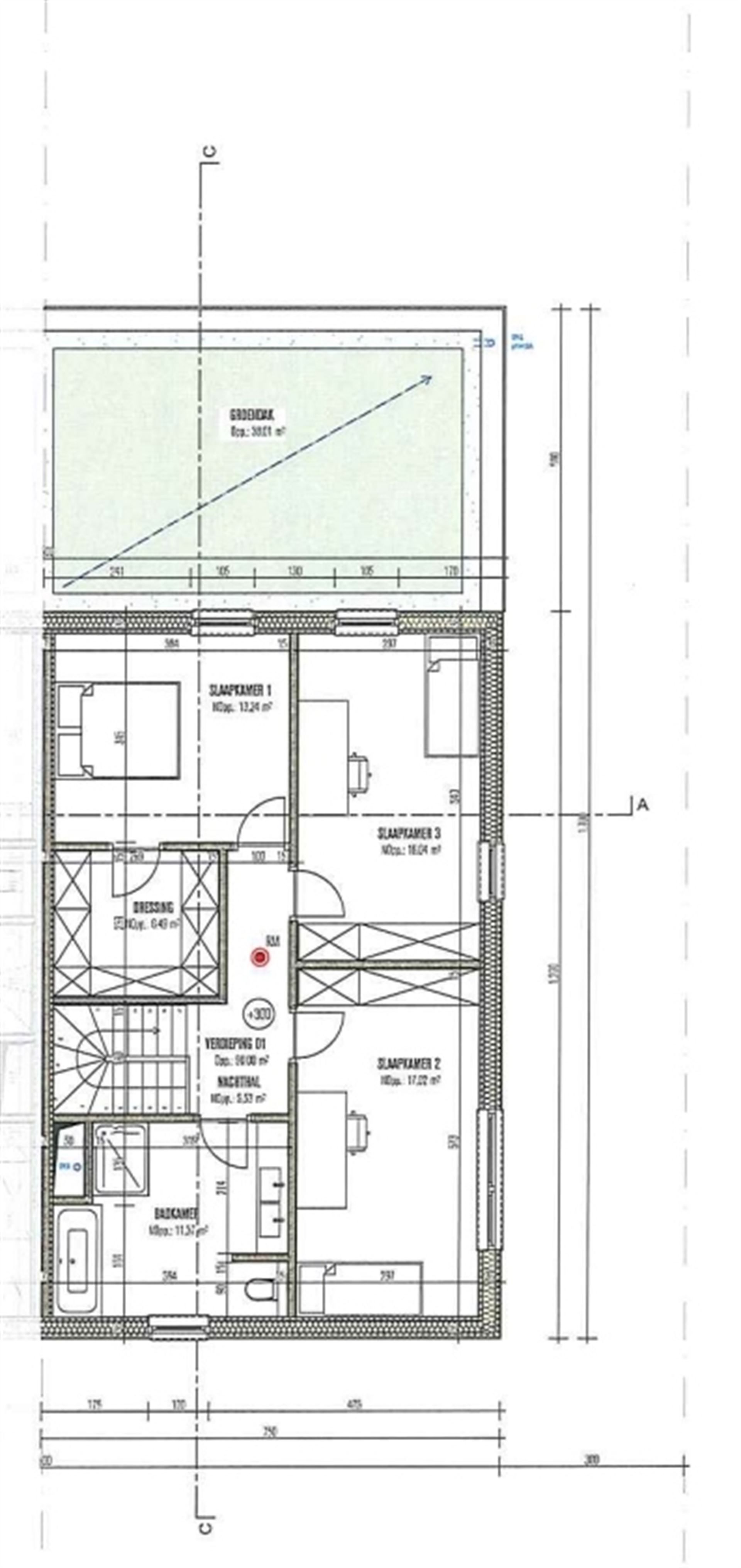
Verdieping: nachthal, 3 slaapkamers, badkamer, apart toilet.
Energie & comfort: Uitgerust met warmtepomp, vloerverwarming (gelijkvloers), ventilatiesysteem D, zonnepanelen en plafondunits op de verdieping. Met een E-peil van slechts E20 is deze woning bijna energieneutraal. Regenwaterput (7.500 L) en infiltratieput (3.000 L) inbegrepen.
Casco+ afwerking: Verkocht onder btw-stelsel en opgeleverd in Casco+. U kiest zelf keuken, badkamer, vloeren, binnenschrijnwerk, trapafwerking en tuinaanleg.
Troeven:
* Halfopen nieuwbouw met overdekt terras en carport
* Aluminium ramen met screens
* Dressing aanwezig
* Bijna energieneutraal (E20)
* Warmtepomp, vloerverwarming, zonnepanelen, ventilatie D
* Oplevering: februari 2026
* Casco+ voor maximale afwerkingsvrijheid
Kortom: een duurzame woning op toplocatie, klaar om volledig naar uw smaak afgewerkt te worden!
iris@jemar.be of 0483 11 08 75
Energie
- E-peil: E0
- Beglazing: Standaard dubbel
Op de kaart

Downloads
Financieel
Prijs | |
---|---|
Kadastraal inkomen (niet geïndexeerd) | € 0 |
Kadastraal inkomen (geïndexeerd) | € 0 |
Berekening kosten
Je aankoopkosten? Die heb je snel berekent via de knop hieronder.
Bijkomende info
Gebouw
Bouwjaar | 2025 |
---|---|
Staat | Nieuw |
Bouwcertificaat | Nee |
Bewoonbaar (m²) | 183.26 |
Verdieping | 0 |
Badkamers | 1 |
Slaapkamers | 3 |
Verdiepingen | 0 |
Garages | 0 |
Parkeerplaatsen | 0 |
Doucheruimtes | 0 |
Toiletten | 2 |
Faciliteiten
Keuken uitrusting | Standaard |
---|---|
Materiaal ramenomlijstingen | Aluminium |
Beglazing | Standaard dubbel |
Elektrisch keuringsattest | Nee |
Perceel
Diepte (m) | 39 |
---|---|
Breedte (m) | 10 |
Overstromingsgevoelig | Geen |
Voorkeurrecht | Ja |
Totale oppervlakte (m²) | 406 |
Bebouwde oppervlakte (m²) | 0 |
Tuin oppervlakte (m²) | 0 |
Oppervlakte terras (m²) | 14 |
Oriëntatie tuin | Zuid |
Vergunning
Vergunning | Aanvraag ingediend |
---|---|
Verkavelingsvergunning | Aanvraag ingediend |
Uitrusting
Investeringspand | Nee |
---|---|
Geschikt voor praktijk | Nee |
Parking | Nee |
Garage | Nee |
Thuiskantoor | Nee |
Kelder | Nee |
Zolder | Nee |
Tuin | Nee |
Terras | Ja |
Lift | Nee |
Rioolaansluiting | Nee |
Gasaansluiting | Nee |
Wateraansluiting | Nee |
Elektriciteitsaansluiting | Nee |
TV aansluiting | Nee |
Internetaansluiting | Nee |
Telefoonaansluiting | Nee |
Appartementsblok
Lift | Nee |
---|