Nieuw
Geniet van 6% btw – NIEUWBOUW (reeds gebouwd) in Oudsbergen – casco+
€ 365.000
Een pand van Sensimmo
Overzicht
- 160 m² bewoonbaar
- 365 m² grond
- 3 Slaapkamer(s)
- 1 Badkamer(s)
- 1 Toilet(ten)
- 1 Living(s)
- 1 Tuin
Beschrijving
Droomt u van een energiezuinige nieuwbouwwoning die u nog volledig naar eigen smaak kunt afwerken?
In het charmante Oudsbergen vindt u deze halfopen bebouwing, reeds gebouwd in casco+. De ideale combinatie: u koopt een nieuwbouwwoning en werkt de woning verder af naar eigen smaak met het voordeel van 6% btw (onder voorwaarden).
Gelegen op wandelafstand van het centrum met winkels, scholen en openbaar vervoer in de onmiddellijke nabijheid. Ook natuurliefhebbers komen hier helemaal aan hun trekken bossen en groen liggen vlakbij.
Indeling:
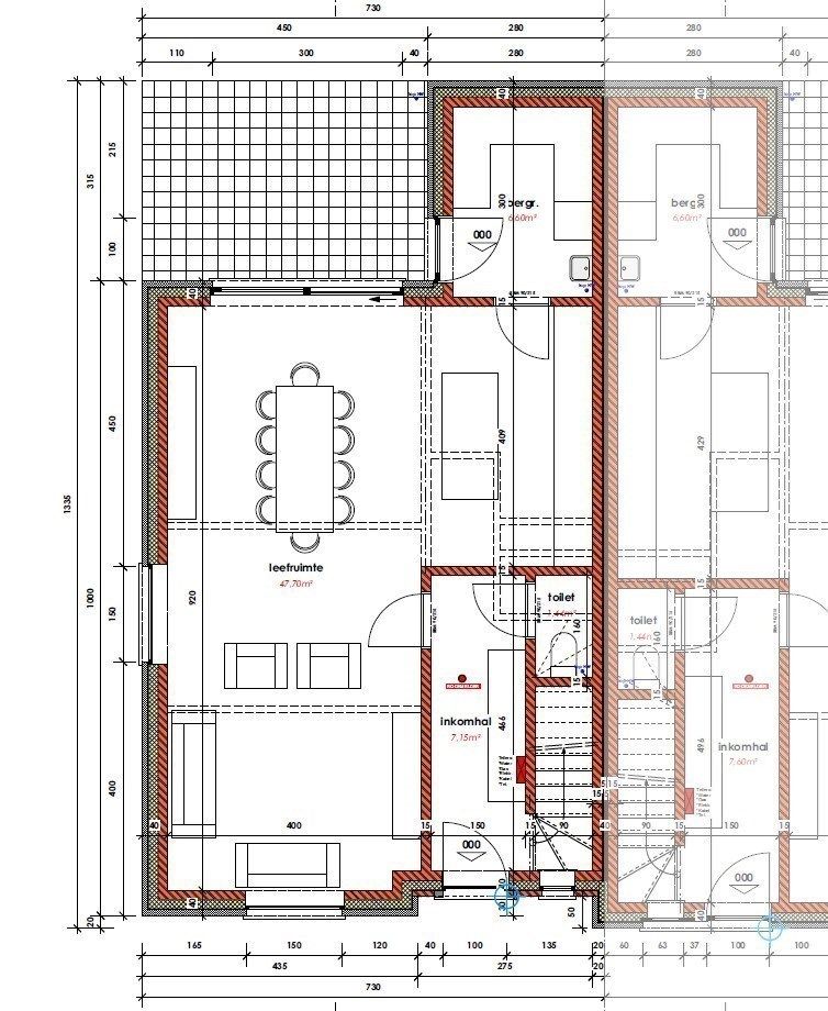
Gelijkvloers: inkomhal, gastentoilet, open leefruimte met woonkamer en keuken, berging met toegang tot de tuin via een buitendeur .
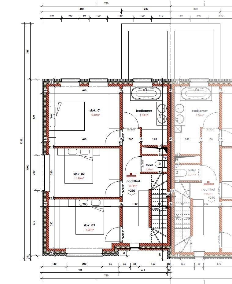
Eerste verdieping: 3 ruime slaapkamers, badkamer en een apart toilet.
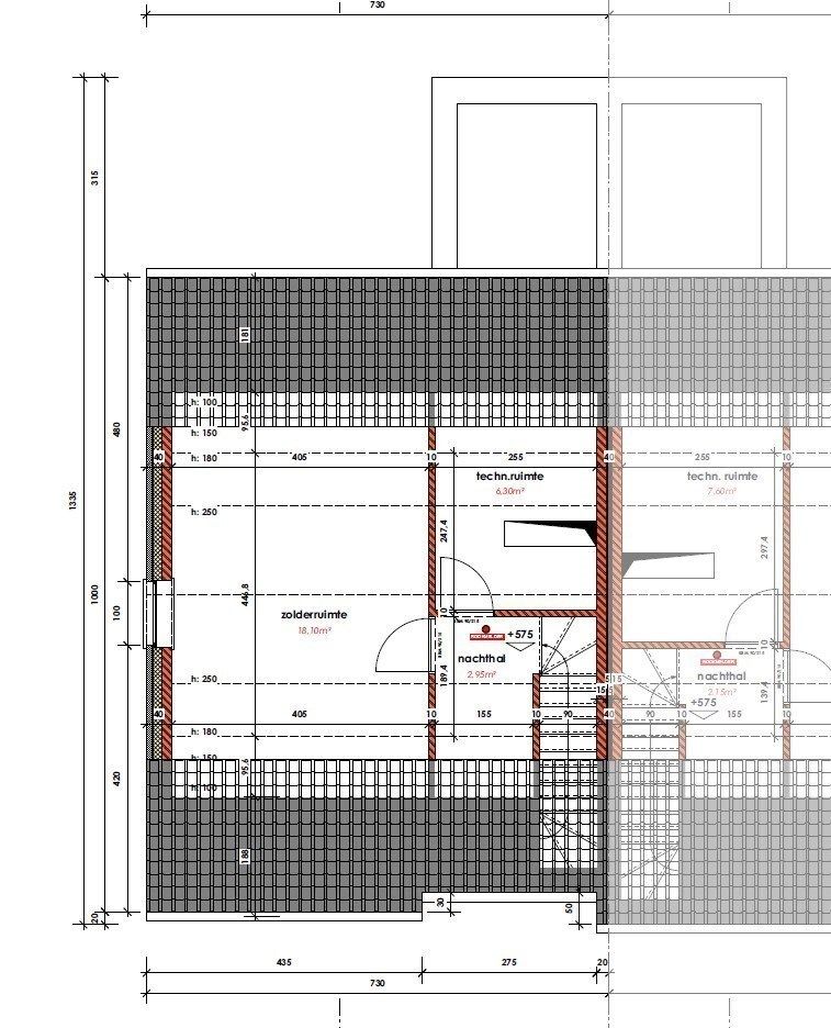
Zolderverdieping: vaste trap naar de zolder met een ruime oppervlakte, ideaal om een extra ruimte te voorzien bv. extra slaapkamer, bureel of hobbyruimte.
Buiten: terras en tuin.
Troeven op een rij:
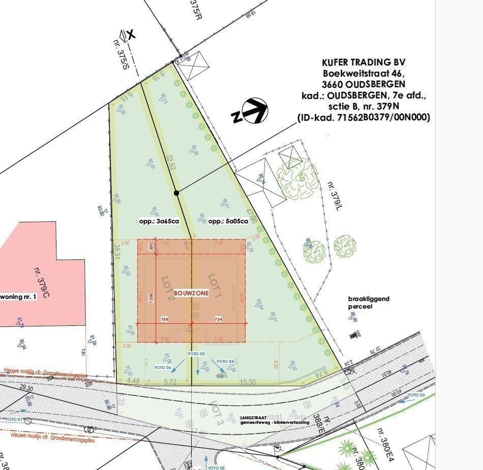
* Perceel van ca. 4a
* Ca. 160 m² woonoppervlakte
* 3 ruime slaapkamers
* Ventilatie type D
* Vloerverwarming
* Casco+: kwalitatieve basisstructuur met maximale vrijheid in afwerking
* Zuidgerichte tuin en terras
* Eigen autostaanplaats voor comfortabel en veilig parkeren
* Nabij winkels, scholen en openbaar vervoer
* Ideale mix van rust en vlotte bereikbaarheid
Prijs (grondwaarde + constructie)
365.000 euro + 21.900 euro (6% btw) = 386.900 euro
Exclusief notariskosten en aansluitingen van nutsvoorzieningen.
Wenst u de woning volledig afgewerkt aan te kopen? Dat is zeker mogelijk en bespreekbaar.
Energiezuinig en toekomstgericht
Met een E-peil 30 is deze woning al bijzonder energiezuinig. Bovendien is er potentieel om met extra energiebesparende maatregelen en hernieuwbare energie te streven naar E-peil 0 (energieneutraal).
Een reeds gebouwde nieuwbouwwoning met zuidgerichte tuin, sterke ligging en vrijheid in afwerking: een kans die u niet wil missen.
Benieuwd naar de plannen en mogelijkheden? Neem gerust contact op voor meer info of een bezoek. Bel of mail nu naar:
📞 +32 89 20 90 88
✉️ info@sensimmo.be
🌐 www.sensimmo.be
In het charmante Oudsbergen vindt u deze halfopen bebouwing, reeds gebouwd in casco+. De ideale combinatie: u koopt een nieuwbouwwoning en werkt de woning verder af naar eigen smaak met het voordeel van 6% btw (onder voorwaarden).
Gelegen op wandelafstand van het centrum met winkels, scholen en openbaar vervoer in de onmiddellijke nabijheid. Ook natuurliefhebbers komen hier helemaal aan hun trekken bossen en groen liggen vlakbij.
Indeling:
Gelijkvloers: inkomhal, gastentoilet, open leefruimte met woonkamer en keuken, berging met toegang tot de tuin via een buitendeur .
Eerste verdieping: 3 ruime slaapkamers, badkamer en een apart toilet.
Zolderverdieping: vaste trap naar de zolder met een ruime oppervlakte, ideaal om een extra ruimte te voorzien bv. extra slaapkamer, bureel of hobbyruimte.
Buiten: terras en tuin.
Troeven op een rij:
* Perceel van ca. 4a
* Ca. 160 m² woonoppervlakte
* 3 ruime slaapkamers
* Ventilatie type D
* Vloerverwarming
* Casco+: kwalitatieve basisstructuur met maximale vrijheid in afwerking
* Zuidgerichte tuin en terras
* Eigen autostaanplaats voor comfortabel en veilig parkeren
* Nabij winkels, scholen en openbaar vervoer
* Ideale mix van rust en vlotte bereikbaarheid
Prijs (grondwaarde + constructie)
365.000 euro + 21.900 euro (6% btw) = 386.900 euro
Exclusief notariskosten en aansluitingen van nutsvoorzieningen.
Wenst u de woning volledig afgewerkt aan te kopen? Dat is zeker mogelijk en bespreekbaar.
Energiezuinig en toekomstgericht
Met een E-peil 30 is deze woning al bijzonder energiezuinig. Bovendien is er potentieel om met extra energiebesparende maatregelen en hernieuwbare energie te streven naar E-peil 0 (energieneutraal).
Een reeds gebouwde nieuwbouwwoning met zuidgerichte tuin, sterke ligging en vrijheid in afwerking: een kans die u niet wil missen.
Benieuwd naar de plannen en mogelijkheden? Neem gerust contact op voor meer info of een bezoek. Bel of mail nu naar:
📞 +32 89 20 90 88
✉️ info@sensimmo.be
🌐 www.sensimmo.be
Energie
- Verwarming: Gas
- Beglazing: Hoog efficient dubbel
Op de kaart

Financieel
| Prijs | |
|---|---|
| Kadastraal inkomen (niet geïndexeerd) | € 0 |
| Kadastraal inkomen (geïndexeerd) | € 0 |
Berekening kosten
Je aankoopkosten? Die heb je snel berekent via de knop hieronder.
Bijkomende info
Gebouw
| Bouwjaar | 2025 |
|---|---|
| Is beschermd | Nee |
| Bewoonbaar (m²) | 160 |
| Gevelbreedte | 7.34 |
| Zolder | 1 |
| Badkamers | 1 |
| Slaapkamers | 3 |
| Verdiepingen | 2 |
| Keukens | 1 |
| Leefruimtes | 1 |
| Opslagruimtes | 1 |
| Toiletten | 1 |
Ruimtes
| Zolder | 27 m² |
|---|---|
| Slaapkamer | 13.6 m² |
| Slaapkamer | 11.2 m² |
| Slaapkamer | 11.05 m² |
| Keuken | 12 m² |
| Leefruimte | 36 m² |
| Opbergruimte | 7 m² |
Faciliteiten
| Keuken | Open keuken |
|---|---|
| Materiaal ramenomlijstingen | PVC |
| Beglazing | Hoog efficient dubbel |
| Luiken | Nee |
| Primaire verwarmingsbron | Condensatieketel |
| Brandstof primaire verwarming | Gas |
| Primaire verwarming | Vloerverwarming |
Perceel
| Overstromingsgevoelig | Geen |
|---|---|
| P-score | A |
| G-score | A |
| Voorkeurrecht | Nee |
| Totale oppervlakte (m²) | 365 |
| Bebouwde oppervlakte (m²) | 170 |
| Oriëntatie tuin | Zuid |
Vergunning
| Vergunning | Vergunning beschikbaar |
|---|---|
| Verkavelingsvergunning | Vergunning beschikbaar |
| Bouwovertreding dagvaardiging | Geen |
| Type gebied | Stedelijk |
Uitrusting
| Meerdere eigenaars | Nee |
|---|---|
| Geschikt als kangoeroewoning | Nee |
| Geschikt voor rolstoelgebruikers | Nee |
| Geschikt voor praktijk | Nee |
| Volledig onderkelderd | Nee |
| Parking | Ja |
| Garage | Nee |
| Thuiskantoor | Nee |
| Kelder | Nee |
| Zolder | Ja |
| Opslagruimte | Ja |
| Tuin | Ja |
| Terras | Ja |
| Lift | Nee |
| Rioolaansluiting | Ja |
| Gasaansluiting | Ja |
| Wateraansluiting | Ja |
| Elektriciteitsaansluiting | Ja |
| TV aansluiting | Nee |
| Internetaansluiting | Nee |
| Zonnepanelen | Nee |
| Zonneboiler | Nee |
| Alarm | Nee |
| Zwembad | Nee |
| Jacuzzi | Nee |
| Toonzaal | Nee |
| Ventilatie | Ja |
Een pand van
Sensimmo
Sensimmo Vastgoed - gevoel voor wonen
Sensimmo bestaat uit een zeer enthousiast team van medewerkers! Ieder van hen beschikt over een grote dosis professionele ervaring, juridische kennis en doorzettingsvermogen. Zij gaan voluit voor een kwalitatieve aanpak van de verkoop van uw woning, uw levensinvestering!
3672
Leer meer over vastgoed
24 November 2025
Uitgezocht voor jouw gemeente: Hoeveel stijgt de waarde van je woning door een renovatie?
22 October 2025
Hoeveel kan ik lenen om een huis te kopen?
11 June 2025
Huis kopen met bouwovertreding? Dit moet je weten
11 May 2025