Nieuwbouw duplex-appartement van 125,93m²
Een pand van Nicole Janssen bvba
Favoriet
Jouw zoektocht
Jouw scoretabel voor dit pand
Aan het laden...
Jouw geplande bezichtigingen
Aan het laden...
Overzicht
- 125.93 m² bewoonbaar
- 2 Slaapkamer(s)
- 1 Badkamer(s)
- 2 Toilet(ten)
Beschrijving
EXTRA ACTIE:
Bij aankoop van een appartement krijgt u € 5000 korting op de autostandplaats
Mogelijkheid aankoop onder 6% BTW *
* Indien u aan de voorwaarden voldoet
=> Ligging
Dit nieuwbouw duplex-appartement is gelegen in blok A van residentie Prinsenhof. Het appartement is gelegen op een centrale en gezellige locatie aan het Kolonel Aertsplein. Op het plein is er een supermarkt, bakker, dokterspraktijk, ... Ook de Markt van Maaseik ligt op wandelafstand.
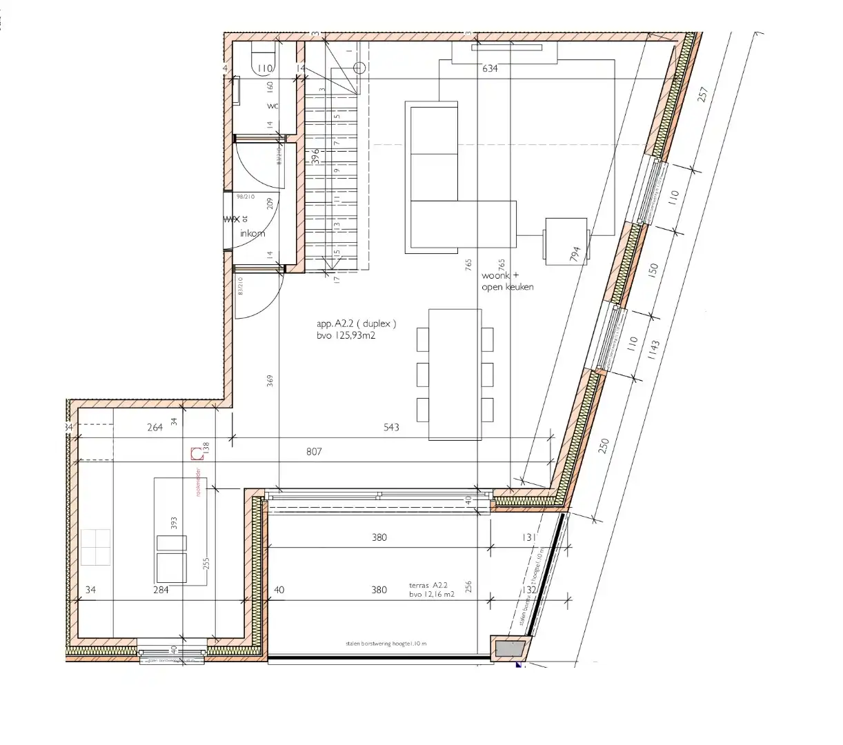
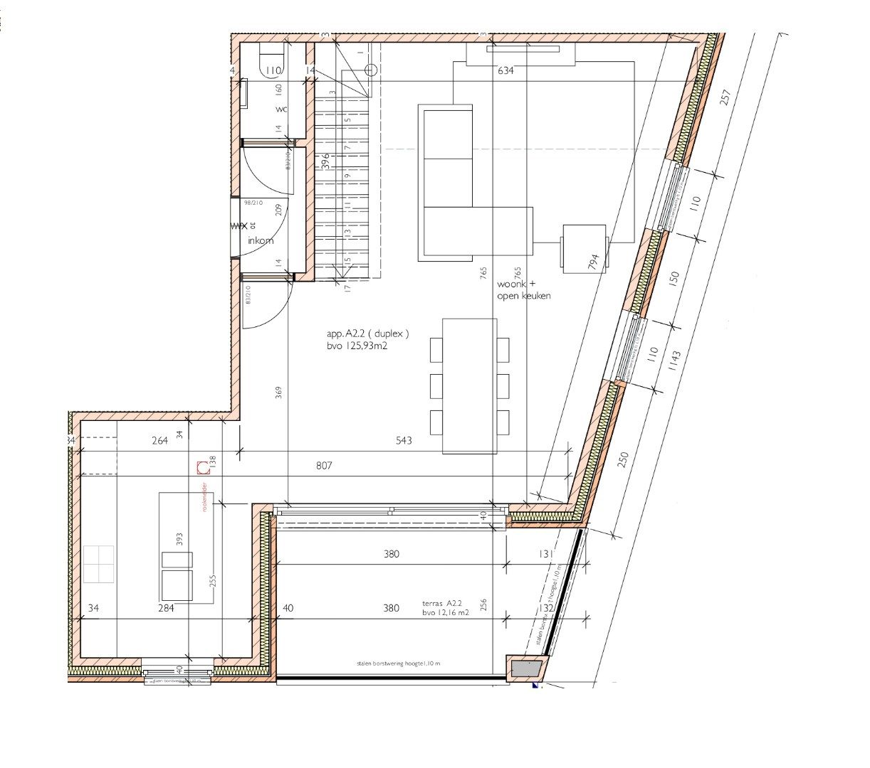
=> Tweede verdieping
- Inkomhal met apart toilet
- Open leefruimte met veel lichtinval door de grote raampartijen en toegang tot het overdekt terras
- Ingerichte keuken met koelkast, combi-oven, kookplaat, afzuigkap, vaatwasser en spoelbak
- Overdekt terras van 12,16m²
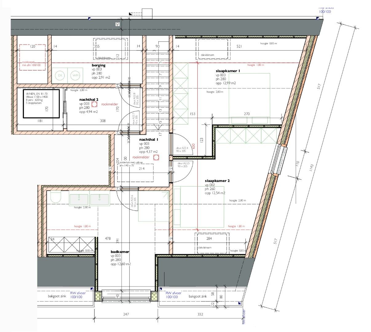
=> Derde verdieping
- Overloop
- Twee slaapkamers met laminaat
- Deels betegelde badkamer met ligbad, inloopdouche, toilet en dubbele wastafel
- Berging met aansluiting voor wasmachine
- Extra gang/ruimte met warmtepomp en toegang tot de lift
=> Kenmerken:
- Ventilatiesysteem D met warmterecuperatie
- De appartementen zijn voorzien van een zeer betrouwbare warmtepomp die zich kenmerkt door een laag E-peil en een stille werking. De hoge energie-efficiënte zorgt voor een gevoelige verlaging van het E-peil. De warmtepomp is bovendien de stilste warmtepomp in zijn soort die momenteel op de markt is. Zij voorziet de appartementen individueel van voldoende energie en van warm water dankzij een ingebouwde boiler.
- Lift en videofoon aanwezig
- Zonnepanelen op de platte daken
- Appartementen zijn zeer energiezuinig waardoor gunstige regeling onroerende voorheffing
=> Verkoopprijzen exclusief:
- Autostandplaats in kelder
- Privatieve kelderberging
Bij aankoop van een appartement krijgt u € 5000 korting op de autostandplaats
Mogelijkheid aankoop onder 6% BTW *
* Indien u aan de voorwaarden voldoet
=> Ligging
Dit nieuwbouw duplex-appartement is gelegen in blok A van residentie Prinsenhof. Het appartement is gelegen op een centrale en gezellige locatie aan het Kolonel Aertsplein. Op het plein is er een supermarkt, bakker, dokterspraktijk, ... Ook de Markt van Maaseik ligt op wandelafstand.
=> Tweede verdieping
- Inkomhal met apart toilet
- Open leefruimte met veel lichtinval door de grote raampartijen en toegang tot het overdekt terras
- Ingerichte keuken met koelkast, combi-oven, kookplaat, afzuigkap, vaatwasser en spoelbak
- Overdekt terras van 12,16m²
=> Derde verdieping
- Overloop
- Twee slaapkamers met laminaat
- Deels betegelde badkamer met ligbad, inloopdouche, toilet en dubbele wastafel
- Berging met aansluiting voor wasmachine
- Extra gang/ruimte met warmtepomp en toegang tot de lift
=> Kenmerken:
- Ventilatiesysteem D met warmterecuperatie
- De appartementen zijn voorzien van een zeer betrouwbare warmtepomp die zich kenmerkt door een laag E-peil en een stille werking. De hoge energie-efficiënte zorgt voor een gevoelige verlaging van het E-peil. De warmtepomp is bovendien de stilste warmtepomp in zijn soort die momenteel op de markt is. Zij voorziet de appartementen individueel van voldoende energie en van warm water dankzij een ingebouwde boiler.
- Lift en videofoon aanwezig
- Zonnepanelen op de platte daken
- Appartementen zijn zeer energiezuinig waardoor gunstige regeling onroerende voorheffing
=> Verkoopprijzen exclusief:
- Autostandplaats in kelder
- Privatieve kelderberging
Energie
- Beglazing: Standaard dubbel
Op de kaart

Financieel
| Prijs | |
|---|---|
| Kadastraal inkomen (niet geïndexeerd) | € 0 |
| Kadastraal inkomen (geïndexeerd) | € 0 |
Bijkomende info
Gebouw
| Bouwjaar | 2022 |
|---|---|
| Is beschermd | Nee |
| Bewoonbaar (m²) | 125.93 |
| Badkamers | 1 |
| Slaapkamers | 2 |
| Toiletten | 2 |
Ruimtes
| Terras | 12.16 m² |
|---|
Faciliteiten
| Materiaal ramenomlijstingen | PVC |
|---|---|
| Beglazing | Standaard dubbel |
| Luiken | Nee |
| Primaire verwarmingsbron | Bodemwater warmtepomp (geothermisch) |
Perceel
| Overstromingsgevoelig | Geen |
|---|---|
| P-score | B |
| G-score | B |
| Voorkeurrecht | Nee |
| Oppervlakte terras (m²) | 12 |
Vergunning
| Vergunning | Vergunning beschikbaar |
|---|---|
| Verkavelingsvergunning | Geen beschikbaar |
| Bouwovertreding dagvaardiging | Geen |
Uitrusting
| Meerdere eigenaars | Nee |
|---|---|
| Geschikt als kangoeroewoning | Nee |
| Geschikt voor rolstoelgebruikers | Nee |
| Geschikt voor praktijk | Nee |
| Volledig onderkelderd | Nee |
| Parking | Nee |
| Garage | Nee |
| Thuiskantoor | Nee |
| Kelder | Nee |
| Zolder | Nee |
| Opslagruimte | Nee |
| Tuin | Nee |
| Terras | Ja |
| Lift | Nee |
| Rioolaansluiting | Ja |
| Gasaansluiting | Ja |
| Wateraansluiting | Ja |
| Elektriciteitsaansluiting | Ja |
| TV aansluiting | Nee |
| Internetaansluiting | Nee |
| Zonnepanelen | Nee |
| Zonneboiler | Nee |
| Alarm | Nee |
| Zwembad | Nee |
| Jacuzzi | Nee |
| Toonzaal | Nee |
| Ventilatie | Nee |
Appartementsblok
| Lift | Nee |
|---|---|
| Intercom | Nee |
Een pand van
Nicole Janssen bvba
Nicole Janssen - de beste weg naar beter wonen.
Van plan om uw eigendom nu of later te verkopen? Begin dat niet zonder eerst bij vastgoedkantoor Nicole Janssen langs te gaan. Met plezier kom ik ter plaatse voor een schatting van uw eigendom. Dit is volledig gratis en verplicht u tot niets. Al vertel ik u er graag bij welke meerwaarde mijn vastgoedkantoor voor u betekent.
Bel 089 - 56 57 06, stuur een bericht of kom langs op ons kantoor in de Koning Albertlaan 6 in Maaseik (gratis parking voor de deur).
APP951
Leer meer over vastgoed
23 March 2026
Op Spotto zoeken als een pro: 10 slimme tips
21 March 2026
Hoeveel kan ik lenen om een huis te kopen?
01 March 2026
Wanneer heb ik een bouwvergunning of omgevingsvergunning nodig?
17 February 2026