Nieuw
Appartement op de eerste verdieping
Een pand van Nicole Janssen bvba
Overzicht
- 88.56 m² bewoonbaar
- 2 Slaapkamer(s)
- 1 Badkamer(s)
- 1 Toilet(ten)
Beschrijving
EXTRA ACTIE:
Bij aankoop van een appartement krijgt u € 5000 korting op de autostandplaats
Mogelijkheid aankoop onder 6% BTW *
* Indien u aan de voorwaarden voldoet
Residentie Prinsenhof is een uniek woonproject in hedendaagse architectuur en overtuigt topkwaliteit voor wat betreft de bouwtechniek, duurzaamheid, comfort en woongevoel in het centrum van Maaseik.
Deze appartementen geven het wonen in een stad een heel andere dimensie.
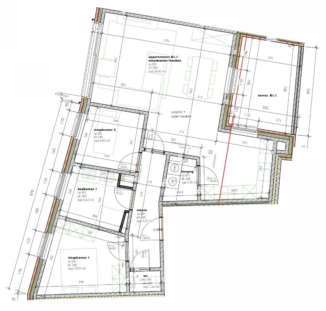
=> Indeling eerste verdieping
- Inkomhal
- Apart toilet
- Leefruimte met keuken
- Berging
- 2 slaapkamers
- Badkamer
- Terras van 11,26m²
=> Kenmerken:
- Ventilatiesysteem D met warmterecuperatie
- De appartementen zijn voorzien van een zeer betrouwbare warmtepomp die zich kenmerkt door een laag E-peil en een stille werking. De hoge energie-efficiënte zorgt voor een gevoelige verlaging van het E-peil. De warmtepomp is bovendien de stilste warmtepomp in zijn soort die momenteel op de markt is. Zij voorziet de appartementen individueel van voldoende energie en van warm water dankzij een ingebouwde boiler.
- Lift en videofoon aanwezig
- Zonnepanelen op de platte daken
- Appartementen zijn zeer energiezuinig waardoor gunstige regeling onroerende voorheffing
=> Keuze afwerking:
De snelle beslisser heeft mee inspraak in de eindafwerking bij de gekozen leveranciers:
- Binnendeuren
- Keramische tegelvloer doorheen het gehele appartement
- Keuken
- Badkamer
=> Verkoopprijzen exclusief:
- Autostandplaats in kelder
- Privatieve kelderberging
Bij aankoop van een appartement krijgt u € 5000 korting op de autostandplaats
Mogelijkheid aankoop onder 6% BTW *
* Indien u aan de voorwaarden voldoet
Residentie Prinsenhof is een uniek woonproject in hedendaagse architectuur en overtuigt topkwaliteit voor wat betreft de bouwtechniek, duurzaamheid, comfort en woongevoel in het centrum van Maaseik.
Deze appartementen geven het wonen in een stad een heel andere dimensie.
=> Indeling eerste verdieping
- Inkomhal
- Apart toilet
- Leefruimte met keuken
- Berging
- 2 slaapkamers
- Badkamer
- Terras van 11,26m²
=> Kenmerken:
- Ventilatiesysteem D met warmterecuperatie
- De appartementen zijn voorzien van een zeer betrouwbare warmtepomp die zich kenmerkt door een laag E-peil en een stille werking. De hoge energie-efficiënte zorgt voor een gevoelige verlaging van het E-peil. De warmtepomp is bovendien de stilste warmtepomp in zijn soort die momenteel op de markt is. Zij voorziet de appartementen individueel van voldoende energie en van warm water dankzij een ingebouwde boiler.
- Lift en videofoon aanwezig
- Zonnepanelen op de platte daken
- Appartementen zijn zeer energiezuinig waardoor gunstige regeling onroerende voorheffing
=> Keuze afwerking:
De snelle beslisser heeft mee inspraak in de eindafwerking bij de gekozen leveranciers:
- Binnendeuren
- Keramische tegelvloer doorheen het gehele appartement
- Keuken
- Badkamer
=> Verkoopprijzen exclusief:
- Autostandplaats in kelder
- Privatieve kelderberging
Energie
- Beglazing: Standaard dubbel
Op de kaart

Financieel
| Prijs | |
|---|---|
| Kadastraal inkomen (niet geïndexeerd) | € 0 |
| Kadastraal inkomen (geïndexeerd) | € 0 |
Bijkomende info
Gebouw
| Bouwjaar | 2022 |
|---|---|
| Is beschermd | Nee |
| Bewoonbaar (m²) | 88.56 |
| Verdieping | 0 |
| Badkamers | 1 |
| Slaapkamers | 2 |
| Toiletten | 1 |
Ruimtes
| Terras | 11.26 m² |
|---|
Faciliteiten
| Materiaal ramenomlijstingen | PVC |
|---|---|
| Beglazing | Standaard dubbel |
| Luiken | Nee |
| Primaire verwarmingsbron | EXTRA_INFO.OUTFITTING.VALUE.HEATPUMPAIRGROUNDWATER |
Perceel
| Overstromingsgevoelig | Geen |
|---|---|
| P-score | B |
| G-score | B |
| Voorkeurrecht | Nee |
| Oppervlakte terras (m²) | 11 |
Vergunning
| Vergunning | Vergunning beschikbaar |
|---|---|
| Verkavelingsvergunning | Geen beschikbaar |
| Bouwovertreding dagvaardiging | Geen |
Uitrusting
| Meerdere eigenaars | Nee |
|---|---|
| Geschikt als kangoeroewoning | Nee |
| Geschikt voor rolstoelgebruikers | Nee |
| Geschikt voor praktijk | Nee |
| Volledig onderkelderd | Nee |
| Parking | Nee |
| Garage | Nee |
| Thuiskantoor | Nee |
| Kelder | Nee |
| Zolder | Nee |
| Opslagruimte | Nee |
| Tuin | Nee |
| Terras | Ja |
| Lift | Nee |
| Rioolaansluiting | Ja |
| Gasaansluiting | Nee |
| Wateraansluiting | Ja |
| Elektriciteitsaansluiting | Ja |
| TV aansluiting | Nee |
| Internetaansluiting | Nee |
| Zonnepanelen | Nee |
| Zonneboiler | Nee |
| Alarm | Nee |
| Zwembad | Nee |
| Jacuzzi | Nee |
| Toonzaal | Nee |
| Ventilatie | Nee |
Appartementsblok
| Lift | Nee |
|---|---|
| Intercom | Nee |
Een pand van
Nicole Janssen bvba
Nicole Janssen - de beste weg naar beter wonen.
Van plan om uw eigendom nu of later te verkopen? Begin dat niet zonder eerst bij vastgoedkantoor Nicole Janssen langs te gaan. Met plezier kom ik ter plaatse voor een schatting van uw eigendom. Dit is volledig gratis en verplicht u tot niets. Al vertel ik u er graag bij welke meerwaarde mijn vastgoedkantoor voor u betekent.
Bel 089 - 56 57 06, stuur een bericht of kom langs op ons kantoor in de Koning Albertlaan 6 in Maaseik (gratis parking voor de deur).
APP948
Leer meer over vastgoed
24 November 2025
Uitgezocht voor jouw gemeente: Hoeveel stijgt de waarde van je woning door een renovatie?
22 October 2025
Hoeveel kan ik lenen om een huis te kopen?
11 June 2025
Huis kopen met bouwovertreding? Dit moet je weten
11 May 2025