Exclusief appartement van 164,88 m2 met 2 terrassen in centrum Maaseik
€ 440.000
Een pand van Frère Vastgoed
Overzicht
- 164.88 m² bewoonbaar
- 164 m² grond
- 3 Slaapkamer(s)
- 2 Badkamer(s)
- 1 Toilet(ten)
Beschrijving
Welkom op de Marktstraat 3 bus 2.1 in Maaseik (centrum).
Bent u op zoek naar een luxueus ingericht appartement in het centrum van Maaseik?
Bent u op zoek naar een ruim appartement met 3 slaapkamers en 2 badkamers?
Dan is dit recent duplex appartement van 164,88 m² precies wat u zoekt!
Dit bijzonder duplex appartement is gelegen in een kleinschalige residentie, dewelke beschikt over een lift dat via een private sleutel rechtstreeks toegang biedt tot het 2de en 3de verdiep.
Dit luxueus appartement beschikt over een bruikbare vloeroppervlakte van 164,88 m², exclusief een terras van 9,65 m² en een terras van 7,88 m².
Het resultaat? Een appartement waar jong en oud zich meteen thuis voelt.
Ontdek het appartement alvast via de virtuele rondleiding:
👉 https://player.vimeo.com/video/1117767537
Troeven van het appartement
✔ TOP ligging: centrum van Maaseik
✔ Privé lift tot 2de en 3de verdiep
✔ Luxueuze afwerking (parket, inbouwkasten, ...)
✔ Woonoppervlakte: 164,88 m²
✔ Vloerverwarming aanwezig op elk verdiep
✔ Bijzonder laag E-peil: A-label (67 kWh/m²)
✔ 2 terrassen
✔ 3 slaapkamers
✔ 2 badkamers
Indeling
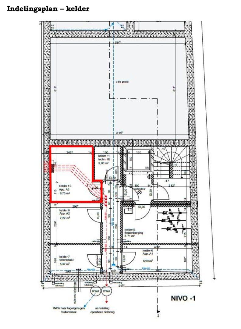
Kelder :
In de kelder is er een berging van 8,75 m² ter beschikking.
2de verdiep:
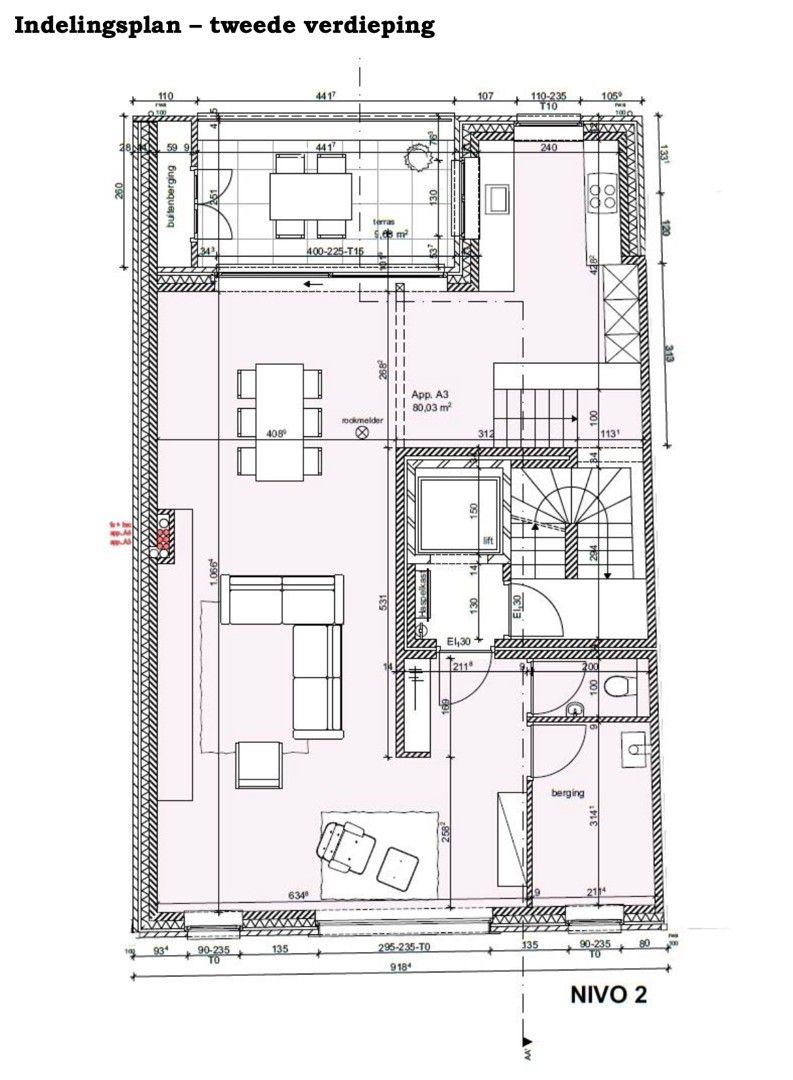
U komt het appartement binnen via de centrale inkomhal op het gelijkvloers.
Vanuit uw privé hal met apart toilet, komt u in de ruime woonkamer met een panoramisch raam.
Aansluiten heeft u de volledig ingerichte keuken met koelkast, oven, keramische kookplaats, afzuigkap, vaatwasser en spoelbak.
De woonkamer geeft toegang tot het overdekt terras van 9,65 m².
Naast de woonkamer is er nog een berging voorzien met o.a. een hoogrendementsketel op aardgas en de aansluitingen voor het wasmachine en de droogkast.
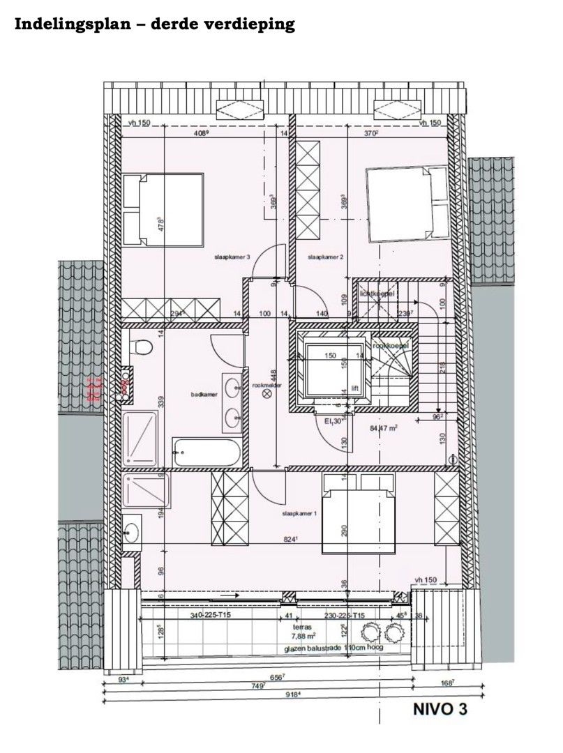
2de verdiep:
Via de vaste trap of de privé lift bereikt u de derde verdieping.
Aan de voorkant van het gebouw beschikt u over een slaapkamer/dressing met badkamer, dewelke toegang geeft tot het terras van 7,88 m². Vanop het terras heeft u een mooi zicht op de Markt van Maaseik.
Deze badkamer is voorzien van een inloopdouche en een enkele wastafel in meubel.
Daarnaast beschikt u over twee ruime slaapkamers, waarvan één kamer ingericht is als dressing.
De tweede badkamer is voorzien van een ligbad, douche, toilet en dubbele wastafel in badkamermeubel.
Documenten
Het EPC-verslag, de elektrische keuring en de grondplannen kan u eenvoudig downloaden in bijlage.
Interesse in een bezichtiging?
Bel ons via 089 391 555 of mail naar info@frerevastgoed.be.
* Opmetingen van de binnenmaten zijn indicatief en kunnen licht afwijken.
Bent u op zoek naar een luxueus ingericht appartement in het centrum van Maaseik?
Bent u op zoek naar een ruim appartement met 3 slaapkamers en 2 badkamers?
Dan is dit recent duplex appartement van 164,88 m² precies wat u zoekt!
Dit bijzonder duplex appartement is gelegen in een kleinschalige residentie, dewelke beschikt over een lift dat via een private sleutel rechtstreeks toegang biedt tot het 2de en 3de verdiep.
Dit luxueus appartement beschikt over een bruikbare vloeroppervlakte van 164,88 m², exclusief een terras van 9,65 m² en een terras van 7,88 m².
Het resultaat? Een appartement waar jong en oud zich meteen thuis voelt.
Ontdek het appartement alvast via de virtuele rondleiding:
👉 https://player.vimeo.com/video/1117767537
Troeven van het appartement
✔ TOP ligging: centrum van Maaseik
✔ Privé lift tot 2de en 3de verdiep
✔ Luxueuze afwerking (parket, inbouwkasten, ...)
✔ Woonoppervlakte: 164,88 m²
✔ Vloerverwarming aanwezig op elk verdiep
✔ Bijzonder laag E-peil: A-label (67 kWh/m²)
✔ 2 terrassen
✔ 3 slaapkamers
✔ 2 badkamers
Indeling
Kelder :
In de kelder is er een berging van 8,75 m² ter beschikking.
2de verdiep:
U komt het appartement binnen via de centrale inkomhal op het gelijkvloers.
Vanuit uw privé hal met apart toilet, komt u in de ruime woonkamer met een panoramisch raam.
Aansluiten heeft u de volledig ingerichte keuken met koelkast, oven, keramische kookplaats, afzuigkap, vaatwasser en spoelbak.
De woonkamer geeft toegang tot het overdekt terras van 9,65 m².
Naast de woonkamer is er nog een berging voorzien met o.a. een hoogrendementsketel op aardgas en de aansluitingen voor het wasmachine en de droogkast.
2de verdiep:
Via de vaste trap of de privé lift bereikt u de derde verdieping.
Aan de voorkant van het gebouw beschikt u over een slaapkamer/dressing met badkamer, dewelke toegang geeft tot het terras van 7,88 m². Vanop het terras heeft u een mooi zicht op de Markt van Maaseik.
Deze badkamer is voorzien van een inloopdouche en een enkele wastafel in meubel.
Daarnaast beschikt u over twee ruime slaapkamers, waarvan één kamer ingericht is als dressing.
De tweede badkamer is voorzien van een ligbad, douche, toilet en dubbele wastafel in badkamermeubel.
Documenten
Het EPC-verslag, de elektrische keuring en de grondplannen kan u eenvoudig downloaden in bijlage.
Interesse in een bezichtiging?
Bel ons via 089 391 555 of mail naar info@frerevastgoed.be.
* Opmetingen van de binnenmaten zijn indicatief en kunnen licht afwijken.
Energie
![]() |
- EPC Certificaat: 72021-G-DBA_2017008966/EP17609/A002/D01/SD004
- Energieverbruik: 67 kWh/m²/jaar
- E-peil: E45
- Beglazing: Onbekend
Op de kaart

Financieel
| Prijs | |
|---|---|
| Kadastraal inkomen (niet geïndexeerd) | € 1.210 |
Berekening kosten
Je aankoopkosten? Die heb je snel berekent via de knop hieronder.
Bijkomende info
Gebouw
| Bouwjaar | 2019 |
|---|---|
| Staat | Zo goed als nieuw |
| Bewoonbaar (m²) | 164.88 |
| Verdieping | 2 |
| Badkamers | 2 |
| Slaapkamers | 3 |
| Verdiepingen | 0 |
| Garages | 0 |
| Parkeerplaatsen | 0 |
| Toiletten | 1 |
Faciliteiten
| Septische tank | Nee |
|---|
Perceel
| P-score | A |
|---|---|
| G-score | A |
| Totale oppervlakte (m²) | 164 |
| Bebouwde oppervlakte (m²) | 182 |
| Oppervlakte terras (m²) | 0 |
Vergunning
| Verkavelingsvergunning | Geen beschikbaar |
|---|
Uitrusting
| Investeringspand | Nee |
|---|---|
| Parking | Nee |
| Garage | Nee |
| Opslagruimte | Ja |
| Terras | Ja |
| Lift | Ja |
| Rioolaansluiting | Ja |
| Gasaansluiting | Ja |
| Wateraansluiting | Ja |
| Elektriciteitsaansluiting | Ja |
| Internetaansluiting | Ja |
| Telefoonaansluiting | Ja |
| Zonnepanelen | Nee |
| Zonneboiler | Nee |
| Alarm | Nee |
| Videofoon | Ja |
| Grondwaterput | Ja |
Appartementsblok
| Lift | Ja |
|---|---|
| Intercom | Nee |
Een pand van
Frère Vastgoed
Welkom bij Frère Vastgoed.
Frère Vastgoed is uw partner bij de verkoop, verhuur of aankoop van elk type vastgoed.
Het verkopen, verhuren of aankopen van vastgoed is een ingewikkeld proces.
Frère Vastgoed helpt u graag met een resultaatgerichte en persoonlijke begeleiding bij één van de belangrijkste transacties in uw leven.
Marktstraat 3 bus 2.1, Maaseik.
Leer meer over vastgoed
24 November 2025
Uitgezocht voor jouw gemeente: Hoeveel stijgt de waarde van je woning door een renovatie?
22 October 2025
Hoeveel kan ik lenen om een huis te kopen?
11 June 2025
Huis kopen met bouwovertreding? Dit moet je weten
11 May 2025
