Bouwgrond Halfopen Bebouwing in Zutendaal, 776 m
€ 163.900
Een pand van Millennium Vastgoed
Overzicht
- 776 m² grond
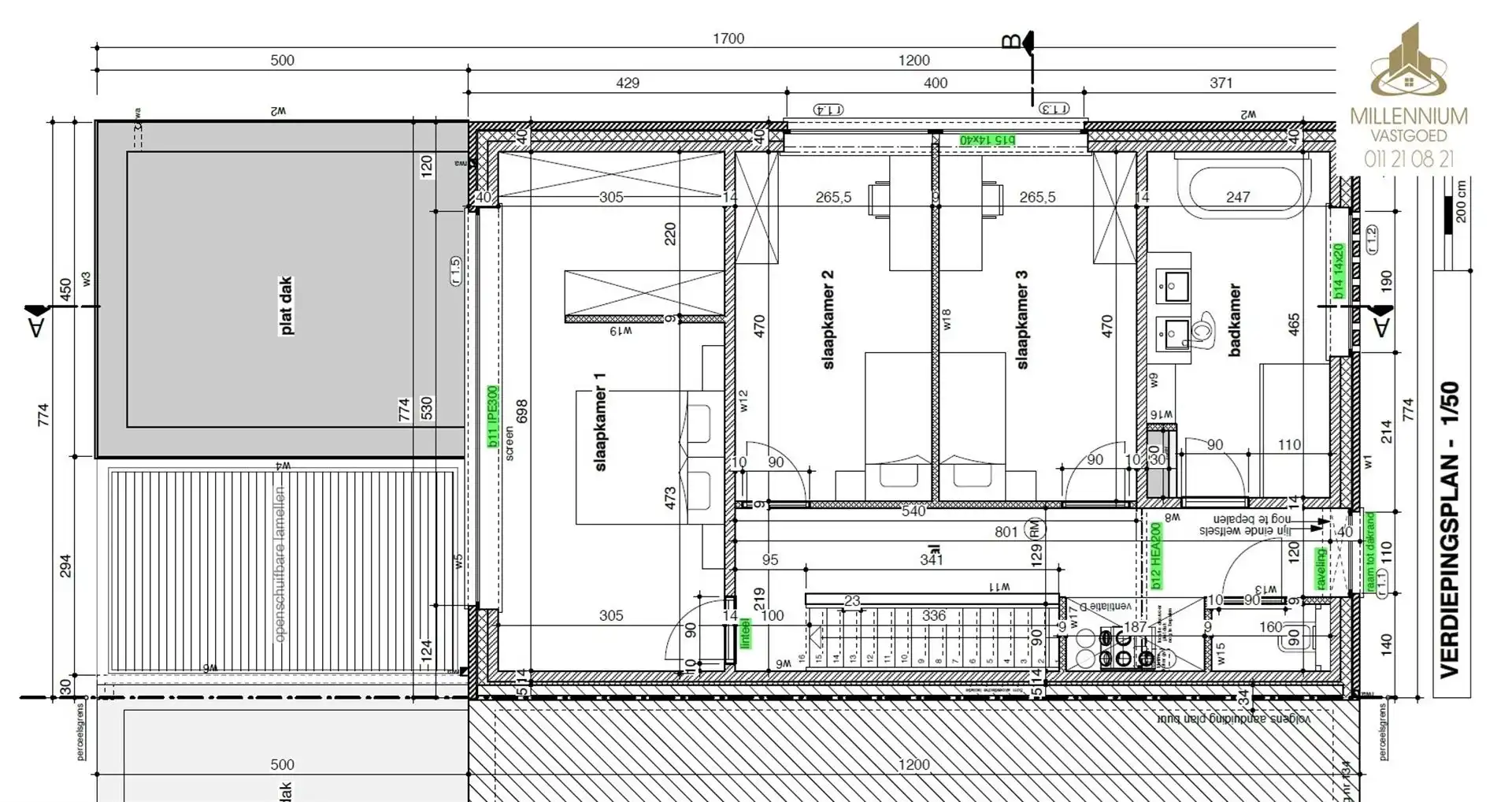
- 3 Slaapkamer(s)
- 1 Badkamer(s)
- 2 Toilet(ten)
- 1 Tuin
- 1 Garage(s)
Beschrijving
Ruim en direct bebouwbaar perceel (776 m²) op de grens van Zutendaal en Lanaken
Bent u op zoek naar een bouwgrond waarop u zonder wachttijd kunt starten met het realiseren van uw droomwoning? Dit halfopen perceel van 776 m² bevindt zich in een rustige, groene omgeving met een vlotte verbinding naar Maasmechelen, Genk en Nederland. Dankzij zijn westelijke oriëntatie en uitzonderlijke perceeldiepte biedt dit terrein een optimale leefkwaliteit en maximale privacy.
Troeven van het perceel
- Bestemd voor halfopen bebouwing met moderne architectuur (plat dak toegestaan)
- Westgerichte tuin: ideaal om te genieten van middag- en avondzon
- Volledige privacy dankzij achterliggende landbouwzone
- Uitzonderlijke perceeldiepte van 70 m
- Goedgekeurde bouwplannen inbegrepen – bouwen kan onmiddellijk starten
- Kapvergunning voor de bestaande eik reeds goedgekeurd
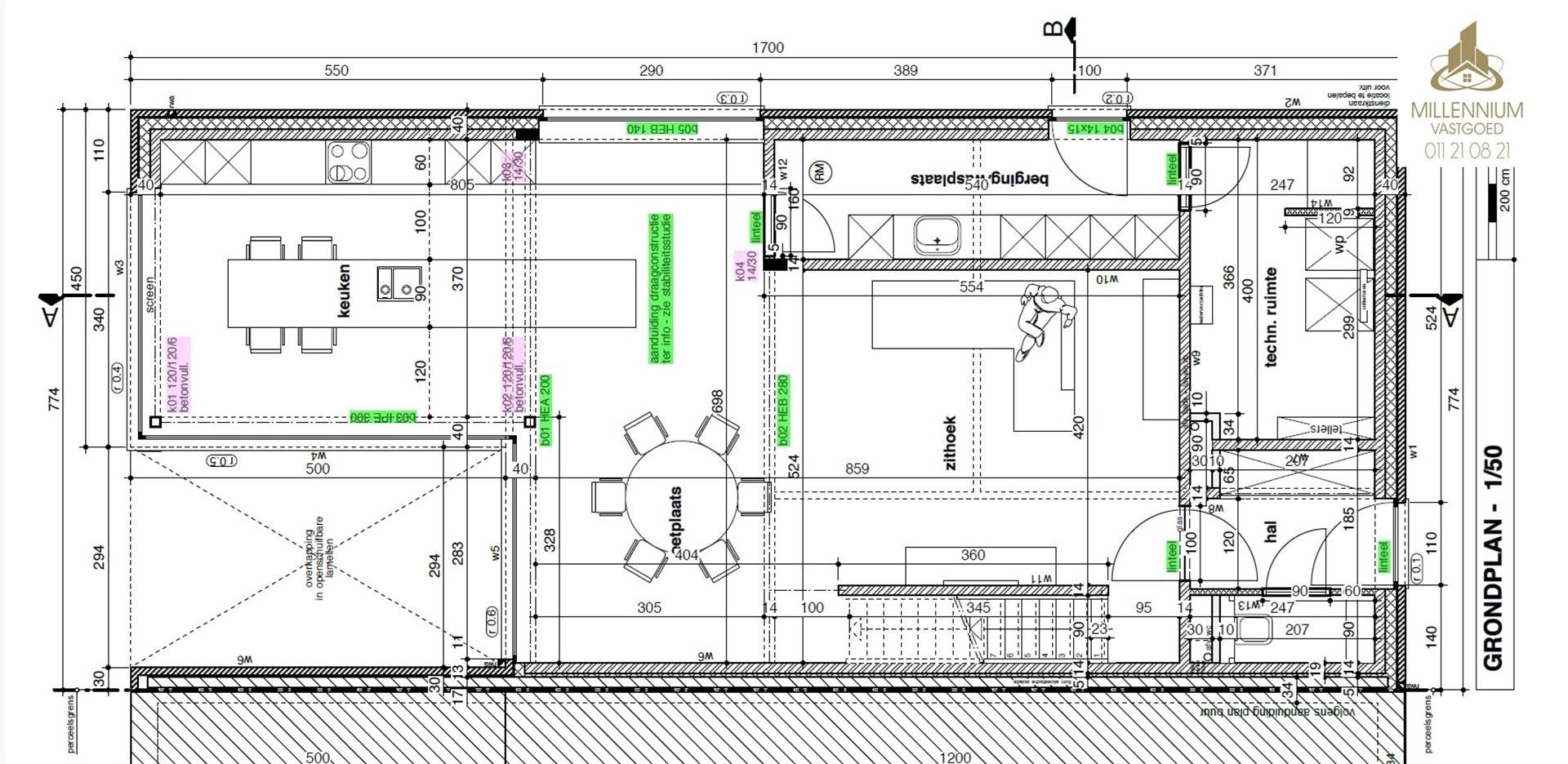
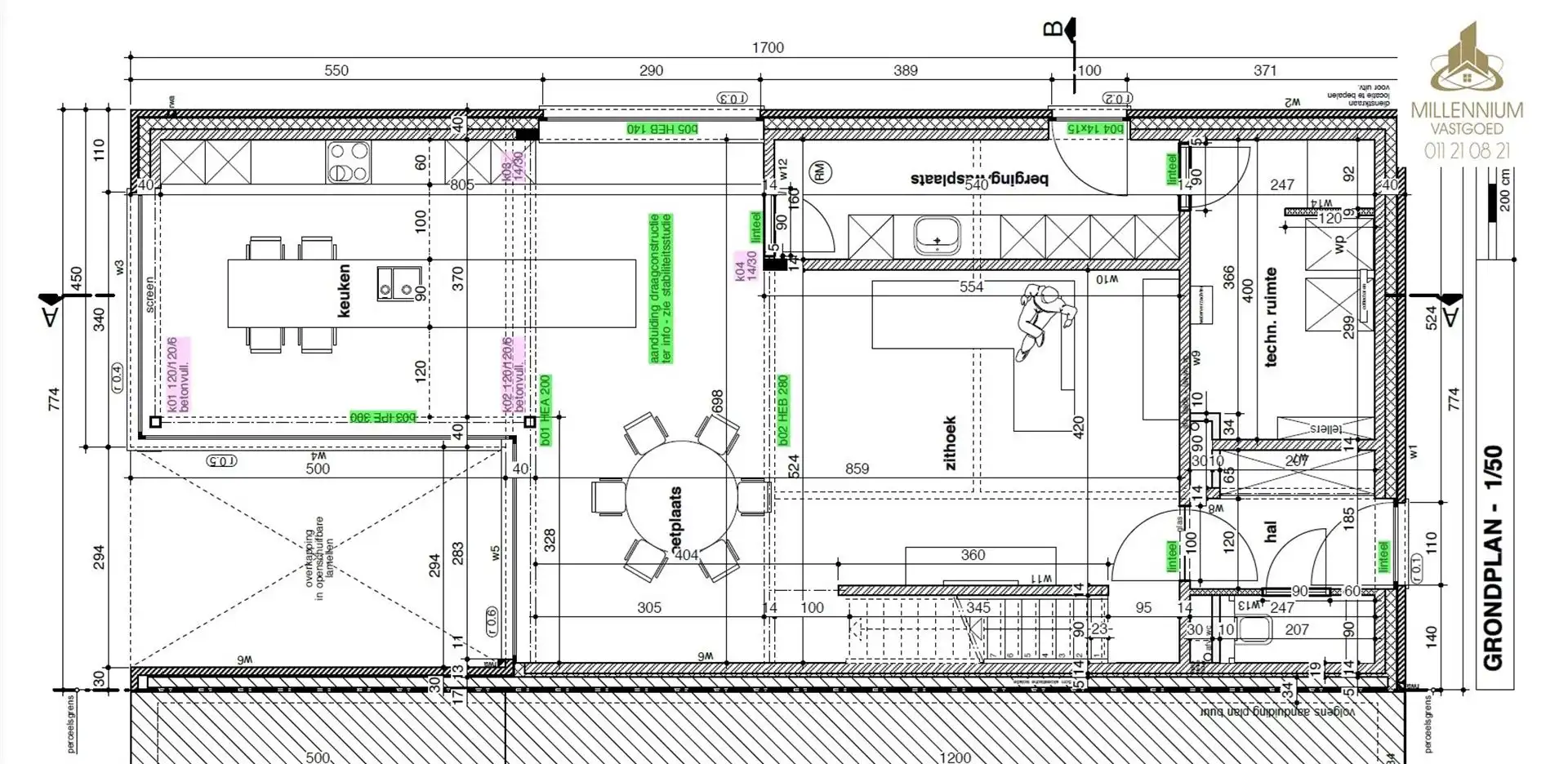
Afmetingen & Kenmerken
- Perceelbreedte: 11 m
- Perceeldiepte: 70 m
- Totale oppervlakte: 776 m²
Bouwvoorschriften
- Maximale bouwbreedte: 7,74 m
- Maximale bouwdiepte gelijkvloers: 17 m
- Maximale bouwdiepte verdieping: 12 m
- Geschikt voor een moderne halfopen woning met plat dak
Documenten & Vergunningen
- Volledig goedgekeurde bouwvergunning
- Alle plannen, voorschriften en studies op aanvraag beschikbaar
- Geen wachttijd: onmiddellijk starten met bouwen mogelijk
- Kapvergunning voor de eik reeds verleend
Deze bouwgrond wordt exclusief aangeboden door Millennium Vastgoed. Aarzel niet en contacteer ons nu voor meer informatie over deze bouwgrond!
Heeft u nood aan een nieuwe woning, bent u misschien zelf handig, en zoekt u een gezellige woning in Zutendaal? Dan vindt u hier zeker uw gading.
Deze bouwgrond wordt exclusief aangeboden door Millennium Vastgoed.
Aarzel niet en contacteer ons nu voor een afspraak op 011 21 08 21 of info@MillenniumVastgoed.Be
Energie
- E-peil: E0
- Beglazing: Onbekend
Op de kaart

Financieel
| Prijs | |
|---|---|
| Kadastraal inkomen (niet geïndexeerd) | € 0 |
| Kadastraal inkomen (geïndexeerd) | € 0 |
Berekening kosten
Je aankoopkosten? Die heb je snel berekent via de knop hieronder.
Bijkomende info
Gebouw
| Bouwcertificaat | Nee |
|---|
Perceel
| Diepte (m) | 70 |
|---|---|
| Breedte (m) | 11 |
| Overstromingsgevoelig | Geen |
| P-score | A |
| Voorkeurrecht | Nee |
| Totale oppervlakte (m²) | 776 |
| Oriëntatie tuin | Zuidwest |
Vergunning
| Vergunning | Vergunning beschikbaar |
|---|---|
| Verkavelingsvergunning | Vergunning beschikbaar |
Uitrusting
| Investeringspand | Nee |
|---|---|
| Rioolaansluiting | Ja |
| Gasaansluiting | Ja |
| Wateraansluiting | Ja |
| Elektriciteitsaansluiting | Ja |
| TV aansluiting | Ja |
| Internetaansluiting | Ja |
| Telefoonaansluiting | Ja |