Vrijstaande nieuwbouwwoning
€ 359.000
Een pand van Nicole Janssen bvba
Favoriet
Jouw zoektocht
Jouw scoretabel voor dit pand
Aan het laden...
Jouw geplande bezichtigingen
Aan het laden...
Overzicht
- 112 m² bewoonbaar
- 352 m² grond
- 3 Slaapkamer(s)
- 1 Badkamer(s)
- 2 Toilet(ten)
- 1 Tuin
Beschrijving
Deze nieuwbouwwoning in Hoeselt is lichtrijk, modern en instapklaar. U geniet van een open leefruimte met grote ramen, een stijlvolle open keuken en drie comfortabele slaapkamers. De woning is afgewerkt met kwaliteitsvolle materialen en biedt alle hedendaags comfort. Het kan bovendien ook perfect dienen als investeringspand.
De woning ligt in een rustige, kindvriendelijke omgeving met vlotte verbinding naar Bilzen, Hasselt en Tongeren. Winkels, scholen en natuur liggen binnen handbereik. Ideaal voor jonge gezinnen of koppels die op zoek zijn naar comfort en kwaliteit in een groene omgeving.
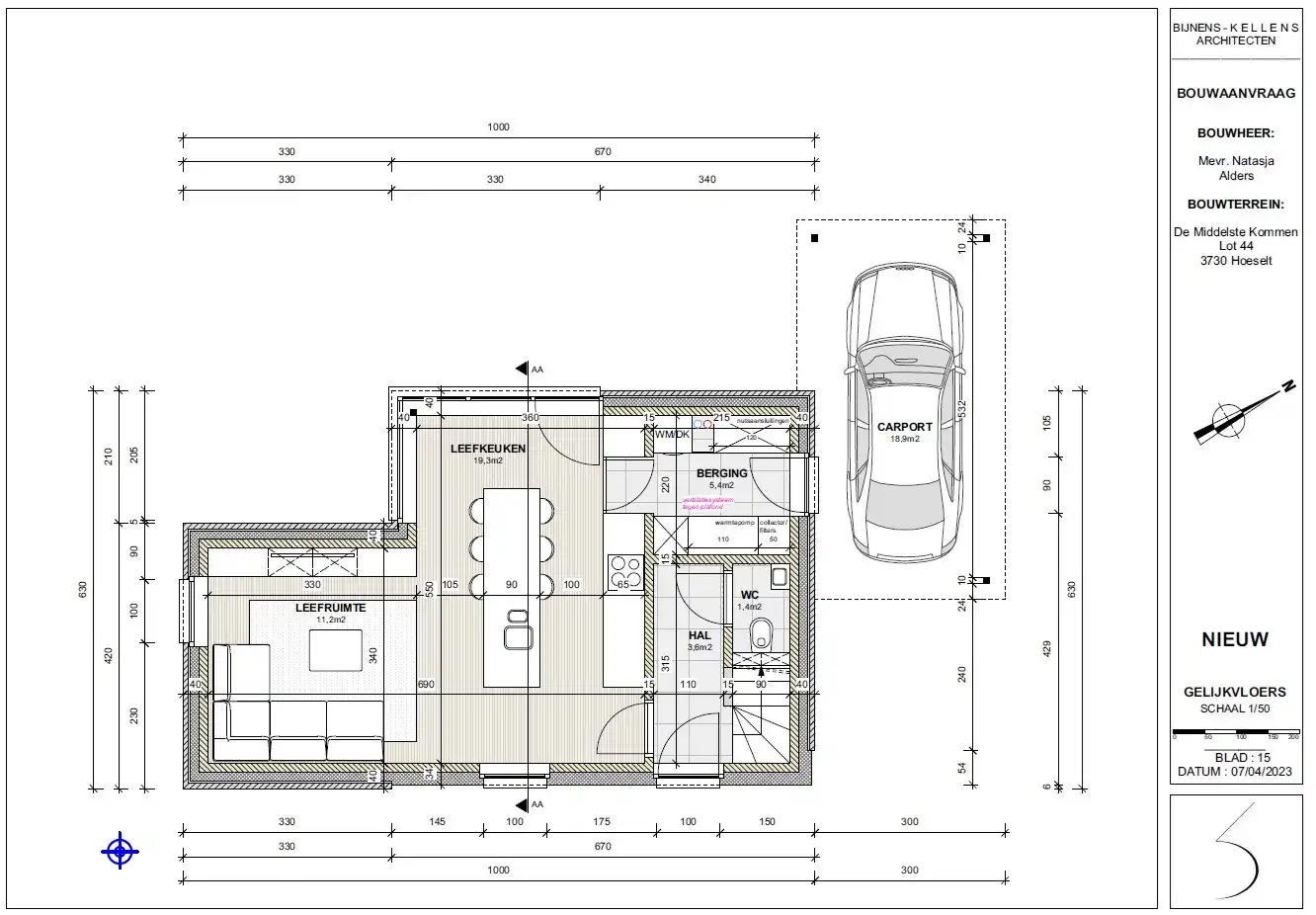
=> Gelijkvloers
- U komt binnen in de inkomhal die u toegang verleent tot de gezellige woonkamer
- Open keuken met zicht op de tuin
- Praktische keuken met keukeneiland en voorzien van het nodige comfort
- Apart toilet
- Berging/wasplaats
=> Verdieping
- Overloop
- Apart toilet
- Drie slaapkamers, eventueel kan de kleinste slaapkamer als bureau dienen met zicht over het heuvelachtig landschap
- Badkamer
=> Tuin
- Carport -- vergunning werd afgeleverd, te voorzien door koper
- Tuinaanleg -- te voorzien door de koper dus nog volledig naar eigen wens in te richten
=> Indeling
- Gelijkvloers: inkomhal, apart toilet, woonkamer met open keuken, berging/wasplaats
- Verdieping: overloop, apart toilet, drie slaapkamers, badkamer
- Tuin
De woning ligt in een rustige, kindvriendelijke omgeving met vlotte verbinding naar Bilzen, Hasselt en Tongeren. Winkels, scholen en natuur liggen binnen handbereik. Ideaal voor jonge gezinnen of koppels die op zoek zijn naar comfort en kwaliteit in een groene omgeving.
=> Gelijkvloers
- U komt binnen in de inkomhal die u toegang verleent tot de gezellige woonkamer
- Open keuken met zicht op de tuin
- Praktische keuken met keukeneiland en voorzien van het nodige comfort
- Apart toilet
- Berging/wasplaats
=> Verdieping
- Overloop
- Apart toilet
- Drie slaapkamers, eventueel kan de kleinste slaapkamer als bureau dienen met zicht over het heuvelachtig landschap
- Badkamer
=> Tuin
- Carport -- vergunning werd afgeleverd, te voorzien door koper
- Tuinaanleg -- te voorzien door de koper dus nog volledig naar eigen wens in te richten
=> Indeling
- Gelijkvloers: inkomhal, apart toilet, woonkamer met open keuken, berging/wasplaats
- Verdieping: overloop, apart toilet, drie slaapkamers, badkamer
- Tuin
Energie
![]() |
- EPC Certificaat: 73032-G-OMV_2023048719/EP07397/A001/D01/SD001
- E-peil: E26
- Beglazing: Standaard dubbel
Op de kaart

Downloads
- Plannen.pdf (PDF)
- Elektrische keuring.pdf (PDF)
- Keuring riolering.pdf (PDF)
- Hoeselt Fresialaan 13.pdf (PDF)
Financieel
| Prijs | |
|---|---|
| Kadastraal inkomen (niet geïndexeerd) | € 0 |
| Kadastraal inkomen (geïndexeerd) | € 0 |
Berekening kosten
Je aankoopkosten? Die heb je snel berekend via de knop hieronder.
Bijkomende info
Gebouw
| Bouwjaar | 2024 |
|---|---|
| Is beschermd | Nee |
| Bewoonbaar (m²) | 112 |
| Badkamers | 1 |
| Slaapkamers | 3 |
| Toiletten | 2 |
Faciliteiten
| Materiaal ramenomlijstingen | PVC |
|---|---|
| Beglazing | Standaard dubbel |
| Luiken | Nee |
| Primaire verwarmingsbron | Bodemwater warmtepomp (geothermisch) |
| Warm water type | Geen verwarming |
Perceel
| Overstromingsgevoelig | Geen |
|---|---|
| P-score | A |
| G-score | A |
| Voorkeurrecht | Nee |
| Totale oppervlakte (m²) | 352 |
| Oriëntatie tuin | Zuidwest |
Vergunning
| Vergunning | Vergunning beschikbaar |
|---|---|
| Verkavelingsvergunning | Vergunning beschikbaar |
| Bouwovertreding dagvaardiging | Geen |
| Type gebied | Stedelijk |
Uitrusting
| Meerdere eigenaars | Nee |
|---|---|
| Geschikt als kangoeroewoning | Nee |
| Geschikt voor rolstoelgebruikers | Nee |
| Geschikt voor praktijk | Nee |
| Volledig onderkelderd | Nee |
| Parking | Nee |
| Garage | Nee |
| Thuiskantoor | Nee |
| Kelder | Nee |
| Zolder | Nee |
| Opslagruimte | Nee |
| Tuin | Ja |
| Terras | Nee |
| Lift | Nee |
| Rioolaansluiting | Ja |
| Gasaansluiting | Nee |
| Wateraansluiting | Ja |
| Elektriciteitsaansluiting | Ja |
| TV aansluiting | Nee |
| Internetaansluiting | Nee |
| Zonnepanelen | Nee |
| Zonneboiler | Nee |
| Alarm | Nee |
| Zwembad | Nee |
| Jacuzzi | Nee |
| Toonzaal | Nee |
| Ventilatie | Nee |
Een pand van
Nicole Janssen bvba
Nicole Janssen - de beste weg naar beter wonen.
Van plan om uw eigendom nu of later te verkopen? Begin dat niet zonder eerst bij vastgoedkantoor Nicole Janssen langs te gaan. Met plezier kom ik ter plaatse voor een schatting van uw eigendom. Dit is volledig gratis en verplicht u tot niets. Al vertel ik u er graag bij welke meerwaarde mijn vastgoedkantoor voor u betekent.
Bel 089 - 56 57 06, stuur een bericht of kom langs op ons kantoor in de Koning Albertlaan 6 in Maaseik (gratis parking voor de deur).
WON1733
Leer meer over vastgoed
23 March 2026
Op Spotto zoeken als een pro: 10 slimme tips
21 March 2026
Hoeveel kan ik lenen om een huis te kopen?
01 March 2026
Wanneer heb ik een bouwvergunning of omgevingsvergunning nodig?
17 February 2026
