Mooi perceel bouwgrond met diepe tuin en zicht op groen
€ 85.000
Een pand van LEROI IMMOBILIËN
Favoriet
Jouw zoektocht
Jouw scoretabel voor dit pand
Aan het laden...
Jouw geplande bezichtigingen
Aan het laden...
Overzicht
- 690 m² grond
- 1 Tuin
Beschrijving
Bezoek dit perceel rechtstreeks op de website van Immo Leroi: https://www.immo-leroi.be/pand/kopen-grond-hoeselt/6760095
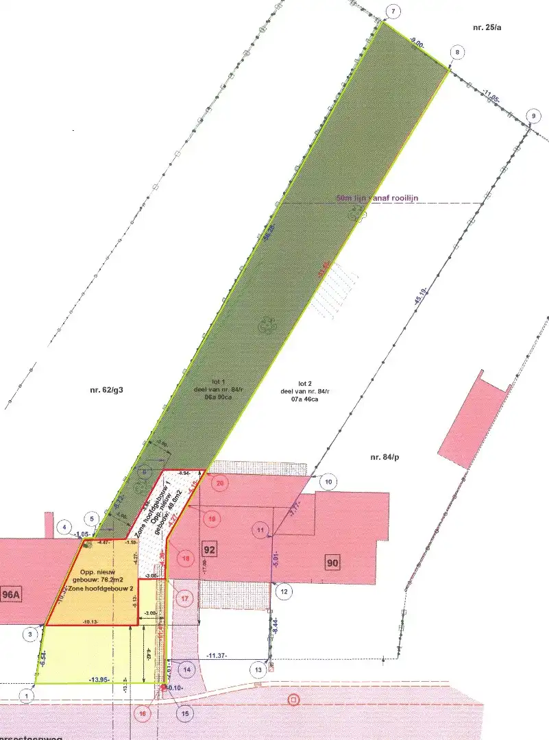
Dit bouwperceel komt in aanmerking voor een zeer ruime woning met 2 volumes, zie het plan hierbij.
Het grondperceel heeft een diepe tuin (in totaal ongeveer 65m en een breedte van 9 meter) met zicht op fruitbomen en weiland.
De oppervlakte bedraagt 6a 90ca, met een breedte aan de straat van 13m95.
De op te richten woning heeft een bouwbreedte van 13m13:
- het hoofdgebouw (gele kleur) heeft een breedte van 10m13 en een bouwdiepte van ongeveer 10 meter met 2 verdiepingen;
- de achterbouw (witte kleur) heeft een bouwdiepte van ongeveer 8 meter met 1 verdieping.
Hierdoor krijgt de woning de uitstraling van een half open bebouwing met meer ruimte voor ramen en lichtinval!
GEEN BOUWVERPLICHTING.
Het perceel is gelegen in woongebied met landelijk karakter, het gedeelte achter de vijftig meter in agrarisch gebied.
INTERESSE? Maak telefonisch een afspraak op het nummer 012 23 00 23 of mail uw vragen aan roland@immo-leroi.be.
Dit bouwperceel komt in aanmerking voor een zeer ruime woning met 2 volumes, zie het plan hierbij.
Het grondperceel heeft een diepe tuin (in totaal ongeveer 65m en een breedte van 9 meter) met zicht op fruitbomen en weiland.
De oppervlakte bedraagt 6a 90ca, met een breedte aan de straat van 13m95.
De op te richten woning heeft een bouwbreedte van 13m13:
- het hoofdgebouw (gele kleur) heeft een breedte van 10m13 en een bouwdiepte van ongeveer 10 meter met 2 verdiepingen;
- de achterbouw (witte kleur) heeft een bouwdiepte van ongeveer 8 meter met 1 verdieping.
Hierdoor krijgt de woning de uitstraling van een half open bebouwing met meer ruimte voor ramen en lichtinval!
GEEN BOUWVERPLICHTING.
Het perceel is gelegen in woongebied met landelijk karakter, het gedeelte achter de vijftig meter in agrarisch gebied.
INTERESSE? Maak telefonisch een afspraak op het nummer 012 23 00 23 of mail uw vragen aan roland@immo-leroi.be.
Energie
- Verwarming: Geen
- Beglazing: Onbekend
Op de kaart

Financieel
| Prijs | |
|---|---|
| Kadastraal inkomen (niet geïndexeerd) | € 0 |
| Kadastraal inkomen (geïndexeerd) | € 0 |
Berekening kosten
Je aankoopkosten? Die heb je snel berekend via de knop hieronder.
Bijkomende info
Gebouw
| Is beschermd | Nee |
|---|
Perceel
| P-score | A |
|---|---|
| Voorkeurrecht | Nee |
| Totale oppervlakte (m²) | 690 |
| Oriëntatie tuin | Noordwest |
Vergunning
| Verkavelingsvergunning | Vergunning beschikbaar |
|---|---|
| Bouwovertreding dagvaardiging | Geen |
| Type gebied | Landelijk |
Uitrusting
| Meerdere eigenaars | Nee |
|---|---|
| Rioolaansluiting | Nee |
| Gasaansluiting | Nee |
| Wateraansluiting | Nee |
| Elektriciteitsaansluiting | Nee |
| TV aansluiting | Nee |
| Internetaansluiting | Nee |
Een pand van
LEROI IMMOBILIËN
IMMO LEROI - Waar verkopers en kopers mekaar vinden
Een woning of appartement verkopen of verhuren?
Hier vindt de kandidaat de weg naar jouw woning!
Laat je begeleiden door het team van Immo Leroi en kom terecht in een netwerk waar verkopers en kopers elkaar vinden.
Geniet volle ondersteuning gedurende het ganse traject.
23K10122-BG
Leer meer over vastgoed
23 March 2026
Op Spotto zoeken als een pro: 10 slimme tips
21 March 2026
Hoeveel kan ik lenen om een huis te kopen?
01 March 2026
Wanneer heb ik een bouwvergunning of omgevingsvergunning nodig?
17 February 2026