VOLLEDIG GERENOVEERDE HOEVE MET AUTHENTIEKE ELEMENTEN IN GROENE OMGEVING
Een pand van VDV VAN DER VEKEN
Overzicht
- 414 m² bewoonbaar
- 4750 m² grond
- 3 Slaapkamer(s)
- 2 Badkamer(s)
- 5 Toilet(ten)
Overstromingsgevaar perceel
Beschrijving
Volledig gerenoveerde, instapklare hoeve met authentieke elementen en sfeer in het hart van Haspengouw - een charmante woning én een ideale locatie om uw evenementenlocatie, B&B, kantoor, ... te vestigen!
Troeven:
- Riant perceel van 47 aren 50 centiaren met aanpalend weiland (boomgaard) van 10 aren 38 centiaren: ideaal om dieren te houden of aan kleinschalige landbouw te doen!
- Totale renovatie met behoud van prachtige authentieke elementen en de warme, landelijke charme
- Voorzien van moderne technieken (o.a. zonnepanelen) en conform aan de huidige energie- en comfortnormen
- Gelegen in Schalkhoven (Bilzen-Hoeselt), recht in het hart van Haspengouw en midden in het fietsroutenetwerk
- Ruime indeling met meerdere woon- en werkzones
- Uitbreidingsplannen voor feestzaal, verkoopruimte en B&B beschikbaar
- Drie slaapkamers
- Aparte studio in het poorthuis (boven de winkelruimte) met een eigen keuken en mezzanine
- 2 keukens: huiskeuken en aparte industriële keuken voor eigen gebruik en met professionele mogelijkheden
- Wijn- en voorraadkelder beschikbaar
- Winkelruimte in het poorthuis, met aparte ingang aanwezig, perfect voor een winkeltje of een ambachtelijke activiteit
- Gezellige buitenbar achteraan het perceel
- Royale veranda waar het doorheen het hele jaar heerlijk vertoeven is
In Schalkhoven (Bilzen-Hoeselt), werkelijk het landelijke hart van Limburg, recht in het prachtige Haspengouw, tussen uitgestrekte velden en boomgaarden, ligt deze bijzondere hoeve die haar geschiedenis met trots draagt. De zorgvuldig uitgevoerde renovatie combineert eeuwenoude charme met modern comfort, waardoor het geheel niet enkel functioneel maar ook tijdloos aanvoelt.
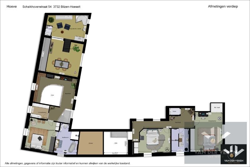
Het hoofdgebouw verwelkomt je via een statige inkomhal met een imposante trap die het karakter van het huis meteen prijsgeeft. De ruime woonkamer en leefkeuken vormen samen een warm geheel, badend in licht en sfeer. Op de gelijkvloerse verdieping bevindt zich eveneens de centrale veranda die uitkijkt op de gezellige binnenkoer, een oase van rust en gezelligheid. De traditionele opkamer werd omgetoverd tot een stijlvolle bureauruimte, met daaronder de wijn- en voorraadkelder, perfect voor de liefhebber van ambacht en gastronomie! Via de imposante trap in de hoofdinkom bereiken we één zijde van de eerste verdieping, waar de hoofdslaapkamer met aansluitende badkamer (met douche én ligbad!) en de linnenkamer zich bevinden. De tweede traphal biedt toegang tot de eerste verdieping waar twee slaapkamers, een badkamer en een apart toilet terug te vinden zijn, ideaal voor gasten of gezinsleden die net dat tikkeltje extra privacy wensen.
Aan de achterzijde vind je een reeks functionele ruimtes: de industriële keuken, technische ruimte, werkplaats en bergingen. Alles wat nodig is om van deze plek niet alleen een thuis, maar ook een werkplek of belevingslocatie te maken.
Op de gelijkvloerse verdieping van het poortgebouw bevindt zich een ingerichte winkelruimte met aparte ingang, en daarboven een charmante studio (appartementje) met keuken, eethoek, apart toilet en een imposante mezzanine. Een ruimte die uitnodigt tot creatief gebruik, bijvoorbeeld als gastenverblijf of atelier.
De buitenruimte maakt het plaatje compleet: een stalling met zonnepanelen, carport, gezellige buitenbar en het aanpalende weiland (boomgaard) van ruim 10 aren, waar rust, natuur en vrijheid hand in hand gaan.
Een unieke kans voor wie zich iedere dag in de Provence wilt wanen, of veel meer zoekt dan alleen een woning, bijvoorbeeld een mogelijkheid om te ondernemen in een prachtige omgeving. Bilzen-Hoeselt, al jarenlang de parel van Haspengouw, en misschien binnenkort jouw thuis? Koen leidt je met heel veel plezier rond.
Tot binnenkort!
Troeven:
- Riant perceel van 47 aren 50 centiaren met aanpalend weiland (boomgaard) van 10 aren 38 centiaren: ideaal om dieren te houden of aan kleinschalige landbouw te doen!
- Totale renovatie met behoud van prachtige authentieke elementen en de warme, landelijke charme
- Voorzien van moderne technieken (o.a. zonnepanelen) en conform aan de huidige energie- en comfortnormen
- Gelegen in Schalkhoven (Bilzen-Hoeselt), recht in het hart van Haspengouw en midden in het fietsroutenetwerk
- Ruime indeling met meerdere woon- en werkzones
- Uitbreidingsplannen voor feestzaal, verkoopruimte en B&B beschikbaar
- Drie slaapkamers
- Aparte studio in het poorthuis (boven de winkelruimte) met een eigen keuken en mezzanine
- 2 keukens: huiskeuken en aparte industriële keuken voor eigen gebruik en met professionele mogelijkheden
- Wijn- en voorraadkelder beschikbaar
- Winkelruimte in het poorthuis, met aparte ingang aanwezig, perfect voor een winkeltje of een ambachtelijke activiteit
- Gezellige buitenbar achteraan het perceel
- Royale veranda waar het doorheen het hele jaar heerlijk vertoeven is
In Schalkhoven (Bilzen-Hoeselt), werkelijk het landelijke hart van Limburg, recht in het prachtige Haspengouw, tussen uitgestrekte velden en boomgaarden, ligt deze bijzondere hoeve die haar geschiedenis met trots draagt. De zorgvuldig uitgevoerde renovatie combineert eeuwenoude charme met modern comfort, waardoor het geheel niet enkel functioneel maar ook tijdloos aanvoelt.
Het hoofdgebouw verwelkomt je via een statige inkomhal met een imposante trap die het karakter van het huis meteen prijsgeeft. De ruime woonkamer en leefkeuken vormen samen een warm geheel, badend in licht en sfeer. Op de gelijkvloerse verdieping bevindt zich eveneens de centrale veranda die uitkijkt op de gezellige binnenkoer, een oase van rust en gezelligheid. De traditionele opkamer werd omgetoverd tot een stijlvolle bureauruimte, met daaronder de wijn- en voorraadkelder, perfect voor de liefhebber van ambacht en gastronomie! Via de imposante trap in de hoofdinkom bereiken we één zijde van de eerste verdieping, waar de hoofdslaapkamer met aansluitende badkamer (met douche én ligbad!) en de linnenkamer zich bevinden. De tweede traphal biedt toegang tot de eerste verdieping waar twee slaapkamers, een badkamer en een apart toilet terug te vinden zijn, ideaal voor gasten of gezinsleden die net dat tikkeltje extra privacy wensen.
Aan de achterzijde vind je een reeks functionele ruimtes: de industriële keuken, technische ruimte, werkplaats en bergingen. Alles wat nodig is om van deze plek niet alleen een thuis, maar ook een werkplek of belevingslocatie te maken.
Op de gelijkvloerse verdieping van het poortgebouw bevindt zich een ingerichte winkelruimte met aparte ingang, en daarboven een charmante studio (appartementje) met keuken, eethoek, apart toilet en een imposante mezzanine. Een ruimte die uitnodigt tot creatief gebruik, bijvoorbeeld als gastenverblijf of atelier.
De buitenruimte maakt het plaatje compleet: een stalling met zonnepanelen, carport, gezellige buitenbar en het aanpalende weiland (boomgaard) van ruim 10 aren, waar rust, natuur en vrijheid hand in hand gaan.
Een unieke kans voor wie zich iedere dag in de Provence wilt wanen, of veel meer zoekt dan alleen een woning, bijvoorbeeld een mogelijkheid om te ondernemen in een prachtige omgeving. Bilzen-Hoeselt, al jarenlang de parel van Haspengouw, en misschien binnenkort jouw thuis? Koen leidt je met heel veel plezier rond.
Tot binnenkort!
Energie
![]() |
- EPC Certificaat: 20251003-0003687661-RES-1
- Energieverbruik: 265 kWh/m²/jaar
- E-peil: E0
- Verwarming: Gas
- Beglazing: Standaard dubbel
Op de kaart

Financieel
| Prijs | |
|---|---|
| Kadastraal inkomen (niet geïndexeerd) | € 893 |
Berekening kosten
Je aankoopkosten? Die heb je snel berekent via de knop hieronder.
Bijkomende info
Gebouw
| Staat | Zo goed als nieuw |
|---|---|
| Bewoonbaar (m²) | 414 |
| Verdieping | 0 |
| Badkamers | 2 |
| Slaapkamers | 3 |
| Verdiepingen | 1 |
| Garages | 0 |
| Parkeerplaatsen | 0 |
| Toiletten | 5 |
Faciliteiten
| Keuken uitrusting | Goed uitgerust |
|---|---|
| Beglazing | Standaard dubbel |
| Brandstof primaire verwarming | Gas |
| Septische tank | Nee |
Perceel
| Overstromingsgevoelig | Geen |
|---|---|
| P-score | D |
| G-score | B |
| Totale oppervlakte (m²) | 4750 |
| Bebouwde oppervlakte (m²) | 0 |
| Oppervlakte terras (m²) | 23 |
| Oriëntatie tuin | Noordoost |
Vergunning
| Verkavelingsvergunning | Vergunning beschikbaar |
|---|
Uitrusting
| Investeringspand | Nee |
|---|---|
| Parking | Nee |
| Garage | Nee |
| Thuiskantoor | Ja |
| Opslagruimte | Ja |
| Terras | Ja |
| Lift | Nee |
| Rioolaansluiting | Ja |
| Gasaansluiting | Ja |
| Wateraansluiting | Ja |
| Elektriciteitsaansluiting | Ja |
| Internetaansluiting | Ja |
| Telefoonaansluiting | Ja |
| Zonnepanelen | Ja |
| Zonneboiler | Nee |
| Alarm | Nee |
| Videofoon | Nee |
| Grondwaterput | Nee |
Een pand van
VDV VAN DER VEKEN
Vastgoed in vertrouwen!
Als hoog aangeschreven vastgoedadviseur trachten we iedereen te helpen met allerhande vastgoedvragen. Wij helpen je graag met de verkoop van je eigendom, verhuren van een investeringspand of de aankoop van jouw nieuw vastgoed.
Van groot-Hasselt tot Zonhoven, Genk, Kortessem, Herk-de-Stad, Hoeselt, Bilzen, Diepenbeek, ... staan we voor je klaar. Met ons team van gedreven adviseurs met ieder een eigen specialisatie, proberen wij een antwoord te bieden op al jouw vragen en je bij te staan waar nodig.
Een persoonlijke aanpak en lange termijnrelatie met de klanten is waar wij ons 100% voor inzetten. Niets geeft zoveel voldoening als een tevreden klant die met veel plezier nog eens terugkomt bij zijn volgend vastgoedavontuur.
Op zoek naar een oprecht, warm team waar je terecht kan voor advies en hulp bij al jouw stappen in de vastgoedwereld? Neem gerust contact met ons op.
Schalkhovenstr54
Leer meer over vastgoed
Nieuw
24 November 2025
Uitgezocht voor jouw gemeente: Hoeveel stijgt de waarde van je woning door een renovatie?
22 October 2025
Hoeveel kan ik lenen om een huis te kopen?
11 June 2025
Huis kopen met bouwovertreding? Dit moet je weten
11 May 2025
