RUIME OPEN BEBOUWING OP EEN PRACHTIG PERCEEL VAN 21A IN BILZEN
€ 549.000
Een pand van De woonmakers
Favoriet
Jouw zoektocht
Jouw scoretabel voor dit pand
Aan het laden...
Jouw geplande bezichtigingen
Aan het laden...
Overzicht
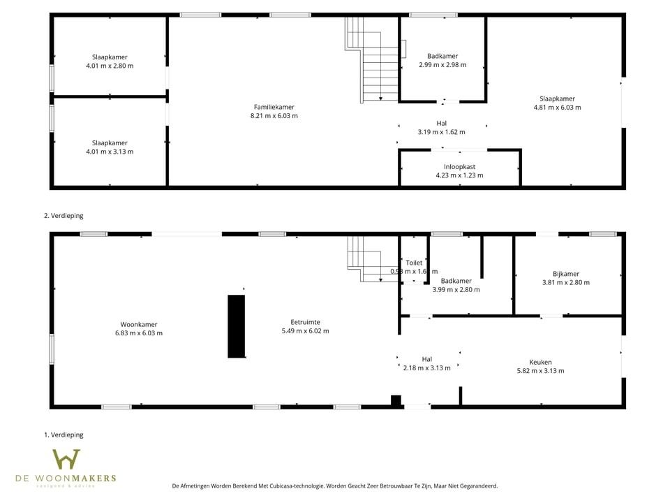
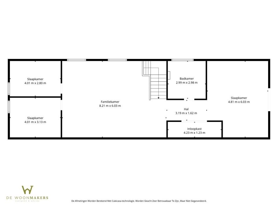
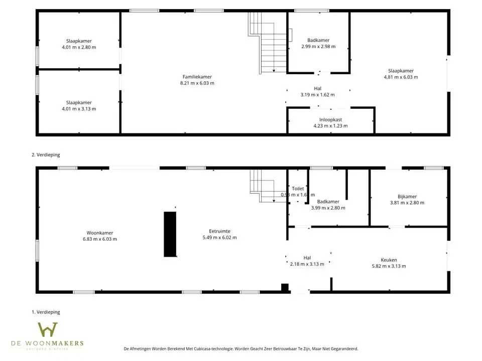
- 295 m² bewoonbaar
- 2110 m² grond
- 4 Slaapkamer(s)
- 2 Badkamer(s)
Beschrijving
Ben je op zoek naar een instapklare woning waar ruimte, comfort en kwaliteit samenkomen? Dan is deze open bebouwing met maar liefst 295 m² bewoonbare oppervlakte precies wat je zoekt. Gelegen op een prachtig perceel van 21 are, biedt deze woning een zee van ruimte, zowel binnen als buiten.
De woning beschikt over 3 slaapkamers (met de mogelijkheid tot een 4e), 2 badkamers en is volledig future proof omwille van een EPC-label B, conforme elektriciteit en bovendien een asbestveilige toestand.
Praktisch en veelzijdig: naast de woning vind je een bijbouw en achteraan nog eens 3 ruime garages, ideaal voor wie extra opslag of werkruimte nodig heeft.
De houten balken op de boven verdieping dienen ter decoratie en zijn niet nodig voor de stabiliteit. Deze kunnen dus zeer makkelijk verwijderd worden indien gewenst.
De grote, zonnige en volledig omheinde tuin biedt volledige privacy en is ideaal ter ontspanning of als speelterrein voor viervoeters.
Of je nu houdt van gezellig thuiskomen, een grote tuin om van te genieten, of de zekerheid van een energiezuinige en kwalitatieve woning: dit huis heeft het allemaal.
Dit is een buitenkans die je niet wilt missen. Ontdek zelf de troeven van deze prachtige woning en plan vandaag nog je bezoek in op het nummer 011/98.88.98 of via info@dewoonmakers.be
De vermelde oppervlaktes zijn indicatief. De Woonmakers kan niet verantwoordelijk gesteld worden voor de juistheid van de door zijn verstrekte gegevens.
De woning beschikt over 3 slaapkamers (met de mogelijkheid tot een 4e), 2 badkamers en is volledig future proof omwille van een EPC-label B, conforme elektriciteit en bovendien een asbestveilige toestand.
Praktisch en veelzijdig: naast de woning vind je een bijbouw en achteraan nog eens 3 ruime garages, ideaal voor wie extra opslag of werkruimte nodig heeft.
De houten balken op de boven verdieping dienen ter decoratie en zijn niet nodig voor de stabiliteit. Deze kunnen dus zeer makkelijk verwijderd worden indien gewenst.
De grote, zonnige en volledig omheinde tuin biedt volledige privacy en is ideaal ter ontspanning of als speelterrein voor viervoeters.
Of je nu houdt van gezellig thuiskomen, een grote tuin om van te genieten, of de zekerheid van een energiezuinige en kwalitatieve woning: dit huis heeft het allemaal.
Dit is een buitenkans die je niet wilt missen. Ontdek zelf de troeven van deze prachtige woning en plan vandaag nog je bezoek in op het nummer 011/98.88.98 of via info@dewoonmakers.be
De vermelde oppervlaktes zijn indicatief. De Woonmakers kan niet verantwoordelijk gesteld worden voor de juistheid van de door zijn verstrekte gegevens.
Ben je op zoek naar een instapklare woning waar ruimte, comfort en kwaliteit samenkomen? Dan is deze open bebouwing met maar liefst 295 m² bewoonbare oppervlakte precies wat je zoekt. Gelegen op een prachtig perceel van 21 are, biedt deze woning een zee van ruimte, zowel binnen als buiten.
De woning beschikt over 3 slaapkamers (met de mogelijkheid tot een 4e), 2 badkamers en is volledig future proof omwille van een EPC-label B, conforme elektriciteit en bovendien een asbestveilige toestand.
Praktisch en veelzijdig: naast de woning vind je een bijbouw en achteraan nog eens 3 ruime garages, ideaal voor wie extra opslag of werkruimte nodig heeft.
De houten balken op de boven verdieping dienen ter decoratie en zijn niet nodig voor de stabiliteit. Deze kunnen dus zeer makkelijk verwijderd worden indien gewenst.
De grote, zonnige en volledig omheinde tuin biedt volledige privacy en is ideaal ter ontspanning of als speelterrein voor viervoeters.
Of je nu houdt van gezellig thuiskomen, een grote tuin om van te genieten, of de zekerheid van een energiezuinige en kwalitatieve woning: dit huis heeft het allemaal.
Dit is een buitenkans die je niet wilt missen. Ontdek zelf de troeven van deze prachtige woning en plan vandaag nog je bezoek in op het nummer 011/98.88.98 of via info@dewoonmakers.be
De vermelde oppervlaktes zijn indicatief. De Woonmakers kan niet verantwoordelijk gesteld worden voor de juistheid van de door zijn verstrekte gegevens.
De woning beschikt over 3 slaapkamers (met de mogelijkheid tot een 4e), 2 badkamers en is volledig future proof omwille van een EPC-label B, conforme elektriciteit en bovendien een asbestveilige toestand.
Praktisch en veelzijdig: naast de woning vind je een bijbouw en achteraan nog eens 3 ruime garages, ideaal voor wie extra opslag of werkruimte nodig heeft.
De houten balken op de boven verdieping dienen ter decoratie en zijn niet nodig voor de stabiliteit. Deze kunnen dus zeer makkelijk verwijderd worden indien gewenst.
De grote, zonnige en volledig omheinde tuin biedt volledige privacy en is ideaal ter ontspanning of als speelterrein voor viervoeters.
Of je nu houdt van gezellig thuiskomen, een grote tuin om van te genieten, of de zekerheid van een energiezuinige en kwalitatieve woning: dit huis heeft het allemaal.
Dit is een buitenkans die je niet wilt missen. Ontdek zelf de troeven van deze prachtige woning en plan vandaag nog je bezoek in op het nummer 011/98.88.98 of via info@dewoonmakers.be
De vermelde oppervlaktes zijn indicatief. De Woonmakers kan niet verantwoordelijk gesteld worden voor de juistheid van de door zijn verstrekte gegevens.
Energie
![]() |
- EPC Certificaat: 20230113-0002779159-RES-1
- Energieverbruik: 152 kWh/m²/jaar
- E-peil: E0
- Verwarming: Pellets
- Beglazing: Standaard dubbel
Op de kaart

Financieel
| Prijs | |
|---|---|
| Kadastraal inkomen (niet geïndexeerd) | € 842 |
Berekening kosten
Je aankoopkosten? Die heb je snel berekend via de knop hieronder.
Bijkomende info
Gebouw
| Bouwjaar | 1874 |
|---|---|
| Bewoonbaar (m²) | 295 |
| Badkamers | 2 |
| Slaapkamers | 4 |
| Verdiepingen | 0 |
| Garages | 0 |
| Parkeerplaatsen | 0 |
| Toiletten | 0 |
Faciliteiten
| Beglazing | Standaard dubbel |
|---|---|
| Brandstof primaire verwarming | Pellets |
| Septische tank | Nee |
Perceel
| Overstromingsgevoelig | Geen |
|---|---|
| P-score | B |
| G-score | B |
| Totale oppervlakte (m²) | 2110 |
| Bebouwde oppervlakte (m²) | 0 |
Vergunning
| Verkavelingsvergunning | Geen beschikbaar |
|---|
Uitrusting
| Investeringspand | Nee |
|---|---|
| Parking | Nee |
| Garage | Nee |
| Lift | Nee |
| Rioolaansluiting | Nee |
| Gasaansluiting | Nee |
| Wateraansluiting | Nee |
| Elektriciteitsaansluiting | Nee |
| Internetaansluiting | Nee |
| Telefoonaansluiting | Nee |
| Zonnepanelen | Nee |
| Zonneboiler | Nee |
| Alarm | Nee |
| Videofoon | Nee |
| Grondwaterput | Nee |
Een pand van
De woonmakers
De Woonmakers Win-win in vastgoed
Bij De Woonmakers staat ervaring centraal. Sinds onze oprichting in 2020 hebben we ons voortdurend ontwikkeld als toonaangevend bedrijf in de vastgoedsector. Gedurende deze periode hebben we waardevolle inzichten verzameld en ons vakmanschap verfijnd om onze klanten een ongeëvenaarde dienstverlening te bieden.
Onze missie is om de perfecte match te creëren tussen individuen en vastgoed, en dit streven we na door onze diepgaande kennis van de markt te combineren met een innovatieve benadering van klantinteractie. Door te luisteren naar uw woonvoorkeuren en -behoeften, zijn we in staat om op maat gemaakte oplossingen te presenteren die naadloos aansluiten op uw levensstijl.
De drijvende krachten achter De Woonmakers, Jan en Krisja, delen een passie voor vastgoed en een toewijding om de klanten te voorzien van een ongeëvenaarde ervaring. Met jarenlange expertise in verschillende facetten van de vastgoedmarkt streven zij ernaar om een service te bieden die verder gaat dan alleen transacties. “Onze klanten kunnen rekenen op een persoonlijke aanpak die gericht is op het creëren van langdurige relaties en het leveren van op maat gemaakte oplossingen die voldoen aan hun specifieke behoeften.”
Holt 75
Leer meer over vastgoed
23 March 2026
Op Spotto zoeken als een pro: 10 slimme tips
21 March 2026
Hoeveel kan ik lenen om een huis te kopen?
01 March 2026
Wanneer heb ik een bouwvergunning of omgevingsvergunning nodig?
17 February 2026
