Nieuw
Gezellig appartement in centrum Bilzen
€ 227.000
Een pand van Immovadis
Overzicht
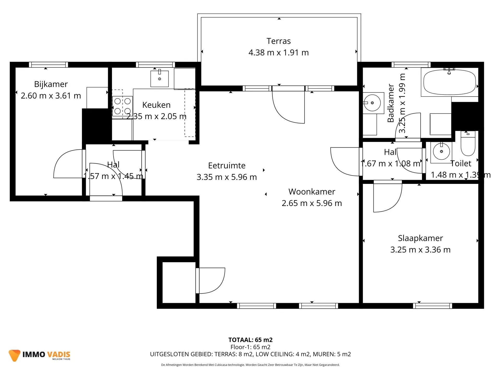
- 90 m² bewoonbaar
- 2 Slaapkamer(s)
- 1 Badkamer(s)
- 1 Toilet(ten)
- 1 Living(s)
Beschrijving
Op een absolute toplocatie in het centrum van Bilzen bevindt zich dit goed onderhouden appartement met twee slaapkamers en autostaanplaats.
Dankzij de ligging bevinden zich alle voorzieningen op wandelafstand zoals winkels, scholen, openbaar vervoer en ontspanning.
Daarnaast ligt de E313 op amper 1 km, wat zorgt voor een uitstekende verbinding met de omliggende steden.
Gelegen in een verzorgd gebouw met lift, is dit ideaal voor bewoning of als investering. De autostaanplaats maakt het aanbod compleet en biedt extra comfort in het centrum.
Interesse? Contacteer ine@immovadis.be of 0469/430998.
Dankzij de ligging bevinden zich alle voorzieningen op wandelafstand zoals winkels, scholen, openbaar vervoer en ontspanning.
Daarnaast ligt de E313 op amper 1 km, wat zorgt voor een uitstekende verbinding met de omliggende steden.
Gelegen in een verzorgd gebouw met lift, is dit ideaal voor bewoning of als investering. De autostaanplaats maakt het aanbod compleet en biedt extra comfort in het centrum.
Interesse? Contacteer ine@immovadis.be of 0469/430998.
Energie
- EPC Certificaat: 4912
- Verwarming: Gas
- Beglazing: Standaard dubbel
Op de kaart

Financieel
| Prijs | |
|---|---|
| Kadastraal inkomen (niet geïndexeerd) | € 694 |
Berekening kosten
Je aankoopkosten? Die heb je snel berekent via de knop hieronder.
Bijkomende info
Gebouw
| Bouwjaar | 1996 |
|---|---|
| Staat | Goed onderhouden |
| Is beschermd | Nee |
| Bouwcertificaat | Nee |
| Bewoonbaar (m²) | 90 |
| Verdieping | 0 |
| Badkamers | 1 |
| Slaapkamers | 2 |
| Verdiepingen | 1 |
| Keukens | 1 |
| Leefruimtes | 1 |
| Parkeerplaatsen | 1 |
| Toiletten | 1 |
Ruimtes
| Slaapkamer | 21 m² |
|---|---|
| Leefruimte | 33 m² |
| Keuken | 5 m² |
| Kamer 1 | 7 m² |
| Terras | 6 m² |
Faciliteiten
| Keuken | EXTRA_INFO.OUTFITTING.VALUE.SEPARATEKITCHEN |
|---|---|
| Materiaal ramenomlijstingen | PVC |
| Beglazing | Standaard dubbel |
| Luiken | Nee |
| Primair verwarmingstype | Decentrale verwarming |
| Primaire verwarmingsbron | Warmtenet |
| Brandstof primaire verwarming | Gas |
| Elektrisch keuringsattest | Ja |
| Septische tank | Nee |
| Beerput | Nee |
Perceel
| Overstromingsgevoelig | Geen |
|---|---|
| Voorkeurrecht | Nee |
| Bebouwde oppervlakte (m²) | 90 |
| Oppervlakte terras (m²) | 6 |
Vergunning
| Vergunning | Vergunning beschikbaar |
|---|---|
| Verkavelingsvergunning | Vergunning beschikbaar |
Uitrusting
| Investeringspand | Nee |
|---|---|
| Geschikt als kangoeroewoning | Nee |
| Geschikt voor rolstoelgebruikers | Nee |
| Parking | Ja |
| Garage | Nee |
| Thuiskantoor | Nee |
| Kelder | Nee |
| Zolder | Nee |
| Opslagruimte | Nee |
| Tuin | Nee |
| Terras | Ja |
| Lift | Ja |
| Rioolaansluiting | Nee |
| Gasaansluiting | Ja |
| Wateraansluiting | Nee |
| Elektriciteitsaansluiting | Nee |
| TV aansluiting | Nee |
| Internetaansluiting | Nee |
| Zonnepanelen | Nee |
| Zonneboiler | Nee |
| Thuisbatterij | Nee |
| Alarm | Nee |
| Zwembad | Nee |
| Sauna | Nee |
| Jacuzzi | Nee |
| Videofoon | Nee |
| Domotica | Nee |
| Grondwaterput | Nee |
| Ventilatie | Ja |
Een pand van
Immovadis
Welkom Thuis
Geen alledaagse standaard makelaar!
ImmoVadis staat voor anders durven zijn, maar wel binnen de professionele kaders.
Wij pakken uw vastgoed professioneel, duidelijk (helder) en tijdgericht aan, waarbij u als klant ten allen tijde centraal staat en zich WELKOM THUIS voelt!
ImmoVadis gelooft in 'anders durven denken', samen met een realistische, no-nonsense aanpak. Daarnaast is vertrouwen, passie en een goede relatie met de klant van zeer groot belang.
Wij streven ernaar om onze klanten altijd tevreden te houden. ImmoVadis is dan ook een klantgericht kantoor met een hoogwaardig dienstverleningsniveau.
Team
Immovadis bestaat uit een team van medewerkers en partners, onder leiding van een vat vol ervaring op niveau van makelaardij, Guy Clerinx in samenwerking met een bouwkundig aannemer, Wim Lambrechts (ProMaCon BV).
Door deze samenwerking kunnen we op het vlak van bouwkundigheid een meerwaarde toevoegen aan het gebruikelijk takenpakket van een standaard makelaar.
Als klant krijgt u deze deskundige meerwaarde automatisch mee inbegrepen in onze dienstverlening.
86480289
Leer meer over vastgoed
Nieuw
24 November 2025
Uitgezocht voor jouw gemeente: Hoeveel stijgt de waarde van je woning door een renovatie?
22 October 2025
Hoeveel kan ik lenen om een huis te kopen?
11 June 2025
Huis kopen met bouwovertreding? Dit moet je weten
11 May 2025